plus Опубліковано: 13 серпня 2009 Поділитись Опубліковано: 13 серпня 2009 (змінено) Добрый день! Думая строить дом, мыслил стандартно, и считал, что дом - это два этажа и много всяких помещений. Но побывав недавно в одноэтажном симпатичном домишке, понял, что это, ИМХО, самое удобное и практичное жилье, особенно с маленьким ребенком. Подобрал похожий увиденному проект, и хотелось бы услышать мысли форумчан, которые, опираясь на опыт жизни в своем доме, могут высказаться насчет функциональности подобного дома и планировки. А вот, собственно и сам проект www.buddom.com.ua/?m=177&o=3138 Спасибо заранее, за Ваше мнение. Змінено 13 серпня 2009 користувачем plus Посилання на коментар Поділитися на інших сайтах More sharing options...
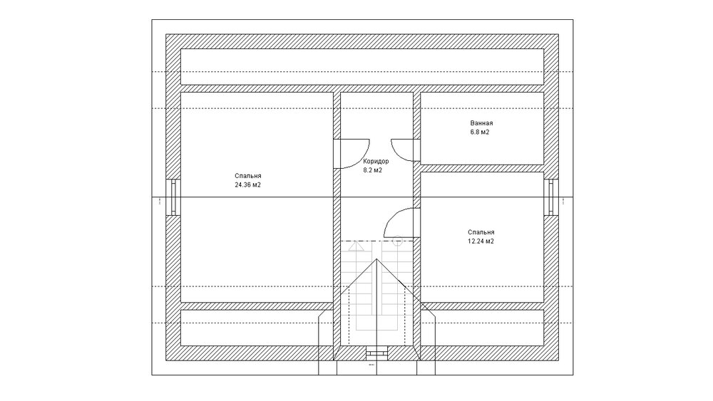
вторик Опубліковано: 13 серпня 2009 Поділитись Опубліковано: 13 серпня 2009 ужас лабиринтовый коридор, токо минотавра нехватает. может хоть этот www.buddom.com.ua/?m=177&o=2477 Посилання на коментар Поділитися на інших сайтах More sharing options...
plus Опубліковано: 13 серпня 2009 Автор Поділитись Опубліковано: 13 серпня 2009 ужас лабиринтовый коридор, токо минотавра нехватает. может хоть этот www.buddom.com.ua/?m=177&o=2477 Абсолютно убежден, что идеальной планировки в одноэтажном доме добиться невозможно, поэтому прийдеться идти на определенные компромисы. В предложенном Вами варианте, на небольшом пятачке насчитал шесть дверей, вот где матрица. Посилання на коментар Поділитися на інших сайтах More sharing options...
вторик Опубліковано: 13 серпня 2009 Поділитись Опубліковано: 13 серпня 2009 надеюсь не разочарую если скажу что можно добится оптимальной планировки и в одноэтажном доме главное чтобы совпали желания и возможности. не любите двери, можно и без дверей Посилання на коментар Поділитися на інших сайтах More sharing options...
vorona Опубліковано: 13 серпня 2009 Поділитись Опубліковано: 13 серпня 2009 Советую не слушать людей с различными фобиями. Проект неплохой, но один недостаток есть - нет нормального гардероба. Да, чердак тоже прорисован с окнами почему-то, хотя лестницу точно некуда поставить... А вообще правильность выбора данного проекта зависит в первую очередь от размера кошелька (в одноэтажном доме стоимость квадратного метра явно дороже, чем в многоуровневом), и от расположения дома на участке согласно сторон света и размера участка, а также вида из окон (если впритык соседи со всех сторон - приятного мало смотреть в окна друг другу). Посилання на коментар Поділитися на інших сайтах More sharing options...
plus Опубліковано: 13 серпня 2009 Автор Поділитись Опубліковано: 13 серпня 2009 Советую не слушать людей с различными фобиями. Проект неплохой, но один недостаток есть - нет нормального гардероба. Да, чердак тоже прорисован с окнами почему-то, хотя лестницу точно некуда поставить... А вообще правильность выбора данного проекта зависит в первую очередь от размера кошелька (в одноэтажном доме стоимость квадратного метра явно дороже, чем в многоуровневом), и от расположения дома на участке согласно сторон света и размера участка, а также вида из окон (если впритык соседи со всех сторон - приятного мало смотреть в окна друг другу). Спасибо за совет. По гардеробу согласен. Думаю над тем, как сделать так, чтобы за счет небольшого уменьния площади гостевой и большой спальни он появился. По лестнице на чердак - думаю, она обычная чердачная, которая спускается с потолка. И вот меня заинтересовало утверждение что стоимость метра в одноэтажном выше, чем в многоуровневом - не поясните за счет чего? А также думаю, что если дом впритык к соседям, то наверное и в двухэтажном будете друг другу в окна смотреть. Все зависит от участка. Согласен, что любой проект дома необходимо выбирать в зависимости от возможности его нормально расположить на участке. Посилання на коментар Поділитися на інших сайтах More sharing options...
vorona Опубліковано: 13 серпня 2009 Поділитись Опубліковано: 13 серпня 2009 Фундамент - удорожание за счет увеличения периметра, крыша - увеличение плошади. Площадь застройки увеличивается - земля тоже не бесплатная. Посилання на коментар Поділитися на інших сайтах More sharing options...
plus Опубліковано: 13 серпня 2009 Автор Поділитись Опубліковано: 13 серпня 2009 Фундамент - удорожание за счет увеличения периметра, крыша - увеличение плошади. Площадь застройки увеличивается - земля тоже не бесплатная. Но ведь есть вещи, на которых я существенно экономлю - это устройство межэтажных перекрытий, а при строительстве из блоков и на армированном поясе под перекрытиями, это и устройство лестницы, а доведение ее до нормального состояния - это не одна тысяча у.е., при этом в многоуровневом доме много бесполезных квадратных метров, которые обычно есть в окололестничном пространстве и без них не обойтись, поэтому, ИМХО, надо считать не стоимость отдельного квадратного метра, а стоимость полезного квадратного метра. Посилання на коментар Поділитися на інших сайтах More sharing options...
MWer Опубліковано: 14 серпня 2009 Поділитись Опубліковано: 14 серпня 2009 Лестница забирает около 5 м2, на перекрытии економия незначительная, в одноэтажном доме тоже перекрытие, оно чердачное и немного попроще, но больше по площади. Так что если считать его с отделкой то экономии может и не получится. Дополнительный монолитный пояс нужен только в частных случаях. По моей практике подсчетов стоимости разница около 15 % в пользу двух уровней, за строительные работы. Посилання на коментар Поділитися на інших сайтах More sharing options...
plus Опубліковано: 14 серпня 2009 Автор Поділитись Опубліковано: 14 серпня 2009 Лестница забирает около 5 м2, на перекрытии економия незначительная, в одноэтажном доме тоже перекрытие, оно чердачное и немного попроще, но больше по площади. Так что если считать его с отделкой то экономии может и не получится. Дополнительный монолитный пояс нужен только в частных случаях. По моей практике подсчетов стоимости разница около 15 % в пользу двух уровней, за строительные работы. У меня своего дома пока еще нет, но насколько мне известно, стоимость лестницы в готовом виде, не сваренный из швеллеров и уголков каркас, а уже отделанная деревом, зашитая гипсом и с перилами, стоит ох как не дешево. Понимая, что есть дешевые и дорогие варианты, но все-таки, не озвучит ли кто-нибудь среднюю стоимость лестницы под ключ? Посилання на коментар Поділитися на інших сайтах More sharing options...
Stolica999 Опубліковано: 14 серпня 2009 Поділитись Опубліковано: 14 серпня 2009 Добрый день! Думая строить дом, мыслил стандартно, и считал, что дом - это два этажа и много всяких помещений. Но побывав недавно в одноэтажном симпатичном домишке, понял, что это, ИМХО, самое удобное и практичное жилье, особенно с маленьким ребенком. Вот и я о том же!,пожив после двухэтажного в одноэтажном,понял как это удобно,так как у самого маленький ребенок и таскаться с ним на второй особого желания нет,да и доступность комнат на порядок выше,но опять же срабатывает сравнение с другими(как у соседа два ,и я два сделаю)не говорю что два плохо,но помещения первой необходимости должны быть на первом,а на втором вполне хватит если надо мансарды в которой можно обустроить одну -две приличных комнаты,что и собираюсь сделать,а когда ребенок пойдет в школу то ему однозначно захочет иметь свое пространство подальше от родителей,вот тут как раз ему комната в мансарде как праздник будет и родителям на первом спокойней:D.не говоря уже о том что когда дети выростают мало кто из них хотят остаться жить с родителями,и остаться вдвоем в огромной домине ну никакого резона нет,лучше зарание подумать над этим не строить замков в которых сами же жить и останетесь,построить удобный без выпендрежа домик,и также не забыть прикупить земельки на будущее детям(так как не пропадет и не портиться:D) п.с. после догих поисков пока только этот проект(чуть измененный)вижу как свое будущее жилье. Удачи в вашем выборе. Посилання на коментар Поділитися на інших сайтах More sharing options...
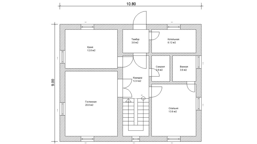
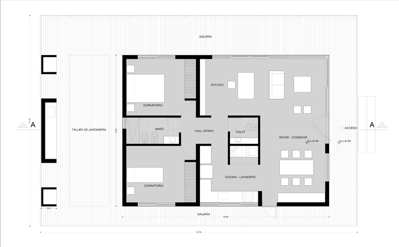
Tugarin Опубліковано: 22 серпня 2009 Поділитись Опубліковано: 22 серпня 2009 Здравствуйте! По Вашему проекту плюсы: 1. Архитектура супер. 2. Большие комнаты. Минусы: 1. Шкаф в коридое как-то не на своем месте, я б его лучше сместил в сторону спальни (14.0 м2), так сказать сделал нишу в левой стене спальни под шкаф. 2. Дверь в котельную рядом в сдверью в спальню, я б сместил вправо. А в целом удачный проект. P.S. Задумался об оптимальной планировке одноэтажного тома и вот что получилось: Посилання на коментар Поділитися на інших сайтах More sharing options...
Cледопыт Опубліковано: 22 серпня 2009 Поділитись Опубліковано: 22 серпня 2009 Лестница забирает около 5 м2, на перекрытии економия незначительная, в одноэтажном доме тоже перекрытие, оно чердачное и немного попроще, но больше по площади. Так что если считать его с отделкой то экономии может и не получится. Дополнительный монолитный пояс нужен только в частных случаях. По моей практике подсчетов стоимости разница около 15 % в пользу двух уровней, за строительные работы. Существуют удачные решения размещения ванной под лестницей , не говоря о туалете. Можно делать дом с жилой крышей и с деревянным перекрытием. Посилання на коментар Поділитися на інших сайтах More sharing options...
Tugarin Опубліковано: 22 серпня 2009 Поділитись Опубліковано: 22 серпня 2009 А если не гнаться за метрами и рассматривать 2-й мансардный этаж, то возможная такие габариты и планировка будут оптимальными. Посилання на коментар Поділитися на інших сайтах More sharing options...
Stolica999 Опубліковано: 25 серпня 2009 Поділитись Опубліковано: 25 серпня 2009 P.S. Задумался об оптимальной планировке одноэтажного тома и вот что получилось Хорошая планировка,особенно расположение кухни с террасой,единственное что напрягает - двери в холле а то уж слишком много их, гости вообще теряться будут:D Посилання на коментар Поділитися на інших сайтах More sharing options...
Tugarin Опубліковано: 25 серпня 2009 Поділитись Опубліковано: 25 серпня 2009 P.S. Задумался об оптимальной планировке одноэтажного тома и вот что получилось Хорошая планировка,особенно расположение кухни с террасой,единственное что напрягает - двери в холле а то уж слишком много их, гости вообще теряться будут:D Нужно будет просто Гостям говорить направо и налево от входа ходить не надо, во все остальные двери милости просим Посилання на коментар Поділитися на інших сайтах More sharing options...
kxigiki_pasha Опубліковано: 25 серпня 2009 Поділитись Опубліковано: 25 серпня 2009 ужас лабиринтовый коридор, токо минотавра нехватает. может хоть этот www.buddom.com.ua/?m=177&o=2477 Підтримую, занадто багато переходів Посилання на коментар Поділитися на інших сайтах More sharing options...
Гість alex13new13 Опубліковано: 30 серпня 2009 Поділитись Опубліковано: 30 серпня 2009 Добрый вечер, друзья. Предлагаю жестко покритиковать и мой проект. Я не стал создавать новую тему, так как мой проект мне показался чем-то похожим на уже обсуждаемый. Дом планируется одноэтажный. Сам проект и расположения по сторонам света в прикрепленном файле. Внешний вид дома будет похож на польский venus с некоторыми изменениями и упрощениями. Заранее благодарен всем откликнувшимся.план.doc Посилання на коментар Поділитися на інших сайтах More sharing options...
savvang Опубліковано: 20 жовтня 2009 Поділитись Опубліковано: 20 жовтня 2009 Добрый вечер, друзья. Предлагаю жестко покритиковать и мой проект. Я не стал создавать новую тему, так как мой проект мне показался чем-то похожим на уже обсуждаемый. Дом планируется одноэтажный. Сам проект и расположения по сторонам света в прикрепленном файле. Внешний вид дома будет похож на польский venus с некоторыми изменениями и упрощениями. Заранее благодарен всем откликнувшимся. хорошо то что кухня расположена на восточной стороне, утром встречать рассвет, это круто!и еще один плюс то что дом будет "обогреваться" с двух сторон солнцем равномерно и в доме будет тепло! не нравится то что очень много дверей и углов. я бы немного изменила расположение стен где-то убрала бы совсем, чтоб не было ощущения квадратности и угловатости. я бы добавила еще один туалет и небольшое помещение типа кладовки. в зале окна можно сделать по больше. а вот в спальнях у бы убрала боковые окна. Посилання на коментар Поділитися на інших сайтах More sharing options...
Ольга В Опубліковано: 21 жовтня 2009 Поділитись Опубліковано: 21 жовтня 2009 Хорошая лестница от 5000 у.е под ключ, если не своими руками делать. Хорошая-это два пролета шириной в 1м при высоте потолков 3-3.3м с шириной ступенек 30 см а высотой 15см сделанная на металлокаркасе дерево хотя бы - клееная сосна. Посилання на коментар Поділитися на інших сайтах More sharing options...
ALEXX17 Опубліковано: 21 жовтня 2009 Поділитись Опубліковано: 21 жовтня 2009 Хорошая лестница от 5000 у.е под ключ, если не своими руками делать. Хорошая-это два пролета шириной в 1м при высоте потолков 3-3.3м с шириной ступенек 30 см а высотой 15см сделанная на металлокаркасе дерево хотя бы - клееная сосна. Страшные цены у вас в Москве! Посилання на коментар Поділитися на інших сайтах More sharing options...
ALEXX17 Опубліковано: 21 жовтня 2009 Поділитись Опубліковано: 21 жовтня 2009 Добрый день! Думая строить дом, мыслил стандартно, и считал, что дом - это два этажа и много всяких помещений. Но побывав недавно в одноэтажном симпатичном домишке, понял, что это, ИМХО, самое удобное и практичное жилье, особенно с маленьким ребенком. Подобрал похожий увиденному проект, и хотелось бы услышать мысли форумчан, которые, опираясь на опыт жизни в своем доме, могут высказаться насчет функциональности подобного дома и планировки. А вот, собственно и сам проект www.buddom.com.ua/?m=177&o=3138 Спасибо заранее, за Ваше мнение. Для начало надо найти участок с широким фасадом, т.к. 15 м ширина дома - это не мало! Посилання на коментар Поділитися на інших сайтах More sharing options...
plus Опубліковано: 21 жовтня 2009 Автор Поділитись Опубліковано: 21 жовтня 2009 Для начало надо найти участок с широким фасадом, т.к. 15 м ширина дома - это не мало! Да, фасад участка, при таком доме по нормам должен быть минимум 23 метра. А по поводу лестницы, от пяти тыс. у.е. - это еще и мало. Мои два товарища делали ровные, без заворотов. У одного деревянные ступени, обработанные по технологии стоили две тысячи. Всю остальную работу делал сам, сидел два месяца собирал, обшивал ( я так не хочу ). Второй под ключ заплатил восемь тысяч. Вот такие дешевые лестницы. Посилання на коментар Поділитися на інших сайтах More sharing options...
Eferalgan Опубліковано: 21 жовтня 2009 Поділитись Опубліковано: 21 жовтня 2009 ...не говоря уже о том что когда дети выростают мало кто из них хотят остаться жить с родителями,и остаться вдвоем в огромной домине ну никакого резона нет... И не надейтесь. :D Вас в беде не оставят. А если дом маленький и возникнет необходимость жить вместе? Уж лучше "навырост". Посилання на коментар Поділитися на інших сайтах More sharing options...
Рекомендовані повідомлення
Створіть акаунт або увійдіть у нього для коментування
Ви маєте бути користувачем, щоб залишити коментар
Створити акаунт
Зареєструйтеся для отримання акаунта. Це просто!
Зареєструвати акаунтУвійти
Вже зареєстровані? Увійдіть тут.
Увійти зараз