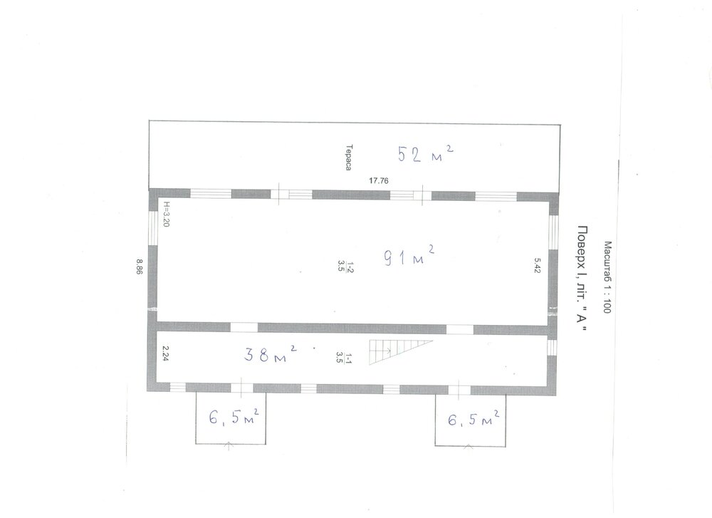
lukeriya Опубліковано: 3 серпня 2016 Поділитись Опубліковано: 3 серпня 2016 Продаю свой дом ( можно под бизнес ). Васильковский район, Калиновка. От м. Теремки- 21 км. Участок 15,02 сотки (размер 43 м фасад х 35 м). Огражден забором со всех сторон. Фасад трассы Т1038. Остановка маршрутки на Киев-напротив дома (м.Теремки и м. Нивки). Асфальт под участок. Дорога зимой чистится. Дом площадью 273м 2( + терраса 52м2 + балкон 52м2 + 2 крыльца 13м2). Дом свободной планировки и имеет 4 независимых входа. Стены - газоблок. Фундамент - ленточный монолитный. Кровля - металлочерепица с утеплением 200мм. Подшиты свесы и установлена водосточная система. Перекрытие - ж/б сборное монолитное "Террива". Окна - панорамные,МП 2-х камерные с энергосберегающим стеклом. Электричество -15 кВт (380 В), вода - скважина - 39м, канализация- 2 септика с переливом V=11,3 м3. Свет,вода канализация-заведены в дом. Сделана разводка отопления по дому. Полы первого этажа гидроизолированы и армированы. Входные двери- металлические с утеплением. Дом с черновой отделкой. Цена 75 тыс. дол. Тел. 050-471-двадцать пять-19. Посилання на коментар Поділитися на інших сайтах More sharing options...
Maniachello Опубліковано: 3 серпня 2016 Поділитись Опубліковано: 3 серпня 2016 иии... фото где? Посилання на коментар Поділитися на інших сайтах More sharing options...
lukeriya Опубліковано: 3 серпня 2016 Автор Поділитись Опубліковано: 3 серпня 2016 Поэтажный план Посилання на коментар Поділитися на інших сайтах More sharing options...
lukeriya Опубліковано: 8 серпня 2016 Автор Поділитись Опубліковано: 8 серпня 2016 Фасад и 2 этаж Посилання на коментар Поділитися на інших сайтах More sharing options...
Evgeniy83 Опубліковано: 12 серпня 2016 Поділитись Опубліковано: 12 серпня 2016 Это возле рыбоперерабатывающего завода? Если да то лет 7 так стоит уже. Посилання на коментар Поділитися на інших сайтах More sharing options...
lukeriya Опубліковано: 12 серпня 2016 Автор Поділитись Опубліковано: 12 серпня 2016 Да, именно там. 1 Посилання на коментар Поділитися на інших сайтах More sharing options...
Рекомендовані повідомлення
Створіть акаунт або увійдіть у нього для коментування
Ви маєте бути користувачем, щоб залишити коментар
Створити акаунт
Зареєструйтеся для отримання акаунта. Це просто!
Зареєструвати акаунтУвійти
Вже зареєстровані? Увійдіть тут.
Увійти зараз