Dimakiev Опубліковано: 30 січня 2017 Автор Поділитись Опубліковано: 30 січня 2017 Добрый день! Интересует монтаж полива "под ключ" в Киеве. Фото и схему наземных грядок прилагаю. Участок огорода 5х10 м. Клиенту нужен капельный полив высоких грядок (13 шт) и вертикальных грядок (14 шт). Высота грядок 32 и 24 см. Как понимаю - нужно проложить ПВХ трубы между грядками и по забору, далее - трубки с капельницами. Вопросы: 1. Нужно ли закапывать разводку ПВХ труб между грядками и на какую глубину? 2. Сколько сезонов прослужат капельницы? 3. Если на грядках в разных сезонах будут расти разные растения - как менять расстояния между капельницами? 4. Нужно ли снимать трубки на зиму? 5. Какая хотя бы ориентировочная стоимость полива всех грядок (материал+работа)? Заранее благодарен за ответы (здесь либо в личные сообщения) Добрый день. 1. Закапывать желательно, так как разводку лучше делать ПЭ трубой 25мм, а это не очень красиво, когда между красивыми грядками лежит черная труба. На глубину до 30 см, будет достаточно. Под грядкой переходить можно уже на капельную трубку и делать разводку по грядкам. 2. Капельницы как и сама капельная трубка прослужат не менее 8-10 лет. Единственное условие, обязательная установка фильтра и его чистка. 3. Тут вопрос более сложный капельницы сами не поменяете, так как они впаяны в трубку. Тут вариант только снимать трубку например с шагом капельницы 25 см, и менять ее местами с трубкой где был шаг 33 см, т.е делать замену линии. Это не сложная операция, ее может делать 1 человек самостоятельно. Т.е. получается на одних грядках лежит трубка шаг 25 см, на других лежит 33 см, в следующем году меняете трубку местами. 4. Трубка на зиму не снимается. Только необходимо продувать ее компрессором. Процесс называется: консервация полива на зиму. 5. Стоимость, я бы Вам подсказал, но есть несколько вопросов. Теперь я задам вопросы: 1. Подача воды, скважина или емкость ? 2. Как далеко расположен источник воды ? 3. Необходим автоматический капельный полив или ручной ? 4. Что будет расти на вертикальных грядках? 1 Посилання на коментар Поділитися на інших сайтах More sharing options...
Теодор_1 Опубліковано: 30 січня 2017 Поділитись Опубліковано: 30 січня 2017 1. Подача воды - городской водопровод. 2. По всему участку установлен полив газона и клумб. В правом верхнем углу, если смотреть на схему, непосредственно возле крайней правой грядки, есть выход с коннектором для подключения поливочного шланга. Как понимаю - запитать воду можно от него. 3. Пока ручной полив, но с возможностью дальнейшего переоборудования, в будущем, на автоматический. 4. На вертикальных - однозначно будет расти клубника, возможно часть будет отведена под пряные травы и салат. Но ориентируемся на клубнику. На наземных грядках - все огородные культуры, кроме картошки Посилання на коментар Поділитися на інших сайтах More sharing options...
Dimakiev Опубліковано: 30 січня 2017 Автор Поділитись Опубліковано: 30 січня 2017 1. Подача воды - городской водопровод. 2. По всему участку установлен полив газона и клумб. В правом верхнем углу, если смотреть на схему, непосредственно возле крайней правой грядки, есть выход с коннектором для подключения поливочного шланга. Как понимаю - запитать воду можно от него. 3. Пока ручной полив, но с возможностью дальнейшего переоборудования, в будущем, на автоматический. 4. На вертикальных - однозначно будет расти клубника, возможно часть будет отведена под пряные травы и салат. Но ориентируемся на клубнику. На наземных грядках - все огородные культуры, кроме картошки 1. Тогда давление должно быть нормальным, значит только фильтр надо поставить. 2. Да конечно можно запитать, а полив для шланга оставить как есть и не трогать его, врезаться можно до шланга. 3. Без проблем можно так сделать, потом по желанию можно поставить будет клапан, и возможно можно будет подключится к уже установленному программатору. Хотя если он уже стоит, то можно поставить 1 клапан и уже готовый автоматический полив. 4. Тогда на вертикальные подойдет микрокапельный полив, что бы не сильно портить забор, микротрубку можно будет аккуратно спрятать. По поводу картошки, конечно на таких грядках не выращивают Стоимость завтра просчитаю и отправлю в личку. 1 Посилання на коментар Поділитися на інших сайтах More sharing options...
acea Опубліковано: 4 лютого 2017 Поділитись Опубліковано: 4 лютого 2017 Добрый вечер! Имеется участок перед домом вот такой формы и размеров. Газон уже есть. Весной буду прокладывать полив. Подскажите, какие дождеватели и куда ставить для полива? Участок желтого цвета-сильно горит от солнца т.к. рядом идет дорожка из тротуарной плитки. Посилання на коментар Поділитися на інших сайтах More sharing options...
Dimakiev Опубліковано: 5 лютого 2017 Автор Поділитись Опубліковано: 5 лютого 2017 Добрый вечер! Имеется участок перед домом вот такой формы и размеров. Газон уже есть. Весной буду прокладывать полив. Подскажите, какие дождеватели и куда ставить для полива? Участок желтого цвета-сильно горит от солнца т.к. рядом идет дорожка из тротуарной плитки. Добрый день. В Вашей случае подойдут только веерные дождеватели такого плана zet-climat.com.ua/dozhdevatel-tipa-sprey-hunter-PROS-00/ Серия Pros 04 Форсунки можно поставить разбрызгивающие Hunter 15А и 17А или МР ротаторы, тут дело вкуса уже. Поливать и те и те будет хорошо. Прокладывать трубу в Вашем случае вдоль дорожки надо будет. По поводу того что горит трава вдоль дорожки, интересный случай. Неужели у Вас так нагревается плитка, что на расстоянии более мета от дорожки желтеет трава ? Схему расположения дождевателей, отправлю в личку. Посилання на коментар Поділитися на інших сайтах More sharing options...
acea Опубліковано: 5 лютого 2017 Поділитись Опубліковано: 5 лютого 2017 Добрый день. В Вашей случае подойдут только веерные дождеватели такого плана zet-climat.com.ua/dozhdevatel-tipa-sprey-hunter-PROS-00/ Серия Pros 04 Форсунки можно поставить разбрызгивающие Hunter 15А и 17А или МР ротаторы, тут дело вкуса уже. Поливать и те и те будет хорошо. Прокладывать трубу в Вашем случае вдоль дорожки надо будет. По поводу того что горит трава вдоль дорожки, интересный случай. Неужели у Вас так нагревается плитка, что на расстоянии более мета от дорожки желтеет трава ? Схему расположения дождевателей, отправлю в личку. Спасибо Вам! Трава желтеет шириной см 30 Посилання на коментар Поділитися на інших сайтах More sharing options...
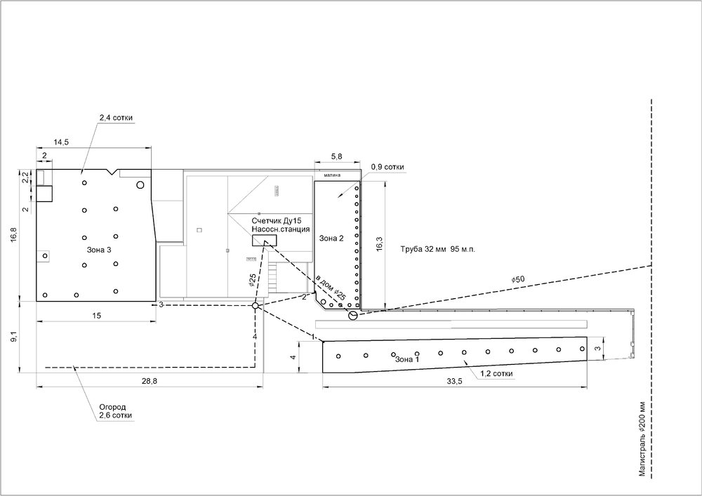
silver8848 Опубліковано: 6 лютого 2017 Поділитись Опубліковано: 6 лютого 2017 Дмитрий, добрый день! Есть газон 4,5 сотки. В прошлом году посадил и замахался поливать из шланга. Хочу сделать автополив. Есть несколько проблем которые не знаю как правильно решить. Имеем: Частный сектор, автополива по близости ни у кого нет и не будет, у многих во дворах колодцы. Магистральная труба по улице 200 мм. От нее ко мне на участок в колодец для врезки труба 50 мм (длина 50м.). В колодце врезался накладным хомутом 50/25 (просверленная дырочка примерно 15 мм), кран 25 мм и в дом заходит труба 25мм (длина 12 м). Счетчик Ду 15. Давление на манометре при закрытом кране 2 атм. При открывании падает на 0,1-0,2 атм. Для поднятия давления на автополив и водоснабжение в доме после счетчика буду ставить насосную станцию типа Pedrollo 4PKm80/ 24литра (nasos-m.com.ua/nasosi/nasosi_...o_4cpm80e.html) В руководстве по проектированию автополива пишут, что у счетчика 15 мм и трубы 25 мм пропускная способность 30 л/мин при 3,5 атм. Мне необходимо 60-62 л/мин при 3,5 атм. Такие характеристики (по таблице расчета автополива) возможны если счетчик 20 мм и труба 32 мм. Счетчик буду менять на 20 мм. Трубу тоже поменяю на 32 мм. Вопросы: 1.Отверстие на хомуте врезки (50/25) сейчас 15 мм, его нужно менять на хомут например 50/40, что бы можно было рассверлить отверстие побольше (хотя бы до 25-30 мм), потом редукционную муфту 40/25 и ставить кран 25 мм или оставить как есть и поменять только трубу на 32 мм. 2. В насосной станции присоединительные патрубки 1". То есть все краны можно ставить 25 мм (краны 32мм слишком дорогие), на врезке, на станции, на распределительном коллекторе автополива (кран 1" или эл.магнитный клапан 1")... при условии, что труба везде будет 32 мм. Таким заужением можно принебреч, это местное заужение которое не скажется на общей пропускной способности? 3. Может какой-то нюанс пропустил? Полив по зонам - включать только одну трубу 32 мм. Если не будет хватать воды, то врежу доп. краны и буду поливать поочередно только по одной трубе 25 мм. Пока прикинул по материалам Тройник 25/32/25-3 шт. Тройник 25/1/2нар/25-22шт. Колено 25/25-7шт. Колено 25/1/2 нар-14 шт. Тройник 32/25/32-1шт. Муфта 32/25-1шт. Труба 25-130м.п. Труба 32-95 м.п. Дождеватели PROS 04-30 шт. 12А(180 )- 4шт. 15А(180 )-5 шт. 17А (90 ) - 8 шт. 17А (135 ) - 1 шт. 17А (180 ) - 10 шт. 17А (360 ) - 2 шт. Счетчик Ду20-1шт. Эл. магн. клапан 3-шт. Скинте цены на материалы со скидками и свое мнение по схеме полива - заработает? Посилання на коментар Поділитися на інших сайтах More sharing options...
Dimakiev Опубліковано: 6 лютого 2017 Автор Поділитись Опубліковано: 6 лютого 2017 Дмитрий, добрый день! Есть газон 4,5 сотки. В прошлом году посадил и замахался поливать из шланга. Хочу сделать автополив. Есть несколько проблем которые не знаю как правильно решить. Имеем: Частный сектор, автополива по близости ни у кого нет и не будет, у многих во дворах колодцы. Магистральная труба по улице 200 мм. От нее ко мне на участок в колодец для врезки труба 50 мм (длина 50м.). В колодце врезался накладным хомутом 50/25 (просверленная дырочка примерно 15 мм), кран 25 мм и в дом заходит труба 25мм (длина 12 м). Счетчик Ду 15. Давление на манометре при закрытом кране 2 атм. При открывании падает на 0,1-0,2 атм. Для поднятия давления на автополив и водоснабжение в доме после счетчика буду ставить насосную станцию типа Pedrollo 4PKm80/ 24литра (nasos-m.com.ua/nasosi/nasosi_...o_4cpm80e.html) В руководстве по проектированию автополива пишут, что у счетчика 15 мм и трубы 25 мм пропускная способность 30 л/мин при 3,5 атм. Мне необходимо 60-62 л/мин при 3,5 атм. Такие характеристики (по таблице расчета автополива) возможны если счетчик 20 мм и труба 32 мм. Счетчик буду менять на 20 мм. Трубу тоже поменяю на 32 мм. Вопросы: 1.Отверстие на хомуте врезки (50/25) сейчас 15 мм, его нужно менять на хомут например 50/40, что бы можно было рассверлить отверстие побольше (хотя бы до 25-30 мм), потом редукционную муфту 40/25 и ставить кран 25 мм или оставить как есть и поменять только трубу на 32 мм. 2. В насосной станции присоединительные патрубки 1". То есть все краны можно ставить 25 мм (краны 32мм слишком дорогие), на врезке, на станции, на распределительном коллекторе автополива (кран 1" или эл.магнитный клапан 1")... при условии, что труба везде будет 32 мм. Таким заужением можно принебреч, это местное заужение которое не скажется на общей пропускной способности? 3. Может какой-то нюанс пропустил? Полив по зонам - включать только одну трубу 32 мм. Если не будет хватать воды, то врежу доп. краны и буду поливать поочередно только по одной трубе 25 мм. Пока прикинул по материалам Тройник 25/32/25-3 шт. Тройник 25/1/2нар/25-22шт. Колено 25/25-7шт. Колено 25/1/2 нар-14 шт. Тройник 32/25/32-1шт. Муфта 32/25-1шт. Труба 25-130м.п. Труба 32-95 м.п. Дождеватели PROS 04-30 шт. 12А(180 )- 4шт. 15А(180 )-5 шт. 17А (90 ) - 8 шт. 17А (135 ) - 1 шт. 17А (180 ) - 10 шт. 17А (360 ) - 2 шт. Счетчик Ду20-1шт. Эл. магн. клапан 3-шт. Скинте цены на материалы со скидками и свое мнение по схеме полива - заработает? Напишите пожалуйста Ваш номер телефона, можно в личку. Вопросов много и проще на них ответить по телефону. Так быстрее и понятнее будет. Что касательно материалом, я просчитаю и сброшу в личку. Форсунки Hunter 17А - это регулируемые форсунки. И Вы их самостоятельно регулируете под необходимый радиус полива. Есть 17А не регулируемый а уже с заданным сектором от производителя, но по моему нет смысла их покупать, так как Вы всегда сможете подрегулировать под Ваши требования. Тем более цена на них одинаковая. Жду телефон для связи. Посилання на коментар Поділитися на інших сайтах More sharing options...
Dimakiev Опубліковано: 7 лютого 2017 Автор Поділитись Опубліковано: 7 лютого 2017 Добрый день, Уважаемые форумчане. Хотелось бы Вас предостеречь, от подделок на рынке капельного полива. В этом году уже поступили в продажу, фитинги капельного полива. Позиционируется они как краны и соединительные фитинги под итальянский бренд Irritec. Краны и другие фитинги очень плохого качества, не выдерживают давление даже 2Атм, срывает флажок, и начинается фонтан. А так же при открытии и закрытии, поворотный механизм не выдерживает и ломается при 5-ти - 6-ти закрытиях/открытиях. Это фото подделки: Фото оригинал: И самое главное цена, оригинал стоит в пределах 30 грн. Подделка не более 10 грн. Если нет возможности ставить итальянский, то можно спокойно ставить турецкий или польский фитинг, который по качеству не хуже будет. 4 Посилання на коментар Поділитися на інших сайтах More sharing options...
atco Опубліковано: 11 лютого 2017 Поділитись Опубліковано: 11 лютого 2017 Подскажите, разводку автополива нужно делать до или после укладки газона? Посилання на коментар Поділитися на інших сайтах More sharing options...
gobiosoma Опубліковано: 11 лютого 2017 Поділитись Опубліковано: 11 лютого 2017 Подскажите, разводку автополива нужно делать до или после укладки газона? Естественно До . Можно и после, только это дороже и трудозатратней. Делали и так и так . Проблем никаких при монтаже только первое время видно что газон в местах укладки прорезан через 3 недели ничего уже не видно Посилання на коментар Поділитися на інших сайтах More sharing options...
Dimakiev Опубліковано: 13 лютого 2017 Автор Поділитись Опубліковано: 13 лютого 2017 Подскажите, разводку автополива нужно делать до или после укладки газона? Разводку полива делают по мере возможности. Не у всех есть возможность сделать полив, а потом делать газон. Многие годами в ручную поливают, а потом решают сделать только полив автоматический. Даже если газон уже присутствует на участке, то мы разрезаем газон, острым инструментом, потом берем специальную траншейную лопату 10см. в ширину. Аккуратно вынимаем на пленку грунт потом засыпаем и укладываем на место газон. После укладки на место полоски газона, проходит 2-3 недели и как ни чего не было. Посилання на коментар Поділитися на інших сайтах More sharing options...
atco Опубліковано: 13 лютого 2017 Поділитись Опубліковано: 13 лютого 2017 Разводку полива делают по мере возможности. Не у всех есть возможность сделать полив, а потом делать газон. Многие годами в ручную поливают, а потом решают сделать только полив автоматический. Даже если газон уже присутствует на участке, то мы разрезаем газон, острым инструментом, потом берем специальную траншейную лопату 10см. в ширину. Аккуратно вынимаем на пленку грунт потом засыпаем и укладываем на место газон. После укладки на место полоски газона, проходит 2-3 недели и как ни чего не было. Это все мне и так ясно.... до или после? Вопрос актуален... Посилання на коментар Поділитися на інших сайтах More sharing options...
aleks_a77 Опубліковано: 14 лютого 2017 Поділитись Опубліковано: 14 лютого 2017 (змінено) Добрый день, Дмитрий. Тема полива не даёт мне покоя длинными зимними вечерами. Очень надеюсь на Вашу помощь. Помогите пожалуйста определиться с количеством и стоимостью оборудования необходимого для обеспечения автоматического полива на дачном участке. Хотелось бы как раз начать с магистралей пока не высажены все растения и не сделан газон с дорожками. Предполагается, что огородик и тепличка это две отдельные зоны под капельный полив. Объём воды в колодце на три кольца, высота до зеркала 14 метров, как быстро наполняется ещё не знаю, так как ни разу не выкачивали полностью. Хотелось бы избежать дополнительной накопительной ёмкости. Сетка на плане метр на метр, изобразил как мог. Плодовые деревья уже высажены. Дачный домик, подпорные стенки и тепличка с высокими грядками построены. Что Вы можете посоветовать? Змінено 14 лютого 2017 користувачем aleks_a77 добавил картинку Посилання на коментар Поділитися на інших сайтах More sharing options...
Dimakiev Опубліковано: 15 лютого 2017 Автор Поділитись Опубліковано: 15 лютого 2017 Это все мне и так ясно.... до или после? Вопрос актуален... По правильному надо делать, сначала полив, а потом уже газон. Добавлено через 9 минут Добрый день, Дмитрий. Тема полива не даёт мне покоя длинными зимними вечерами. Очень надеюсь на Вашу помощь. Помогите пожалуйста определиться с количеством и стоимостью оборудования необходимого для обеспечения автоматического полива на дачном участке. Хотелось бы как раз начать с магистралей пока не высажены все растения и не сделан газон с дорожками. Предполагается, что огородик и тепличка это две отдельные зоны под капельный полив. Объём воды в колодце на три кольца, высота до зеркала 14 метров, как быстро наполняется ещё не знаю, так как ни разу не выкачивали полностью. Хотелось бы избежать дополнительной накопительной ёмкости. Сетка на плане метр на метр, изобразил как мог. Плодовые деревья уже высажены. Дачный домик, подпорные стенки и тепличка с высокими грядками построены. Что Вы можете посоветовать? Добрый день. В Вашем случае будет оптимальный вариант, это размещение веерных дождевателей с стандартными форсунками или MP ротаторы. На деревья Вы планируете капельный полив ? По правильному он им необходим. Деревья можно объединить в одну зону капельного полива. Теплица и грядки там все понятно, там капельная трубка со встроенными капельницами, шаг 25 см и 33 см. Между деревьями газон будет?, там полив необходим ? Какие параметра насоса ? Автоматика и клапана для управления полива необходима, или полив в ручном режиме будет включатся ? 1 Посилання на коментар Поділитися на інших сайтах More sharing options...
aleks_a77 Опубліковано: 15 лютого 2017 Поділитись Опубліковано: 15 лютого 2017 Добрый день. В Вашем случае будет оптимальный вариант, это размещение веерных дождевателей с стандартными форсунками или MP ротаторы. На деревья Вы планируете капельный полив ? По правильному он им необходим. Деревья можно объединить в одну зону капельного полива. Теплица и грядки там все понятно, там капельная трубка со встроенными капельницами, шаг 25 см и 33 см. Между деревьями газон будет?, там полив необходим ? Какие параметра насоса ? Автоматика и клапана для управления полива необходима, или полив в ручном режиме будет включатся ? Капельный полив предполагался только для теплички и огородика, скорее всего шаг 25 см. Деревья мы не думали выделять в отдельную зону с капельным поливом, так как между и вокруг деревьев будут ещё посадки из почвопокровников и прочего. Соответственно полив там необходим и он будет общим для этих зон и самих деревьев. Для подачи воды в дом установлен насос Водолей, кажется такой: nasos.com.ua/index.php/katalog-produktsii/btspe-0-5/btspe-0-5-25u Автоматика и клапана для управления поливом нужны. Для пульта предназначено монтажное место возле самой теплички. Посилання на коментар Поділитися на інших сайтах More sharing options...
Dimakiev Опубліковано: 16 лютого 2017 Автор Поділитись Опубліковано: 16 лютого 2017 Капельный полив предполагался только для теплички и огородика, скорее всего шаг 25 см. Деревья мы не думали выделять в отдельную зону с капельным поливом, так как между и вокруг деревьев будут ещё посадки из почвопокровников и прочего. Соответственно полив там необходим и он будет общим для этих зон и самих деревьев. Для подачи воды в дом установлен насос Водолей, кажется такой: nasos.com.ua/index.php/katalog-produktsii/btspe-0-5/btspe-0-5-25u Автоматика и клапана для управления поливом нужны. Для пульта предназначено монтажное место возле самой теплички. Я посмотрел параметры насоса, он не очень мощный, для подачи воды он подходит. Для полива надо будет разбивать полив на большее кол-во зон. Я тогда согласно Ваших пожеланий сделаю схему полива. Под деревья в бы все таки делал отдельный полив капельный, так как деревьям надо большой объем воды все таки при поливе. Дождевателями деревья полить нельзя, так как там только поверхностный полив, а деревьям нужен глубокий корневой полив. Напишите мне почту, можно в личку, что бы схему сбросить. 1 Посилання на коментар Поділитися на інших сайтах More sharing options...
aleks_a77 Опубліковано: 18 лютого 2017 Поділитись Опубліковано: 18 лютого 2017 Напишите мне почту, можно в личку, что бы схему сбросить. Спасибо! Сбросил в личку почтовый адрес. А насос я готов и поменять, если что Посилання на коментар Поділитися на інших сайтах More sharing options...
silver8848 Опубліковано: 19 лютого 2017 Поділитись Опубліковано: 19 лютого 2017 В руководстве про проектированию пишут, что к последнему дождевателю должна идти труба 20 мм. Это обязательно? Или если везде проложена труба 25 мм, то ее можно использовать и последнем участке тоже, что бы не заморачиваться с разными диаметрами? У меня по схеме есть места, где последний дождеватель потребляет воды больше, чем предыдущие дождеватели. Вот и думаю хватит ли ему трубы 20 мм. Посилання на коментар Поділитися на інших сайтах More sharing options...
Dimakiev Опубліковано: 20 лютого 2017 Автор Поділитись Опубліковано: 20 лютого 2017 В руководстве про проектированию пишут, что к последнему дождевателю должна идти труба 20 мм. Это обязательно? Или если везде проложена труба 25 мм, то ее можно использовать и последнем участке тоже, что бы не заморачиваться с разными диаметрами? У меня по схеме есть места, где последний дождеватель потребляет воды больше, чем предыдущие дождеватели. Вот и думаю хватит ли ему трубы 20 мм. Нет не обязательно. Если Вы проложили трубу 25мм, то полив у Вас будет работать ни чуть не хуже, чем с переходом трубы. Не заморачивайтесь, оставляете как есть. Я при монтаже использую как основную трубу 32мм, а отводы 25мм, но 20 мм, я ни когда не использовал. 1 Посилання на коментар Поділитися на інших сайтах More sharing options...
Lampik Опубліковано: 26 лютого 2017 Поділитись Опубліковано: 26 лютого 2017 Добрый день! Занимаетесь ли вы разработкой и созданием полива "под ключ"? Участок 12 соток. Киевская обл, Васильковский р-н. Посилання на коментар Поділитися на інших сайтах More sharing options...
Dimakiev Опубліковано: 27 лютого 2017 Автор Поділитись Опубліковано: 27 лютого 2017 Добрый день! Занимаетесь ли вы разработкой и созданием полива "под ключ"? Участок 12 соток. Киевская обл, Васильковский р-н. Добрый день. Да конечно занимаемся и в Васильковском р-не у нас есть объекты которые уже сданы. Сообщите пожалуйста как с Вами связаться или можете меня набрать 067 1008888, 050 3719090 Дмитрий. 1 Посилання на коментар Поділитися на інших сайтах More sharing options...
olekss Опубліковано: 28 лютого 2017 Поділитись Опубліковано: 28 лютого 2017 Добрый день, Есть садовый участок с травой самосадом и деревьями. Планирую уложить трубы под полив, установить краники и тд. на будущее. На первое время думаю установить 3 роторных дождевателя Hunter PGP ADJ, с радиусом покрытия 10м на форсунке №7. Насос первое время будет БЦ1.1 с напором 20м. На потери набрасываем 0,3бар. Вопрос следующий: согласно табл. Hunter PGP ADJ на давлении 1.7 бар дает длину 10.1 м. Такое покрытие (10.1 м) достижимо на практике? В дальнейшем насос поменяю и увеличу зоны полива и перекрытий, чтобы не было пробелов. СпасибоSII135H+H-LB11 _ -4. Ландшафт Полив .pdf Посилання на коментар Поділитися на інших сайтах More sharing options...
Dimakiev Опубліковано: 1 березня 2017 Автор Поділитись Опубліковано: 1 березня 2017 Добрый день, Есть садовый участок с травой самосадом и деревьями. Планирую уложить трубы под полив, установить краники и тд. на будущее. На первое время думаю установить 3 роторных дождевателя Hunter PGP ADJ, с радиусом покрытия 10м на форсунке №7. Насос первое время будет БЦ1.1 с напором 20м. На потери набрасываем 0,3бар. Вопрос следующий: согласно табл. Hunter PGP ADJ на давлении 1.7 бар дает длину 10.1 м. Такое покрытие (10.1 м) достижимо на практике? В дальнейшем насос поменяю и увеличу зоны полива и перекрытий, чтобы не было пробелов. Спасибо Добрый день Я посмотрел Ваш чертеж. Вы хотите поставить 3 ротора, их однозначно не хватает. Вам необходимо для правильного полива поставить еще как минимум 2. Правда навряд ли потянет насос уже. Да если смотреть на эту таблицу zet-climat.com.ua/rotornyy-dozhdevatel-hunter-pgp-adj/, действительно диаметр 10,1 метра, НО НЕ ДЛИНА В ОДНУ СТОРОНУ Обратите на это внимание !!! Длина получается 5 метров, у одного дождевателя в сторону от дождевателя, поэтому Вы ни как не сможете 3-мя дождевателями перекрыть весь участок. Обратите внимание на МР ротаторы вот такой zet-climat.com.ua/forsunka-rotator-mr-100090/, они перекрывают ту же зону, полива, но им необходимо меньшее давление, и Вы сможете перекрыть весь участок не меняя насос. Роторные дождеватели рассчитаны все таки под насосы большей мощности. 1 Посилання на коментар Поділитися на інших сайтах More sharing options...
olekss Опубліковано: 1 березня 2017 Поділитись Опубліковано: 1 березня 2017 Вот! Диаметр 10,1 , а не радиус. В таблице указан - "Радиус". (Зачем людей вводят в заблуждение??) Спасибо. пререстрою схему с учетом ваших корректировок. Посилання на коментар Поділитися на інших сайтах More sharing options...
Рекомендовані повідомлення
Створіть акаунт або увійдіть у нього для коментування
Ви маєте бути користувачем, щоб залишити коментар
Створити акаунт
Зареєструйтеся для отримання акаунта. Це просто!
Зареєструвати акаунтУвійти
Вже зареєстровані? Увійдіть тут.
Увійти зараз