Igor1959 Опубліковано: 12 вересня 2016 Поділитись Опубліковано: 12 вересня 2016 Доброго всем времени суток! . Перепланировка еще не началась, а муки уже есть. Итак, имеется двухкомнатная квартира на третьем этаже в 9-ти этажном панельном доме конца 70-х годов постройки. 1 Посилання на коментар Поділитися на інших сайтах More sharing options...
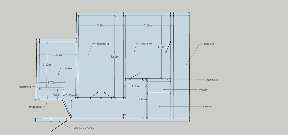
Igor1959 Опубліковано: 12 вересня 2016 Автор Поділитись Опубліковано: 12 вересня 2016 По тем временам это была вполне приличная квартира, кухня уже 7м.кв. , раздельные ванная и туалет, лоджия огромная, гостинная 18мкв. То, что квартира довольно неудобная, стало понятно быстро, но тогда ни времени, ни главное средств на доработку не было. Желание перепланировать появилось лет 7 назад, скорее желание жены, чем мое, так как я прекрасно понимал, что значит дробить бетон, переставляя стены. Поэтому и сопротивлялся идее как мог. Предлагал жене поменять квартиру на другую, с лучшей планировкой, но идея не нашла поддержки.В принципе логично, на обмен уйдет н-нная сума денег, а потом в ремонт нужно еще вложиться. Второй довод-довольно приличное расположение дома. Вроде и на окраине города, но как-то так что в любой конец есть транспорт, тут же два супермаркета, АТБ и Квартал, баня в 20-ти минутах ходьбы, а главное-Эпицентр в двух остановках и база ОПС в одной. Да, забыл еще о прекрасном парке прямо через дорогу от дома. Вот и приходится, скрепя сердцем и чухая затылок, соглашаться на перепланировку. Но так как задача пере до мной стоит непростая, то и обращаюсь за помощью к Форуму. Итак, что не нравится в планировке. Первое-входная дверь-она под углом! И развернуть ее под прямой не получится, так как рядом дверь соседа! И так по всему стояку! Я понимаю,панель-то не кирпич, но все равно, как так можно было планиривать!? Второе-узкий длинный коридор.Всего 130см, ( на плане забыл указать) . Нормальные шкафы не поставишь-пройти будет тесно. Целых 5 м.кв. практочески не используются. Дальше-кладовка сразу налево от входной двери. Это даже не кладовка, а длинная узкая ниша.Как я только не пытался ее апгрейдить, в итоге-как былл срачесборник, так и остался. Идем дальше-гостинная.Ну, трамвай он и есть трамвай, тут и комментировать нечего. Кухня-более-менее приличное помещение, хотя и маловато. Тут мы с женой в основном и обитаем, когда приезжаем с дачи на 2-3 дня. Туалет и ванная-а что о них говорить, они у всех одинаково крошечные. Спальня-тоже случай не из легких. По центру восточной стороны-выход на лоджию. Северовосточный угол-две батареи , под окном на север и по направлению к вери на востоке(квартирка-то угловая). А так да, неплохая спальня, целых 12 м.кв. Ну и наконец, лоджия. По квадратуре-песня, а вот по форме-урод.Опять длинная и узкая полоска. Еще раз повторяю, после хрущевской пятиэтажки с ее балконом-скворечником эта лоджия казалась шыкарной. Но время идет.... И вот ЭТУ квартиру хочется превратить в приличное жилье. Стал рыться в Инете и и обнаружил, что на мой случай а и нет практически ничего. Встречаются трехкомнатные с похожей планировкой, но там дома кирпичные, гостинная уже квадратная, там в принципе и переделывать ничего не надо. Вот и обращаюсь к форумчанам, может у кого есть опыт перепланировки таких квартир, как у меня? Посилання на коментар Поділитися на інших сайтах More sharing options...
Igor1959 Опубліковано: 12 вересня 2016 Автор Поділитись Опубліковано: 12 вересня 2016 Вот так квартира выглядит сейчас. Посилання на коментар Поділитися на інших сайтах More sharing options...
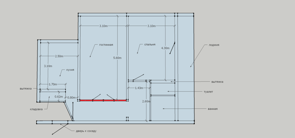
Igor1959 Опубліковано: 12 вересня 2016 Автор Поділитись Опубліковано: 12 вересня 2016 Пока буду выкладывать свои хотелки, и надеюсь на подсказки опытных ( не только) форумчан. Начну с того, что не требует особого труда. Красным отмечено, что планируется убрать. Туалет совместить с ванной, дверь в спальню сдвинуть влево, расширить ванную комнату до 4,5 м.кв. Посилання на коментар Поділитися на інших сайтах More sharing options...
Igor1959 Опубліковано: 12 вересня 2016 Автор Поділитись Опубліковано: 12 вересня 2016 Далее, стена отделяющая гостинную от коридора. Тут есть варианты. Можно убрать ее совсем, (на чем настаивает моя вторая половина, ну не ей же с перфоратором работать). Я не согласен. В гостинной и так чувствуешь себя как в трамвае, а если убрать стенку, получится вагон поезда. Есть вариант отделить гостинную от коридора деревянной раскладкой, как на фото. Сдвинув эту этажерку внутрь гостинной, я увеличиваю ширину коридора до 140-145 см, что уже достаточно для размеюения в коридоре шкафов вдоль стены, и нормального прохода к ванной-спальне. Посилання на коментар Поділитися на інших сайтах More sharing options...
videofun19 Опубліковано: 31 жовтня 2016 Поділитись Опубліковано: 31 жовтня 2016 а які стіни капітальні? кладовку в кухні можна прибрати, але чи можна це робити залежить від стіни 1 Посилання на коментар Поділитися на інших сайтах More sharing options...
Andrew71 Опубліковано: 31 жовтня 2016 Поділитись Опубліковано: 31 жовтня 2016 Кухня... Тут мы с женой в основном и обитаем, когда приезжаем с дачи на 2-3 дня. может быть Вы еще раз подумаете, во что лучше вкладываться, в дачу или квартиру? пс. но коль кухня и прихожая/коридор ваш приоритет, то, на мой взгляд, лучше перенести стену гостинной, обозначенную красным, до уровня стены спальни (где вытяжка). объеденить кухню и гостинную в студио. Получите "большую" кухню, на которой будете обитать, в свободное от дачи время, и большой коридор-прихожую, решив и проблему косой двери. Посилання на коментар Поділитися на інших сайтах More sharing options...
Рекомендовані повідомлення
Створіть акаунт або увійдіть у нього для коментування
Ви маєте бути користувачем, щоб залишити коментар
Створити акаунт
Зареєструйтеся для отримання акаунта. Це просто!
Зареєструвати акаунтУвійти
Вже зареєстровані? Увійдіть тут.
Увійти зараз