Realtenvest Опубліковано: 8 лютого 2017 Поділитись Опубліковано: 8 лютого 2017 (змінено) г.Бровары, новый массив города, центр, новый дом 120кв.м,два этажа, под качественную чистовую отделку. В доме 4 комнаты, 2 с/у, лестница на второй этаж. Дом обшит и утеплен. Все коммуникации (газ, электричество) заведены и разведены по дому, есть проектная документация. Земельный участок 5 сот. Забор с клинкерного кирпича, терраса. Есть двойной переливной септик, скважина. Соблюдены все нормы строительства. Соседи построены. Удобная транспортная развязка. Дом введён в эксплуатацию, готовы все документы к продаже. Цена:65т.у.е без комиссии! Срочно! Дополнительная информация по телефону: 0676594460; 0636061104; 0953489347 Змінено 15 лютого 2017 користувачем Dr.Yura шрифт жирний Посилання на коментар Поділитися на інших сайтах More sharing options...
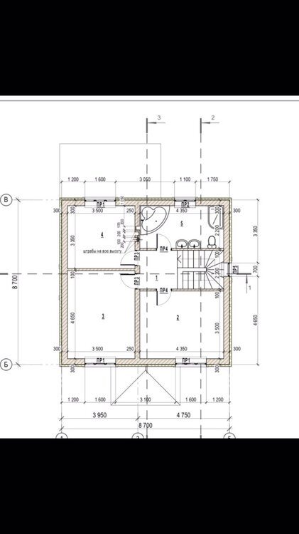
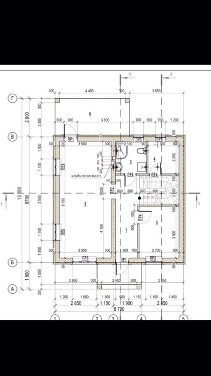
Willya Опубліковано: 9 лютого 2017 Поділитись Опубліковано: 9 лютого 2017 Еще бы планировку увидеть 1 Посилання на коментар Поділитися на інших сайтах More sharing options...
Рыжая Рыжая Опубліковано: 9 лютого 2017 Поділитись Опубліковано: 9 лютого 2017 Красавчик! Посилання на коментар Поділитися на інших сайтах More sharing options...
Realtenvest Опубліковано: 10 лютого 2017 Автор Поділитись Опубліковано: 10 лютого 2017 Высылаю планировку Посилання на коментар Поділитися на інших сайтах More sharing options...
Дачница Лена Опубліковано: 10 лютого 2017 Поділитись Опубліковано: 10 лютого 2017 , новый массив города, центр, А где это такое? Посилання на коментар Поділитися на інших сайтах More sharing options...
wipe Опубліковано: 10 лютого 2017 Поділитись Опубліковано: 10 лютого 2017 продавец от бога, прошу прощения. Посилання на коментар Поділитися на інших сайтах More sharing options...
Realtenvest Опубліковано: 13 лютого 2017 Автор Поділитись Опубліковано: 13 лютого 2017 Я конечно извеняюсь, а что Вам не нравится в продавце???????????? Посилання на коментар Поділитися на інших сайтах More sharing options...
Willya Опубліковано: 13 лютого 2017 Поділитись Опубліковано: 13 лютого 2017 Дабавте еще внутренние фото. Посилання на коментар Поділитися на інших сайтах More sharing options...
Realtenvest Опубліковано: 15 лютого 2017 Автор Поділитись Опубліковано: 15 лютого 2017 Внутренние фото дома Посилання на коментар Поділитися на інших сайтах More sharing options...
wipe Опубліковано: 15 лютого 2017 Поділитись Опубліковано: 15 лютого 2017 Я конечно извеняюсь, а что Вам не нравится в продавце???????????? Если я хочу что то продать, то прилагаю к этому массу усилий, если хочу продавать, то можно и не париться, дальше пояснять ? курс составления объявления привлекательного для покупателя прочесть ? 1 Посилання на коментар Поділитися на інших сайтах More sharing options...
Realtenvest Опубліковано: 20 лютого 2017 Автор Поділитись Опубліковано: 20 лютого 2017 Всем спасибо) Закройте, пожалуйста, тему, дом продан)) 1 Посилання на коментар Поділитися на інших сайтах More sharing options...
Рекомендовані повідомлення
Створіть акаунт або увійдіть у нього для коментування
Ви маєте бути користувачем, щоб залишити коментар
Створити акаунт
Зареєструйтеся для отримання акаунта. Це просто!
Зареєструвати акаунтУвійти
Вже зареєстровані? Увійдіть тут.
Увійти зараз