Перейти до публікації
Пошук в
  • Додатково...
Шукати результати, які містять...
Шукати результати в...

Проект дома с мансардой

UEY

Рекомендовані повідомлення

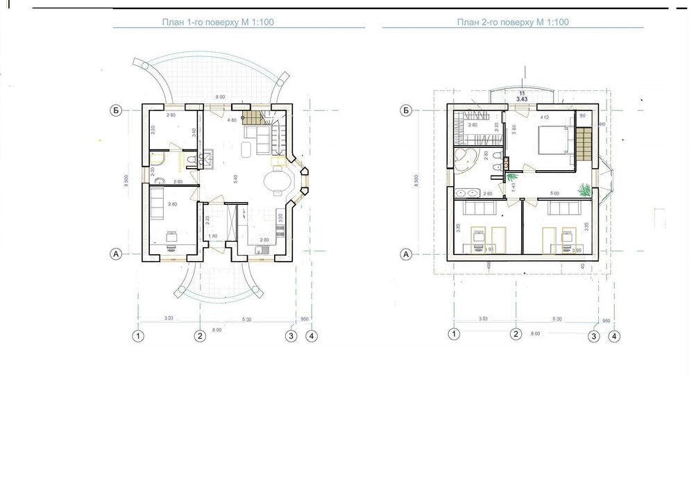
Всем доброго времени суток.

Имеется участок 15 соток 25*60, вход с юга. В доме будут проживать постоянно 2-взрослых и 2-ребенка. Приглянулся польский проект одноэтажного дома с мансардой "Кармелита мала" в котором понравились фасады и частично планы.Высоту мансардного этажа планируем увеличить так что бы расстояние от пола до начала скоса мансарды было плюс минус 1,6м. Думали, рисовали, и в итоге получилась вот такая планировка. Покритикуйте пожалуйста.

1912615655_1.jpg.038dbab1b5ff75859f3f66069fc6b32d.jpg

1545968042_2.jpg.320d750785a266b96e1c6982b316424f.jpg

1480732378_.thumb.jpeg.ff570e39f7379ae4813b39d96c2b9630.jpeg

Посилання на коментар
Поділитися на інших сайтах

проект одноэтажного дома с мансардой

 

это двухэтажный дом и не важно как выполнен второй этаж.

 

Можно использовать пространство под лестницей.

Посилання на коментар
Поділитися на інших сайтах

Створіть акаунт або увійдіть у нього для коментування

Ви маєте бути користувачем, щоб залишити коментар

Створити акаунт

Зареєструйтеся для отримання акаунта. Це просто!

Зареєструвати акаунт

Увійти

Вже зареєстровані? Увійдіть тут.

Увійти зараз
×
×
  • Створити...