Перейти до публікації
Пошук в
  • Додатково...
Шукати результати, які містять...
Шукати результати в...

Монтаж парапетов плоской кровли

JohnnyD

Рекомендовані повідомлення

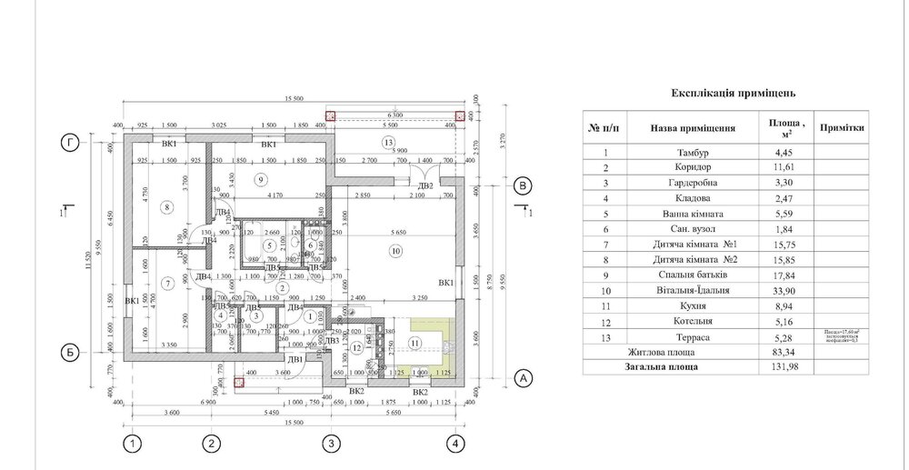
Необходим монтаж парапетов(металл) по периметру плоской кровли. План дома(изменение только по ширине блока - по факту 500 мм) и вид сбоку парапета во вложении.

Что нужно сделать:

1) разметка и порезка бруса (50х40), замачивание в Гладиатор 3.

2) монтаж бруса с шагом 40 см к основанию (газоблок D300 500 мм)

3) монтаж Z-планок к брусу

4) монтаж парапетов и крепление к брусу

Парапеты длиной 2 м. Между собой крепить на планку (пример во вложении). Подрезка механическая, без болгарок.

Ориентировочный срок работ: конец июня - начало июля.

До момента монтажа кровля будет покрыта гидроизоляцией. Одним из необходимых условий является аккуратность, не повредить.

 

Месторасположение: Вышгородский р-н, с.Новоселки. Все условия для проживания имеются.

Прошу вопросы и предложения задавать по e-mail: johnny_1@ukr.net, кроме "звоните договоримся".

 

P.S. Не откажусь от рекомендаций исполнителя

7d0bf54e27c3073af34ec15708e076f9.jpg.f1506ca095ee7f8a1a68ea46cfdd011c.jpg

619315013_4.thumb.jpg.c55ccdb2fecf2a158e24617346f403d1.jpg

487395931_239.thumb.jpg.3f2868026dc228189b2ddde3d75dd21c.jpg

Посилання на коментар
Поділитися на інших сайтах

  • 2 тижні потому...
Все еще нуждаюсь в монтаже. Парапеты будут доставлены завтра и после оценки можно приступить.
Посилання на коментар
Поділитися на інших сайтах

Створіть акаунт або увійдіть у нього для коментування

Ви маєте бути користувачем, щоб залишити коментар

Створити акаунт

Зареєструйтеся для отримання акаунта. Це просто!

Зареєструвати акаунт

Увійти

Вже зареєстровані? Увійдіть тут.

Увійти зараз
×
×
  • Створити...