Mickael Опубліковано: 6 грудня 2017 Поділитись Опубліковано: 6 грудня 2017 И опять я на шаг впереди. Все подал. 25-го уже должен быть ответ ))) Посилання на коментар Поділитися на інших сайтах More sharing options...
111zerg111 Опубліковано: 7 грудня 2017 Автор Поділитись Опубліковано: 7 грудня 2017 И опять я на шаг впереди. Все подал. 25-го уже должен быть ответ ))) ну я то землю оформил только в сентябре , а вообще это стратегический ход ;) я жду пока другие шишки понабивают , а я сделаю выводы и быстренько правильным путем Кста хотел спросить, а ты подавал уведомление в МЧС и сельсовет? Где то тут читал, что надо сразу с тем как подаешь в ДАБИ, подавать и в эти органы, чтоб не было потом штрафа. МЧС КС района погуглил вродь в Вишневом . Надо будет тоже заскочить узнать шо да как. Посилання на коментар Поділитися на інших сайтах More sharing options...
Gitan Опубліковано: 7 грудня 2017 Поділитись Опубліковано: 7 грудня 2017 Не нужно подавать уведомление в МЧС. Только в ДАБИ 1 Посилання на коментар Поділитися на інших сайтах More sharing options...
Друида Опубліковано: 7 грудня 2017 Поділитись Опубліковано: 7 грудня 2017 Подпишусь. ООООчень советую кроме планировки сделать проект . Это позволит съэкономить КУЧУ денег ,избежать многих ошибок исделать весь процесс более эффективным. Посилання на коментар Поділитися на інших сайтах More sharing options...
111zerg111 Опубліковано: 7 грудня 2017 Автор Поділитись Опубліковано: 7 грудня 2017 Подпишусь. ООООчень советую кроме планировки сделать проект . Это позволит съэкономить КУЧУ денег ,избежать многих ошибок исделать весь процесс более эффективным. Спасибо за совет. Но проекта не будет. Все в голове ))) заказывать проект на квадратную коробку как по мне то лишнее. Тем более что боль мень определился что как и из чего. Хотя решения меняются с незавидной скоростью (( Планировал УШП , потом подумал про мышей как то стремно стало, теперь думаю по поводу метал сетки от мышей или вообще уйти от УШП и лить просто плиту с утепленной отмосткой . Короче много вопросов и нюансов но общая концепция неизменна ))) Плита по подготовленной подбетонке с дренажом Стены Газоблок с утеплителем Холодный чердак с утепленным чердачным перекрытием Принудительная вентиляция с рекуперацией Обогрев теплыми полами без радиаторов Посилання на коментар Поділитися на інших сайтах More sharing options...
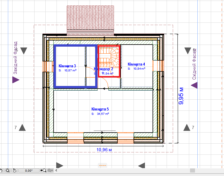
111zerg111 Опубліковано: 7 грудня 2017 Автор Поділитись Опубліковано: 7 грудня 2017 Скину так сказать на общий суд поэтажные ))) Критику воспринимаю болезненно , но тем не менее всегда учитываю мнение других и особо дельные советы Посилання на коментар Поділитися на інших сайтах More sharing options...
vadimv Опубліковано: 7 грудня 2017 Поділитись Опубліковано: 7 грудня 2017 (змінено) Критику воспринимаю болезненно , но тем не менее всегда учитываю мнение других и особо дельные советы ИМХО: 1. Один совмещенный санузел на 4 спальни - катастрофически мало. 2. Второй этаж без санузла - очень спорно. 3. Лестница с забежными ступенями - неудобно и опасно. Ее в принципе можно заменить на лестницу с площадкой, если повернуть на 90 градусов, место позволяет. 4. Двери в спальни и на кухню необязательно открывать в коридор. 5. За счет разворота лестницы можно увеличить спальню на втором этаже. Змінено 7 грудня 2017 користувачем vadimv 1 Посилання на коментар Поділитися на інших сайтах More sharing options...
111zerg111 Опубліковано: 7 грудня 2017 Автор Поділитись Опубліковано: 7 грудня 2017 ИМХО: 1. Один совмещенный санузел на 4 спальни - катастрофически мало. 2. Второй этаж без санузла - очень спорно. 3. Лестница с забежными ступенями - неудобно и опасно. Ее в принципе можно заменить на лестницу с площадкой, если повернуть не 90 градусов, место позволяет. 4. Двери в спальни и на кухню необязательно открывать в коридор. 5. За счет разворота лестницы можно увеличить спальню на втором этаже. Постараюсь ответить)) 1. с/у один, пока совмещенный потом посмотрим может и разделю По поводу того что мало не думаю. Семья 4 человека, живем в квартире с одним с/у , хватает более чем У сестры дом в два этажа и площадью в два раза больше этого и с двумя с/у один на первом второй на втором. На втором этаже не пользуются вообще. Используется он только пару раз в год , когда к ним приезжает много гостей. Семья у них тоже 4 человека ))) поэтому я так подумал и решил что нам вполне достаточно, а на время когда будут гости или еще кто то ну перебьемся как то день два. Ради этого выделять площадь под еще один с/у как то считаю не рационально. 2. Описано выше, как по мне спорно его присутствие там )) тем более что второй этаж в проекте хз еще когда будет. В приоритете первый и заселиться , а второй будем делать уже походу. Если к тому моменту что то поменяется то не проблема над с/у снизу сделать такой же сверху вместо комнаты. Но об этом я буду думать уже когда будет закончен первый этаж 3. Лестница это моя больная тема не получалось у меня сделать ее с площадкой , в калькуляторах )) пришлось делать винтовую. Но за совет спасибо эту тему еще буду курить не один день и думать что и как лучше с ней сделать. 4. О тут я согласен , открывание дверей будет определяться по месту когда станут стены , это пока предварительное решение. Вообще что касается кухни то там может и не быть двери вовсе или быть не распашная дверь, а раздвижная (мне нравиться такое решение) 1 Посилання на коментар Поділитися на інших сайтах More sharing options...
Друида Опубліковано: 7 грудня 2017 Поділитись Опубліковано: 7 грудня 2017 Скину так сказать на общий суд поэтажные ))) Критику воспринимаю болезненно , но тем не менее всегда учитываю мнение других и особо дельные советы И я поумничаю из своего опыта: 1.Санузел на 2 этаже все же нужен:спят все ,как правило, наверху, вниз по лестнице ночью в туалет ( а еще малышня )- не сильно удобно. Дом-это не квартира в общем скворечнике,за деньги, вложенные в свою стройку ,думаю, нужно делать максимально для себя уютно и комфортно.ИМХО после года жизни в доме.Очень себя пилю за некоторые вещи из серии "и так хорошо будет". 2.Кухня ,отдельная от гостиной- мне кажется правильно и удобно .Но лучше, чтобы из кухни попадали сразу в гостиную , а не через коридор . Я бы еще одну дверь сделала,в стене между гостиной и кухней. 3.Для чего будете использовать комнату на 2 этаже : если как бильярдная или спортзал ( игровая) - нормально. Если спальня- будет неуютно . У нас 35м2,это много , нет того уюта ,сильно просторно. Сейчас думаем, как пространство зрительно уменьшить 4.Еще на первом этаже очень удобно иметь хоть небольшую гардеробную.Шкафа будет мало на семью с детьми.Иначе спальня на 1 этаже превратится в место для переодевания и глажки -досушки белья . Техническое помещение в 1 эмаже-это котельная ? Думаю, получит ли Ваша супруга там пару метров на кладовку под кастрюли и ящик для принадлежностей для уборки.... 1 Посилання на коментар Поділитися на інших сайтах More sharing options...
vadimv Опубліковано: 8 грудня 2017 Поділитись Опубліковано: 8 грудня 2017 что касается кухни то там может и не быть двери вовсеИМХО, если уж делать отдельную кухню - то с дверью. Ну там, рыбу пожарить... 1 Посилання на коментар Поділитися на інших сайтах More sharing options...
111zerg111 Опубліковано: 8 грудня 2017 Автор Поділитись Опубліковано: 8 грудня 2017 И я поумничаю из своего опыта: 1.Санузел на 2 этаже 2.Кухня ,отдельная от гостиной 3.Для чего будете использовать комнату на 2 этаже 4.Еще на первом этаже очень удобно иметь хоть небольшую гардеробную.. Отвечаю )))) 1. с/у на втором ну не думаю что это рационально. Ну не бегаем же мы каждые пол часа в туалет. Понимаю что будет определенный дискомфорт или когда будут гости. Но не считаю это критичным. И мы и дети намного чаще бегаем на кухню (ну там воды попить, прихомячить что нить) так что теперь и кухню на втором тоже дублировать? и опять таки к с/у на втором этаже я вернусь после постройки первого и заселения. Может даже специально гильзу заложу в перекрытии чтоб если все таки надумаю не было проблем сделать, а если не надумаю то замурую ее. 2. Тут зрите в корень. Тоже об этом думаю а жена так вообще хочет совместить с гостиной и сделать студио. Но мне как то не хочется убирать такой кусок несущей стены которая будет продолжаться и на второй этаж и потом будет еще служить опорой для стропильной системы(( 3. Пока не знаю ))) хай буде как в том анекдоте "а це под помидоры" Вообще думаю поставить там теннисный стол. Или оставить как зал. Или разделить пополам и сделать 2 меньшие комнаты. Из того же разряда буду думать после первого этажа 4. По поводу гардеробной и техпомещения могу сказать что будет место под лестницей как раз для этих целей по типу кладовки. А что касается техпомещения не уверен что смогу выделить там что то для жены , так как там будет довольно много всего и так, но посмотрим. Для жены я сделаю много шкафчиков на кухне - будет буквой П Добавлено через 1 минуту ИМХО, если уж делать отдельную кухню - то с дверью. Ну там, рыбу пожарить... Тоже согласен, запахи они такие .... поэтому и склонен к сдвижной двери Добавлено через 2 минуты Не нужно подавать уведомление в МЧС. Только в ДАБИ И еще одна новость ))) сегодня сдал уведомление о начале строительства сказали 10.01.2018 будет ответ приняли или нет и таки в ДАБИ подтвердили что больше никуда уведомления подавать не нужно никаких МЧС и сельсоветов так что ждем регистрации и по весне начнем потихоньку лопаткой копать котлован )))) шутка 1 Посилання на коментар Поділитися на інших сайтах More sharing options...
Друида Опубліковано: 8 грудня 2017 Поділитись Опубліковано: 8 грудня 2017 Отвечаю )))) 2. Тут зрите в корень. Тоже об этом думаю а жена так вообще хочет совместить с гостиной и сделать студио. Но мне как то не хочется убирать такой кусок несущей стены которая будет продолжаться и на второй этаж и потом будет еще служить опорой для стропильной системы(( Студия-это по сути жизнь на кухне.Вытяжка ,запахи,если гости в доме- гора сменяемой посуды за спиной.Глаз постоянно "спотыкается" на брошенные домочатцами недомытые чашки... 1 Посилання на коментар Поділитися на інших сайтах More sharing options...
Sumchanka Опубліковано: 8 грудня 2017 Поділитись Опубліковано: 8 грудня 2017 Вставлю свои пять копеек,точнее словечек: 1)с/у на втором этаже-считаю ,что должен быть, пусть даже небольшой. У нас на втором этаже постоянно живёт пока дочка (хотя и мы должны, но жизнь распорядилась по другому)-студентка. К ней приходят друзья,подружки. Их жизнь кипит наверху-никто,никому не мешает. Родственники иногда заезжают с ночевкой. С/у второго этажа -нужная вещь. Там где у Вас комната N3 на втором этаже, я бы запланировала небольшой с/у и гардероб нужно сень нужная вещь-в шкафах все не спрячешь... 2) по кухне с гостинной-я за раздвижную систему. У себя так запланировали между кухней и столовой. 3) по лестнице-считайте,рисуйте-все получится. У мамы винтовая лестница-неудобно, но там совсем места было чуть-чуть... У Вас достаточно, соглашусь с Вадимом. 1 Посилання на коментар Поділитися на інших сайтах More sharing options...
Татьяна5 Опубліковано: 9 грудня 2017 Поділитись Опубліковано: 9 грудня 2017 Скину так сказать на общий суд поэтажные ))) Критику воспринимаю болезненно , но тем не менее всегда учитываю мнение других и особо дельные советы Увы, но таки критика - бестолковая и неудобная, морально устаревшая планировка. Смысл стоить новый дом? Неудобная лестница, санузел, бестолковый тамбур и тп - лучше меньше, но продуманные. Имхо 1 Посилання на коментар Поділитися на інших сайтах More sharing options...
Друида Опубліковано: 9 грудня 2017 Поділитись Опубліковано: 9 грудня 2017 Увы, но таки критика - бестолковая и неудобная, морально устаревшая планировка. Смысл стоить новый дом? Неудобная лестница, санузел, бестолковый тамбур и тп - лучше меньше, но продуманные. Имхо Да, вместо тамбура - веранда ( открытая или закрытая )окно кухни перенести так, чтобы смотрело на веранду ( или добавить второе окно), и было можно передавать посуду-еду на веранду. А веранда не меньше 15 м2 На веранде с весны до осени вся жизнь прроисходит. 1 Посилання на коментар Поділитися на інших сайтах More sharing options...
111zerg111 Опубліковано: 10 грудня 2017 Автор Поділитись Опубліковано: 10 грудня 2017 Увы, но таки критика - бестолковая и неудобная, морально устаревшая планировка. Смысл стоить новый дом? Неудобная лестница, санузел, бестолковый тамбур и тп - лучше меньше, но продуманные. Имхо Ну раз критика, то тогда давайте аргументированно ))) в чем бестолковость, неудобство и моральное устаревание данной планировки? Смысл строить новый дом в том чтоб переехать из квартиры. По поводу лестницы, писал выше, буду думать над этим. В чем неудобство с/у? По поводу тамбура - его роль лишь в том чтоб отсекать воздушные потоки при попадании в дом и не более. ну может еще ноги о коврик вытереть не под дождем. Никакой практической нагрузки он более не несет и нести не будет)) и тд 1 Посилання на коментар Поділитися на інших сайтах More sharing options...
Татьяна5 Опубліковано: 10 грудня 2017 Поділитись Опубліковано: 10 грудня 2017 в чем бестолковость, неудобство и моральное устаревание данной планировки? точно хотите? ок эта планировка хаты 80-х годов - площади ого-го, удобства - 0 отсутствие санузла на 2м жилом этаже при таком кол-ве спален - это опять же из тех же 80х не дай бог надо будет продать - продадите только оч дешево Вам Вадим выше все написал, но слушать Вы не будете . Вы получили кучу площади, которая комфортной не является, не мыслите "как в квартире" - дом - это принципиально другой тип жизни имея столь зажатую лестницу, сказать по ней ночью в туалет на первом этаже - мммм Добавлено через 55 секунд потому что отношу себя к людям которые предпочитают простоту минимализм функциональность и практичность всяким вычурным красотам и ненужному пафосу возможно, Вы просто пафосом называете удобство 1 Посилання на коментар Поділитися на інших сайтах More sharing options...
111zerg111 Опубліковано: 10 грудня 2017 Автор Поділитись Опубліковано: 10 грудня 2017 Вставлю свои пять копеек,точнее словечек: 1)с/у на втором этаже 2) по кухне с гостинной-я за раздвижную систему. 3) по лестнице-считайте,рисуйте-все получится.. Огромное спасибо)) 1. по с/у на втором - буду думать над этим. Опять таки уже решил даже что предприму меры по его безболезненной реализации в случае все таки положительного решения (заложу гильзы в перекрытии под воду и сток). Если не надумаю то замурую , а надумаю то с легкостью это сделаю. 2. отличный совет ))) я как то такой вариант вообще упустил из виду. Учитывая то что у меня есть опыт в изготовке и установке шкафов купе , этот вариант очень просто реализуемый, но опять таки несущая стена - надо подумать. 3. с лестницей буду думать как лучше , в плоть до того что поеду тестить разные варианты ))) Посилання на коментар Поділитися на інших сайтах More sharing options...
Татьяна5 Опубліковано: 10 грудня 2017 Поділитись Опубліковано: 10 грудня 2017 Учитывая то что у меня есть опыт в изготовке и установке шкафов купе , этот вариант очень просто реализуемый, но опять таки несущая стена - надо подумать. такая система на таком размере будет стоить около 2000 уе там спец особенности из-за высоты конструкции 1 Посилання на коментар Поділитися на інших сайтах More sharing options...
111zerg111 Опубліковано: 10 грудня 2017 Автор Поділитись Опубліковано: 10 грудня 2017 точно хотите? ок эта планировка хаты 80-х годов - площади ого-го, удобства - 0 отсутствие санузла на 2м жилом этаже при таком кол-ве спален - это опять же из тех же 80х не дай бог надо будет продать - продадите только оч дешево Вам Вадим выше все написал, но слушать Вы не будете . Вы получили кучу площади, которая комфортной не является, не мыслите "как в квартире" - дом - это принципиально другой тип жизни имея столь зажатую лестницу, сказать по ней ночью в туалет на первом этаже - мммм Добавлено через 55 секунд возможно, Вы просто пафосом называете удобство А теперь давайте по порядку опускаем нюансы по лестнице - которая как я и говорил раньше была просчитана в калькуляторе и исходила только из того что другая не получалась там по заданным параметрам. Этот вопрос я еще изучу до начала стройки. и опускаем отсутствие второго с/у на втором этаже - так как решение пока не принято и будет приниматься только после того как будет готов к заселению первый этаж. Меры по возможности его установки на втором этаже будут приняты ) остается моя планировка 80-х хотя у меня есть куча примеров из личной жизни родственников построенных в 80-е . А это проходные комнаты Остекление в огромном количестве в том числе на север потолки по 3,5 метра (не ну а че круто же) Выходы на улицу со всех сторон где только можно (с кухни , с гостинной) Террасы на которых не отдыхают а паркуют велосипед садовую тачку (чтоб под дождем не мокла, а в гараж леньки откатить) и тд. а потом сидят и думают шо ж так дорого отапливать? а нафига нам столько площади, а как отключить второй этаж от отопления на зиму, если мы один фиг им не пользуемся. Посилання на коментар Поділитися на інших сайтах More sharing options...
Татьяна5 Опубліковано: 10 грудня 2017 Поділитись Опубліковано: 10 грудня 2017 Это ВАШ дом и только Вам решать, что удобно и нужно Вашей семье . Нравится - стройте 3 Посилання на коментар Поділитися на інших сайтах More sharing options...
111zerg111 Опубліковано: 10 грудня 2017 Автор Поділитись Опубліковано: 10 грудня 2017 такая система на таком размере будет стоить около 2000 уе там спец особенности из-за высоты конструкции у меня сейчас в комнате шкаф который я делал, с высотой двери 2,5 м в этом доме потолки будут где то 2,8 м. не вижу никаких особенностей в высоте. Добавлено через 3 минуты Это ВАШ дом и только Вам решать, что удобно и нужно Вашей семье . Нравится - стройте Так и будет. Но тем не менее учитывая что я дом строить буду первый раз и строить буду сам то потому и сижу на форуме чтоб постараться сделать минимум ошибок ))) а они то будут в любом случае. Как минимум два момента было вынесено с этого форума. 1. Лестница. 2. с/у на втором этаже по поводу кухни пока еще надо сопоставить все за и против ))) я б пожертвовал таким удобством в пользу несущей стены. Посилання на коментар Поділитися на інших сайтах More sharing options...
Татьяна5 Опубліковано: 10 грудня 2017 Поділитись Опубліковано: 10 грудня 2017 с высотой двери 2,5 м в этом доме потолки будут где то 2,8 м. не вижу никаких особенностей в высоте. именно в этой разнице специфика и есть Посилання на коментар Поділитися на інших сайтах More sharing options...
Скромный прораб Опубліковано: 10 грудня 2017 Поділитись Опубліковано: 10 грудня 2017 13 соток, семья из четырех человек... Есть все предпосылки смотреть в сторону одноэтажника! А несколько меньше головняка....с перекрытием, лестницей, утеплением мансардного этажа... 2 Посилання на коментар Поділитися на інших сайтах More sharing options...
sergij68 Опубліковано: 10 грудня 2017 Поділитись Опубліковано: 10 грудня 2017 13 соток, семья из четырех человек... Есть все предпосылки смотреть в сторону одноэтажника! А несколько меньше головняка....с перекрытием, лестницей, утеплением мансардного этажа... эх... было б у меня 13 соток- я точно одноэтажник бы строил. сейчас семья- трое, будет четверо... второй этаж- в процессе, лестницы нормальной пока нет ... но на втором точно будет ванная и туалет!:drinks: Посилання на коментар Поділитися на інших сайтах More sharing options...
Рекомендовані повідомлення
Створіть акаунт або увійдіть у нього для коментування
Ви маєте бути користувачем, щоб залишити коментар
Створити акаунт
Зареєструйтеся для отримання акаунта. Це просто!
Зареєструвати акаунтУвійти
Вже зареєстровані? Увійдіть тут.
Увійти зараз