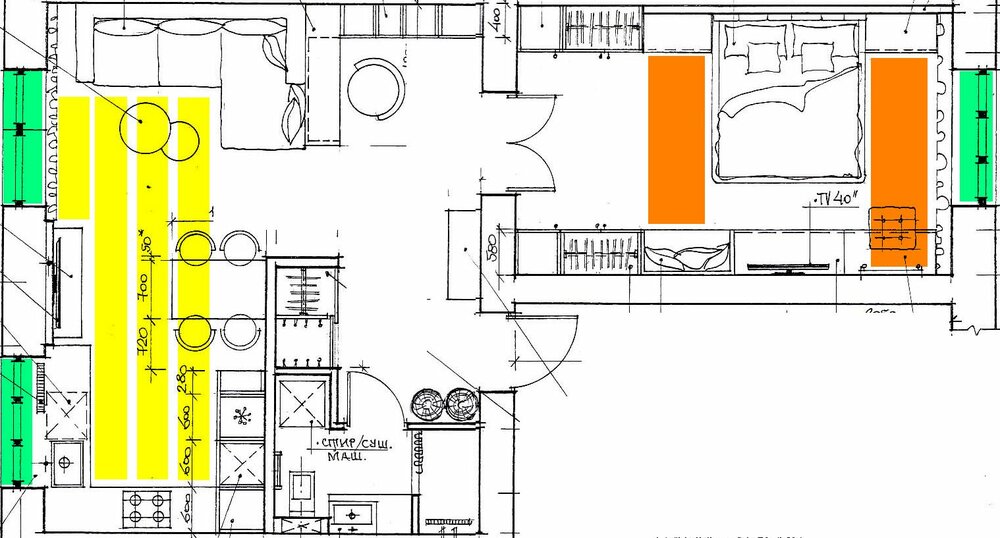
svtkachenko Опубліковано: 2 жовтня 2017 Поділитись Опубліковано: 2 жовтня 2017 Есть ровные полы, будет утеплитель (антишум) 5.5мм Тиха хода, сверху ламинат. Сейчас, пока отопление не включили, есть мысль подготовить ИК пленку под участки, как показано на рисунке. Желтые поля (полосы по 50см) - группа студио, коричневые поля (полосы по 80см) - спальня. Зеленым отмечены окна и выход на балкон. Сейчас температура в помещении около 16 градусов, на улице 8. Точно не измерял, по ощущениям. Все батареи отключены, да и отопление еще не включили. Будет ли такой подогрев пола эффективен, чтобы получить хотя бы 19 - 20 градусов в квартире в межсезонье? Посилання на коментар Поділитися на інших сайтах More sharing options...
Ntgkjk.rc Опубліковано: 4 жовтня 2017 Поділитись Опубліковано: 4 жовтня 2017 Есть ровные полы, будет утеплитель (антишум) 5.5мм Тиха хода, сверху ламинат. Сейчас, пока отопление не включили, есть мысль подготовить ИК пленку под участки, как показано на рисунке. Желтые поля (полосы по 50см) - группа студио, коричневые поля (полосы по 80см) - спальня. Зеленым отмечены окна и выход на балкон. Сейчас температура в помещении около 16 градусов, на улице 8. Точно не измерял, по ощущениям. Все батареи отключены, да и отопление еще не включили. Будет ли такой подогрев пола эффективен, чтобы получить хотя бы 19 - 20 градусов в квартире в межсезонье? на 3-4 градуса однозначно поднимет, особенно если в спальне добавить еще полосу ближе к входу 1 Посилання на коментар Поділитися на інших сайтах More sharing options...
pol.teplo.ua Опубліковано: 5 жовтня 2017 Поділитись Опубліковано: 5 жовтня 2017 Во-первых, площадь теплого пола, для того чтобы претендовать на основной источник тепла, должна быть 70-80 %. Касательно инфракрасной пленки - имеет макс. кпд, при нахождении человека в комнате. Комфортную температуру поверхности получите, в местах установки пленки, но касательно того насколько подниметься температура, при небольшой площади монтажа - вопрос. Советую уложить пленку на всей свободной, от мебели, поверхности. Посилання на коментар Поділитися на інших сайтах More sharing options...
S_Vladimir_79 Опубліковано: 5 жовтня 2017 Поділитись Опубліковано: 5 жовтня 2017 Желтые поля (полосы по 50см) Как рекомендация, можете заменить на 100 см, чтобы меньше подключений было. Добавлено через 42 секунды Касательно инфракрасной пленки - имеет макс. кпд, при нахождении человека в комнате. Меньше читайте и распространяйте инфо с рекламных буклетов Посилання на коментар Поділитися на інших сайтах More sharing options...
pol.teplo.ua Опубліковано: 5 жовтня 2017 Поділитись Опубліковано: 5 жовтня 2017 Как обычно, вы умнее производителей и законов физики. Первая попавшаяся цитата: "Инфракрасные волны имеют большую длину – именно они воспринимаются нашей кожей как тепло, исходящее от солнечных лучей. Мы его чувствуем, но увидеть не сможем никогда. И согревают нас эти лучи независимо от ветров и сквозняков – они им совершенно не помеха. Точно так же не боятся сквозняков и обогреватели инфракрасного типа, используемые в быту – ведь длина волн у их излучения аналогична длине волн ИК-спектра у Солнца." Пол личному опыту - любой ИК источник тепла, быстрее обогревает помещение, если в нём находиться человек. Попробуйте ответить без хамства. Посилання на коментар Поділитися на інших сайтах More sharing options...
svtkachenko Опубліковано: 10 жовтня 2017 Автор Поділитись Опубліковано: 10 жовтня 2017 на 3-4 градуса однозначно поднимет, особенно если в спальне добавить еще полосу ближе к входу Добавил. Все, что смог, добавил. Вот в таком виде сделаю, весной отчитаюсь. Спасибо за помощь. Посилання на коментар Поділитися на інших сайтах More sharing options...
Gene4ka Опубліковано: 24 жовтня 2017 Поділитись Опубліковано: 24 жовтня 2017 Как обычно, вы умнее производителей и законов физики. Первая попавшаяся цитата: "Инфракрасные волны имеют большую длину – именно они воспринимаются нашей кожей как тепло, исходящее от солнечных лучей. Мы его чувствуем, но увидеть не сможем никогда. И согревают нас эти лучи независимо от ветров и сквозняков – они им совершенно не помеха. Точно так же не боятся сквозняков и обогреватели инфракрасного типа, используемые в быту – ведь длина волн у их излучения аналогична длине волн ИК-спектра у Солнца." Пол личному опыту - любой ИК источник тепла, быстрее обогревает помещение, если в нём находиться человек. Попробуйте ответить без хамства. Отвечаю без хамства: да, инженер умнее ЛЮБОГО буклета любого производителя, потому что не врет, в отличие от буклета. Даже не так - производители на украинском рынке вообще молчат, "говорят" импортеры, дилеры, дистрибьюторы - БАРЫГИ, короче, заинтересованные лица, выпускают буклеты, инструкции, руководства и пр. п.с. Про то, что инфа ДАЖЕ на оф.сайтах импортеров написана не инженерами, а копирайтерами за 100-150грн./1000знаков - сказать или сами знаете? Посилання на коментар Поділитися на інших сайтах More sharing options...
pol.teplo.ua Опубліковано: 24 жовтня 2017 Поділитись Опубліковано: 24 жовтня 2017 Речь не о буклетах или уме инженера, а о технической стороне обогрева инфракрасной пленкой. У 90% производителей даже буклетов нет )) Можно сказать, что технически грамотные инструкции, в печатном виде или pdf, есть только у Devi. Кое-что есть у Nexans и Profitherm. Посилання на коментар Поділитися на інших сайтах More sharing options...
Скромный прораб Опубліковано: 24 жовтня 2017 Поділитись Опубліковано: 24 жовтня 2017 Есть ровные полы, будет утеплитель (антишум) 5.5мм Тиха хода, сверху ламинат. Сейчас, пока отопление не включили, есть мысль подготовить ИК пленку под участки, как показано на рисунке. Ключевые слова ламинат и ИК пленка. Не совместимые вещи И если еще как то, с оговорками, разрешена укладка ламината на электрические теплые полы, если кабели и маты находятся в толще стяжки, то ни где, ни у одного производителя ламината Вы не найдете, что можно укладывать ламинат на электрические теплые полы на базе ИК пленок. А Вам в первую очередь необходимо руководствоваться рекомендациями именно производителя ламината, а не производителя и тем более продавца ИК пленок! Пожалуйста Посилання на коментар Поділитися на інших сайтах More sharing options...
S_Vladimir_79 Опубліковано: 24 жовтня 2017 Поділитись Опубліковано: 24 жовтня 2017 то ни где, ни у одного производителя ламината Вы не найдете, что можно укладывать ламинат на электрические теплые полы на базе ИК пленок. А найдете, где написано именно про кабель и маты? В инструкциях пишут водяной или электрический подогрев, при этом не разделяя последний на кабель, маты и ИК-пленку. Иногда только могут написать ограничение по мощности (Вт/м2) Посилання на коментар Поділитися на інших сайтах More sharing options...
Скромный прораб Опубліковано: 24 жовтня 2017 Поділитись Опубліковано: 24 жовтня 2017 А найдете, где написано именно про кабель и маты? В инструкциях пишут водяной или электрический подогрев, при этом не разделяя последний на кабель, маты и ИК-пленку. Иногда только могут написать ограничение по мощности (Вт/м2) Есть, 100%, поищу выложу, просто за ненадобностью даже не отправил в закладки. Как пример почему (один из пунктов) по памяти и своими словами. Производители ламината настоятельно рекомендуют поднимать прогрев не более чем на 5гр в сутки, такого постепенного прогрева ИК пленка обеспечить не может, потому что находится практически без стяжки. Еще очень сложно (пожалуй не возможно) при использовании ИК пленок для обогрева, не превысить максимальную температуру поверхности пола 27-28 гр (рекомендуемая температура эксплуатации покрытия) опять таки из за отсутствия стяжки и соответственно хоть какой либо инерционности Посилання на коментар Поділитися на інших сайтах More sharing options...
Скромный прораб Опубліковано: 27 жовтня 2017 Поділитись Опубліковано: 27 жовтня 2017 (змінено) Как и обещал: http: //www.tarkett.ua/static/4f/6785/Tarkett_Laminate_інструкція_з_укладання_2-Lock_2014.pdf Форум не пропускает, для тех кто не в курсе: скопируйте, откройте в новом окне убрав пробел Змінено 27 жовтня 2017 користувачем Скромный прораб 1 Посилання на коментар Поділитися на інших сайтах More sharing options...
S_Vladimir_79 Опубліковано: 27 жовтня 2017 Поділитись Опубліковано: 27 жовтня 2017 Не совсем понятен второй абзац... Все производители пленок заявляют, что они должны использоваться непосредственно под ламинатом. В любом случае, производитель ламината в праве ограничивать его использование, если ему что-то не нравится. Посилання на коментар Поділитися на інших сайтах More sharing options...
Gene4ka Опубліковано: 27 жовтня 2017 Поділитись Опубліковано: 27 жовтня 2017 Речь не о буклетах или уме инженера, а о технической стороне обогрева инфракрасной пленкой. У 90% производителей даже буклетов нет )) Можно сказать, что технически грамотные инструкции, в печатном виде или pdf, есть только у Devi. Кое-что есть у Nexans и Profitherm. 1. Попробуйте поинтересоваться инструкциями ПРОИЗВОДИТЕЛЕЙ, а не теми, что печатают украинские дистрибьюторы, импортеры, котрабандисты, а также всякие *владельцы украинских торговых марок* типа In-term 2. если бы вы знали с кем именно вы спорите, то удивились бы и не спорили))) Посилання на коментар Поділитися на інших сайтах More sharing options...
pol.teplo.ua Опубліковано: 27 жовтня 2017 Поділитись Опубліковано: 27 жовтня 2017 Нет предмета для спора. В чем Вы видите спор? Говорим об одном и томе же. Посилання на коментар Поділитися на інших сайтах More sharing options...
Hotab Опубліковано: 19 листопада 2017 Поділитись Опубліковано: 19 листопада 2017 (змінено) А можно и я тут спрошу? Стоит задача не обогрева помещения электрическим ТП, а получить тактильные ощущения. 1-й этаж многоэтажки, Херсон, в подвале всегда плюсовые Т, чаще +10. Пол со стороны подвала будет утепляться 50мм ППС. Переживаю, что все равно ламинат, а плитка тем более, тактильно будет неприятная зимой. Рассматриваю вариант положить ИК-пленку на тех участках, где будут ходить и сидеть: зона отдыха и плитка на кухне и в ванной. Суммарно до 10 кв.м. Запитать все это через какой-нибудь sonoff за 5 $ , терморегулятор не использовать. Работа в режиме 10 минут нагрев- 50 минут остывание. (Или даже минута работа - 5 минут остывание, диапазон работы програмируется и будет подобран по факту). Или может даже нагрев плиты с 5-7 утра (по ночному тарифу) и пол весь день будет не ледяной?? Или пленка не способна греть плиту? Имеет право на жизнь такое?? Как реализовать это со стяжкой, если пленка будет лежать лоскутами?? Какую минимальную мощность пленки можно выбрать ?(напомню, задача обогрева помещения не стоит). Змінено 19 листопада 2017 користувачем Hotab Посилання на коментар Поділитися на інших сайтах More sharing options...
Скромный прораб Опубліковано: 19 листопада 2017 Поділитись Опубліковано: 19 листопада 2017 Рассматриваю вариант положить ИК-пленку на тех участках, где будут ходить и сидеть: зона отдыха и плитка на кухне и в ванной. Суммарно до 10 кв.м. . Я бы три раза подумал, стоит ли: Посилання на коментар Поділитися на інших сайтах More sharing options...
Hotab Опубліковано: 19 листопада 2017 Поділитись Опубліковано: 19 листопада 2017 Я бы три раза подумал Спасибо за совет. Если в режиме "минута нагрев-6 минут остывание" (или другой режим подобрать), можно ж и не перегревать ведь ламинированное покрытие? А неужели нет низкотемпературных электрических ТП??? С низкой мощностью.. Или еще вариант: сейчас застройщиком выполнена стяжка из 5 см керамзита, пролитая ЦПС. Если я на участках будущей пленки сделаю понижение в имеющейся стяжке на -3 (5)см,и поверх пленки пролью заново??? Посилання на коментар Поділитися на інших сайтах More sharing options...
Скромный прораб Опубліковано: 19 листопада 2017 Поділитись Опубліковано: 19 листопада 2017 Спасибо за совет. Если в режиме "минута нагрев-6 минут остывание" (или другой режим подобрать), можно ж и не перегревать ведь ламинированное покрытие? А неужели нет низкотемпературных электрических ТП??? С низкой мощностью.. Или еще вариант: сейчас застройщиком выполнена стяжка из 5 см керамзита, пролитая ЦПС. Если я на участках будущей пленки сделаю понижение в имеющейся стяжке на -3 (5)см,и поверх пленки пролью заново??? На сколько я знаю, пленку стяжкой не заливают, для этого есть греющий кабель, маты. Я думаю специалисты по электрополам Вам больше расскажут, я больше по водяному. Совет дал, потому что я, как и Вы, в конечном счете, потребитель того же ламината. И в первую очередь меня интересовал вопрос эксплуатации финишного покрытия на ТП. Вот такая картина в рекомендациях производителей. Вообщем не спешите, узнавайте, консультируйтесь. 1 Посилання на коментар Поділитися на інших сайтах More sharing options...
Gene4ka Опубліковано: 19 листопада 2017 Поділитись Опубліковано: 19 листопада 2017 Спасибо за совет. Если в режиме "минута нагрев-6 минут остывание" (или другой режим подобрать), можно ж и не перегревать ведь ламинированное покрытие? А неужели нет низкотемпературных электрических ТП??? С низкой мощностью.. Или еще вариант: сейчас застройщиком выполнена стяжка из 5 см керамзита, пролитая ЦПС. Если я на участках будущей пленки сделаю понижение в имеющейся стяжке на -3 (5)см,и поверх пленки пролью заново??? 1. вы невнимательно прочитали документ, который вам выложили 2. в вашем случае нужно использовать кабель нагревательный, залитый стяжкой, - кабель будет ЦЕЛЬНЫМ! а каждый кусок пленки будет иметь по два соединения с проводами, и по две "заглушки", и каждое соединение такое может выйти из строя и пленка греть не будет. Причина - не дожали клипсу, поржавела, плохого качества и т.д. Снимать стяжку, чтоб найти такое место - это точно повредить пленку. Никакой тепловизор или трассоискатель такое место не найдет. Если куски пленки соединены последовательно, то все куски после того места, где контакт разошелся, работать не будут. 3. - кабель лучше взять ультратонкий с мощностью 10вт/м2, положить шагом 6-8см, так будет равномерно распределяться тепло и ламинат будет прогреваться равномерно - сверху над кабелем должна быть смесь самовыравнивающаяся для теплого пола толщиной слоя 1,5см - поскольку у вас укладка "участками", то в тех местах где кабель будет идти от одного участка к другому - он тоже должен быть под таким же слоем 1,5см - такой вариант (кабель +самовыр.смесь) и даст эффект "низкотемпературной" нагревательной плоскости 4. режиме "минута нагрев-6 минут остывание" - категорически противопоказан! вы можете использовать "какой-нибудь sonoff за 5 $", но не таком режиме По правильному, контролировать нагрев под ламинатом нужно только с помощью регулятора с датчиком температуры пола - потому что только так вы выполняете требования, указанные в документе, который вам выложили Если у вас для всех участков одно покрытие (ламинат или плитка) то можно ставить 1 регулятор с 1м датчиком если покрытие разное - то нужен либо регулятор на два датчика(на плитку и на ламинат отдельные), либо два регулятора. 5. Пленка должна использоваться только для "сухой" укладки: -стяжка-(гидроизоляция)-подложка под ламинат-пленка нагревательная-ламинат во всех остальных случаях используется кабель. Тот кто советует заливать пленку стяжкой - либо продавец, продающий только пленку, либо продавец, у которого заработок на пленке выше чем на кабелях. Да, да, у всех шкурный интерес, даже не сомневайтесь)) 6. Занимаясь выдумыванием велосипеда заново с нарушением всех норм и инструкций, - не ищите советчиков среди специалистов, т.к. никому из специалистов не захочется брать на себя ответственность за результат ваших выдумок. Если же какой-то слабошарящий менеджер просто здесь зарегился, чтобы просто "впаривать" - то да, он вам конечно насоветует. 2 Посилання на коментар Поділитися на інших сайтах More sharing options...
Hotab Опубліковано: 19 листопада 2017 Поділитись Опубліковано: 19 листопада 2017 (змінено) Спасибо за подробный ответ. Остались еще некоторые вопросы. А где тогда вообще использовать пленочный ТП, если под плитку его нельзя, а под ламинат не выполняется требование производителя ламината? Только под линолеум и ковролин? контролировать нагрев под ламинатом нужно только с помощью регулятора с датчиком температуры пола Если использовать у того же sonoff релле с выносным датчиком Т (погруженным под ламинат), это допустимо? Меня прильщает возможность включить дистанционно и задавать расписание. И это будет стоить порядка 10$. И еще.. Если у меня 2 зоны и требуется 2 датчика (под плитку и под ламинат), то это уже 2 отдельных нагревательных кабеля надо покупать, или один длинный режется? (по аналогии с пленочным ТП) Змінено 19 листопада 2017 користувачем Hotab Посилання на коментар Поділитися на інших сайтах More sharing options...
Hotab Опубліковано: 19 листопада 2017 Поділитись Опубліковано: 19 листопада 2017 кабель лучше взять ультратонкий с мощностью 10вт/м2, У Вас на сайте вижу MILLICABLE FLEX/10.. Если я возьму его 100-120 метров, и положу сразу и под плитку, и под ламинат одним куском. Датчик Т будет под ламинатом, т.к. его критично не перегревать, плитка менее критично.. Для плитки кабель спрячу в прорезы стяжки буквально на 1-2 мм, пролью нивелиркой, затем закрою плиткой. Для ламината сделаю прорезы в стяжке на глубину 1,5 см, уложу кабель, пролью нивелирку, подложка, ламинат.. Возможно так? Какие интервалы укладки в этих случаях под плитку, а какие под ламинат? Или одинаково: 6-8 см? Посилання на коментар Поділитися на інших сайтах More sharing options...
svtkachenko Опубліковано: 17 жовтня 2018 Автор Поділитись Опубліковано: 17 жовтня 2018 Добавил. Все, что смог, добавил. Вот в таком виде сделаю, весной отчитаюсь. Спасибо за помощь. Все это сильно затянулось, поэтому весной отчитаться не смог. Во вложении мои измерения температур поверхности ламината и плитки. Установлено 26 градусов для ламината и 28 для плитки. Измерял с помощью Fluke TI400. Пару месяцев назад смотался в Германию на тренинг, по этому Флюку, узнал много нового для себя. Само собой, покупался для серьезных задач, а это я попутно уже. С включенным подогревом и комфортней ногам и в целом теплее. Ночи уже холодные, днем окна закрыты, только вечером проветривается. С полами можно комфортно спать, без полов нос слегка остывает, прохладно. Хотя температура в помещении в пределах 19 - 23 градусов. Регуляторы все Тернео, с вайфаем, статистика есть, дополнительно изучу по потреблению электроэнергии. С регуляторами есть потенциальная проблема - можно случайно установить слишком высокое задание и забыть. Производитель категорически отказывается вносить изменения в приложение, чтобы было можно ограничить максимальное задание, но предложил перепрошить мои регуляторы персонально. Надо снимать и отправлять, пока будет как есть. PS Все эти разговоры о длинах волн и вообще об инфракрасном обогреве, в контексте подогрева полов - полная туфта, уж вы меня простите. Даже стыдно было, что я хоть немного, но верил в магическое излучение сквозь 10мм картона. 2 Посилання на коментар Поділитися на інших сайтах More sharing options...
S_Vladimir_79 Опубліковано: 17 жовтня 2018 Поділитись Опубліковано: 17 жовтня 2018 Все эти разговоры о длинах волн и вообще об инфракрасном обогреве, в контексте подогрева полов - полная туфта, уж вы меня простите. Даже стыдно было, что я хоть немного, но верил в магическое излучение сквозь 10мм картона. Выделил эти слова для тех, кто черпает информацию из рекламных буклетов. Посилання на коментар Поділитися на інших сайтах More sharing options...
Рекомендовані повідомлення
Створіть акаунт або увійдіть у нього для коментування
Ви маєте бути користувачем, щоб залишити коментар
Створити акаунт
Зареєструйтеся для отримання акаунта. Це просто!
Зареєструвати акаунтУвійти
Вже зареєстровані? Увійдіть тут.
Увійти зараз