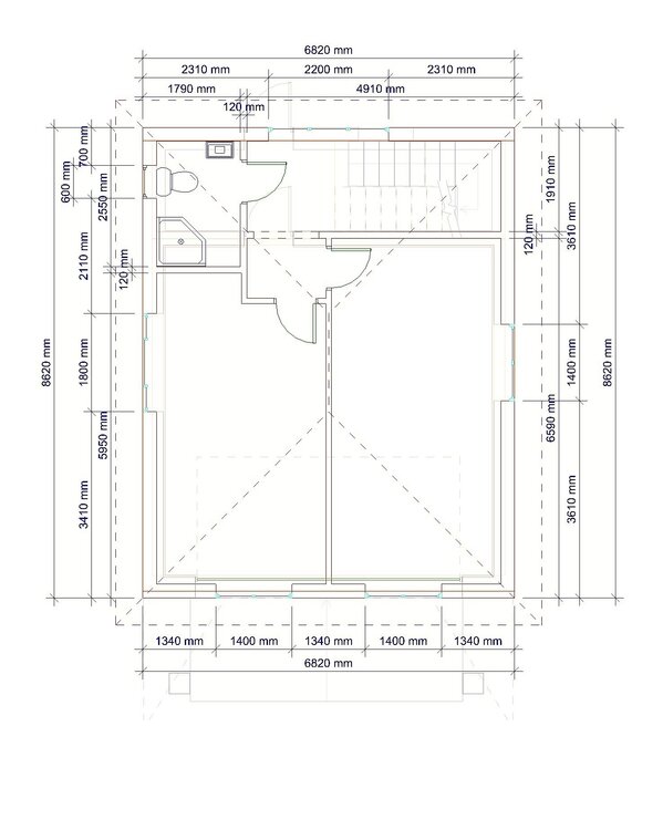
Arvid Опубліковано: 8 жовтня 2017 Поділитись Опубліковано: 8 жовтня 2017 (змінено) Добрый день. Нужен совет! Столкнулся с проблемой перекрытия, проём в 6.25 метра. 1 этаж перекрыт пустотыми плитами 64-12-8, второй этаж хочу перекрывать деревом, но с таким проемом будет большой прогиб, есть балки 7метров, сечением 20х10 и 20х15, но программа показывает, что они в любом случае существенно прогнутся. Мало того прочности должной не будет. Некоторые кровельщики предлагали перекрывать короткими балками по 3.5 метра опираясь на центральный перестенок (поперечный плитам) между двумя комнатами.Говорят, что и лес до 6 метров гораздо дешевле и т.д. Но тогда получается, что я дополнительно нагружу плиты перекрытия еще и балками, обшивкой и утеплителем. Перестенок будет из газобетона D500; 600*280*100. Сразу отмечу, что крыша будет опираться только на несущие стены, речь идет только о перекрытии. Есть вариант с деревянным двутавром, но он по цене кусается Вот и думаю теперь можно ли на перестенок опереться?! Змінено 8 жовтня 2017 користувачем Arvid Посилання на коментар Поділитися на інших сайтах More sharing options...
jenkins Опубліковано: 8 жовтня 2017 Поділитись Опубліковано: 8 жовтня 2017 Сверху перекрытия что будет? Только чердак с крышей или еще один жилой этаж? Посилання на коментар Поділитися на інших сайтах More sharing options...
mastervovik Опубліковано: 8 жовтня 2017 Поділитись Опубліковано: 8 жовтня 2017 Сразу отмечу, что крыша будет опираться только на несущие стены, речь идет только о перекрытии. Если вы говорите о перекрытии второго этажа, т.е. о тупо потолочных балках, то берите обычный 6м лес и сращивайте балки по длине в разбежку из двух балок к примеру 50х200 с шагом 60см) от собственного веса и веса потолка там прогиб будет не значительный. А ставить несущую стену на плиты перекрытия да еще и по средине, ни в коем случае нельзя! Добавлено через 2 минуты Но самый надежный способ, если чердак не эксплуатируемый, собирать самые простые кровельные фермы. где нижний пояс (затяжка) будет служить потолком. Посилання на коментар Поділитися на інших сайтах More sharing options...
Arvid Опубліковано: 8 жовтня 2017 Автор Поділитись Опубліковано: 8 жовтня 2017 Сверху перекрытия что будет? Только чердак с крышей или еще один жилой этаж? будет чердак, по крайней мере пока в планах чердак. Добавлено через 12 минут Если вы говорите о перекрытии второго этажа, т.е. о тупо потолочных балках, то берите обычный 6м лес и сращивайте балки по длине в разбежку из двух балок к примеру 50х200 с шагом 60см) от собственного веса и веса потолка там прогиб будет не значительный. А ставить несущую стену на плиты перекрытия да еще и по средине, ни в коем случае нельзя! Добавлено через 2 минуты Но самый надежный способ, если чердак не эксплуатируемый, собирать самые простые кровельные фермы. где нижний пояс (затяжка) будет служить потолком. да вот меня эта идея строителей и смутила, там по середине только перегородка из газобетона должна быть. А опыт такого сращивания есть? Через несколько лет не прогнется ли он сильнее? Фермы я уже рассматривал, но хотелось бы иметь место на чердаке под всякий не тяжелый хлам. А что по поводу двутавров деревянных? Посилання на коментар Поділитися на інших сайтах More sharing options...
mastervovik Опубліковано: 8 жовтня 2017 Поділитись Опубліковано: 8 жовтня 2017 А что по поводу двутавров деревянных? Очень дорого Добавлено через 2 минуты да вот меня эта идея строителей и смутила швы просто нужно делать просто максимально близко к краю зеркально. Посилання на коментар Поділитися на інших сайтах More sharing options...
Arvid Опубліковано: 8 жовтня 2017 Автор Поділитись Опубліковано: 8 жовтня 2017 Очень дорого Добавлено через 2 минуты швы просто нужно делать просто максимально близко к краю зеркально. да это я знаю))) Но кто сталкивался с ними? Опыт интересует Не совсем понял о каких швах речь идет Посилання на коментар Поділитися на інших сайтах More sharing options...
mastervovik Опубліковано: 8 жовтня 2017 Поділитись Опубліковано: 8 жовтня 2017 А опыт такого сращивания есть? У меня на фермах срощенный нижний пояс 10м, но это ферма;) Добавлено через 54 секунды Через несколько лет не прогнется ли он сильнее? Смотря что "легкое" вы там на них будете складывать :D Посилання на коментар Поділитися на інших сайтах More sharing options...
Arvid Опубліковано: 8 жовтня 2017 Автор Поділитись Опубліковано: 8 жовтня 2017 У меня на фермах срощенный нижний пояс 10м, но это ферма;) Добавлено через 54 секунды Смотря что "легкое" вы там на них будете складывать :D да хотя бы чтобы вес человека выдерживали без эффекта батута. Посилання на коментар Поділитися на інших сайтах More sharing options...
jenkins Опубліковано: 8 жовтня 2017 Поділитись Опубліковано: 8 жовтня 2017 Фермы - самое оптимальное решение. 1 Посилання на коментар Поділитися на інших сайтах More sharing options...
mastervovik Опубліковано: 8 жовтня 2017 Поділитись Опубліковано: 8 жовтня 2017 да хотя бы чтобы вес человека выдерживали без эффекта батута. Когда снизу прикрутите гипсы или осб, сделаете диск жесткости то батута не будет. Если снизу натяженой или пластик, тогда прикрутите сверху доску дюймовку или осб. Посилання на коментар Поділитися на інших сайтах More sharing options...
Arvid Опубліковано: 8 жовтня 2017 Автор Поділитись Опубліковано: 8 жовтня 2017 Когда снизу прикрутите гипсы или осб, сделаете диск жесткости то батута не будет. Если снизу натяженой или пластик, тогда прикрутите сверху доску дюймовку или осб. а фермы покупные или сами делали? Материал? Посилання на коментар Поділитися на інших сайтах More sharing options...
mastervovik Опубліковано: 8 жовтня 2017 Поділитись Опубліковано: 8 жовтня 2017 где-то с этого сообщения www.stroimdom.com.ua/forum/showpost.php?p=4154090&postcount=1323 Посилання на коментар Поділитися на інших сайтах More sharing options...
trianom Опубліковано: 11 жовтня 2017 Поділитись Опубліковано: 11 жовтня 2017 Можно вдоль перекрываемого пролета ввести две стальные балки из двутавра (площадь перекрытия делится на три более-менее равных части), а уже пространство между ними заполнять деревянными балками из досок (устанавливаются перпендикулярно стальным балкам). Все элементы конечно нужно считать; для Вашей планировки при заделке в кладку через анкерные болты (шарнирное опирание) я бы начинал ориентироваться с двутавра №18-20 для варианта устройства не эксплуатируемого перекрытия (холодный чердак), и с двутавра №22-24 для эксплуатируемого перекрытия (сверху полноценное эксплуатируемое перекрытие). При жестком защемлении в кладку (сварными соединениями к закладным элементам) высоту (номер) двутавра можно уменьшить. Часто еще на эти стальные балки перекрытия опирают стойки подстропильной рамы крыши, но повторюсь, эти все решения нужно проверять расчетами. Деревянные балки - обычно доски 50х200мм, которые устанавливают с шагом 0,6 м (между ними маты утеплителя удобно закладывать с минимальной порезкой) Пы.Сы: строить дом начинают снизу вверх (с возведения фундаментов), а вот проектировать - сверху вниз (в первую очередь, чтобы понимать как и чем будут перекрываться помещения). 1 Посилання на коментар Поділитися на інших сайтах More sharing options...
Arvid Опубліковано: 11 жовтня 2017 Автор Поділитись Опубліковано: 11 жовтня 2017 Можно вдоль перекрываемого пролета ввести две стальные балки из двутавра (площадь перекрытия делится на три более-менее равных части), а уже пространство между ними заполнять деревянными балками из досок (устанавливаются перпендикулярно стальным балкам). Все элементы конечно нужно считать; для Вашей планировки при заделке в кладку через анкерные болты (шарнирное опирание) я бы начинал ориентироваться с двутавра №18-20 для варианта устройства не эксплуатируемого перекрытия (холодный чердак), и с двутавра №22-24 для эксплуатируемого перекрытия (сверху полноценное эксплуатируемое перекрытие). При жестком защемлении в кладку (сварными соединениями к закладным элементам) высоту (номер) двутавра можно уменьшить. Часто еще на эти стальные балки перекрытия опирают стойки подстропильной рамы крыши, но повторюсь, эти все решения нужно проверять расчетами. Деревянные балки - обычно доски 50х200мм, которые устанавливают с шагом 0,6 м (между ними маты утеплителя удобно закладывать с минимальной порезкой) Пы.Сы: строить дом начинают снизу вверх (с возведения фундаментов), а вот проектировать - сверху вниз (в первую очередь, чтобы понимать как и чем будут перекрываться помещения). Уже обдумывал о железный двутаврах, но в итоге стоимость перекрытия с ткими двутаврами получаетс очень высокой. Пока обдумываю деревянные двутавры сечением 280х85, их несущая способность в раёне 170 кг/м кв. при условии расположения балок через каждые 50 см, прогиб у них минимальный, цена выходит 180 грн за погонный метр. В принципе можно взять и сечение 320х85, там несущая способность еще выше, уже как для междуэтажных перекрытий. Но теперь вопрос в том как лучше крепить со стеной. Загонять в стену, то есть в газобетоне оставлять отверстия и вставлять туда балки, либо ложить на мауэрлат, но тогда потолки будут очень высокие, что мне не особо нравится, или же еще третий вариант крепится прямо к стене, на специальные металические крепления. У меня опыта в этом нету, поэтому сложно решить, что лучше и как будет надежней Посилання на коментар Поділитися на інших сайтах More sharing options...
trianom Опубліковано: 12 жовтня 2017 Поділитись Опубліковано: 12 жовтня 2017 Все клеенные пиломатериалы требуют соблюдения технологии (в первую очередь нормальные клея, необходимая влажность используемой древесины, сушка по технологии собранного изделия и т.п.), что в нашей суровой действительности выполняется очень редко т.е. при использовании клееных изделий возможны риски, которые к сожалению могут проявиться даже через несколько лет (знаком с дефектами не по наслышке). А их исправление дело хлопотное и затратное, поскольку это уже будет реконструкция. Может стОит еще раз рассмотреть вариант с использованием деревянных треугольных стропильных ферм, правда тогда в крыше вместо вальм просится устройство фронтонов. Посилання на коментар Поділитися на інших сайтах More sharing options...
wertexan Опубліковано: 12 жовтня 2017 Поділитись Опубліковано: 12 жовтня 2017 Я так понял у вас вальмовая кровля поверх 2-х этажей с деревянным чердачным перекрытием. Тогда я бы ввел 2 дощатые треугольные фермы в местах примыкания вальм к коньку. Между ними перебросил бы внизу снизу или в уровне нижнего пояса балки чердачного перекрытия (попадаете правда на цену узловых элементов). Сверху по коньку перекинул бы коньковую балку возможно с подкосами для жёсткости. Под диагонали тоже подкосы и/или угловые балки. Тогда крыша с перекрытием будет достаточно жёсткой и на перекрытие вы не опираетесь. Правда чердачный объем сильно режется конструкциями. Фермы _только_ по расчету. Не городите отсебятину. Возможно будет удобнее делать не стропильные а подстропильные фермы — легче опереть конек и вальмы. Посилання на коментар Поділитися на інших сайтах More sharing options...
Arvid Опубліковано: 16 жовтня 2017 Автор Поділитись Опубліковано: 16 жовтня 2017 Все клеенные пиломатериалы требуют соблюдения технологии (в первую очередь нормальные клея, необходимая влажность используемой древесины, сушка по технологии собранного изделия и т.п.), что в нашей суровой действительности выполняется очень редко т.е. при использовании клееных изделий возможны риски, которые к сожалению могут проявиться даже через несколько лет (знаком с дефектами не по наслышке). А их исправление дело хлопотное и затратное, поскольку это уже будет реконструкция. Может стОит еще раз рассмотреть вариант с использованием деревянных треугольных стропильных ферм, правда тогда в крыше вместо вальм просится устройство фронтонов. Рассматривал и двухскатную крышу, чтобы фермы соорудить, цены на готовые фермы так же не маленькие поэтому пока еще не определился. Добавлено через 10 минут Я так понял у вас вальмовая кровля поверх 2-х этажей с деревянным чердачным перекрытием. Тогда я бы ввел 2 дощатые треугольные фермы в местах примыкания вальм к коньку. Между ними перебросил бы внизу снизу или в уровне нижнего пояса балки чердачного перекрытия (попадаете правда на цену узловых элементов). Сверху по коньку перекинул бы коньковую балку возможно с подкосами для жёсткости. Под диагонали тоже подкосы и/или угловые балки. Тогда крыша с перекрытием будет достаточно жёсткой и на перекрытие вы не опираетесь. Правда чердачный объем сильно режется конструкциями. Фермы _только_ по расчету. Не городите отсебятину. Возможно будет удобнее делать не стропильные а подстропильные фермы — легче опереть конек и вальмы. Все верно, вальмовая крыша. Как мне объяснили ребята с фирмы по кровле, что на перекрытия (балки) они опираться не будут, таким было мое условие. То есть если двутавровые балки нужны мне только как чердачное перекрытие, то мне кажется мудрить с фермами может и нет смысла. Хочется получить нормальный чердак. А фермы конечно много метста съедают. В общем пока рассматриваю варианты и решения Посилання на коментар Поділитися на інших сайтах More sharing options...
trianom Опубліковано: 17 жовтня 2017 Поділитись Опубліковано: 17 жовтня 2017 ИМХО, хорошее проверенное временем решение для такой планировки (пролет между стенами более 6,0 м) - это балочное (со стальными двутаврами) или железобетонное перекрытие (монолит или из сборных многопустотных панелей), на которое опирается подстропильная прямоугольная в плане рама (система из прогонов и стоек): и удобно стыковать по длине немаленькие накосные стропила, и шаг между стропилами можно сделать 900 мм, и можно получить удобное чердачное помещение. При этом дом гарантированно прослужит своих 60 лет без капремонтов. Посилання на коментар Поділитися на інших сайтах More sharing options...
Рекомендовані повідомлення
Створіть акаунт або увійдіть у нього для коментування
Ви маєте бути користувачем, щоб залишити коментар
Створити акаунт
Зареєструйтеся для отримання акаунта. Це просто!
Зареєструвати акаунтУвійти
Вже зареєстровані? Увійдіть тут.
Увійти зараз