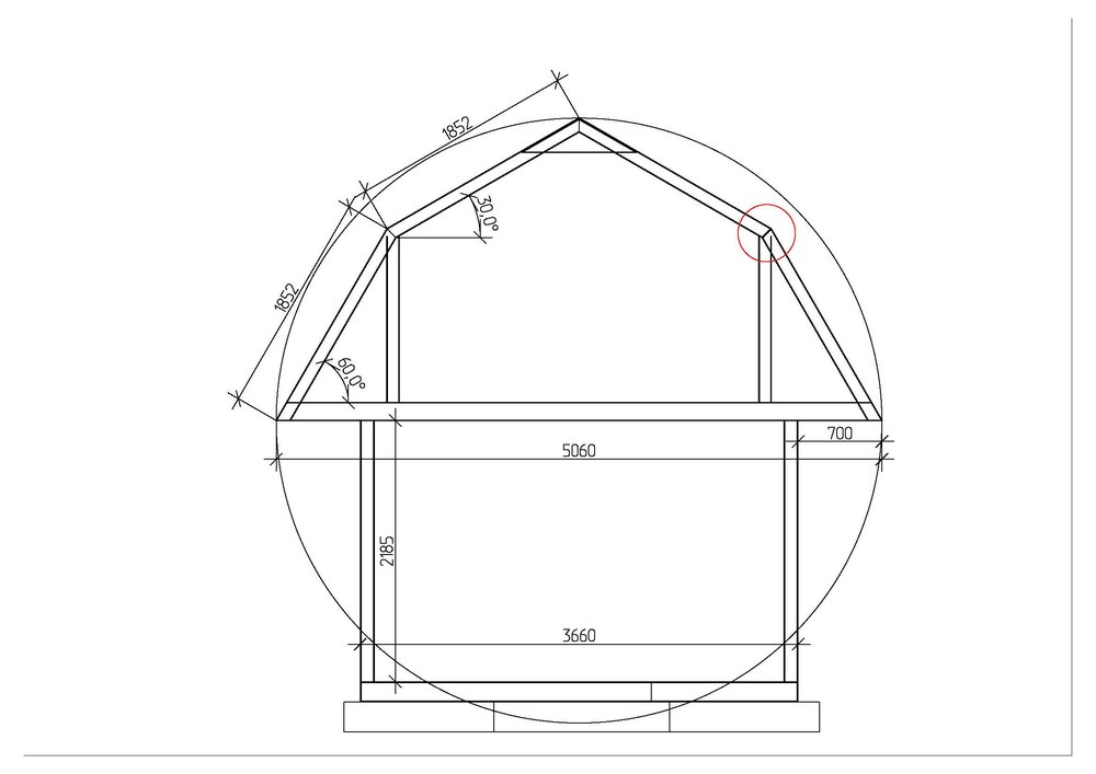
Лёха UA Опубліковано: 23 вересня 2009 Поділитись Опубліковано: 23 вересня 2009 Прикинул вот профиль кровли... покритикуйте, может кто советом поделится... стропила 100х50 - или маловато? шаг 800 затяжка стропил 150х50 (она же перекрытие) свесы 700... немогу себе представить как это будет выглядеть в целом.... материал думаю металочерепица. Может кто подскажет еще варианты для рамотрения.. и главный вопрос, не развалится ли такая конструкция без подпорок... Посилання на коментар Поділитися на інших сайтах More sharing options...
VillaDeLux (ex Акро) Опубліковано: 23 вересня 2009 Поділитись Опубліковано: 23 вересня 2009 РАЗВАЛИТСЯ ИЛИ НЕТ УЗНАЕТЕ КОГДА СДЕЛАЕТЕ. но я бы не советовал именно так. сделайте вертикальные стойки, прокиньте по ним прогон. На него ставьте верхние скаты кровли и от него пускайте фальшстропила вертикальных скатов. Посилання на коментар Поділитися на інших сайтах More sharing options...
korund Опубліковано: 23 вересня 2009 Поділитись Опубліковано: 23 вересня 2009 Прикинул вот профиль кровли... покритикуйте, может кто советом поделится... стропила 100х50 - или маловато? шаг 800 затяжка стропил 150х50 (она же перекрытие) свесы 700... немогу себе представить как это будет выглядеть в целом.... материал думаю металочерепица. Может кто подскажет еще варианты для рамотрения.. и главный вопрос, не развалится ли такая конструкция без подпорок... 100х50 - хватит вполне. Смущает отсутствие в месте излома затяжки или подпорки,- при наличии снега такая крыша может сложиться. Затяжку, я так понял, лепить некуда,- тогда либо подпорки под "колена", либо прямые стропила. Удачи! 1 Посилання на коментар Поділитися на інших сайтах More sharing options...
Лёха UA Опубліковано: 23 вересня 2009 Автор Поділитись Опубліковано: 23 вересня 2009 (змінено) 100х50 - хватит вполне. Смущает отсутствие в месте излома затяжки или подпорки,- при наличии снега такая крыша может сложиться. Затяжку, я так понял, лепить некуда,- тогда либо подпорки под "колена", либо прямые стропила. Удачи! Спасибо.... подпорки в принципе получаются..... а вот с затяжкой да... некуда... можно ли обойтись косынкой или установить затяжку вверху...? каким макаром можно выполнить узел соединения 2-х стропил и подпорки..? подпорки 100х50 или сделать 100х100 из двух... Змінено 23 вересня 2009 користувачем Лёха UA Посилання на коментар Поділитися на інших сайтах More sharing options...
Korni Опубліковано: 23 вересня 2009 Поділитись Опубліковано: 23 вересня 2009 РАЗВАЛИТСЯ ИЛИ НЕТ УЗНАЕТЕ КОГДА СДЕЛАЕТЕ...... Эт-точно... Посилання на коментар Поділитися на інших сайтах More sharing options...
Сергійович Опубліковано: 23 вересня 2009 Поділитись Опубліковано: 23 вересня 2009 Спасибо.... подпорки в принципе получаются..... а вот с затяжкой да... некуда... можно ли обойтись косынкой или установить затяжку вверху...? каким макаром можно выполнить узел соединения 2-х стропил и подпорки..? подпорки 100х50 или сделать 100х100 из двух... обычно в таких случаях делается так называемый "стульчик",на который будут опираться нижние стропила,и ставиться верхние.и бантины желательно добавить. 1 Посилання на коментар Поділитися на інших сайтах More sharing options...
korund Опубліковано: 24 вересня 2009 Поділитись Опубліковано: 24 вересня 2009 обычно в таких случаях делается так называемый "стульчик",на который будут опираться нижние стропила,и ставиться верхние.и бантины желательно добавить. +1. 100х100 подпорку совсем не обязательно,- нагрузка будет в торец,- достаточно 100х50. Бантину я бы тоже добавил,- хоть небольшую,- он свою роль выполнит. Удачи! 1 Посилання на коментар Поділитися на інших сайтах More sharing options...
Лёха UA Опубліковано: 24 вересня 2009 Автор Поділитись Опубліковано: 24 вересня 2009 может есть у кого подобная схемка с бантинами.... есть ли смысл сделать коньковый брус с опиранием по фронтонам, или достаточно будет косынок или стяжек поверху верхних стропил... со стульчиком не до конца понял... может есть фото... Зарание спасибо... Посилання на коментар Поділитися на інших сайтах More sharing options...
alexmetall Опубліковано: 24 вересня 2009 Поділитись Опубліковано: 24 вересня 2009 Вариант такой - добавить продольный брус 100х100 в узле излома. Брус опереть на фронтоны и стойку посредине стены. На брус укладывать стропила В верхней части крыши предусмотреть затяжку, хотя бы 100х50 Насчет сечения стропил - 120х50 минимум(чтобы утеплитель лег нормально) Свесы 700 - много. Лучше 500 Посилання на коментар Поділитися на інших сайтах More sharing options...
Лёха UA Опубліковано: 2 жовтня 2009 Автор Поділитись Опубліковано: 2 жовтня 2009 нашел вот книженцию с такими рисунками...подскажите можно ли кровлю с моими размерам выполнить в таком варианте... и всеже что такое "бантины" ? как выполнить узел подпорка/вехняя стропила/нижнаяя сторила.. .может фотка есть у кого... еще момент, преобладающий ветер в фронтон.. какие из за этого могут быть проблемы... Посилання на коментар Поділитися на інших сайтах More sharing options...
Рекомендовані повідомлення
Створіть акаунт або увійдіть у нього для коментування
Ви маєте бути користувачем, щоб залишити коментар
Створити акаунт
Зареєструйтеся для отримання акаунта. Це просто!
Зареєструвати акаунтУвійти
Вже зареєстровані? Увійдіть тут.
Увійти зараз