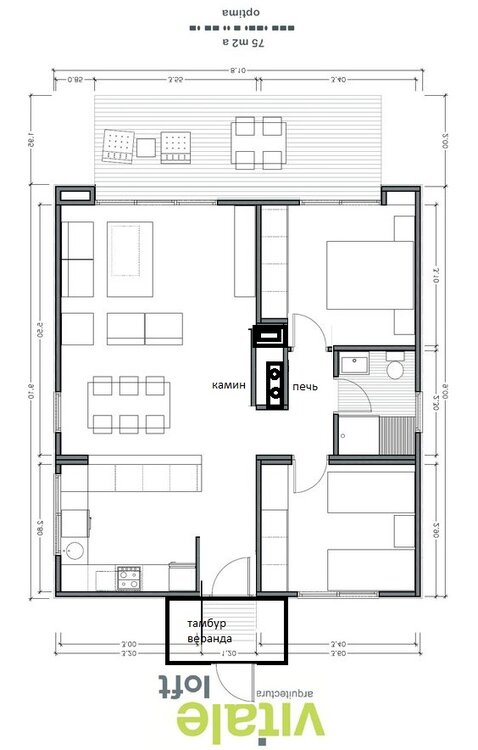
whisker Опубліковано: 21 березня 2018 Поділитись Опубліковано: 21 березня 2018 Исходные данные: На участке есть старый дом, который планируется снести не раньше, чем построится новый. Красная вертикальная линия слева - забор от улицы, заезд. Вверх и вниз по рисунку - участки соседей (не показаны). Справа от построек уходит сад и огород. Типовая сельская застройка, длинный огород типа "влетно-посадочная полоса" Желтыми кружочками обозначены - скважина (СК) и сливная яма (СЯ) от старого дома. Прямоугольник (погреб) представляет собой цоколь из кирпича без фундамента. Его бы можно было снести, если бы под ним не было подвала, который используется. Поэтому на нем может быть размещена какая-то легкая конструкция (шалаш, теплица) Слева от цоколя находится сарай. Будет сноситься. В общем, ищется планировочное решение дома, расположенного в пределах периметра красного прямоугольника. Образ жизни и уклад: Старый дом - шевченкова хата из глины с двумя комнатками. Две пристройки - веранды. Сейчас в старом доме проживает бабушка. Очень часто там бывает наш сын. Мы с женой по выходным,но круглогодично.То есть почти 3 месяца в году мы там живем в любой сезон. Поэтому понимание потребностей жизни в доме есть. Для минимального комфорта не хватает еще одной спальни. Летом нормально - есть веранда, на ней спит сын. В теплое время года основное время все проводят на улице.В хату - только покушать или прилечь. Зимой - по комнатам. То есть понятие "гостиная" где собирается вся семья отсутствует как класс. Ее просто нет и потребность в таком помещении особо не требуется. Крайне редкие гости погоды не делают - где уселись там и хорошо. Хотелки жены: (ничего не понимает в строительстве, критерии оценки - нра/не нра): Кухня и гостиная - одно пространство. Площадь самой кухни минимум 12м2. Кладовочка под рукой. Хочет домик угловой (буквой Г или 7). На рисунке предполагаемый угол выделил. Попадает как раз на юг. Хотелки мои: - Дом для двоих, один этаж. Жена этого еще не осознает, но я по опыту знакомых вижу только одно: В доме любой площади, когда выросли дети, остаются двое. Поэтому я не уверен, нужно ли в доме 3 спальни. - Кухня и гостиная - одно пространство. Пусть будет. Дело в том, что даже в квартире мы "живем"на кухне. Там кушаем, есть телевизор, уголок для "полежать". Поэтому в доме это и будет дневная зона. - На счет угловой планировки. Мне такая форма тоже нравится, но я осознаю, что этот внутренний дворик, возможно, бестолковый.Зимой там никто сидеть не будет, а летом там никто не усидит от жары. С точки зрения утепления знаю, что оптимален квадрат. Но хочется как-то поиграть с планировкой помещений. Короче, где нужно и не нужно солнце. Жаворонков нет, все совы. -Справа от старого дома есть пристройка типа веранды. Делалась с двойной целью - зимой как буфер, защита от холодного ветра с огорода, с северо-востока. А летом там днем не жарко, можно даже спать, так как не солнечная сторона. Нечто подобное хочется и в новом доме. Посмотрим как реализуется планировка. - Хотелки общие, вытекают из опыта проживания в старом доме. Своего рода лайфхаки. - В доме должна быть печка.Практика показывает, что если нет света ( в селе это бывает), то с печкой и не замерзнешь и жрать сваришь. - Санузел раздельный. И теплый. Во всех домах, где я был, в санузлах прохладно и сыро. В старом доме мне удалось впихнуть ванну и унитаз в нишу за печкой. Красота! В отопительный сезон там теплей чем в комнатах. А летом все моются в душе. - Душ практически у входа. Тоже лайфхак из старого дома. По сути - поддон и шторка. Вещь изумительная! Поскольку летом что дом что улица, то моментально принять душ или просто помыть ноги, приходя с огорода очень удобно. Там же моются негабаритные вещи - большие кастрюли, можно выкупать собаку, помыть коврики из машины, чистится бойлер. Не носится грязь в дом. Короче, мастхэв. - Никаких гардеробных, гостевых санузлов не нужно. Стиралка, где получится. Хоть кухня,хоть ванная. Теперь много вопросов: Решаемы ли такие хотелки с учетом угловой планировки? Или не морочить голову и делать прямоугольник. Какая вообще может быть удобная для жизни планировка с учетом расположения на участке? Гуглил как-то расположение по сторонам света - информация противоречивая. Одни говорят с востока кухню, другие спальню... Нужно ли делать 2 входа в дом? В старом доме есть два входа с каждой веранды. Летом - очень удобно, зимой - ну его нафиг. Все шастают куда кому удобней, в результате холод сильно тянет. Во что выливается расположение фундамента рядом со скважиной и сливной ямой? Однозначно УШП или можно обычный ленточный? Когда проводили воду и канализацию, особо не думали. Сливную яму ближе к улице не получалось, левый верхний угол на рисунке - вулична криниця и рядом газовая труба. Между погребом и ямой где-то 11-12 метров. От скважины в сад не ограничено. Нарисовал 10м. Но хочется дом минимально необходимой площади, порядка 80м2. Проект как таковой пока не интересен, нужно только планировочные решения. В общем, советуйте кто-что может. Посилання на коментар Поділитися на інших сайтах More sharing options...
vadimv Опубліковано: 21 березня 2018 Поділитись Опубліковано: 21 березня 2018 В общем, ищется планировочное решение дома, расположенного в пределах периметра красного прямоугольника.Какие у него размеры? Посилання на коментар Поділитися на інших сайтах More sharing options...
whisker Опубліковано: 21 березня 2018 Автор Поділитись Опубліковано: 21 березня 2018 Какие у него размеры? По вертикали 11м, по горизонтали 10м. Но это не значит что нужен дом именно 110м2. Указал так, чтобы габаритные размеры не превышали заданных. Посилання на коментар Поділитися на інших сайтах More sharing options...
vadimv Опубліковано: 21 березня 2018 Поділитись Опубліковано: 21 березня 2018 По вертикали 11м, по горизонтали 10м. Но это не значит что нужен дом именно 110м2. Указал так, чтобы габаритные размеры не превышали заданных. Ну, например, можно рассмотреть такие варианты, где вместо квадратной спальни будет ваш "дворик". 2 Посилання на коментар Поділитися на інших сайтах More sharing options...
dmitriylaser Опубліковано: 22 березня 2018 Поділитись Опубліковано: 22 березня 2018 Что-то мне ваше пятно застройки не очень нравится. Оптимально конечно на месте старого дома... Но если соседи далеко то можно так как на картинке внизу. По расположению комнат моё виденье: терасса в огород на северо-восток соответственно и второй выход туда из гостинной или кухни(как вариант через хозпомещение, топочную) кухня при входе с окном в сторону улицы комнаты жилые 2шт оптимально на восток, юго-восток Для затравки вкину пару планировок. 1 Посилання на коментар Поділитися на інших сайтах More sharing options...
whisker Опубліковано: 23 березня 2018 Автор Поділитись Опубліковано: 23 березня 2018 Что-то мне ваше пятно застройки не очень нравится. Оптимально конечно на месте старого дома... Но если соседи далеко то можно так как на картинке внизу. Спасибо за комментарий. Я этот вариант также рассматривал, у него есть свои плюсы и минусы: Плюсы: Дом "в створе", как и общая уличная застройка, типа чтобы не выделяться. Мне меньше косить летом и чистить снег зимой. Сейчас до веранды надо маслать 20 метров. Вся движуха на улице все равно происходит в северной стороне. Там и хозяйство и посиденьки, шашлык-машлык. Минусы: Если брать любую снежную зиму, то близкое расположение построек к забору приводит к тому, что просто некуда кидать снег. Сейчас площадь позволяет накидывать большие сугробы и уже между ними прокладывать тропы. Сугробы могут находиться сколь угодно долго. Есть время - можно свозить потихоньку в огород. Нет - значит так и стоит. Сейчас южная сторона участка (где южная веранда), ближе к забору - место релакса жены. Там у нее можжевельники, розы, лаванда и прочие солнцелюбивые растения. Если там поставить дом, он тупо закроет солнце. На моем рисунке в первом посте, где старый дом, желтым показана газовая труба. Т.е. абсолютно не солнечная сторона. Так там кроме кроме малины и крапивы ничего не растет. И, наконец, мы все равно движемся в сторону зеленых технологий. Поэтому хочется расположить дом на максимуме солнца. Вот и решили загнать его вглубь участка. Посилання на коментар Поділитися на інших сайтах More sharing options...
dmitriylaser Опубліковано: 23 березня 2018 Поділитись Опубліковано: 23 березня 2018 Сейчас в старом доме проживает бабушка А перевезти бабушку на время строительства? И строить на том же месте? С оформлением реконструкции. Дешевле думаю будет с подключением коммуникаций и последующим введением дома в эксплуатацию. 1 Посилання на коментар Поділитися на інших сайтах More sharing options...
archon_6902 Опубліковано: 26 березня 2018 Поділитись Опубліковано: 26 березня 2018 вот подборка одноэтажных домов www.archon.com.ua/proekty-domov/odnoetazhnyje-doma,pc,1073 Посилання на коментар Поділитися на інших сайтах More sharing options...
Рекомендовані повідомлення
Створіть акаунт або увійдіть у нього для коментування
Ви маєте бути користувачем, щоб залишити коментар
Створити акаунт
Зареєструйтеся для отримання акаунта. Це просто!
Зареєструвати акаунтУвійти
Вже зареєстровані? Увійдіть тут.
Увійти зараз