bodidron Опубліковано: 19 вересня 2018 Поділитись Опубліковано: 19 вересня 2018 Добры день, получил отказ в выдаче строительного паспорта, не все пункты понимаю. п.с.сейчас добавлю планы, чтобы понятнее было понятен пункт только по плану, что сделано на 1:200, а надо 1:500. топосьемка есть предполагаю, что надо вынести еще, размеры до соседних участков, дом рядом есть только через один участок правее, левее через 7 участков, на 1:500 не влезет не ясно что не понравилось в туалетах, и что не понравилось в гараже. Посилання на коментар Поділитися на інших сайтах More sharing options...
alehs Опубліковано: 19 вересня 2018 Поділитись Опубліковано: 19 вересня 2018 По гаражу все однозначно - не соблюден разрыв до дома. По СУ - думаю не понравилось отсутствие естественного освещения и проветривания. Они же дали ссылки на пункты норм 1 Посилання на коментар Поділитися на інших сайтах More sharing options...
Cherub Опубліковано: 19 вересня 2018 Поділитись Опубліковано: 19 вересня 2018 В google забейте дбн в2.2-15-2015 и дбн в2.2-12:2018, и читайте соответствующий пункт. дбн в2.2-15-2015 п.2.29 У сільських населених пунктах допускається будівництво житлових будинків до двох поверхів (не рахуючи цокольного) з неканалізованими вбиральнями типу "люфт-клозет" або біо-туалетом. Приміщення повинно мати природне освітлення та провітрювання. У ІІВ та ІІІВ клі*матичних зонах неканалізовані вбиральні допускається розміщувати в опалюваній частині житлового будинку зі входом через тамбур-шлюз глибиною не менше 1 м. У ІІІБ та IVB кліматичних зонах влаштування "люфт-клозетів" в опалюваній частині житлового будинку не допускається. Окна у вас нету как минимум. дбн в2.2-12:2018 п.6.1.39Не выдержано расстояние в 10м до жилого дома. 1 Посилання на коментар Поділитися на інших сайтах More sharing options...
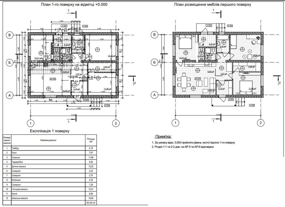
bodidron Опубліковано: 19 вересня 2018 Автор Поділитись Опубліковано: 19 вересня 2018 По гаражу все однозначно - не соблюден разрыв до дома. По СУ - думаю не понравилось отсутствие естественного освещения и проветривания. Они же дали ссылки на пункты норм т.е. досточно перенести унитаз, к ванной, а вместо туалета сделать "комору" + убрать вообще гараж? там в принципе 3,4м до гаража от дома... а сколько надо? или в туалете можно добавить окно в топочную? и по выгребной яме, читал что стоит дописать герметична? Посилання на коментар Поділитися на інших сайтах More sharing options...
alehs Опубліковано: 19 вересня 2018 Поділитись Опубліковано: 19 вересня 2018 По переносу - не очень понятно От гаража до дома мин 10 м при степени огнестойкости I или II, если огнестойкость ниже, то 12 м. Окно в топочную - нет. 1 Посилання на коментар Поділитися на інших сайтах More sharing options...
bodidron Опубліковано: 19 вересня 2018 Автор Поділитись Опубліковано: 19 вересня 2018 По переносу - не очень понятно От гаража до дома мин 10 м при степени огнестойкости I или II, если огнестойкость ниже, то 12 м. Окно в топочную - нет. туалеты / ванные должны быть с окном, там где 7 и 9 помещение сделать гардероб (или для стиральной машины можно?), а туалет перенести в 6 гараж как понимаю просто убирать, или примыкть к дому, 10м мне проблемно выдержать что делать с выгребной ямой? и что имеют ввиду по указание инженерных коммуникаций? Посилання на коментар Поділитися на інших сайтах More sharing options...
alehs Опубліковано: 19 вересня 2018 Поділитись Опубліковано: 19 вересня 2018 Ну Вам же дали пункт ДБНа, на который ссылаются. Окно требуется только в неканализованном туалете, о ванных (постирочных) не упоминается. Гараж, если нужен, сблокировать с домом А что с выгребной ямой? Нужно указать, какие инженерные системы у Вас будут (отопление, водопровод, электроснабжение, тепловые насосы, солнечные батареи, ветряки и т.д.) и их основные характеристики 1 Посилання на коментар Поділитися на інших сайтах More sharing options...
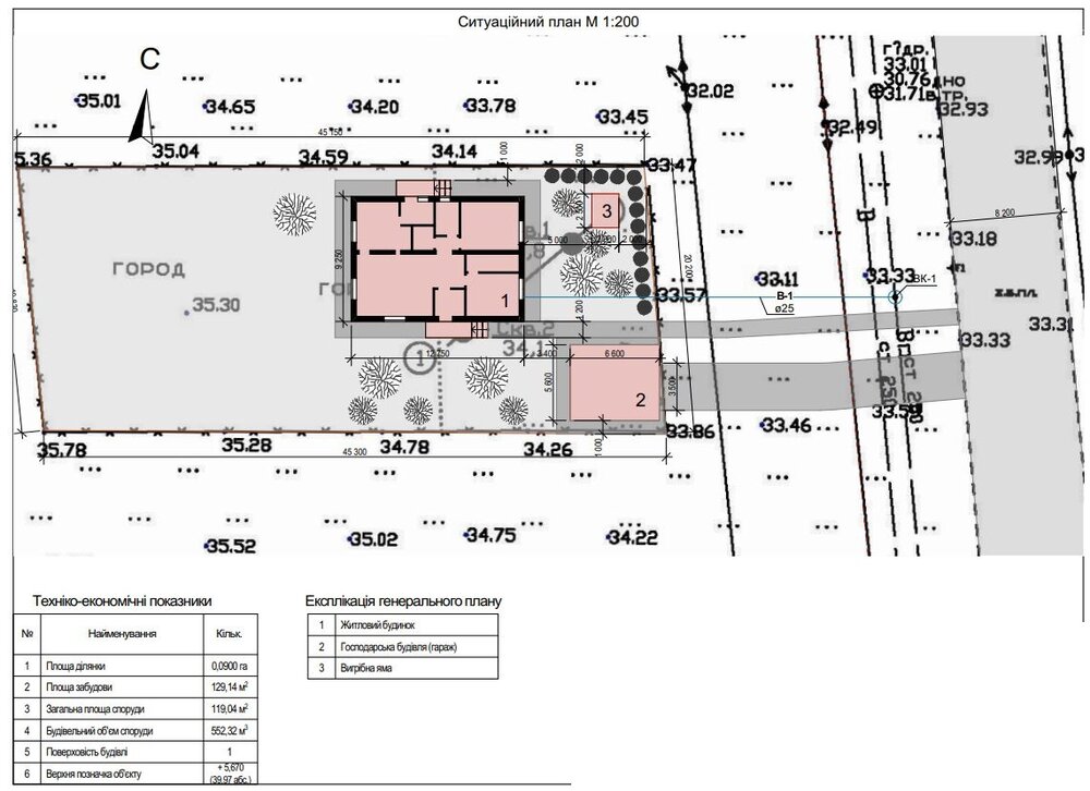
bodidron Опубліковано: 19 вересня 2018 Автор Поділитись Опубліковано: 19 вересня 2018 Ну Вам же дали пункт ДБНа, на который ссылаются. Окно требуется только в неканализованном туалете, о ванных (постирочных) не упоминается. Гараж, если нужен, сблокировать с домом А что с выгребной ямой? Нужно указать, какие инженерные системы у Вас будут (отопление, водопровод, электроснабжение, тепловые насосы, солнечные батареи, ветряки и т.д.) и их основные характеристики выгребная яма на схеме указанна, 5,5м от дома, 2м от заборов... по инженерным системам, вода подведена к участку, свет без стрительного паспорта в январе 18 года не оформляли, тип отопления указать? Посилання на коментар Поділитися на інших сайтах More sharing options...
alehs Опубліковано: 19 вересня 2018 Поділитись Опубліковано: 19 вересня 2018 Да не мне указать инж.системы , а в Эскизе намерений застройки должно быть указано. Вам проще всего (по крайней мере быстрее, чем разбираться через форум) найти специалиста, который приведет Ваш пакет бумаг в порядок. Посилання на коментар Поділитися на інших сайтах More sharing options...
bodidron Опубліковано: 19 вересня 2018 Автор Поділитись Опубліковано: 19 вересня 2018 Да не мне указать инж.системы , а в Эскизе намерений застройки должно быть указано. Вам проще всего (по крайней мере быстрее, чем разбираться через форум) найти специалиста, который приведет Ваш пакет бумаг в порядок. у нас специалисты не берутся, без полного согласования, только за стройпаспорт, проэкт делал знакомый архитектор, но оказалось для стройпаспорта все намного проще... попробую перерисовать с учетом проблемных моментов, откажусь от гаража, подам, и через 10 дней посмотрим, что ответят. на деньги по крайней мере в админ.центре не намикали, а архитектура сказала, через админ центр общение Посилання на коментар Поділитися на інших сайтах More sharing options...
nata1 Опубліковано: 19 вересня 2018 Поділитись Опубліковано: 19 вересня 2018 По гаражу все однозначно - не соблюден разрыв до дома. Совсем не однозначно, я бы поспорила.:D Подвинула бы гараж на 1м от забора (для его обслуживания) и процитировала бы архитектору п.15.2.3 ДБН: "Відстані, які зазначені у таблицях 15.2, 15.3 можуть не застосовуватись у таких випадках: -між житловими і господарськими будинками у межах однієї присадибної ділянки". Добавлено через 9 минут попробую перерисовать с учетом проблемных моментов, откажусь от гаража, подам, и через 10 дней посмотрим, что ответят. К єскизу намерений застройки подайте еще листочек с описанием инженерных систем. Типа такого: Інженерне забезпечення: Водопостачання – підключення до міського водопроводу. Каналізація – індивідуальна, септик. Електропостачання – планується підключення до міської електромережі. Опалення – планується автономне опалення за допомогою електричного котла. На эскизе покажите, в какое место подведена вода. 2 Посилання на коментар Поділитися на інших сайтах More sharing options...
Lipus Опубліковано: 19 вересня 2018 Поділитись Опубліковано: 19 вересня 2018 предполагаю, что надо вынести еще, размеры до соседних участков, дом рядом есть только через один участок правее, левее через 7 участков, на 1:500 не влезет Нужно просто подписать каждую сторону "Сусідня ділянка. Забудова відсутня" 1 Посилання на коментар Поділитися на інших сайтах More sharing options...
bodidron Опубліковано: 20 вересня 2018 Автор Поділитись Опубліковано: 20 вересня 2018 Совсем не однозначно, я бы поспорила.:D Подвинула бы гараж на 1м от забора (для его обслуживания) и процитировала бы архитектору п.15.2.3 ДБН: "Відстані, які зазначені у таблицях 15.2, 15.3 можуть не застосовуватись у таких випадках: -між житловими і господарськими будинками у межах однієї присадибної ділянки". Добавлено через 9 минут К єскизу намерений застройки подайте еще листочек с описанием инженерных систем. Типа такого: Інженерне забезпечення: Водопостачання – підключення до міського водопроводу. Каналізація – індивідуальна, септик. Електропостачання – планується підключення до міської електромережі. Опалення – планується автономне опалення за допомогою електричного котла. На эскизе покажите, в какое место подведена вода. Гараж врезан в фасад, слева отступ 1м, справа до забора 15м Линия воды указана. Посилання на коментар Поділитися на інших сайтах More sharing options...
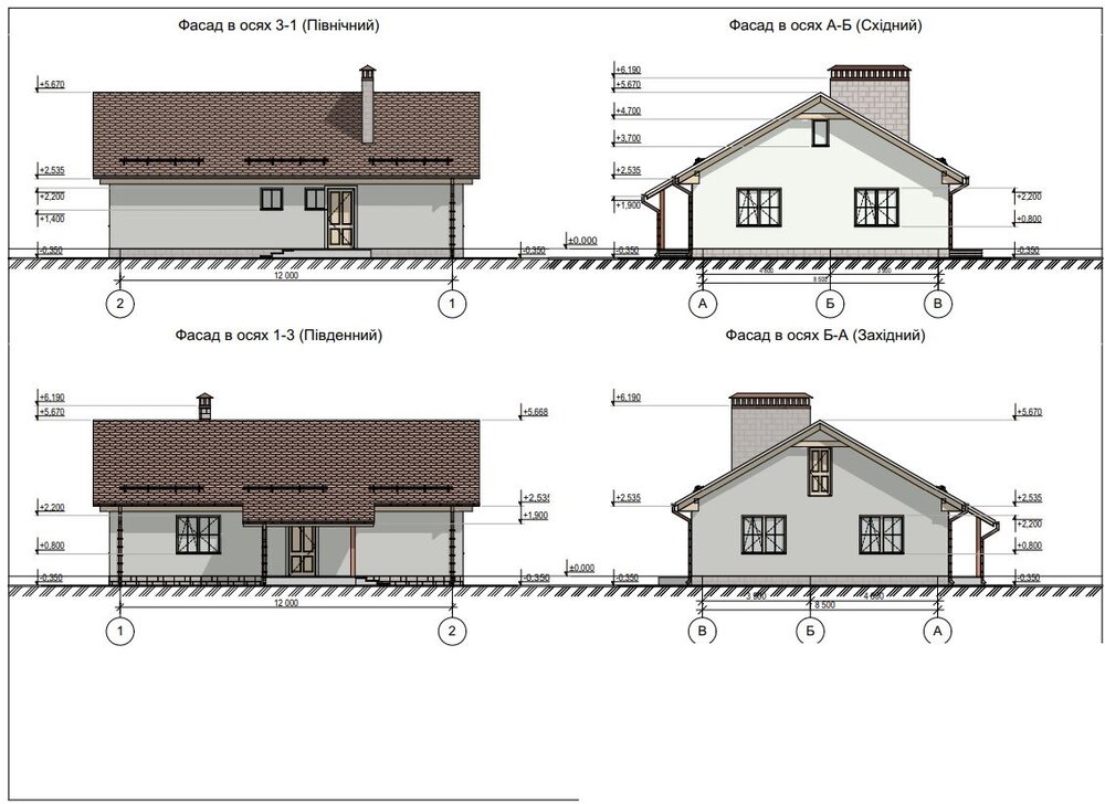
nata1 Опубліковано: 20 вересня 2018 Поділитись Опубліковано: 20 вересня 2018 Гараж врезан в фасад, слева отступ 1м, справа до забора 15м Линия воды указана. Заезд в гараж с фасада? Если с фасада, то норм. На плане я вижу, что гараж как бы немного развернут (нижний угол не по фасаду) - так нельзя. Ввод воды образмерьте до границ участка. P.S. Уже рассмотрела, что дорога ведет к заезду с фасада. Посилання на коментар Поділитися на інших сайтах More sharing options...
alehs Опубліковано: 20 вересня 2018 Поділитись Опубліковано: 20 вересня 2018 Совсем не однозначно, я бы поспорила.:D Подвинула бы гараж на 1м от забора (для его обслуживания) и процитировала бы архитектору п.15.2.3 ДБН: "Відстані, які зазначені у таблицях 15.2, 15.3 можуть не застосовуватись у таких випадках: -між житловими і господарськими будинками у межах однієї присадибної ділянки". Каюсь, еще не выучил новый ДБН. Почти согласен, нужно только дверь в гараже убрать (по северной стене) чтоб соблюсти полностью п. 6.1.39 Посилання на коментар Поділитися на інших сайтах More sharing options...
bodidron Опубліковано: 20 вересня 2018 Автор Поділитись Опубліковано: 20 вересня 2018 Каюсь, еще не выучил новый ДБН. Почти согласен, нужно только дверь в гараже убрать (по северной стене) чтоб соблюсти полностью п. 6.1.39 т.е. гараж можно оставить, только без входа со двора? или можно с западной стороны например сделать? двери кстати гаража, нигде не показаны, в пакете который подавался в архитектуру Посилання на коментар Поділитися на інших сайтах More sharing options...
Рекомендовані повідомлення
Створіть акаунт або увійдіть у нього для коментування
Ви маєте бути користувачем, щоб залишити коментар
Створити акаунт
Зареєструйтеся для отримання акаунта. Це просто!
Зареєструвати акаунтУвійти
Вже зареєстровані? Увійдіть тут.
Увійти зараз