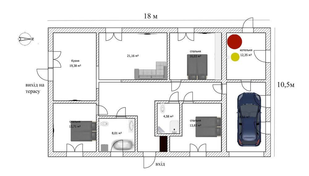
yurakapets Опубліковано: 18 грудня 2018 Поділитись Опубліковано: 18 грудня 2018 (змінено) Доброго дня! Маю бажання побудувати власний будинок. Нас троє. Є практично квадратна ділянка 35*36м, знаходиться між двома дорогами. План будинку малював, виходячи з потреб моєї сім'ї. Прошу знаючих форумчан глянути і можливо підказати, чи є якісь проблеми і прорахунки. Дякую. Змінено 18 грудня 2018 користувачем yurakapets Посилання на коментар Поділитися на інших сайтах More sharing options...
bodidron Опубліковано: 18 грудня 2018 Поділитись Опубліковано: 18 грудня 2018 Доброго дня! Маю бажання побудувати власний будинок. Нас троє. Є практично квадратна ділянка 35*36м, знаходиться між двома дорогами. План будинку малював, виходячи з потреб моєї сім'ї. Прошу знаючих форумчан глянути і можливо підказати, чи є якісь проблеми і прорахунки. Дякую. скажут в одину ванную сделать ход из комнаты) 1 Посилання на коментар Поділитися на інших сайтах More sharing options...
Юдин Денис Опубліковано: 18 грудня 2018 Поділитись Опубліковано: 18 грудня 2018 Доброго дня! Маю бажання побудувати власний будинок. Нас троє. Є практично квадратна ділянка 35*36м, знаходиться між двома дорогами. План будинку малював, виходячи з потреб моєї сім'ї. Прошу знаючих форумчан глянути і можливо підказати, чи є якісь проблеми і прорахунки. Дякую. Нету тамбура на входе - теплопотери в холодное время года. Выход из гаража должен быть тоже через тамбур, иначе запахи из гаража пойдут в квартиру Если Вы так двери из котельной в гараж будете открывать то поцарапаете машину, так же необхолимо наличие окна в котельной 1 Посилання на коментар Поділитися на інших сайтах More sharing options...
teonit Опубліковано: 19 грудня 2018 Поділитись Опубліковано: 19 грудня 2018 Для начала - определитесь со своими потребностями и запишите их. Затем - проранжируйте от более важных до второстепенных. Потом - посмотрите типовые проекты (z500, archon, и куча других), подумайте чем они вам нравятся (или нет) . На 50-м доме вы начнёте замечать моменты, о которых сейчас даже не догадываетесь. В результате, просмотрев 200+ проектов, у вас будет набор из 5-10 понравившиеся. Вот с этим набором идёте к любимым и определяетесь. Делаете паузу на неделю. Еще раз смотрите 5-10 проектов. И если до сих пор вас ни один из них не устраивает - возвращайтесь сюда с наиболее понравившимися проектами. А рисовать самому, без опыта - это печаль и стыдобушка, и потом мучаться всю оставшуюся жизнь. 1 Посилання на коментар Поділитися на інших сайтах More sharing options...
yurakapets Опубліковано: 19 грудня 2018 Автор Поділитись Опубліковано: 19 грудня 2018 Нету тамбура на входе - теплопотери в холодное время года. Так если 3 входа, то нужно 3 тамбура??? Бред... Никогда не видел тамбур на выходе на террасу, например. Выход из гаража должен быть тоже через тамбур, иначе запахи из гаража пойдут в квартиру Не очень, но соглашусь. Если Вы так двери из котельной в гараж будете открывать то поцарапаете машину, так же необхолимо наличие окна в котельной Окно в котельной есть, машину не поцарапаю - специально мерял, даже есть запас. Посилання на коментар Поділитися на інших сайтах More sharing options...
Юдин Денис Опубліковано: 19 грудня 2018 Поділитись Опубліковано: 19 грудня 2018 (змінено) Так если 3 входа, то нужно 3 тамбура??? Бред... Никогда не видел тамбур на выходе на террасу, например. Выход из гаража должен быть тоже через тамбур, иначе запахи из гаража пойдут в квартиру Не очень, но соглашусь. Если Вы так двери из котельной в гараж будете открывать то поцарапаете машину, так же необхолимо наличие окна в котельной Окно в котельной есть, машину не поцарапаю - специально мерял, даже есть запас. при выходе на террасу тамбур не обязателен. но на входе в дом -лучше что бы был. иначе теплый воздух будет улетучиваться при каждом открытии входной двери, и придется заново натапливать помещение. Змінено 20 грудня 2018 користувачем архитектор рекламный спам Посилання на коментар Поділитися на інших сайтах More sharing options...
teonit Опубліковано: 19 грудня 2018 Поділитись Опубліковано: 19 грудня 2018 если надо могу ещё чтот о поискать из готовых проектов, их у меня много))) Их у всех много www.domowy.pl/projekty-domow/arn-dom-pod-jarzabem-gpdn.html 1 Посилання на коментар Поділитися на інших сайтах More sharing options...
yurakapets Опубліковано: 19 грудня 2018 Автор Поділитись Опубліковано: 19 грудня 2018 при выходе на террасу тамбур не обязателен. но на входе в дом -лучше что бы был. иначе теплый воздух будет улетучиваться при каждом открытии входной двери, и придется заново натапливать помещение. вот пример правильной планировки в Вашем стиле. если надо могу ещё чтот о поискать из готовых проектов, их у меня много))) Спасибо, учту. В моем случае добавить ещё одну дверь очень легко. Хотя, если сделать тамбур перед гаражом и выходить через него в машину, то проблема решается. И там же в тамбуре будет жить пылесос Добавлено через 28 минут Добавлено через 1 минуту Их у всех много www.domowy.pl/projekty-domow/arn-dom-pod-jarzabem-gpdn.html Заглянув на цей сайт Таке відчуття, що поляки якщо не мають 4! туалета в будинку, то він непригодний для життя. Посилання на коментар Поділитися на інших сайтах More sharing options...
bodidron Опубліковано: 19 грудня 2018 Поділитись Опубліковано: 19 грудня 2018 Заглянув на цей сайт Таке відчуття, що поляки якщо не мають 4! туалета в будинку, то він непригодний для життя. всегда можно на кладовку поменять Посилання на коментар Поділитися на інших сайтах More sharing options...
Рекомендовані повідомлення
Створіть акаунт або увійдіть у нього для коментування
Ви маєте бути користувачем, щоб залишити коментар
Створити акаунт
Зареєструйтеся для отримання акаунта. Це просто!
Зареєструвати акаунтУвійти
Вже зареєстровані? Увійдіть тут.
Увійти зараз