Проблема Опубліковано: 22 жовтня 2009 Поділитись Опубліковано: 22 жовтня 2009 По состоянию на 20.10.2009 частично вырыты траншеи под фундамент, утснавливается опалубка, подсыпается щебень...залив бетона планируется на 22.10.2009...фотоотчет по факту... Сегодня 22.10- с началом Вас! Удачи и беспроблемной работы! 1 Посилання на коментар Поділитися на інших сайтах More sharing options...
andreika Опубліковано: 23 жовтня 2009 Автор Поділитись Опубліковано: 23 жовтня 2009 Итак, продолжаем: на 14.00 должен были прийти бетон 7м3...по факту пришел в 16.30....как объяснили - пробки в Киеве и булыжник попал в миксер и сгорел предохранитель. Как после объяснил прораб, пробки и булыжники будут всегда. Необходимо "бетонщиков" поставить на место... В общем, залили бетон, перепроверили поданный объем - все в норме. Обещанные 7м3 доставлены полностью. Качество бетона отличное. Кому необходимы контакты конторы - прошу в личку, дабы не уличили в рекламе. Продолжаем рыть траншеи, вязать каркасы...Следующий бетон на 27.10.2009. Фотоочет ниже. Посилання на коментар Поділитися на інших сайтах More sharing options...
andreika Опубліковано: 23 жовтня 2009 Автор Поділитись Опубліковано: 23 жовтня 2009 Интересный проект. Нам очень понравился, будем следить за Вашей стройкой. На планах не увидел камина, Вы не планируете его "добавить" ? Успехов в строительстве! В рабочем проекте, по которому строимся, камин есть. К слову говоря, проект почти не меняем - строимся по типовому, т.к. все вполне устраивает, пока... Только лишь, "вставили" дверь из гостиной первого этажа на террасу...и широкий тамбур двухдверный заменили на однодверный, одностворчатый + тепловая завеса.... За добрые пожелания - огромное спасибо! Посилання на коментар Поділитися на інших сайтах More sharing options...
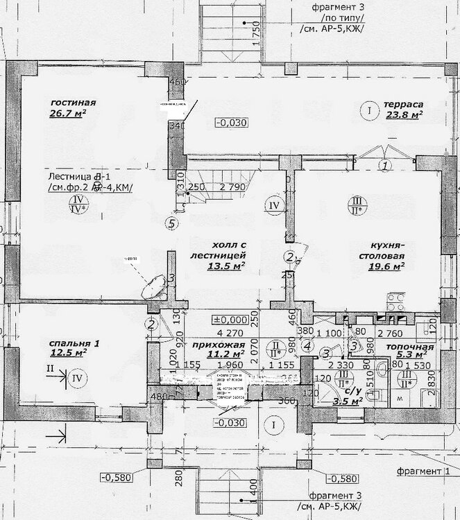
balex22 Опубліковано: 25 жовтня 2009 Поділитись Опубліковано: 25 жовтня 2009 ... В рабочем проекте, по которому строимся, камин есть. .... Здорово! Получается, что Ваш рабочий проект немного отличается от планов и фасадов, что выложены на сайте? (ссылка устарела) Если будет время, немогли бы Вы выложить здесь план первого этажа Вашего рабочего проекта? Заранее спасибо! Посилання на коментар Поділитися на інших сайтах More sharing options...
andreika Опубліковано: 26 жовтня 2009 Автор Поділитись Опубліковано: 26 жовтня 2009 Здорово! Получается, что Ваш рабочий проект немного отличается от планов и фасадов, что выложены на сайте? (ссылка устарела) Если будет время, немогли бы Вы выложить здесь план первого этажа Вашего рабочего проекта? Заранее спасибо! Прошу смотреть ниже... Посилання на коментар Поділитися на інших сайтах More sharing options...
Игорь50 Опубліковано: 6 листопада 2009 Поділитись Опубліковано: 6 листопада 2009 Как продвигается строительство? У меня к сожалению застой. Все болеют. Посилання на коментар Поділитися на інших сайтах More sharing options...
andreika Опубліковано: 6 листопада 2009 Автор Поділитись Опубліковано: 6 листопада 2009 Как продвигается строительство? У меня к сожалению застой. Все болеют. Вот и я о том же...у нас та же самая проблема...Из 5ти человек в бригаде осталось 2...взяли тайм-аут до понедельника, а дальше - по обстоятельствам. Отрадно то, что работают качественно и на совесть. Хоть и долго. Но этому есть объяснение, т.к. заливают фундамент частями по 7м3 от дальнего угла к выходу - подъезда с разных сторон к фундаменту нет. А так бы залили за 2 дня. Выкладываю фотки того, что уже есть из фундамента (ванна уже установлена на место ) + бонус - наши собаки. У нас таких много... На фотографии - "Николь"! Посилання на коментар Поділитися на інших сайтах More sharing options...
andreika Опубліковано: 11 листопада 2009 Автор Поділитись Опубліковано: 11 листопада 2009 Вывозили лишний грунт, т.к. мешал копать траншеи под фундамент, и пригласили экскаватор...уже траншеи под фундамент вырыты полностью... Посилання на коментар Поділитися на інших сайтах More sharing options...
Игорь50 Опубліковано: 12 листопада 2009 Поділитись Опубліковано: 12 листопада 2009 Хорошо что работа движеться в правильном направлении. Удачи вам! Проблема в том что темннеет рано. У меня дел не в проворот.Работы проводятся на улице. Не успеваем Посилання на коментар Поділитися на інших сайтах More sharing options...
andreika Опубліковано: 22 листопада 2009 Автор Поділитись Опубліковано: 22 листопада 2009 ....продолжение истории: по состоянию на 22.11.2009 все еще находимся на стадии фундаментных работ, т.к. очень серьезно подвели поставщики бетона. По их вине фундаментные работы не велись больше недели...все зевтраками кормили и каждый раз давали 100%, что завтра будет бетон. Мы дважды "перехватывали" бетон у других поставщиков попадая при этом на деньги, но усилиями прораба был найден новый поставщик бетона, да и гораздо дешевле, чем предыдущий. В эту субботу, думали, что наконец-то, вылезем из ямы, но не хватило 1,5 м3 бетона...так, что все перенеслось на вторник. Пока ждали бетон - рыли траншею для забора, плели каркасы, устанавливали заборные столбики. Провели на участок эл-во (380 и 220В). Все работает. Фотки ниже...продолжение следует... Посилання на коментар Поділитися на інших сайтах More sharing options...
Рост Опубліковано: 24 листопада 2009 Поділитись Опубліковано: 24 листопада 2009 ...Из 5ти человек в бригаде осталось 2...взяли тайм-аут до понедельника, а дальше - по обстоятельствам. Отрадно то, что работают качественно и на совесть... Рекомендую не сильно хвалить строителей . Я вон своих хвалил, хвалил и... перехвалил... теперь после качественно и на совесть... переделывать нужно. Извините за ОФФ :D Вот Вы еще им такие условия создали - шикарная ванна возле рабочего места :D, точно могут расслабиться :D Удачной стройки! Очень понравился Ваш проект. 2 Посилання на коментар Поділитися на інших сайтах More sharing options...
VoevoDA Опубліковано: 24 листопада 2009 Поділитись Опубліковано: 24 листопада 2009 Первый раз вижу счетчик на дереве Посилання на коментар Поділитися на інших сайтах More sharing options...
andreika Опубліковано: 24 листопада 2009 Автор Поділитись Опубліковано: 24 листопада 2009 Рекомендую не сильно хвалить строителей . Я вон своих хвалил, хвалил и... перехвалил... теперь после качественно и на совесть... переделывать нужно. Извините за ОФФ :D Вот Вы еще им такие условия создали - шикарная ванна возле рабочего места :D, точно могут расслабиться :D Удачной стройки! Очень понравился Ваш проект. Будем надеяться, что это не наш случай Спасибо за добрые пожелания. А ванну пока убирать не будем.... Посилання на коментар Поділитися на інших сайтах More sharing options...
andreika Опубліковано: 24 листопада 2009 Автор Поділитись Опубліковано: 24 листопада 2009 Первый раз вижу счетчик на дереве Хе-хе...все бывает в первый раз :wink:...это временно - как только установим фасадный забор, так тут же на него этот учет и перевесим. Вообще, по правилам кооператива, учет необходимо ставить СНАРУЖИ участка для свободного к нему доступа проверяющих органов. Так что учет на дереве внутри участка не самый худший вариант от вандалов и гоблинов, коих в Осокорках немеряно 1 Посилання на коментар Поділитися на інших сайтах More sharing options...
andreika Опубліковано: 27 листопада 2009 Автор Поділитись Опубліковано: 27 листопада 2009 ...продолжаем историю: уже подсыпали щебень, предварительно послойно пролив и протрамбовав обратно подсыпанный грунт. В субботу вяжут каркасы для пола по грунту. Бетон для пола подают в понедельник. Продолжение следует... Посилання на коментар Поділитися на інших сайтах More sharing options...
andreika Опубліковано: 28 листопада 2009 Автор Поділитись Опубліковано: 28 листопада 2009 продолжаем повествование: рабочие вяжут арматуру под пол по грунту...на фотографиях приямок для вводов-выводов, выбран грунт под пяту для камина и ленты под стену между гостиной и спальней 1 этажа. Где приямок для вводов-выводов, там будет топочная и санузел 1этажа...далее фото направа - сохраненный старый погрем и крыльцо с выводами приточно-вытяжной вентиляции погреба...продолжение следует Посилання на коментар Поділитися на інших сайтах More sharing options...
andreika Опубліковано: 5 грудня 2009 Автор Поділитись Опубліковано: 5 грудня 2009 Прошло почти две недели с момента моего последнего поста. Работы на месте не стояли и фундамент уже почти закончен. Осталось только отлить цоколь высотой 20 см. от уровня плиты пола по грунту. На фотках арматурные каркасы пола по грунту, сам залитый пол (толщина 11-12 см.) по щебневой подушке. Сегодня же измеряли геометрию фундамента. (диагонали и нивелиром горизонтальность). Измерение диагоналей показало разницу в 2-4 см... 2 см. по замерам строителей и 4 см. по моим замерам вместе со строителями. В принципе, понимаю, что это не очень критично на расстоянии в 17,5 м. но "осадок"...А Вы, форумчане, что думаете по этому поводу? Горизонтальность пола была в пределах (-1,5) см. на длине 13м. Т.е. одна сторона дома на 1,5 см. выше, чем противоположная или наоборот, если хотите. Так же прошу Ваших комментариев. Заранее премного благодарен. На 8-9 декабря планируем начать класть стены из газоблока Хеттен 300х400х600 одновременно с внутренними стенами (рядовой кирпич М100 полнотелый). Продолжение следует.......ах да...забыл спросить...ниже на фото 3 и 4 заанкеренные колонны...согласно проекта каркас колонн крепиться к 4м "Г" образным перевернутым анкерам, а анкеров всего то 2 для одного каркаса колонны и 1 для другого. "Чуйка" подсказывает, то все будет в порядке, а вот самовольное отклонение от проекта с попыткой утаить сей факт - волнует... Посилання на коментар Поділитися на інших сайтах More sharing options...
Vit осокорки Опубліковано: 9 грудня 2009 Поділитись Опубліковано: 9 грудня 2009 Я вижу, много застройщиков в Осокорках. Мы на 41 улице возле Днепра. А давайте организуем региональный раздел для Осокорков? Много общих проблем. Например, скважины, что меня сейчас интересует. Согласен на все 100%:D Осокорковцы в отдельный раздел- у нас своей много специфики. Посилання на коментар Поділитися на інших сайтах More sharing options...
andreika Опубліковано: 12 грудня 2009 Автор Поділитись Опубліковано: 12 грудня 2009 Продолжаем рассказ: уже залит цоколь по периметру и монтируется опалубка для внутренних цоколей под стены и лестниц входных. Погода не балует, но строители останавливаться не хотят. Их можно понять, т.к. необходимо зарабатывать деньги, но строительные нормы сильнее, тем более, что мне спешить некуда. Да и работы при минусовых температурах стоит больших денег, моих денег! Договорились, что при ниже -5 кладочные и бетонные работы приостанавливаются. Будут делать что-либо другое, слава богу на стройке таких работ масса. Тем временем приехала первая партия газоблока Хеттен-ХСМ 200х400х600 и корпича М100 рядового, Черкасского. Газоблок высокоточный, ровный. Кирпич тоже ровненький, но хрупковат-мягковат, но на внутренние стены пойдет. Приехало все вовремя с оплатой на месте. НИКАКОЙ ПРЕДОПЛТЫ. Фото прилагаются. Продолжение следует. Посилання на коментар Поділитися на інших сайтах More sharing options...
Иван37 Опубліковано: 17 грудня 2009 Поділитись Опубліковано: 17 грудня 2009 Так что с продолжением? Посилання на коментар Поділитися на інших сайтах More sharing options...
andreika Опубліковано: 18 грудня 2009 Автор Поділитись Опубліковано: 18 грудня 2009 Так что с продолжением? дык холодно...вот и нет продолжения:D Посилання на коментар Поділитися на інших сайтах More sharing options...
andreika Опубліковано: 30 грудня 2009 Автор Поділитись Опубліковано: 30 грудня 2009 И снова здравствуйте...прошло 12 дней с момента последнего поста...работы, когда позволяли погодные условия, на месте не стояли. Долили внутренние цоколя, обе лестницы и уложили первый ряд газоблока. На следующий день пошел сильный снег...работы остановили на праздники и до вменяемого потепления. Сейчас все стоит под снегом. Продолжение следует. Фотоотчет прилагается. Посилання на коментар Поділитися на інших сайтах More sharing options...
andreika Опубліковано: 2 січня 2010 Автор Поділитись Опубліковано: 2 січня 2010 Здрасте)))).... И с новым Вас всех Годом!!! ....нУ И ШО ТУТ ТОКОГО, что позже на 2 сутки....))) пока со стройкой стои...но работать будем...скоро...наверное....когда нибудь...пока песателе и исправлял ошибки - - устал...извигните...поломкася...продолженние следует... Посилання на коментар Поділитися на інших сайтах More sharing options...
andreika Опубліковано: 16 січня 2010 Автор Поділитись Опубліковано: 16 січня 2010 Доброго времени суток всем. Немного освежу веточку и понапрашиваюсь на Ваши мнения / комментарии. Постараюсь быть максимально точен в описании ситуаций, т.к. форум читает мой прораб...да и в целом, врать нехорошо! Немного спустя после празднований нового года, строители приступили к работе, абсолютно четко зная (мои многократные просьбы), что НИКАКИХ "мокрых" работ при температурах ниже -5 градусов. "Антимороз" добавлять в раствор обязательно. Придя сегодня на стройку, обнаружил выросшие стены...Положа руку на сердце, скажу, что таки да, были дни, когда температура была гораздо выше -5...т.е. предположим, что строители возводили стены при должной температуре. Вопрос форумчанам: как ночное понижение температуры ниже -5 повлияет на схватывание свежего раствора и чем это чревато для стен и их прочности? Далее, толщина кладочных швов газоблока: для того, чтобы все было "по уму", был приобретен высокоточный газоблок Хеттен с геометрией +- 1,5мм. При нормативной толщине шва в 3 мм, у меня получаются швы толщиной и 3 и 5 и 6 и, кое где, 8 мм. Скажите пожалуйста, уважаемые форумчане, это нормально? В противном случае, я бы купил неточный газоблок и кладите себе его на раствор, что еть ГОРАЗДО дешевле....Сравнивая мои стены со стенами других форумчан понимаю, что при прочих равных, мой ни на какую голову не налазят. Строители говорят, что блоки кривые и разница в толщине шва "набегает"... Я думаю, что просто ленятся подбирать блоки друг к другу, не притирают их теркой, не умеют класть газоблок на клей, свой вариант... (нужное подчеркнуть). Прокомментируйте, пожалуйста. И вопрос к форумчанам: как изготавляют газоблок? Нарезают его в пачке, которую нам и привозят, или укладывают его в пачку уже нарезанным? У меня смешанные чувства насчет этой бригады...фундамент сделали ОТЛИЧНО, а вот дальше меня берут сомнения. Посоветуйте, что бы Вы сделали на моем месте? Спасибо! О хорошем: прибился песик...девочка...строители подкармливают...перезимовать ей надо!!! Совсем маленькая.... Фотоотчет ниже 2 Посилання на коментар Поділитися на інших сайтах More sharing options...
INTERRO Опубліковано: 17 січня 2010 Поділитись Опубліковано: 17 січня 2010 Я строился из газобетона Хёттен. Посмотрите мою ветку www.stroimdom.com.ua/forum/showthread.php?t=10261&page=2 Сами блоки конечно не идеальны, расход клея повышенный, швы естественно не в 3 мм. Для Хёттена это нормально. Сам блок прочный и соответствует нормативам по прочности. Хёттен не являеется высокоточным газобетоном. Он эдакий середнячок. Но, опускаться к покупке ещё более "не точного" блока, каким являеется Купянский, не следует. Как пример, моя стройка, где первый этаж положен Купянским газобетоном, а второй Хёттеном. На заводе, выйдя с автоклава, идёт нарезка на блоки, далее загрузка на паллеты. В паллетах блоки прижаты друг к другу, и уже на стройплощадке приходится прикладывать силу, чтоб блоки разобрать. Использование "зимнего" клея при кладке, в дальнейшем не несёт проблем со швами и прочностью. Проверено на своём опыте. 2 Посилання на коментар Поділитися на інших сайтах More sharing options...
Рекомендовані повідомлення
Створіть акаунт або увійдіть у нього для коментування
Ви маєте бути користувачем, щоб залишити коментар
Створити акаунт
Зареєструйтеся для отримання акаунта. Це просто!
Зареєструвати акаунтУвійти
Вже зареєстровані? Увійдіть тут.
Увійти зараз