igor_gia Опубліковано: 6 серпня 2019 Поділитись Опубліковано: 6 серпня 2019 Всем привет. Есть 1к квартира в новостройке. Несмотря на то, что застройщик пожлобился на одинаковые корзины для кондиционеров, места их размещения чётко регламентировал. И, главное, запретил выводить патрубки слива конденсата кондиционера на улицу. Но, при этом застройщик совсем никак не побеспокоился о том, куда все-таки сбрасывать конденсат. Лично мое мнение - единые решетки и дренажные стояки должны стать правилом любой новостройки. Мне тоже не нравится дождь от кондиционеров на улице и хаотично облепленные кондиционерами фасады домов. На вопрос куда сливать конденсат, застройщик предлагает устанавливать индивидуальные испарители или распылители конденсата. Первый раз с такими устройствами сталкиваюсь. Гугл нашел аж 1 производителя - Hyppo Wigam. Может, плохо искал, но факт - данные устройства не распространены, требуют периодического обслуживания и т.п. Более правильный вариант - сливать конденсат в канализацию. Уже сталкивался с таким решением. Но в моей планировке я пока не представляю как дотянуться до канализации. Пока в раздумьях возникла идея - использовать канализационный стояк соседей. Технически, вроде, можно решить. От их тройника стояка сделать дополнительный отвод диаметром 40 или 50 мм и зайти им в мою квартиру в гардеробную. Проход трубы сквозь стену тщательно герметизировать а саму трубку завести в какой-то накладной бокс, в котором разместить сифон. В гардеробной чуть выше пола эта подвесная коробка мешать не будет. А, вот, организационно, договориться с соседями, застройщиком, ЖЭКом, думаю нереально. Так что, этот вариант, пожалуй, из области фантастики. Какие еще могут быть идеи, варианты??? Посилання на коментар Поділитися на інших сайтах More sharing options...
Зелёный город Опубліковано: 6 серпня 2019 Поділитись Опубліковано: 6 серпня 2019 Дренажный насос поставить и отвести трубку в канальку, куда ближе. Черно-белый план - это соседи? Посилання на коментар Поділитися на інших сайтах More sharing options...
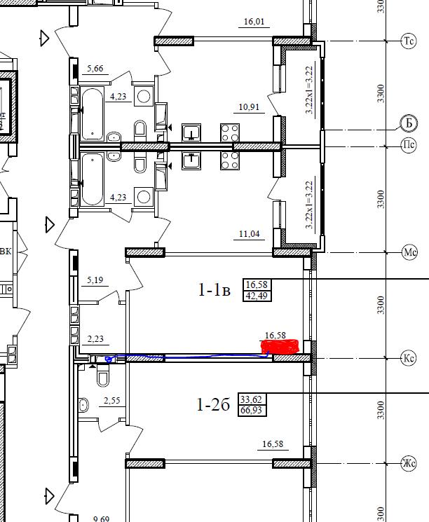
igor_gia Опубліковано: 6 серпня 2019 Автор Поділитись Опубліковано: 6 серпня 2019 Дренажный насос поставить и отвести трубку в канальку, куда ближе. Черно-белый план - это соседи? Да, черно-белый план, это кусок этажного плана. Обсуждаемая квартира на нем 1-1В. Красным нарисован внутренний блок кондиционера. Синяя линия - предлагаемая трасса дренажа в стояк соседей. В квартире 1 канализационный стояк (на рисунках вверху, между кухней и санузлом), к которому никак не подойти, даже с использованием насоса. Разве что делать фальш-потолок и несколько дренажных насосов. Посилання на коментар Поділитися на інших сайтах More sharing options...
Зелёный город Опубліковано: 7 серпня 2019 Поділитись Опубліковано: 7 серпня 2019 Внутренний блок уже висит? Есть Mute Wedge, монтируется под внутренним блоком, для кондиционеров до 46 kW, макс. длинна дренажа 20 м., можно куда угодно трубку отвести. 1 Посилання на коментар Поділитися на інших сайтах More sharing options...
igor_gia Опубліковано: 7 серпня 2019 Автор Поділитись Опубліковано: 7 серпня 2019 Внутренний блок уже висит? Есть Mute Wedge, монтируется под внутренним блоком, для кондиционеров до 46 kW, макс. длинна дренажа 20 м., можно куда угодно трубку отвести. Еще ничего не установлено, даже трассы еще не проложены. И как мне поможет насос? Нет возможности провести дренажную трассу до канализации. Тянуть от внутреннего блока в сторону наружного, потом по стене спальни до коридора. А коридор никак не пройти. Второй вариант - тянуть в сторону кухни, но там дверь выхода на балкон не пройти. Посилання на коментар Поділитися на інших сайтах More sharing options...
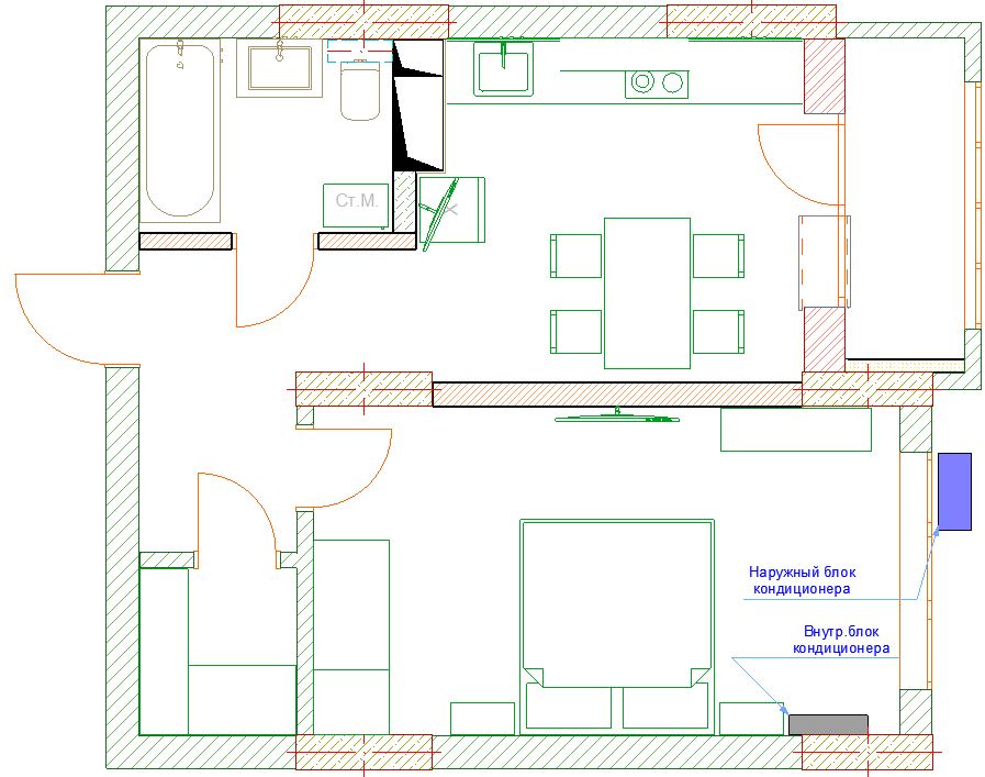
Зелёный город Опубліковано: 7 серпня 2019 Поділитись Опубліковано: 7 серпня 2019 Если внутренний блок повесить на другой стене, должно все получится и дренажник можно другой ставить, скрытого монтажа. Синеньким нарисовал, не быть мне художником) Посилання на коментар Поділитися на інших сайтах More sharing options...
igor_gia Опубліковано: 7 серпня 2019 Автор Поділитись Опубліковано: 7 серпня 2019 Если внутренний блок повесить на другой стене, должно все получится и дренажник можно другой ставить, скрытого монтажа. Синеньким нарисовал, не быть мне художником) Спасибо, но: 1. Размещение внутреннего блока напротив кровати не лучшая идея, будет постоянно дуть в лицо. Уже проходили. 2. Планируется демонтаж дверного проема в кухню (см. верхний рисунок). Посилання на коментар Поділитися на інших сайтах More sharing options...
Зелёный город Опубліковано: 7 серпня 2019 Поділитись Опубліковано: 7 серпня 2019 будет постоянно дуть в лицо От этой напасти есть дефлекторы (защитный экран - перенаправляет поток воздуха). Я так понимаю ремонта тоже еще нет, только голые стены, лучше все таки чтобы пришел спец и оценил трезвым взглядом, куда ставить, как отводить. На месте Вы этот вопрос решите быстрее. Планируется демонтаж дверного проема в кухню Трубочку там спрятать найдется куда. 1 Посилання на коментар Поділитися на інших сайтах More sharing options...
igor_gia Опубліковано: 7 серпня 2019 Автор Поділитись Опубліковано: 7 серпня 2019 Спасибо. Понятное дело, буду приглашать спецов. Но для начала хотел выяснить для себя возможные варианты и тему с испарителем/распылителем конденсата. По поводу дренажа - штробить стяжку в полу опасно, можно пробить коммуникации, в частности, трубы отопления, а потолок монолитный тоже не очень правильно штробить. А как еще провести трубку через коридор в кухню, я не знаю. 1 Посилання на коментар Поділитися на інших сайтах More sharing options...
Зелёный город Опубліковано: 7 серпня 2019 Поділитись Опубліковано: 7 серпня 2019 испарителем/распылителем конденсата Про эти штуки не в курсе. Посилання на коментар Поділитися на інших сайтах More sharing options...
DimaF Опубліковано: 8 серпня 2019 Поділитись Опубліковано: 8 серпня 2019 штробить стяжку в полу опасно Да там до труб отопления сантиметра 3 будет, а то и больше. Можно раскалупать возле батареи, посмотреть. А сама трубка сантиметр в диаметре. Все возможно. Трубку пустить на искосок по кратчайшему пути. (обычно трубы отопления идут вдоль стен) Посилання на коментар Поділитися на інших сайтах More sharing options...
Рекомендовані повідомлення
Створіть акаунт або увійдіть у нього для коментування
Ви маєте бути користувачем, щоб залишити коментар
Створити акаунт
Зареєструйтеся для отримання акаунта. Це просто!
Зареєструвати акаунтУвійти
Вже зареєстровані? Увійдіть тут.
Увійти зараз