Gamburger Опубліковано: 22 жовтня 2009 Поділитись Опубліковано: 22 жовтня 2009 Ну вот и я по примеру энтузиастов - домостроителей с форума, и особенно Лесного Мангостроя обзавёлся земельным участком. После 2 - 3 месяцев поисков нашли участок 14,4 сотки в Макарове на границе с Гавронщиной по вменяемой цене. Участок недалеко от гольф клуба, фасадный около дороги. Электричество метрах в 15 от участка. С газом тяжелее - распределитель видел километрах в 2-3 от участка так что это счастье нам не скоро светит. После покупки и оформлений земли осталось 15 штук долларов. Остальное даст Бог дособираем до весны. Начинать строительство планируем с бюджетом около 20 тыщ уёв и строиться поэтапно. Уже месяц как пытаюсь вырваться в макаровские земельные ресурсы чтобы зарегистрировать договор. Надеюсь на этой неделе получится сдать все документы. Тем временем мудрю с женой над планом дома и ищу архитектора. От типового проекта пожалуй откажусь, поскольку адаптировать и пересчитывать под геологию и мои стройматериалы всё равно придётся. Планируем строить одноэтажный дом с жилой мансардой общей площадью около 140 метров. Параметры по фундаменту 11 метров*7 метров. Высота потолков первого этажа около 3 метров, в мансарде - как выйдет Согласованные с женой планы первого и второго этажа выложу на днях. Так что первый и самый главный этап согласований "проектной документации" пройден Останется только найти архитектора и обсудить возможность воплощения всех этих идей в жизнь. Внешне домик будет простой без архитектурных изысков и излишеств. Примерно вот такой: proekty.muratordom.com.ua/projekt?grupa=1&IdProjektu=285&IdKolekcji=&id_grupy=0&typ_budynku=&nazwa=%D0%B7%D0%B8%D0%B3%D0%BC%D1%83%D0%BD%D1%82%D0%B0&symbol=&powierzchnia_od=%D0%BE%D1%82&powierzchnia_do=%D0%B4%D0%BE&powierzchnia_zab_od=%D0%BE%D1%82&powierzchnia_zab_do=%D0%B4%D0%BE&typ_budynku_dom=brak_dom&typ_budynku_garaz=brak_garaz&x=0&y=0&nr=0 или такой proekty.muratordom.com.ua/projekt?grupa=1&IdProjektu=332&IdKolekcji=&id_grupy=0&typ_budynku=&nazwa=%D0%B5%D0%B6%D0%B5%D0%B4%D0%BD%D0%B5%D0%B2%D0%BD%D1%8B%D0%B9&symbol=&powierzchnia_od=%D0%BE%D1%82&powierzchnia_do=%D0%B4%D0%BE&powierzchnia_zab_od=%D0%BE%D1%82&powierzchnia_zab_do=%D0%B4%D0%BE&typ_budynku_dom=brak_dom&typ_budynku_garaz=brak_garaz&x=0&y=0&nr=1 но это только внешний вид. Требования к проекту на данном этапе такие: На первом этаже обязательно долно быть 2 жилые комнаты (гостинная и детская), ванная и туалет, котельная, кухня - поскольку предполагается что строиться будет этапами. Сначала строим коробку за год и накрываем крышей. на второй сезон делается отделка первого этажа и заселение с обживание. второй этаж закрывается до лучших времён и ремонтируется постепенно. Поскольку газ скорее всего окажется делом дорогим - отопление планируется твердотопливным котлом (как основной вид) + электроотопление (для горячего водоснабжения) + камин-печь (в стене между гостинной и детской для обогрева сразу 2 комнат). Так покрайней мере на первое время - пока с кемто не протянем газ, или пока его не подтянут поближе к нашему участку. После регистрации договора купли - продажи земли пойду в архитектуру справляться что там с градостроительными условиями и ограничениями (в прошлом разрешение на проектирование и строительство). Посилання на коментар Поділитися на інших сайтах More sharing options...
первый домик Опубліковано: 22 жовтня 2009 Поділитись Опубліковано: 22 жовтня 2009 Искренне поздравляю! Примеры домов очень аккуратные, простые и действительно без изысков (не считая, оранжереи в первом варианте). Посмотрите вот этот проект www.postroi.ru/projects/y-143-1s/ По моему мнению, он тоже прост, но выглядит более современно. Архитектора Вы без труда можете найти и на этом форуме. К тому же уже с рекомендациями пользователей. Скажите, а из чего будете строить… кирпич?, газобетон?, каркасник? И, во сколько земля под Макаровом обошлась? Здесь много людей (в том числе и я) мониторит цены, но стоимость реальной сделки - лучший показатель! Да, и желаю Вам скорейшего начала лёгкой, интересной и приятной постройки дома! Посилання на коментар Поділитися на інших сайтах More sharing options...
Alex30 Опубліковано: 22 жовтня 2009 Поділитись Опубліковано: 22 жовтня 2009 Ну вот и я по примеру энтузиастов - домостроителей с форума, и особенно Лесного Мангостроя обзавёлся земельным участком. После 2 - 3 месяцев поисков нашли участок 14,4 сотки в Макарове на границе с Гавронщиной по вменяемой цене. Участок недалеко от гольф клуба, фасадный около дороги. Электричество метрах в 15 от участка. С газом тяжелее - распределитель видел километрах в 2-3 от участка так что это счастье нам не скоро светит. После покупки и оформлений земли осталось 15 штук долларов. Остальное даст Бог дособираем до весны. Начинать строительство планируем с бюджетом около 20 тыщ уёв и строиться поэтапно. Уже месяц как пытаюсь вырваться в макаровские земельные ресурсы чтобы зарегистрировать договор. Надеюсь на этой неделе получится сдать все документы. Тем временем мудрю с женой над планом дома и ищу архитектора. От типового проекта пожалуй откажусь, поскольку адаптировать и пересчитывать под геологию и мои стройматериалы всё равно придётся. Планируем строить одноэтажный дом с жилой мансардой общей площадью около 140 метров. Параметры по фундаменту 11 метров*7 метров. Высота потолков первого этажа около 3 метров, в мансарде - как выйдет Согласованные с женой планы первого и второго этажа выложу на днях. Так что первый и самый главный этап согласований "проектной документации" пройден Останется только найти архитектора и обсудить возможность воплощения всех этих идей в жизнь. Внешне домик будет простой без архитектурных изысков и излишеств. Примерно вот такой: proekty.muratordom.com.ua/projekt?grupa=1&IdProjektu=285&IdKolekcji=&id_grupy=0&typ_budynku=&nazwa=%D0%B7%D0%B8%D0%B3%D0%BC%D1%83%D0%BD%D1%82%D0%B0&symbol=&powierzchnia_od=%D0%BE%D1%82&powierzchnia_do=%D0%B4%D0%BE&powierzchnia_zab_od=%D0%BE%D1%82&powierzchnia_zab_do=%D0%B4%D0%BE&typ_budynku_dom=brak_dom&typ_budynku_garaz=brak_garaz&x=0&y=0&nr=0 или такой proekty.muratordom.com.ua/projekt?grupa=1&IdProjektu=332&IdKolekcji=&id_grupy=0&typ_budynku=&nazwa=%D0%B5%D0%B6%D0%B5%D0%B4%D0%BD%D0%B5%D0%B2%D0%BD%D1%8B%D0%B9&symbol=&powierzchnia_od=%D0%BE%D1%82&powierzchnia_do=%D0%B4%D0%BE&powierzchnia_zab_od=%D0%BE%D1%82&powierzchnia_zab_do=%D0%B4%D0%BE&typ_budynku_dom=brak_dom&typ_budynku_garaz=brak_garaz&x=0&y=0&nr=1 но это только внешний вид. Требования к проекту на данном этапе такие: На первом этаже обязательно долно быть 2 жилые комнаты (гостинная и детская), ванная и туалет, котельная, кухня - поскольку предполагается что строиться будет этапами. Сначала строим коробку за год и накрываем крышей. на второй сезон делается отделка первого этажа и заселение с обживание. второй этаж закрывается до лучших времён и ремонтируется постепенно. Поскольку газ скорее всего окажется делом дорогим - отопление планируется твердотопливным котлом (как основной вид) + электроотопление (для горячего водоснабжения) + камин-печь (в стене между гостинной и детской для обогрева сразу 2 комнат). Так покрайней мере на первое время - пока с кемто не протянем газ, или пока его не подтянут поближе к нашему участку. После регистрации договора купли - продажи земли пойду в архитектуру справляться что там с градостроительными условиями и ограничениями (в прошлом разрешение на проектирование и строительство). Удачи Вам в строительстве... Почти соседи... Мы в Юрове.... Дом 9,5х10,5, но по факту получилось чуток больше из-за косяков "фундаментщиков" и вообще сырого проекта Архон... Посилання на коментар Поділитися на інших сайтах More sharing options...
Gamburger Опубліковано: 22 жовтня 2009 Автор Поділитись Опубліковано: 22 жовтня 2009 14,5 соток обошлись мне в 11500 долларов включая гонорар посредника. Завлекали конечно с цены 350 - 400 за сотку ... но это мол был участок в глубине массива где комуникации далеко, а тот что я купил фасадный и возле дороги рядом, и электричество в 2 шагах и бла-бла-бла .... короче торговаться я не умею ... и того имеем за сотку порядка 790 долларов . целевое назначение - "под строительство жилого дома с хозяйственными постройками". Можно было конечно за 300 - 400 уёв купить под вышгородом в сёлах ... но поскольку у меня семья и дети - вопрос наличия инфраструктуры вокруг нормальной (школа, садик, магазины, больница) был важен при выборе участка. Посему отдали преимущество Макарову и большей цене. Посилання на коментар Поділитися на інших сайтах More sharing options...
Gamburger Опубліковано: 22 жовтня 2009 Автор Поділитись Опубліковано: 22 жовтня 2009 Удачи Вам в строительстве... Почти соседи... Мы в Юрове.... Дом 9,5х10,5, но по факту получилось чуток больше из-за косяков "фундаментщиков" и вообще сырого проекта Архон... То есть вы купили типовой проект а подом по нему строили? мне вот архитектор говорит мол типовой проект - это стадия "П" которая не нужна ни для утверждения ни построить по ней строители толком не могут. мол нужно делать эскизный проект и рабочую документацию, по которой строиться. вы что скажете по поводу проектов? что заказывали и по каким чертежам строились? у вас есть ветка про вашу стройку? Посилання на коментар Поділитися на інших сайтах More sharing options...
Gamburger Опубліковано: 22 жовтня 2009 Автор Поділитись Опубліковано: 22 жовтня 2009 Посмотрите вот этот проект www.postroi.ru/projects/y-143-1s/ По моему мнению, он тоже прост, но выглядит более современно. Архитектора Вы без труда можете найти и на этом форуме. К тому же уже с рекомендациями пользователей. Скажите, а из чего будете строить… кирпич?, газобетон?, каркасник? Да внешне действительно посовременнее выглядит и фасадные плиты неплохо смотряться ... по крайней мере на картинке. строить планируем из газобетона по причине меньшей цены и простоты с быстротой. Планирую коробку выгонять своими силами чтобы немного сыкономить. так что кажется с газобетоном самому проще работать. на фундамент и крышу будем нанимать кого-то Посилання на коментар Поділитися на інших сайтах More sharing options...
Alex30 Опубліковано: 22 жовтня 2009 Поділитись Опубліковано: 22 жовтня 2009 То есть вы купили типовой проект а подом по нему строили? мне вот архитектор говорит мол типовой проект - это стадия "П" которая не нужна ни для утверждения ни построить по ней строители толком не могут. мол нужно делать эскизный проект и рабочую документацию, по которой строиться. вы что скажете по поводу проектов? что заказывали и по каким чертежам строились? у вас есть ветка про вашу стройку? Ваш архитектор абсолютно прав! Мы купили за 700 баксов в 2008 году... Сейчас не понимаю - НАХРЕНА? На самом деле что бы получить разрешения - он не нужен, а также Архоновские чертежи так - для концепции.. Мы когда приехали с нашим проектом к подрядчику - он улыбнулся... И пришлось переделать.. Ветки нет, но если есть желание посмотреть на то, что получается - вэлкам... Часто ездим к себе "в село":-D Захотите - пишите;) Посилання на коментар Поділитися на інших сайтах More sharing options...
veer65 Опубліковано: 22 жовтня 2009 Поділитись Опубліковано: 22 жовтня 2009 По Макаровскому управлению зем. ресурсы желаю набраться терпения Тяжелий вопрос - оформление в данной организации своих прав Посилання на коментар Поділитися на інших сайтах More sharing options...
Pro100user Опубліковано: 22 жовтня 2009 Поділитись Опубліковано: 22 жовтня 2009 Проект каркасного дома № Y-143-1S Во-первых, спасибо за ссылку на такой красивый проект. Сохранил себе для раздумий. А во-вторых, проект под каркасное(!) строительство. И это немаловажно, т.к. там есть моменты, которые реализовать в кирпиче и с плитами перекрытия... ну можно наверное, но мне (с моими нестроительными познаниями) кажется нереально. [ на фундамент и крышу будем нанимать кого-то а чего вы так фундамента боитесь? Тоже можно самому сделать. Ничего там сложного. Просто много физического труда. В часности - много копать. Но на это можно нанять подсобников и сказать откуда и до кудова копать. Арматуру вязать, опалубку ставить - какие проблемы? Крышу это без вопросов - к специалистам. Хотя. Смотря какая крыша. Проект каркасного дома № Y-143-1S Во-первых, спасибо за ссылку на такой красивый проект. Сохранил себе для раздумий. А во-вторых, проект под каркасное(!) строительство. И это немаловажно, т.к. там есть моменты, которые реализовать в кирпиче и с плитами перекрытия... ну можно наверное, но мне (с моими нестроительными познаниями) кажется нереально. Посилання на коментар Поділитися на інших сайтах More sharing options...
Alex30 Опубліковано: 22 жовтня 2009 Поділитись Опубліковано: 22 жовтня 2009 а чего вы так фундамента боитесь? Тоже можно самому сделать. Ничего там сложного. Просто много физического труда. В часности - много копать. Но на это можно нанять подсобников и сказать откуда и до кудова копать. Арматуру вязать, опалубку ставить - какие проблемы? Эу.... Эу.... Не гоните лошадей, Уважаемый и, не сбивайте с толку людей.. И в конце концов не пишите ЧУШЬ..... Вы слышите себя? Как же все просто.... Взял выкопал ат сель и да сель, связал арматуру и залил.. А вы знаете геологию и на сколько копать нужно? А правильно ли сделает разбивку наш Уважаемый форумчанин? А какую арматуру нужно? А каков чертеж связки арматуры? А какой бетон? Ит.д. и т.п. По сему: фундамент и крыша - это как.... Ну я не знаю... С чем сравнить.... Так что давайте поменьше бравады и пусть человек делает все так, как нужно.. А экономия? А экономит там, где это НЕ ОПАСНО И ГДЕ МОЖНО:beer::beer:8-) Посилання на коментар Поділитися на інших сайтах More sharing options...
Pro100user Опубліковано: 22 жовтня 2009 Поділитись Опубліковано: 22 жовтня 2009 (змінено) Alex30, я же не предлагаю строить типовой проект по рисунку из интернета на купленном вчера участке. Конечно же подразумевается наличие посчитаного под конкретные условия проекта. А уже в проекте начерчено куда копать и написано каким бетоном заливать фундамент. Ведь строители которые приходят строить вам фундамент тоже ж не вникают в геологию учаска - они строят по предоставленому проекту. А вот как этот проект будет посчитан это именно то о чем вы пишете - тут никакой самодеятельности. Змінено 22 жовтня 2009 користувачем Pro100user Посилання на коментар Поділитися на інших сайтах More sharing options...
Maria Опубліковано: 23 жовтня 2009 Поділитись Опубліковано: 23 жовтня 2009 Мы тоже собирались нанимать на фундамент строительную организацию, но когда нам посчитали стоимость, она оказалась выше, чем мы планировали на постройку всего дома, вместе с крышей и окнами. Поэтому фундамент делали своими силами с помощью подсобников, поскольку работа реально тяжелая. Дом пока стоит и не жалуется. Не думаю, что заливка фундамента сложнее, чем укладка газобетона. Поэтому, если руки растут оттуда, откуда надо и плюс еще и голова на плечах есть, то спокойно можно сделать и самому. Не бойтесь и искренне желаю Вам удачи. Посилання на коментар Поділитися на інших сайтах More sharing options...
D@redevil Опубліковано: 23 жовтня 2009 Поділитись Опубліковано: 23 жовтня 2009 С почином вас Ну поделюсь и я своим опытом, правда, у меня было чуть сложнее- был фундамент (остался от сгоревшего дома) и к нему нужно было привязать проект дома, тк вкладывать деньги в переделку фундамента не было никакого желания. В целом мы представляли что можно там построить+ в интернете нашли типовой проект, который нам понравился внешне. Распечатали, взяли чертеж фундамента и отправились в архитектурное бюро, где за 2 недели и 800 уе нам сделали эскизный проект. Зачем мы его делали? Причин было несколько 1-строителям легче работать по роекту, а не "а вот тут мне еще комнатку" 2-мне сказали, что для того, чтобы дом узаконить проект нужен будет в любом случае (в моем случае -неправда, тк дом на садовом участке, оформляю как постройку до 1991 года, а значит по упрощенной схеме, которая не требует ввода в эксплуатацию, а следовательно и предоставления проекта) 3-мы, как ни старались, не могли придумать планировку второго этажа так, чтобы вписать гармонично лестницу+сделать выход на террасу с 2х комнат выводы: если вы в состоянии сделать эскизный проект сами+ расчитать, каким образом у вас будет идти перекрытие и каким оно будет (этим у меня занималась маман-инженер:D), а также, если дом не потребует ввода в эксплуатацию (как в моем случае), то и заморачиваться с проектом , выбрасывая на него деньги, не стоит...хотя проект-очень удобно и выручал и в стройке, для виденья целосности окончательного строения+при разработке дизайна фасада+при планировке отопления и тд По фундаменту- очень тяжелая работа+требующая тех. знаний (как вязать, какие грунты, уровень промерзания и тд и тп), говорю, тк свой фундамент мы делали сами 20 лет назад...я, хоть и была ребенком, но хорошо помню этот титанический труд под палящим солнцем...а еще помню 5 лет назад, как мы с маман поднимали уровень+заливали полы в гараже бетоном. Все это без бетономешалки-корыто+лопаты+тачка. Жесть Думаю, что вы правы, решив доверить фундамент и крышу специалистам Посилання на коментар Поділитися на інших сайтах More sharing options...
Gamburger Опубліковано: 23 жовтня 2009 Автор Поділитись Опубліковано: 23 жовтня 2009 Ну вот сегодня съездил в зем ресурсы чтобы мне сделали на госакте отметку о переходе права собственности. Написал заявление чтобы всё это сделали. Сказали мол ждите где-то месяц пока мы не позвоним. Тем временем они ищут техдокументацию на участок предыдущего собственника. Через месяц мол приезжайте - тогда мы вашу заяву официально оформим и еще через месяц где-то сделаем отметку . Пока ждём. Тем временем прогулялся к участку и узнал о первом попандозе Подошол справиться про стройку у парня который строиться метрах в 500 от моего участка. Спрашиваю мол как грутны и вода. Он говорит мол - грунты песок, мол фундамент мелкозаглублённый делал. Вода метров 6-7. Я обрадовался мол - хорошо. дешевле фундамент будет. Пока отходил от него он кричит вслед мне - мол а что с электричеством у нас? я ему киваю на линию вдоль его участка и говорю - так вот жеж вроде. А он мне - не чувак - это десятка. Тут без ТП никак, а она стоит милион или около того. ШИТ! Сразу вспомнилась хитрая морда продавцом и брокерши которые заливали что вот мол электричество под участком прямо ... Пока отхожу от шока ... :unknown: Кто знает сколько может стоить ТП для того чтобы сделать возможным подключение электричества от дома к такой линии электропередач Посилання на коментар Поділитися на інших сайтах More sharing options...
Alex30 Опубліковано: 23 жовтня 2009 Поділитись Опубліковано: 23 жовтня 2009 Ну вот сегодня съездил в зем ресурсы чтобы мне сделали на госакте отметку о переходе права собственности. Написал заявление чтобы всё это сделали. Сказали мол ждите где-то месяц пока мы не позвоним. Тем временем они ищут техдокументацию на участок предыдущего собственника. Через месяц мол приезжайте - тогда мы вашу заяву официально оформим и еще через месяц где-то сделаем отметку . Пока ждём. Тем временем прогулялся к участку и узнал о первом попандозе Подошол справиться про стройку у парня который строиться метрах в 500 от моего участка. Спрашиваю мол как грутны и вода. Он говорит мол - грунты песок, мол фундамент мелкозаглублённый делал. Вода метров 6-7. Я обрадовался мол - хорошо. дешевле фундамент будет. Пока отходил от него он кричит вслед мне - мол а что с электричеством у нас? я ему киваю на линию вдоль его участка и говорю - так вот жеж вроде. А он мне - не чувак - это десятка. Тут без ТП никак, а она стоит милион или около того. ШИТ! Сразу вспомнилась хитрая морда продавцом и брокерши которые заливали что вот мол электричество под участком прямо ... Пока отхожу от шока ... :unknown: Кто знает сколько может стоить ТП для того чтобы сделать возможным подключение электричества от дома к такой линии электропередач Не поленился и позвонил брату.. Он работает тоже в РЭС... Но не макаровском... Это не есть проблемма.... Хотя опять таки от города к городу разница.. Все зависит от щедрости Вашей начальнику РЭСа Макаровского..... Повторюсь: технической проблеммы нет... А что касаецца милльонав - тоже не переживайте... Вот Вам (ссылка устарела)... Поставьте себе на 25 кВА и будет счастье на двоих с соседом.. По 12 кВА))) Удачи!:-D 2 Посилання на коментар Поділитися на інших сайтах More sharing options...
Gamburger Опубліковано: 23 жовтня 2009 Автор Поділитись Опубліковано: 23 жовтня 2009 Не поленился и позвонил брату.. Он работает тоже в РЭС... Но не макаровском... Это не есть проблемма.... Хотя опять таки от города к городу разница.. Все зависит от щедрости Вашей начальнику РЭСа Макаровского..... Повторюсь: технической проблеммы нет... А что касаецца милльонав - тоже не переживайте... Вот Вам (ссылка устарела)... Поставьте себе на 25 кВА и будет счастье на двоих с соседом.. По 12 кВА))) Удачи!:-D О ну хоть кто-то успокоил . а то я уже пол интернета перешерстил в поиске решений и обсуждений солнечных батарей с разными ветряками там. думаю что щедрость начальнику РЭСа па любэ обойдётся дешевле установки ветряков с солнечными батареями. Посилання на коментар Поділитися на інших сайтах More sharing options...
Alex30 Опубліковано: 23 жовтня 2009 Поділитись Опубліковано: 23 жовтня 2009 О ну хоть кто-то успокоил . а то я уже пол интернета перешерстил в поиске решений и обсуждений солнечных батарей с разными ветряками там. думаю что щедрость начальнику РЭСа па любэ обойдётся дешевле установки ветряков с солнечными батареями. Однозначно))) А захотите заработать - поставите трансформатор чуточку мощнее (ну или оставите в 25кВА мощности на пару человек) и будете капусту рубить с таких , как Вы))) Только не зазнавайтесь... Все мы застройщики трудяги... Ну если не брать во внимание Кончу Заспу и все в этом роде))) Мне вон с газом надо решить проблему.. Только врезаться с трубе (часной) - 15 К гривен:D Сам по поводу ветряков задумывался))) Посилання на коментар Поділитися на інших сайтах More sharing options...
Gamburger Опубліковано: 26 жовтня 2009 Автор Поділитись Опубліковано: 26 жовтня 2009 Предварительная планировка дома. Подлежит обсуждению с архитектором, которого пока, неспеша, ищу. depositfiles.com/files/h3zsjsgoz Посилання на коментар Поділитися на інших сайтах More sharing options...
первый домик Опубліковано: 26 жовтня 2009 Поділитись Опубліковано: 26 жовтня 2009 Предварительная планировка дома. Подлежит обсуждению с архитектором, которого пока, неспеша, ищу. depositfiles.com/files/h3zsjsgoz Проверьте, плиз! Файл был удалён! Посилання на коментар Поділитися на інших сайтах More sharing options...
Gamburger Опубліковано: 17 листопада 2009 Автор Поділитись Опубліковано: 17 листопада 2009 план пока что только первого этажа (поскольку собираемся строить по частям: сначала строим первый этаж, а потом как появяться деньги - заканчиваем второй).ПЛАН 1 ЭТАЖА.doc Посилання на коментар Поділитися на інших сайтах More sharing options...
AНДРЮША Опубліковано: 17 листопада 2009 Поділитись Опубліковано: 17 листопада 2009 Плохо, вам действительно нужен архитектор. Посилання на коментар Поділитися на інших сайтах More sharing options...
первый домик Опубліковано: 25 листопада 2009 Поділитись Опубліковано: 25 листопада 2009 план пока что только первого этажа (поскольку собираемся строить по частям: сначала строим первый этаж, а потом как появяться деньги - заканчиваем второй). А зачем Вам столько выходов? Даже в детской? Посилання на коментар Поділитися на інших сайтах More sharing options...
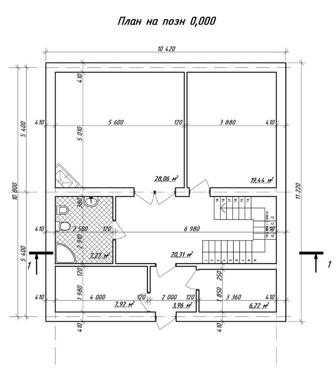
Gamburger Опубліковано: 23 грудня 2010 Автор Поділитись Опубліковано: 23 грудня 2010 итак всё предыдущее - в топку. нашолся архитектор, который начал проектирование. на сегодня есть план первого этажа. будет ещё мансарда и цоколь. пока без деталей. разбираемся только с планировками. при желании можно критиковать. Посилання на коментар Поділитися на інших сайтах More sharing options...
Allenka Опубліковано: 23 грудня 2010 Поділитись Опубліковано: 23 грудня 2010 итак всё предыдущее - в топку. нашолся архитектор, который начал проектирование. на сегодня есть план первого этажа. будет ещё мансарда и цоколь. пока без деталей. разбираемся только с планировками. при желании можно критиковать. А что с электричеством? Решили вопрос? Посилання на коментар Поділитися на інших сайтах More sharing options...
Gamburger Опубліковано: 24 грудня 2010 Автор Поділитись Опубліковано: 24 грудня 2010 А что с электричеством? Решили вопрос? в надежде на появление соседей вменяемых к концу стройки - отложили вопрос до конца стройки. принциапиально возможность поддключения якобы есть. цена за подключение через столбовую ТП от 10 кВ озвучена. Посилання на коментар Поділитися на інших сайтах More sharing options...
Рекомендовані повідомлення
Створіть акаунт або увійдіть у нього для коментування
Ви маєте бути користувачем, щоб залишити коментар
Створити акаунт
Зареєструйтеся для отримання акаунта. Це просто!
Зареєструвати акаунтУвійти
Вже зареєстровані? Увійдіть тут.
Увійти зараз