Перейти до публікації
Пошук в
  • Додатково...
Шукати результати, які містять...
Шукати результати в...

Дом Васильков готов к заселению

goga777

Рекомендовані повідомлення

Продам новый дом в с. Крячки, Васильковский район, 19 км от Киева. Дом строил для сестры, но обстоятельства изменились к лучшему, 120 кв.м., 8 соток. Дом с ремонтом, заезжай с мебелью и живи! 3 спальни, 2 с/у, гостиная с кухней. На полу керамическая плитка. Стены оштукатурены и покрашены.

До Киева 19 км (трасса идеальная, не перегруженная, 3 полосы в каждую сторону) до Василькова 2 км.

Участок ровной формы.

Фундамент рассчитан и выполнен по технологии «утепленная монолитная плита». Утепление фундамента изготовлено из экструдированного пенополистирола толщиной 10 см. Стены дома выполнены из газоблока толщиной 500 мм D300. Производитель AEROC, по однослойной технологии. Окна и дверь на задний двор – двухкамерный стеклопакет с армированным профилем Salamander. Входные двери Kaski из Финляндии

Покрытие крыши – битумная черепица. Подложка сплошная FINNMASTER ECO. Вентиляционные проходы –утепленные производства Wirplast.

Электропроводка выполнена из медного кабеля (с двойной изоляцией). К дому подключено 3 фазы – общая мощность 17 кВт.

Смонтирована проводка для системы «Умного дома » по протоколу 1-WIRE.

Водоснабжение обеспечивается индивидуальной скважиной. Глубина 50 метров. Производительность 3м.куб/час. Установлен насос Pedrollo 4Blockm2/13 (Италия). Нагрев воды производится в бойлере Gorenje GBK на 150 литров.

Отопление осуществляется электрокотлом BOSCH. Управление через Google Home Hub Assistant .Теплый пол. Чердак утеплен 300 мм минватой. Пол утеплен 50 мм ЭППС.

Розетки и выключатели производства Legrand (Франция)

Освещение в доме и подсветка на участке светодиодные (малое энергопотребление)

В доме установлена централизованная вентиляция с интегральным управлением, производства AERECO (Франция). Оригинальное проектное решение Aereco.

Сигнализация на центральный пульт, тревожная кнопка. Индивидуальное видео наблюдение с записью.

Участок огорожен забором. Ворота откатные, ширина 4 метра.

Рядом (4 минуты на машине) самая лучшая школа в Киевской области, и частные садики.

Мы готовы к сделке. Просмотр по договорённости. Звоните смело до 23.00, выходные рабочие. Без комиссии для покупателя.

цена в эквиваленте 77 300 до нового года

телефон риэлтора 066-323-82-33 067-320-32-59 Ирина

 

Есть фотографии всех этапов строительства и всех ключевых узлов

также подробно сможете все увидеть в дневнике на этом форуме

025.thumb.JPG.47584db8437f46ca9b91ea083193fee5.JPG

026.JPG.5f2c3fae3f69cbbfaef5f7fc9158c1d5.JPG

027.JPG.3094267688a0ff817449d3dc04d99c4d.JPG

20190713_220828.jpg.ced0815253ba3ac32be3200c184dee59.jpg

20191101_171022.jpg.aa821e523e081a2f0b15ba67c8e4b1fe.jpg

20191101_171158.jpg.36bdd6a1ba90527c9fb3bb68470f02fe.jpg

20191119_165600.thumb.jpg.348db993f3717f40d8bcafa22811f42b.jpg

20191119_170022.thumb.jpg.c1257e72585df95878b0d8bdb1fda421.jpg

20191101_171226.jpg.9e4d1dcb8afa5954c34ee07bb29e6079.jpg

20191101_171235.jpg.9ca2380645e7929084e7c53ddca81206.jpg

20191119_165346.jpg.c7f67201973da0c336c02f531c1fa267.jpg

20191119_165625.thumb.jpg.f302a2cfd85c1ce1c868979d6a8e181f.jpg

20191119_165645.jpg.00ae028c87e822932c9cd87056fe5826.jpg

20191119_165244.jpg.2461f6a01938e532f2e123bf40a686be.jpg

20191119_165433.jpg.3e6e2c94b6860da772f0d3b5878a2cd4.jpg

20191101_171158.jpg.d350cd573cfe0ed62119d90256fe28da.jpg

20191119_165600.thumb.jpg.24a37420f1da2d6564435e557510c29c.jpg

20191119_170022.thumb.jpg.5fcfc1e271248a226f04cd6f53861650.jpg

20191101_171226.jpg.d9ffb4e51da15e99c861c173212e8e95.jpg

20191101_171235.jpg.f46112e7dcf56c6208281a2694afff6c.jpg

20191119_165346.jpg.aedd8b3538bc49ece83dd76042a8a326.jpg

20191119_165625.thumb.jpg.a12568dc5794c1288010d0c38ffd8331.jpg

20191119_165645.jpg.a7db513e4a3fb7a3107e06d3da61dd4c.jpg

20191119_165244.jpg.243b0e57796c99b7f69f0b068efa3301.jpg

20191119_165433.jpg.ff99df503e31f6a52d94bdedcdbda0c3.jpg

20191119_165447.jpg.6ae6ec8a72d92b6c390fb0d344bf43ad.jpg

20191119_165533.thumb.jpg.a55138019696a44a2a757f5ef249358d.jpg

20191119_152136.jpg.36aa0ccb5d8f39e403d0d9fd5f26ba8d.jpg

20191119_154156.jpg.9ffd33283db249b94cbc9ce87b911305.jpg

20191119_155315.jpg.d3a0fd922d0962ac544abf11ea23d12b.jpg

20191119_165932.thumb.jpg.10eace20b414d9986b538920b6eed000.jpg

20191208_135420.thumb.jpg.5ad4353b0cf2aa5292af63126ee50077.jpg

223745698_1.JPG.e8e0d9eaf124c3bf98fc3bd8416dfe9c.JPG

  • Лайк 8
Посилання на коментар
Поділитися на інших сайтах

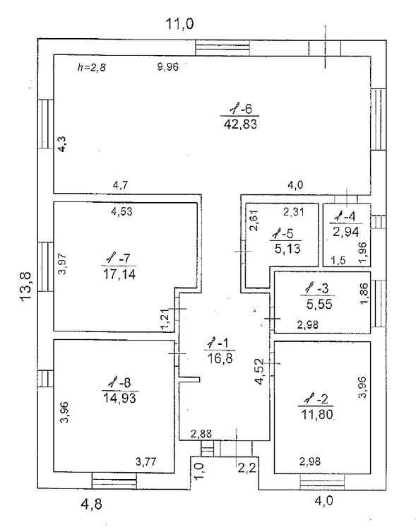
Ниже план БТИ причем реальная площадь 121 кв.м., но в документы натянули (по рекомендациям специалистов) 117 квадрат, на чердак лестница из бука и там свободное пространство 35 квадрат 5Х7 метров, с высотой свода крыши 2,1-2,7 метра.

Также рад сообщить что при температуре -22 °C теплопотери дома составляют 6,9 кВт

DJI_AVC-0-02-45-147.thumb.jpg.f205e1d86ac203f391ff6a889cdbba44.jpg

142542421_1.thumb.png.85fe4a67faae9deff1a98e0e50e32d41.png

  • Лайк 1
Посилання на коментар
Поділитися на інших сайтах

кадастровый номер земучастка есть, чтобы расположение глянуть?

 

да конечно

3221487004:03:006:0298

 

что еще хочу добавить так то что Гостинная совмещена с кухней, одно большое помещение. Стены покрыты итальянской штукатуркой и покрашены а вот пол и потолок оставил под ваш дизайн.

  • Лайк 1
Посилання на коментар
Поділитися на інших сайтах

  • 1 місяць потому...
Гість
Ця тема закрита для публікації повідомлень.
×
×
  • Створити...