NBB Опубліковано: 12 грудня 2019 Поділитись Опубліковано: 12 грудня 2019 армпояс внешних несущих стен толщиной 40 см (35 см бетон и 5 см эппс), армпояс внутренних несущих стен 30см Плиты ПК 40-15 и ПК 39-15 ( с одной стороны одни, с противоположной другие) опираются на внутренние стены на 15см, на вшнешние 18 см величина опирания такая нормально? Дальше нужно сделать нулевой или обвязочный ряд газоблока как лучше его сделать? с учетом что может и торцы плит утеплить надо Блок д400 высотой 25 см разрезать так чтоб на армпоясе в торец плиты поставить блок этот шириной 17 см, снаружи эппс 5 см ( 22 см осталось свободной толщины армпояса после укладки плиты) а выступ блока над плитой на 5 см выравнять бетоном? можно так? Такая неоднородная по плотности основа под стену пойдёт? спасибо Посилання на коментар Поділитися на інших сайтах More sharing options...
Gitan Опубліковано: 12 грудня 2019 Поділитись Опубліковано: 12 грудня 2019 блок этот шириной 17 см, снаружи эппс 5 см ( 22 см осталось свободной толщины армпояса после укладки плиты) а выступ блока над плитой на 5 см выравнять бетоном 5 см Эппс мало. Делайте 100 мм. Срежьте 3 см выступа. Зачем заливать слой бетона по площади? Лишний вес и перерасход денег. Утепления армопояса в 5 см мало. Вам придется делать по фасаду пояс из ЭППС 5 или 100 см по периметру в зоне армопояса. 1 Посилання на коментар Поділитися на інших сайтах More sharing options...
NBB Опубліковано: 12 грудня 2019 Автор Поділитись Опубліковано: 12 грудня 2019 5 см Эппс мало. Делайте 100 мм. Срежьте 3 см выступа. Зачем заливать слой бетона по площади? Лишний вес и перерасход денег. Утепления армопояса в 5 см мало. Вам придется делать по фасаду пояс из ЭППС 5 или 100 см по периметру в зоне армопояса. ну или пояс или утепление стен слой бетона не по площади, а чтоб под ширину блока верхнего ряда ( примерно 18 см) Добавлено через 2 минуты 3 см выступа чего срезать? плит? 22 погонных метра? Посилання на коментар Поділитися на інших сайтах More sharing options...
NBB Опубліковано: 12 грудня 2019 Автор Поділитись Опубліковано: 12 грудня 2019 если сделать вот так как на втором рисунке, то получиться что ширина толщиной 40 см будет опираться на 7 см блока д400, 10 см эппс и 8 см раствора толщиной 3 см 1 Посилання на коментар Поділитися на інших сайтах More sharing options...
NBB Опубліковано: 12 грудня 2019 Автор Поділитись Опубліковано: 12 грудня 2019 или срезать 3 см блока по перимтру стен на которые опираются плиты имелось ввиду? вот так Посилання на коментар Поділитися на інших сайтах More sharing options...
Gitan Опубліковано: 12 грудня 2019 Поділитись Опубліковано: 12 грудня 2019 По правильному надо делать заливку бетоном по периметру плит. Например, 220 мм распределить так: снаружи 100 мм ЭППС - 120 мм бетон (армировка 2 нитки ф8 по периметру вокруг плит) - плита. Вариант 2 эконом. Снаружи газобетон 100 мм (подрезать по высоте) - 100 мм ЭППС - остаток забить бетоном/раствором Утепление фасада планируется? 2 Посилання на коментар Поділитися на інших сайтах More sharing options...
shneider_vova Опубліковано: 12 грудня 2019 Поділитись Опубліковано: 12 грудня 2019 если сделать вот так как на втором рисунке, то получиться что ширина толщиной 40 см будет опираться на 7 см блока д400, 10 см эппс и 8 см раствора толщиной 3 см 1) при опирании плиты на газобетон на длине 18 см - надо предпринимать специальные меры, чтобы не скололся кусочек блока на внутренней грани стены. В альбоме aeroc есть этот узел 2) армопояс нечего лить на всю ширину стены, достаточно 20-25 см, считая от внутренней грани. 3) по контуру плит полезно было было залить армированный поясок, то есть пирог снаружи-внутрь: газобетон 10 см эппс 5 см бетон 7 см плита 18 см Посилання на коментар Поділитися на інших сайтах More sharing options...
NBB Опубліковано: 12 грудня 2019 Автор Поділитись Опубліковано: 12 грудня 2019 По правильному надо делать заливку бетоном по периметру плит. Например, 220 мм распределить так: снаружи 100 мм ЭППС - 120 мм бетон (армировка 2 нитки ф8 по периметру вокруг плит) - плита. Вариант 2 эконом. Снаружи газобетон 100 мм (подрезать по высоте) - 100 мм ЭППС - остаток забить бетоном/раствором Утепление фасада планируется? это типа армпояс будет 55 см в толщину? -) на тех стенах что плиты не опираются уже блоки сделаны Добавлено через 2 минуты 1) при опирании плиты на газобетон на длине 18 см - надо предпринимать специальные меры, чтобы не скололся кусочек блока на внутренней грани стены. В альбоме aeroc есть этот узел 2) армопояс нечего лить на всю ширину стены, достаточно 20-25 см, считая от внутренней грани. 3) по контуру плит полезно было было залить армированный поясок, то есть пирог снаружи-внутрь: газобетон 10 см эппс 5 см бетон 7 см плита 18 см посколько две стены на которые плиты неиопираются уже сделанны блоком, то вопрос можно ли сделать так как вы говорите только тем сьенам что опираются плиты ( две наружные стены)? как армировать 7 см бетона? две нитки 8мм одна над другой? Посилання на коментар Поділитися на інших сайтах More sharing options...
shneider_vova Опубліковано: 12 грудня 2019 Поділитись Опубліковано: 12 грудня 2019 посколько две стены на которые плиты неиопираются уже сделанны блоком, то вопрос можно ли сделать так как вы говорите только тем сьенам что опираются плиты ( две наружные стены)? как армировать 7 см бетона? две нитки 8мм одна над другой? да да только армоппояс по плитам должен быть замнут, то есть не только по торццам плит, но и вдоль длинных сторон Посилання на коментар Поділитися на інших сайтах More sharing options...
NBB Опубліковано: 12 грудня 2019 Автор Поділитись Опубліковано: 12 грудня 2019 читаб альбом аерока там столько вопррос которых я не в курсе был но вот про опирание 18 см и больше не могу найти пока Добавлено через 1 минуту и не понял два прутка арматуры горизонтально или вертикально? Посилання на коментар Поділитися на інших сайтах More sharing options...
shneider_vova Опубліковано: 12 грудня 2019 Поділитись Опубліковано: 12 грудня 2019 читаб альбом аерока там столько вопррос которых я не в курсе был но вот про опирание 18 см и больше не могу найти пока Добавлено через 1 минуту и не понял два прутка арматуры горизонтально или вертикально? 1 Посилання на коментар Поділитися на інших сайтах More sharing options...
tansss Опубліковано: 12 грудня 2019 Поділитись Опубліковано: 12 грудня 2019 Ну что, Владимир?;) "шобябылтакимумнымкакмояженапотом" (с) 1 Посилання на коментар Поділитися на інших сайтах More sharing options...
NBB Опубліковано: 12 грудня 2019 Автор Поділитись Опубліковано: 12 грудня 2019 (змінено) а чего у них на фото арматура в обвязочном поясе расположена впритык к утеплителю? где защитный слой? Змінено 12 грудня 2019 користувачем NBB Посилання на коментар Поділитися на інших сайтах More sharing options...
shneider_vova Опубліковано: 12 грудня 2019 Поділитись Опубліковано: 12 грудня 2019 Ну что, Владимир?;) "шобябылтакимумнымкакмояженапотом" (с) так а где у меня не так? Посилання на коментар Поділитися на інших сайтах More sharing options...
NBB Опубліковано: 12 грудня 2019 Автор Поділитись Опубліковано: 12 грудня 2019 то что обведенотна картинке это опирание плиты на стену а вопрос же про опирания на армпояс на 18 см и как при жтом обустраивать стену вверху? нужно ли что-то делать дополнительно при опирании больше 12-15 см? Посилання на коментар Поділитися на інших сайтах More sharing options...
shneider_vova Опубліковано: 12 грудня 2019 Поділитись Опубліковано: 12 грудня 2019 а чего у них на фото арматура в обвязочном пояск расположена впритык к утеплителю? где защитный слой? неправильно уложена. Посилання на коментар Поділитися на інших сайтах More sharing options...
tansss Опубліковано: 12 грудня 2019 Поділитись Опубліковано: 12 грудня 2019 так а где у меня не так? У вас - всё так! Просто вспомнил давнее обсуждение (с нашим обоюдным участием) в одной из тем об обливочном поясе и его необходимости в ГБ домах. По теме... Я ТСу про этот пояс уже говорил на "альтернативных" площадках общения... Увы и ах! Не услышал. Посилання на коментар Поділитися на інших сайтах More sharing options...
NBB Опубліковано: 12 грудня 2019 Автор Поділитись Опубліковано: 12 грудня 2019 У вас - всё так! Просто вспомнил давнее обсуждение (с нашим обоюдным участием) в одной из тем об обливочном поясе и его необходимости в ГБ домах. По теме... Я ТСу про этот пояс уже говорил на "альтернативных" площадках общения... Увы и ах! Не услышал. та услышал-))) Добавлено через 4 минуты тогда подскажите если на стенах где не опираются плиты уже улоден газоблок ( на всю длинну тоесть с заходом на стены где плиты опираются) можно сделать обливку плит только по стенам опирания плит на 7см и арматурины заанкерить в жу еуложенные на боковых стенах блоки и плиты? тоесть получится что стены второго этажа по боковым стенам опираются на газоблок, а по стенам на котрых плиты опираются на обливочный пояс и блоки 10 см но тут тоже нюанс, армпояс утеплен снаружи и эти блоки 10 см шириной будут на 5см от совец ширины опираться на утеплитеь армпояса может тогда утеплитель тоже снаружи приклеить как-то? блоки эппс не утепляются но на высоте 20 см может допустимо? Посилання на коментар Поділитися на інших сайтах More sharing options...
shneider_vova Опубліковано: 12 грудня 2019 Поділитись Опубліковано: 12 грудня 2019 смысла в поясе только по одной стороне - как бы нет. может, срезать лишний блок? 2 Посилання на коментар Поділитися на інших сайтах More sharing options...
NBB Опубліковано: 12 грудня 2019 Автор Поділитись Опубліковано: 12 грудня 2019 ну да это не аояс будет а просто залитый бетон срежу 3 см блока и вставлю ЭППС в том же альбоме арерок написано что анкерют перекрытие так же и в блок, так можно делать, эффективно? Посилання на коментар Поділитися на інших сайтах More sharing options...
NBB Опубліковано: 12 січня 2020 Автор Поділитись Опубліковано: 12 січня 2020 как правильно аратуру от плит заводить в этот пояс который заливают вокруг плиты? хочу все же по двум сторонам сделать такой пояс и арматуру которая анкерует между собой соседние плиты завязать с арматурой этого маленького пояса просто на уровне стыка плит приварить к арматуре которая связывает плиты между собой 8мм пруток и прикрепить его к 8 мм прутку в поясе? просто как заанкерить без бетона в блок не знаю чтоб держалось 8 мм прутков достаточно или толще брать? спасибо Посилання на коментар Поділитися на інших сайтах More sharing options...
tansss Опубліковано: 12 січня 2020 Поділитись Опубліковано: 12 січня 2020 Точно так же как и в середине при заливке пояса ставите вертикально Д8 напротив каждой из проушин и потом загибаете на крест и привариваете Посилання на коментар Поділитися на інших сайтах More sharing options...
NBB Опубліковано: 12 січня 2020 Автор Поділитись Опубліковано: 12 січня 2020 Точно так же как и в середине при заливке пояса ставите вертикально Д8 напротив каждой из проушин и потом загибаете на крест и привариваете приваривать к прутку в армпоясе? а если не пояс а блок, то как? Посилання на коментар Поділитися на інших сайтах More sharing options...
МИР СТУПЕНЕК Опубліковано: 16 січня 2020 Поділитись Опубліковано: 16 січня 2020 приваривать к прутку в армпоясе? а если не пояс а блок, то как? Как вариант: 1 Посилання на коментар Поділитися на інших сайтах More sharing options...
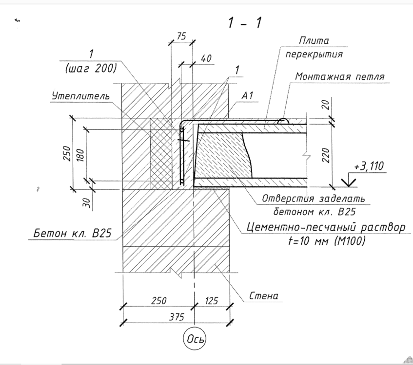
shneider_vova Опубліковано: 16 січня 2020 Поділитись Опубліковано: 16 січня 2020 вот узлы из моего проекта 1 Посилання на коментар Поділитися на інших сайтах More sharing options...
Рекомендовані повідомлення
Створіть акаунт або увійдіть у нього для коментування
Ви маєте бути користувачем, щоб залишити коментар
Створити акаунт
Зареєструйтеся для отримання акаунта. Це просто!
Зареєструвати акаунтУвійти
Вже зареєстровані? Увійдіть тут.
Увійти зараз