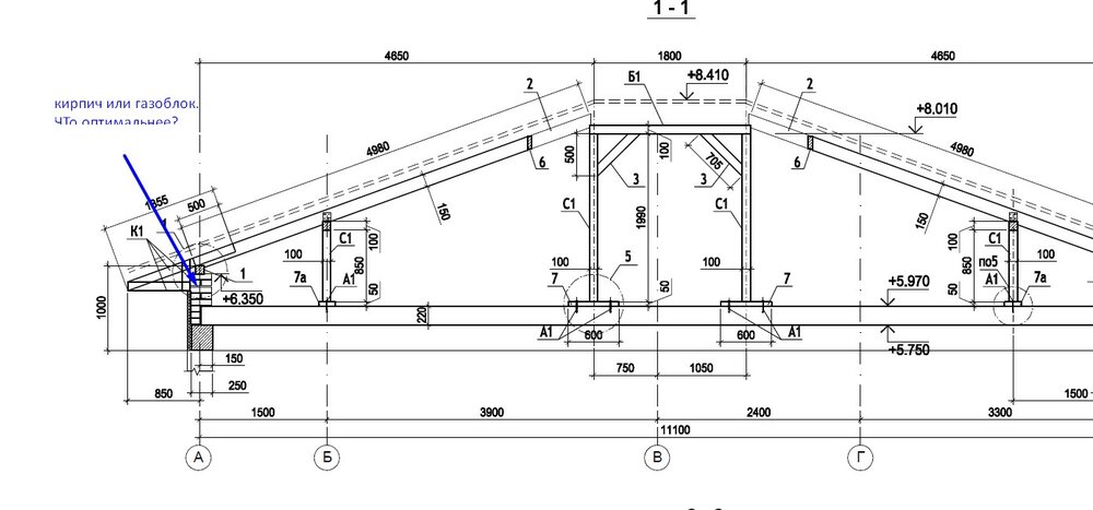
auto-master Опубліковано: 5 червня 2020 Поділитись Опубліковано: 5 червня 2020 Что оптимальнее по стоимости/надежности - под кровлю по периметру "простенок" сделать из кирпича или газоблока (в проектной документации - а были разные версии пока утвердили проект - встречались оба варианта - и из кирпича, и из газоблока). Проектант говорит, что и так и так можно. Строители настаивают на кирпиче, мол кирпич это надёжно, а газоблок - плохо, мол боковые нагрузки там сильные. Но я так, понимаю, что кирпичная кладка будет дороже и по материалу, и по работам особенно!? Посилання на коментар Поділитися на інших сайтах More sharing options...
lastandr Опубліковано: 5 червня 2020 Поділитись Опубліковано: 5 червня 2020 под мауэрлат - кирпич или газоблок?? Ежели ГБ, то обязательно нужно будет делать армопояс... 1 Посилання на коментар Поділитися на інших сайтах More sharing options...
Dendnepr Опубліковано: 6 червня 2020 Поділитись Опубліковано: 6 червня 2020 В данном случае лучше кирпич. Позволит избежать сооружения армопояса в случае газоблока. Своей массой будет хорошо взаимодействовать с мауэрлатом 60 см это 8 рядов кирпича. Только сетку армирующую не забудьте положить. И шпильки под мауэрлат заложить 1 Посилання на коментар Поділитися на інших сайтах More sharing options...
Рекомендовані повідомлення
Створіть акаунт або увійдіть у нього для коментування
Ви маєте бути користувачем, щоб залишити коментар
Створити акаунт
Зареєструйтеся для отримання акаунта. Це просто!
Зареєструвати акаунтУвійти
Вже зареєстровані? Увійдіть тут.
Увійти зараз