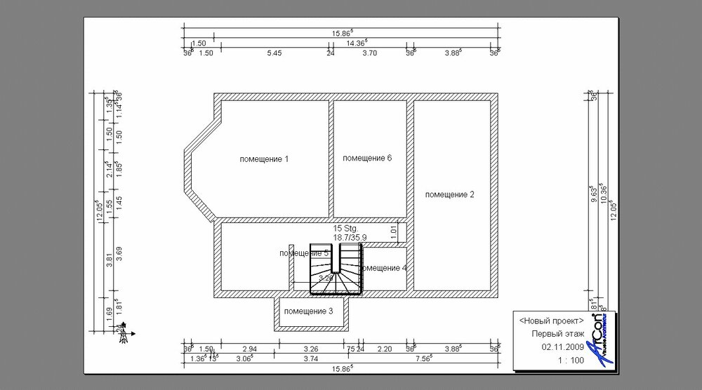
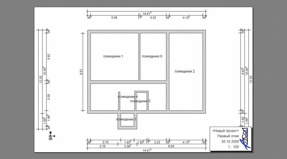
inspektor Опубліковано: 30 жовтня 2009 Поділитись Опубліковано: 30 жовтня 2009 Уважаемые форумчане! Вот пришло время для нас определиться с проэктом. Мы как-то странно начинаем свою стройку - стали закупать стройматериалы без более-менее внятного проэкта. Исходные даные: участок ровный, почти квадратный, южная сторона граничит с ничейной землей (там дорога и за ней ручей). Соседи только на западной и северной стороне. Дом планируется для семьи из 3 человек и возможно потом старенькие родители. Уже решили, что будем строить дом с цокольным этажом, цокольный этаж будет высоким (1 м. в земле и остальное сверху) и мансардой. Будет гараж на 1 машину и над ним комната. Строиться будем в дачном кооперативе, согласовывать проэкт не нужно, решили рисовать сами. Все мои "художественные полеты" муж обрывает так сказать на корню с вескими замечаниями, что панели перекрытия будут стандартные 6*1,5 и 4*1,5. Отсюда велено и плясать. Я нарисовала такой как-бы план, программа выставила размеры, но они еще не точные. Помогите подвигать стены и сделать мой дом практичным и уютным. На моем проэкте помещение 1 - хол, помещение 6 - жилая комната, помещение 2 - гараж, помещение 5 - санузел, помещение 3 - прихожая, помещение 4 - слева кухня, а справа лестница. А, вот еще что - на картинке левая сторона - южная. Еще мне очень хочется эркер я его просто не дорисовала. Планирую его с левой сторны в гостинной. Посилання на коментар Поділитися на інших сайтах More sharing options...
alexmetall Опубліковано: 30 жовтня 2009 Поділитись Опубліковано: 30 жовтня 2009 Всю входную групу(прихожая+гардероб+с/у) - сместите вправо, ближе к гаражу, будет больше пространства для "полета мысли" Еще надо предусмотреть место для лестницы. Самый лучший подход для Вас, чтобы лишний раз не заморачиваться с рисованием - попробуте поискать готовые проекты, найдите более-менее подходящую для Вас планировку а потом ее доработывайте. 2 Посилання на коментар Поділитися на інших сайтах More sharing options...
inspektor Опубліковано: 30 жовтня 2009 Автор Поділитись Опубліковано: 30 жовтня 2009 Всю входную групу(прихожая+гардероб+с/у) - сместите вправо, ближе к гаражу, будет больше пространства для "полета мысли" Еще надо предусмотреть место для лестницы. Самый лучший подход для Вас, чтобы лишний раз не заморачиваться с рисованием - попробуте поискать готовые проекты, найдите более-менее подходящую для Вас планировку а потом ее доработывайте. среди готовых проэктов нашли только такие, чтго нравятся внешне, с планировкой они нас не устраивают. А под лестницу как раз отвела место в правом углу, за санузлом. Посилання на коментар Поділитися на інших сайтах More sharing options...
alexmetall Опубліковано: 30 жовтня 2009 Поділитись Опубліковано: 30 жовтня 2009 среди готовых проэктов нашли только такие, чтго нравятся внешне, с планировкой они нас не устраивают. Тогда понятно. А под лестницу как раз отвела место в правом углу, за санузлом. Лучше лестницу сделать перед санузлом(если там будет только туалет), санузел загнать в угол, а под лестницей вместится шкаф-гардероб. Посилання на коментар Поділитися на інших сайтах More sharing options...
inspektor Опубліковано: 30 жовтня 2009 Автор Поділитись Опубліковано: 30 жовтня 2009 Тогда понятно. Лучше лестницу сделать перед санузлом(если там будет только туалет), санузел загнать в угол, а под лестницей вместится шкаф-гардероб. Спасибо за совет, наверное так и сделаю. И правда как-то заходишь и сразу туалет. Посилання на коментар Поділитися на інших сайтах More sharing options...
Tugarin Опубліковано: 30 жовтня 2009 Поділитись Опубліковано: 30 жовтня 2009 Здравствуйте, а какая высота цокольного этажа в чистоте планируется (от стяжки на полу до перекрытия)? И какя высота в чистоте 1-го этажа? P.S. Не целесообразней ли гараж сделать в цокольном этаже, т.к. спускаться нужно всего на 1 метр, а подниматься в любом случае больше, т.е. длина пандуса будет меньше, это раз, а второе- уменьшите площадь застройки. Посилання на коментар Поділитися на інших сайтах More sharing options...
inspektor Опубліковано: 30 жовтня 2009 Автор Поділитись Опубліковано: 30 жовтня 2009 Здравствуйте, а какая высота цокольного этажа в чистоте планируется (от стяжки на полу до перекрытия)? И какя высота в чистоте 1-го этажа? Вы меня смутили, такие подробности... Думаю, что все будет стандартным: высота цокольного этажа 2,5 метра, первый этаж будет немного повыше - 2,80 ну а с мансардным я еще не определилась. Посилання на коментар Поділитися на інших сайтах More sharing options...
inspektor Опубліковано: 30 жовтня 2009 Автор Поділитись Опубліковано: 30 жовтня 2009 P.S. Не целесообразней ли гараж сделать в цокольном этаже, т.к. спускаться нужно всего на 1 метр, а подниматься в любом случае больше, т.е. длина пандуса будет меньше, это раз, а второе- уменьшите площадь застройки. Это мы обсуждали но решили с этим поступить так - гараж будет стоять на земле, то-есть пол гаража будет ниже уровня пола дома. Может немного сумбурно, простите Посилання на коментар Поділитися на інших сайтах More sharing options...
Tugarin Опубліковано: 30 жовтня 2009 Поділитись Опубліковано: 30 жовтня 2009 А второй этаж мансарда или полноценный? Посилання на коментар Поділитися на інших сайтах More sharing options...
inspektor Опубліковано: 30 жовтня 2009 Автор Поділитись Опубліковано: 30 жовтня 2009 А второй этаж мансарда или полноценный? Второй мансардный, это точно. Представляю его себе с балкончиком над входом и над эркером, который я в уме держу. Посилання на коментар Поділитися на інших сайтах More sharing options...
Tugarin Опубліковано: 30 жовтня 2009 Поділитись Опубліковано: 30 жовтня 2009 А можете изложить требования к площади помещений, к примеру: гостинная - 20÷25 м2; кухня - 12÷16 м2 и т.д. Посилання на коментар Поділитися на інших сайтах More sharing options...
inspektor Опубліковано: 30 жовтня 2009 Автор Поділитись Опубліковано: 30 жовтня 2009 О да, требования я излагать могу. Гостинная не меньше 25 метров, кухня от 16 метров, санузел можно маленький, ну не совсем маленький а так хоть метров 5-6. Посилання на коментар Поділитися на інших сайтах More sharing options...
Tugarin Опубліковано: 30 жовтня 2009 Поділитись Опубліковано: 30 жовтня 2009 Извините, что донимаю (но Вы сами просили помочь), а жилая комната? Посилання на коментар Поділитися на інших сайтах More sharing options...
inspektor Опубліковано: 31 жовтня 2009 Автор Поділитись Опубліковано: 31 жовтня 2009 Извините, что донимаю (но Вы сами просили помочь), а жилая комната? Жилая комната может быть и не большой - метров 10-12, думаю хватит. Посилання на коментар Поділитися на інших сайтах More sharing options...
OTL Опубліковано: 1 листопада 2009 Поділитись Опубліковано: 1 листопада 2009 Жилая комната может быть и не большой - метров 10-12, думаю хватит. Странный у Вас подход. Кухня=16 в.м - хорошая площадь, как раз нормально для дома. Жилая комната = 12 кв м!!!???? ОЧЕНЬ мало! Там сможет жить только малолетний ребенок. Даже для школьника мало. Вы же дом строите....Подумайте Посилання на коментар Поділитися на інших сайтах More sharing options...
inspektor Опубліковано: 2 листопада 2009 Автор Поділитись Опубліковано: 2 листопада 2009 Странный у Вас подход. Кухня=16 в.м - хорошая площадь, как раз нормально для дома. Жилая комната = 12 кв м!!!???? ОЧЕНЬ мало! Там сможет жить только малолетний ребенок. Даже для школьника мало. Вы же дом строите....Подумайте И правда маловата. Но мы эту комнату планируем на всякий случай, вдруг пригодится. Посилання на коментар Поділитися на інших сайтах More sharing options...
curl_dandelion Опубліковано: 2 листопада 2009 Поділитись Опубліковано: 2 листопада 2009 (змінено) И правда изложите( хоть бы для себя) конкретно что вы хотите от каждого из помещений, их перечень, подумайте над широтой коридоров, расставьте двери! плюньте на программу нарисуйте планы от руки. Совет такой - сначала нарисуйте то что вам надо - просто так - по желаниям - потом или отдайте архитектору, чтоб ему было как оттолкнуться от ваших желаний или на чем убедить, или засаживайтесь за стоительные и дизайнерские сайты, литературы и подгоняйте! не забудьте о дополнительных помещениях/месте для хранения, техники, оборудования - все это имеет значение - по опыту когда человек получает прямоугольник в плане в виде пустой комнаты - потом надо всего всего туда набить - это получается цирк! да и на отделку потом больше выложите у вас план похож на квартиру в панельном доме. Сразу подумайте о внешнем виде окнах не забывайте что вы хотите внутри (какие-то пристрастия по мебели, или к спальным местам) - это все влияет на планировки. Методов строительства сейчас масса - все зависит от вкуса и бюджета - мое мнение от первого зачастую даже больше!!! посмотрите внимательно на проекты по и-нету - их много! - самых разных - не хотите типовой - выделите для себя отдельно похожие - проанализируйте принципы и вперед! вборать и остановится на варианте - своем или нет - это уже этап - даже если потом все изменится - это уже победа, которая заключается в понимании своих желаний и знанием как это достигается! А варианты - они бесконечны - выбрать трудно - так пусть сия вариативность будет вам другом! Удачи! Змінено 2 листопада 2009 користувачем curl_dandelion Посилання на коментар Поділитися на інших сайтах More sharing options...
inspektor Опубліковано: 2 листопада 2009 Автор Поділитись Опубліковано: 2 листопада 2009 Спасибо за отзыв и совет. Поверьте, я уже столько пересмотрела проектов... Увы, готовые нам не подошли. В общих чертах я уже изложила чего хочу. И сама уже нарисовала столько, что хватило-бы на всех застройщиков (если-бы кому-то понравилось;)) На форум обратилась как раз с просьбой о помощи именно спланировать те помещения, которые нам нужны, чтобы дом был удобным и симпатичным. Посилання на коментар Поділитися на інших сайтах More sharing options...
curl_dandelion Опубліковано: 2 листопада 2009 Поділитись Опубліковано: 2 листопада 2009 в ручную рисовали? набрасывали? сфотакайте и выложие - больше эфекта будет! 1 - габариты +- 2 - пероечень помещений 3 - смысл помещений - назначение 4 - тип лестницы - открытой или закрытой 5 -план участка (хоть примерный) 6 - терассы, верандыы? для начала хватит Посилання на коментар Поділитися на інших сайтах More sharing options...
curl_dandelion Опубліковано: 2 листопада 2009 Поділитись Опубліковано: 2 листопада 2009 Я нарисовала такой как-бы план, программа выставила размеры, но они еще не точные. Помогите подвигать стены и сделать мой дом практичным и уютным. не мне учить вас архитектуре - но с размеров надо начинать! - если вас такие устраивают - то от них и пляшите - но только пляшите - а не стройте квартиру-панель как многоэтажках А, вот еще что - на картинке левая сторона - южная. Еще мне очень хочется эркер я его просто не дорисовала. Планирую его с левой сторны в гостинной. где в гостинной? как это будет вписано в общий вид какую функцию нести? поймите я не придираюсь - но потом, не ответив себе на такие вопросы - будет труднее. решите сначала более менее точно что строите! муж обрывает фантазии - пусть предложит сам! Посилання на коментар Поділитися на інших сайтах More sharing options...
inspektor Опубліковано: 2 листопада 2009 Автор Поділитись Опубліковано: 2 листопада 2009 в ручную рисовали? набрасывали? сфотакайте и выложие - больше эфекта будет! 1 - габариты +- 2 - пероечень помещений 3 - смысл помещений - назначение 4 - тип лестницы - открытой или закрытой 5 -план участка (хоть примерный) 6 - терассы, верандыы? для начала хватит 1. Размеры дома 10*14 2. Первый этаж - кухня, 1 жилая комната, гостинная, санузел, прихожая, кладовка (под лестницей). Второй этаж очень простой - 3 спальни, большая ванная комната и комната непонятного назначения над гаражом 3. Кухня - готовить ну и покормить семью, чтобы было место, жилая комната на всякий случай, типа гостевой, гостинную хочу большую с камином и с эркером, где по моим задумам должен стоять большой обеденный стол, за которым будут собираться гости. 4. лестница как лестница, чтобы удобная была (как раз не знаю где ее разместить). 5. План участка - сейчас нарисую и прикреплю 6. Веранду я хочу, как я понимаю это типа тамбур, чтобы раздеться, раззуться. На моем "типа плане" это помещение № 3. За терасу у нас еще идут бои. Если ее делать, то самым хорошим местом для выхода на терасу будет как раз эркер, как же тогда быть с обеденным столом? Есть еще одно место для выхода на терасу это западная сторона дома, она же по совместительству задняя сторона. Упс, совсем забыла про гараж и цокольный этаж. В цокольном этаже планируем все хозпомещения и котельную. Из гаража будет дверь в дом. Гараж будет на северной стороне домаучасток.doc Посилання на коментар Поділитися на інших сайтах More sharing options...
curl_dandelion Опубліковано: 2 листопада 2009 Поділитись Опубліковано: 2 листопада 2009 1. Размеры дома 10*14 достаточно большой и вместительный - себе планирую вообще 10Х10 - не больше - но большой стол для семьи а не только гостей впритык к кухне как столовая 2. Первый этаж - кухня, 1 жилая комната, гостинная, санузел, прихожая, кладовка (под лестницей). Второй этаж очень простой - 3 спальни, большая ванная комната и комната непонятного назначения над гаражом комната непонятного назначения???? - у вас много лишних денег? - может у вас это будет к примеру игровой куда можно устроить также кучу всего для хранения? или гардеробной? или или или - может она будет кабинетом...или в нее перенесется гостевая после того как с вами станут жить старые родители которых не сильно поселишь на 2 этаж чтоб не бегали по лестнице? - старайтесь больше предполагать в данном конкретном случае! 3. Кухня - готовить ну и покормить семью, чтобы было место, жилая комната на всякий случай, типа гостевой, гостинную хочу большую с камином и с эркером, где по моим задумам должен стоять большой обеденный стол, за которым будут собираться гости. кухню удобно располагать ближе к какому нить из выходов - закрытую или открытую уж неважно. Важно что когда покупки несешь не хочется кульки черех весь дом тащить да и из кухни в частном доме часто идешь тв направлении улицы - учтите это 4. лестница как лестница, чтобы удобная была (как раз не знаю где ее разместить). или 4 метра длинны или 2 раза по 2 - или винт - что не особо! прикинте скольео на нее есть места - и сколько у вас денег - можно делать подвесные и всяко такое - а можно пристенные 5. План участка - сейчас нарисую и прикреплю 6. Веранду я хочу, как я понимаю это типа тамбур, чтобы раздеться, раззуться. На моем "типа плане" это помещение № 3. За терасу у нас еще идут бои. Если ее делать, то самым хорошим местом для выхода на терасу будет как раз эркер, как же тогда быть с обеденным столом? Есть еще одно место для выхода на терасу это западная сторона дома, она же по совместительству задняя сторона. веранда это не вход - а место отдыха. она отлично смотрится пристроенной к гостинной! ну или у главного входа может быть... проходной - думаю ваш случай! но не устраивайте "раззувальню" в залитой солнцем комнате - обидно! сделайте одну стенку сплошную со шкафом - и вид на свет и наслаждайтесь жизнью! и еще - набросайте план от руки более внятно. поможет! и выложите - тогда помогут. на первом ничего не ясно и не вижу 2-гщ этажа Посилання на коментар Поділитися на інших сайтах More sharing options...
curl_dandelion Опубліковано: 2 листопада 2009 Поділитись Опубліковано: 2 листопада 2009 вход у вас откуда - насколько я понимаю с запада? Посилання на коментар Поділитися на інших сайтах More sharing options...
inspektor Опубліковано: 2 листопада 2009 Автор Поділитись Опубліковано: 2 листопада 2009 Если веранда это не тамбур тогда для меня она лишняя. Хватит одной терасы. Вход в дом будет с востока а кухня в юго-восточном углу. Для комнаты "непонятного назначения" на втором этаже конечно-же найдется применение. Игровой ей уже не получится быть, к тому времени, когда мы построимся ребенок вырастит. Фактически сам дом у нас тоже будет 10*10, те 4 метра это для гаража. Посилання на коментар Поділитися на інших сайтах More sharing options...
inspektor Опубліковано: 2 листопада 2009 Автор Поділитись Опубліковано: 2 листопада 2009 Это пока без окон без дверей 1 этаж. Второй не могу планировать поскольку не знаю где будет лестница. Посилання на коментар Поділитися на інших сайтах More sharing options...
Рекомендовані повідомлення
Створіть акаунт або увійдіть у нього для коментування
Ви маєте бути користувачем, щоб залишити коментар
Створити акаунт
Зареєструйтеся для отримання акаунта. Це просто!
Зареєструвати акаунтУвійти
Вже зареєстровані? Увійдіть тут.
Увійти зараз