arca Опубліковано: 8 листопада 2009 Поділитись Опубліковано: 8 листопада 2009 З.Ы. Забыл важную деталь...куда бы влепить мини ванную для помывки извалявшихся в грязи такс Не надо просто в гостевом с/у надо предусмотреть душевую кабинку. А гостевой с/у нужен обязательно. Посилання на коментар Поділитися на інших сайтах More sharing options...
galproekt Опубліковано: 8 листопада 2009 Поділитись Опубліковано: 8 листопада 2009 а як Вам такий варіант? www.galproekt.com.ua/gp_106/ru_plans.htm Посилання на коментар Поділитися на інших сайтах More sharing options...
К.О.Д. Опубліковано: 8 листопада 2009 Поділитись Опубліковано: 8 листопада 2009 Не надо просто в гостевом с/у надо предусмотреть душевую кабинку. А гостевой с/у нужен обязательно. я думаю, если вы заядлый собачатник, то для питомцев надо отдельный поддон ставить. у меня знакомый две квартиры когда в одну перепланировал, то для своего люимого бульдога поставил отдельный поддон поближе ко входу. а в доме уж точно можно место найти. Или в гараже. Кроме того не думаю, что у вас весь двор будет забетонирован. Т.е. в грязную погоду например сапоги помыть при заходе в дом. Посилання на коментар Поділитися на інших сайтах More sharing options...
К.О.Д. Опубліковано: 8 листопада 2009 Поділитись Опубліковано: 8 листопада 2009 Здравствуйте. Вот тоже для вдохновления/почерпывания идей: очень понравилось! А че? выходов на терассы не предусмотрено? Посилання на коментар Поділитися на інших сайтах More sharing options...
К.О.Д. Опубліковано: 8 листопада 2009 Поділитись Опубліковано: 8 листопада 2009 Относительно четырехугольника и идеала я бы поспорил до хрипоты, думаю не я один, как по мне идеальная форма для одноэтажного дома вариации та тему букв Г,Н и П. Относительно углов-согласен будем уменьшать ну скажем Г встречались. А вот на счет Н и П ... Это наверное для каких то более грандизных домов? Посилання на коментар Поділитися на інших сайтах More sharing options...
Tugarin Опубліковано: 8 листопада 2009 Поділитись Опубліковано: 8 листопада 2009 очень понравилось! А че? выходов на терассы не предусмотрено? Предусмотрено, но не указано: слева среднее это не окно, а витраж до пола со сдвижной секцией, тоже и из хозяйской спальни. Посилання на коментар Поділитися на інших сайтах More sharing options...
Tugarin Опубліковано: 8 листопада 2009 Поділитись Опубліковано: 8 листопада 2009 Мне еще очень понравился вот этот дом www.ivd.ru/document.xgi?id=6042, правда планировка достаточно мелкая. Посилання на коментар Поділитися на інших сайтах More sharing options...
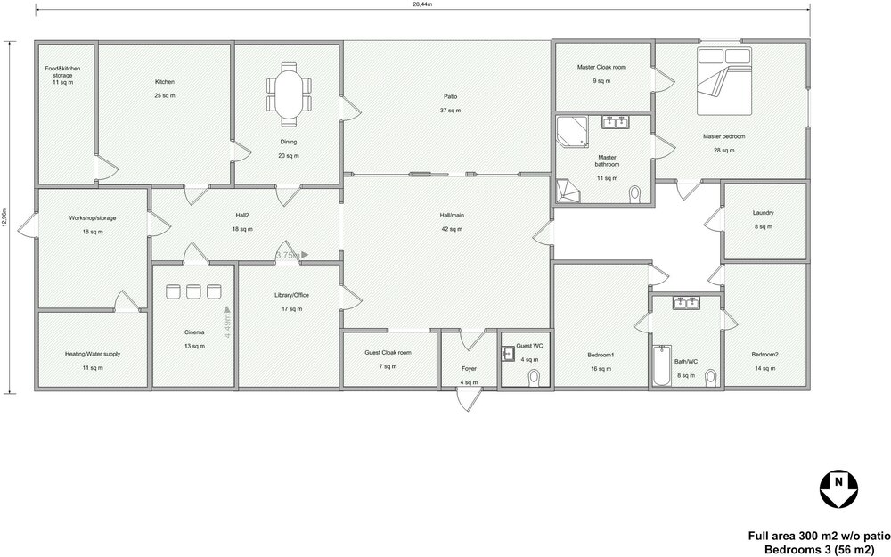
ANAHTIM Опубліковано: 9 листопада 2009 Автор Поділитись Опубліковано: 9 листопада 2009 После прочтения советов и рекомендаций, "слегка перерисовал" планировку домика: Проблемы: 1) Некуда всунуть гардеробные для детских 2) Холл/гостинная мне по прежнему не нравятся 3) Таксы до сих пор чапают грязными лапами по всему дому Ваше мнение? Посилання на коментар Поділитися на інших сайтах More sharing options...
Алик Опубліковано: 9 листопада 2009 Поділитись Опубліковано: 9 листопада 2009 а як Вам такий варіант? www.galproekt.com.ua/gp_106/ru_plans.htm особенно умиляют коридор№ 26- 20м2 и №17 13м2 Посилання на коментар Поділитися на інших сайтах More sharing options...
MWer Опубліковано: 9 листопада 2009 Поділитись Опубліковано: 9 листопада 2009 Ну вот, все таки пришли к четырехугольнику. Я не говорю что это всегда лучше, просто если добавляются лишние углы, это должно быть подтверждено внешним видом, который не может обойтись без этого угла. Посилання на коментар Поділитися на інших сайтах More sharing options...
ANAHTIM Опубліковано: 9 листопада 2009 Автор Поділитись Опубліковано: 9 листопада 2009 Ну вот, все таки пришли к четырехугольнику. Я не говорю что это всегда лучше, просто если добавляются лишние углы, это должно быть подтверждено внешним видом, который не может обойтись без этого угла. Скорее к букве П, если учесть террасу, но вцелом согласен, хотя когда дойдет додизайна фасадов, не исключаю появления эркеров и т.д., дабы оживить домик Посилання на коментар Поділитися на інших сайтах More sharing options...
ANAHTIM Опубліковано: 9 листопада 2009 Автор Поділитись Опубліковано: 9 листопада 2009 особенно умиляют коридор№ 26- 20м2 и №17 13м2 Мда...Я вот тоже посмотрел и навеяло мне советские четырех-пятикомнатные квартиры, не в обиду будет архитекторам сказано. Посилання на коментар Поділитися на інших сайтах More sharing options...
arca Опубліковано: 10 листопада 2009 Поділитись Опубліковано: 10 листопада 2009 Гостинная будет неуютная, где мебель непоставишь. Кроме блока спален ничего не нравится. Таксов можно и со второго входа заводить.;) Посилання на коментар Поділитися на інших сайтах More sharing options...
voffka75 Опубліковано: 5 грудня 2009 Поділитись Опубліковано: 5 грудня 2009 по тем критериям которые определил автор темы очень много финских и датских проектом. Посмотрите здесь www.eurodan-huse.dk/hustype2.php?p_id=11 вибрайте серию домов, а потом смотрите поэтажку Billeder & grundplan в этой ветке есть ссылки на финские и датские, это то, что Вам нужно www.forumhouse.ru/forum43/thread9814.html 1 Посилання на коментар Поділитися на інших сайтах More sharing options...
Zhenis Опубліковано: 6 грудня 2009 Поділитись Опубліковано: 6 грудня 2009 paleks-stroy.ru/images/project/aljaska/Aljaska_plany_800-600.jpg Размеры дома 21х12 Посилання на коментар Поділитися на інших сайтах More sharing options...
Zhenis Опубліковано: 6 грудня 2009 Поділитись Опубліковано: 6 грудня 2009 средний американский дом Посилання на коментар Поділитися на інших сайтах More sharing options...
Zhenis Опубліковано: 6 грудня 2009 Поділитись Опубліковано: 6 грудня 2009 американский домик www.saterdesign.com/planimage.asp?planNum=5308&planName=&viewName=Rear+Exterior&filename=Photos/6[/url фото относится к верхнему плану Посилання на коментар Поділитися на інших сайтах More sharing options...
terola Опубліковано: 7 грудня 2009 Поділитись Опубліковано: 7 грудня 2009 средний американский дом Эх, мечта ... У меня бы на участке такой поместился. А со стороны бы думали, что денег на 2 этажа не хватило:D Посилання на коментар Поділитися на інших сайтах More sharing options...
Ольга В Опубліковано: 7 грудня 2009 Поділитись Опубліковано: 7 грудня 2009 К такому дому нужен человек для чистки бассейна минимум раз в неделю. Посилання на коментар Поділитися на інших сайтах More sharing options...
Zhenis Опубліковано: 8 грудня 2009 Поділитись Опубліковано: 8 грудня 2009 К такому дому нужен человек для чистки бассейна минимум раз в неделю. Ежели человек замахивается на 400 метров,значит и на газонокосильщика наскребет. Посилання на коментар Поділитися на інших сайтах More sharing options...
ANAHTIM Опубліковано: 11 грудня 2009 Автор Поділитись Опубліковано: 11 грудня 2009 средний американский дом Ну про "средний" это вы конечно загнули, а так очень даже ничего, правда слишком много острых углов и стекла, для Калифорнии наверное ок, а вот для Киева?? Посилання на коментар Поділитися на інших сайтах More sharing options...
Zhenis Опубліковано: 11 грудня 2009 Поділитись Опубліковано: 11 грудня 2009 Ну про "средний" это вы конечно загнули, а так очень даже ничего, правда слишком много острых углов и стекла, для Калифорнии наверное ок, а вот для Киева?? Попробуйте подработать под себя данный дом,возможно не Ваш размер,но ведь главное это концепция. Посилання на коментар Поділитися на інших сайтах More sharing options...
Рекомендовані повідомлення
Створіть акаунт або увійдіть у нього для коментування
Ви маєте бути користувачем, щоб залишити коментар
Створити акаунт
Зареєструйтеся для отримання акаунта. Це просто!
Зареєструвати акаунтУвійти
Вже зареєстровані? Увійдіть тут.
Увійти зараз