sergo77 Опубліковано: 6 листопада 2009 Поділитись Опубліковано: 6 листопада 2009 Добрый день уважаемые форумчане. Моя стройка которая начялась год назад зашла в тупик. Весь процесс закончился на капитальном фундаменте на который можно поставить пятиэтажку...:D Все как-то сильно быстро началось, завертелось и заглохло... Немного поменялись планы на будущее, потребность в таком громадном доме как планировалось отпала и сейчас думаю что там можно построить чтобы было интересно, функционально, недорого. Прошу помочь обсуждением этого дива. Как окончательно определимся с планами - буду искать архитектора для воплощения этого всего в проект и весной приступим к строительству по мере поступления финансов. Так что если есть здесь есть архитекторы - помогайте, буду примного благодарен.:beer: с надеждой на сотрудничество. Все что сделано до этого описано здесь: stroimdom.com.ua/forum/showthread.php?t=10262 Итак что мы имеем: Посилання на коментар Поділитися на інших сайтах More sharing options...
sergo77 Опубліковано: 6 листопада 2009 Автор Поділитись Опубліковано: 6 листопада 2009 За несколько месяцев раздумий пришол к такому проекту: Так это все выглядит внешне. Посилання на коментар Поділитися на інших сайтах More sharing options...
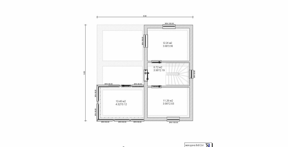
sergo77 Опубліковано: 6 листопада 2009 Автор Поділитись Опубліковано: 6 листопада 2009 Первый этаж: Второй этаж: Посилання на коментар Поділитися на інших сайтах More sharing options...
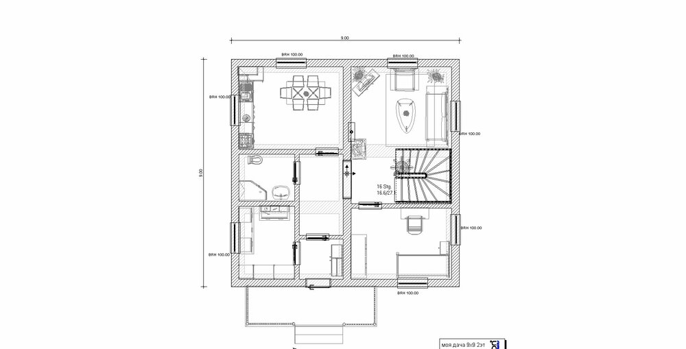
sergo77 Опубліковано: 6 листопада 2009 Автор Поділитись Опубліковано: 6 листопада 2009 Главные привязки, которые уже не поменять: это несушие стены, разводка канализации, люк в погреб и сам погреб. Все остальное можно двигать. И еще, уже есть Терива для перекрытия первого этажа... По плану видно что на первом этаже запланировано: 1) Тамбур 2) Хоз-помещение 6,36м2 с люком в погреб (из тамбура налево) 3) Санузел (душ, унитаз, умывальник...) 4) Кухня-столовая 5) Гостинная с камином и лестницей на 2эт. 6) Жилая комната Второй этаж: 1) Жилая комната 1 2) Жилая комната 2 3) Теплица-вегетарий 4) Открытая терасса с гриль-камином. Участок у нас небольшой 6 соток, много деревьев которые уничтожать жалко, поэтому тепличку и терассу решили сделать на 2эт, и вид оттуда открывается хороший - лес со всех сторон. Что думаете о таком варианте? Посилання на коментар Поділитися на інших сайтах More sharing options...
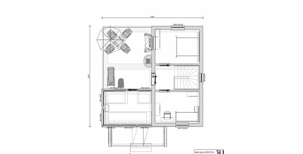
AНДРЮША Опубліковано: 6 листопада 2009 Поділитись Опубліковано: 6 листопада 2009 В таком варианте терраса не функциональна. Поднимете туда и обратно раз-два тарелки, еду, дрова и т.д. Потом плюнете. Если хороший вид и все такое я бы подумал о таком необычном шаге, как перенос приватной зоны на первый этаж, а на втором устройство кухни-гостиной с панорамными окнами и террасой-теплицей. И обязательно хоть небольшой санузел. 2 Посилання на коментар Поділитися на інших сайтах More sharing options...
sergo77 Опубліковано: 7 листопада 2009 Автор Поділитись Опубліковано: 7 листопада 2009 В таком варианте терраса не функциональна. Поднимете туда и обратно раз-два тарелки, еду, дрова и т.д. Потом плюнете. Если хороший вид и все такое я бы подумал о таком необычном шаге, как перенос приватной зоны на первый этаж, а на втором устройство кухни-гостиной с панорамными окнами и террасой-теплицей. И обязательно хоть небольшой санузел. Панорамный вид только со второго этажа, с первого вид на соседей... Чтобы упростить доступ к терассе, возможно сделать еще лестницу по наруже и какой-то подемник:D. На счет санузла на 2 эт - в тепличке будет умывальник, возможно перенесу его ближе к дверям... Неплохо было-бы и туалет, но куда его втулить? - только в жилую зону 2эт и там вроде некуда, думал может на первом этаже сделать раздельный санузел... Посилання на коментар Поділитися на інших сайтах More sharing options...
sergo77 Опубліковано: 17 листопада 2009 Автор Поділитись Опубліковано: 17 листопада 2009 Какие еще будут мнения по этой планировке? Посилання на коментар Поділитися на інших сайтах More sharing options...
Рекомендовані повідомлення
Створіть акаунт або увійдіть у нього для коментування
Ви маєте бути користувачем, щоб залишити коментар
Створити акаунт
Зареєструйтеся для отримання акаунта. Це просто!
Зареєструвати акаунтУвійти
Вже зареєстровані? Увійдіть тут.
Увійти зараз