GriksA Опубліковано: 7 квітня 2021 Поділитись Опубліковано: 7 квітня 2021 Всем доброго времени суток. Встала дилемма для выбора печи. План дома прилагается. А теперь сама суть. Дом старый, печи тоже, есть в планах убрать и перестроить обе. Только с той что на кухне все вроде-бы ясно (будет варочно-отопительная) , а вот с той что в зале не совсем ясно. Квадратура зала 30кв.м и комнаты 12.5 кв.м. высота потолков 2.4. Нужна печь для обогрева этих двух помещений. дверки для камеры сгорания в печи будут вместе с огнеупорным стеклом и смотреть в Зал(типо камин, только печь))) Может есть у кого-то на примете такая порядовка или примеры. В прихожку будет идти тепло из кухни, комнаты и зала План За ранее благодарен. P.S. Я так-то подумал , что размер печи 7.5 кирпича на 3.5 пойдет Посилання на коментар Поділитися на інших сайтах More sharing options...
salix Опубліковано: 8 квітня 2021 Поділитись Опубліковано: 8 квітня 2021 Всем доброго времени суток. Встала дилемма для выбора печи. План дома прилагается. А теперь сама суть. Дом старый, печи тоже, есть в планах убрать и перестроить обе. Только с той что на кухне все вроде-бы ясно (будет варочно-отопительная) , а вот с той что в зале не совсем ясно. Квадратура зала 30кв.м и комнаты 12.5 кв.м. высота потолков 2.4. Нужна печь для обогрева этих двух помещений. дверки для камеры сгорания в печи будут вместе с огнеупорным стеклом и смотреть в Зал(типо камин, только печь))) Может есть у кого-то на примете такая порядовка или примеры. В прихожку будет идти тепло из кухни, комнаты и зала План [ATTACH]716198[/ATTACH] За ранее благодарен. P.S. Я так-то подумал , что размер печи 7.5 кирпича на 3.5 пойдет А план в Скетчапе с размерами помещений сможете сделать? Проекты печей есть любые. Обращайтесь. 1 Посилання на коментар Поділитися на інших сайтах More sharing options...
GriksA Опубліковано: 8 квітня 2021 Автор Поділитись Опубліковано: 8 квітня 2021 А план в Скетчапе с размерами помещений сможете сделать? Вам файл скетчапа или просто фото с ращмерами? Если фото -то могу просто скинуть скрин из плана дома. А если файл скетчапа - то могу , он один в один как на прикрепленном рисунке, только размеры добавить и все Добавлено через 9 минут Проекты печей есть любые. если не секрет какая цена за проект? Посилання на коментар Поділитися на інших сайтах More sharing options...
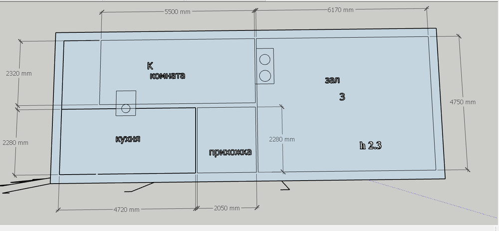
GriksA Опубліковано: 10 квітня 2021 Автор Поділитись Опубліковано: 10 квітня 2021 размеры комнат Посилання на коментар Поділитися на інших сайтах More sharing options...
янка Опубліковано: 10 квітня 2021 Поділитись Опубліковано: 10 квітня 2021 размеры комнат [ATTACH]716368[/ATTACH] а чейто размер 5500 нарисован не на всю комнату до угла а как то обрывается не доходя угла? 1 Посилання на коментар Поділитися на інших сайтах More sharing options...
янка Опубліковано: 10 квітня 2021 Поділитись Опубліковано: 10 квітня 2021 тут понятно. на кухне печь-шведка а в зале мощная каминопечь. Обе спинами выходят в комнату. 1 Посилання на коментар Поділитися на інших сайтах More sharing options...
GriksA Опубліковано: 10 квітня 2021 Автор Поділитись Опубліковано: 10 квітня 2021 а чейто размер 5500 нарисован не на всю комнату до угла а как то обрывается не доходя угла? слева вверху кладовая пока, а дальше будет коридор и выход на задний двор. Посилання на коментар Поділитися на інших сайтах More sharing options...
GriksA Опубліковано: 11 квітня 2021 Автор Поділитись Опубліковано: 11 квітня 2021 Нашел порядовку печи, которая устраивает. Печь Т-образная , размер отопительного щитка 6.5 на 1.5 кирпича. Хочу увеличить отопительный щиток до 8.5 кирпичей и шириной в 2 кирпича. Это первый ряд , выступающую часть оставить такой или немного увеличить? И как быть с каналами их нужно увеличивать или оставлять по размерам существующей порядовки? Если увеличивать - то как расчитать? Посилання на коментар Поділитися на інших сайтах More sharing options...
янка Опубліковано: 14 квітня 2021 Поділитись Опубліковано: 14 квітня 2021 и такого щита хватит...зачем увеличивать? 1 Посилання на коментар Поділитися на інших сайтах More sharing options...
Рекомендовані повідомлення
Створіть акаунт або увійдіть у нього для коментування
Ви маєте бути користувачем, щоб залишити коментар
Створити акаунт
Зареєструйтеся для отримання акаунта. Це просто!
Зареєструвати акаунтУвійти
Вже зареєстровані? Увійдіть тут.
Увійти зараз