Перейти до публікації
Пошук в
  • Додатково...
Шукати результати, які містять...
Шукати результати в...

Черновой ремонт в каркасном доме (свет, сантехника, теплый пол, стяжка, гипс) - Глеваха (Киев Обл)

pad

Рекомендовані повідомлення

Черновая отделка в каркасном доме (электрика, полы, сантехника, гипс) (Глеваха)

Добрый день, планирую сделать черновой ремонт в каркасном доме.
Дом - котедж для проживания Весна-Лето-Осень.

Не элитный ремонт :)

Буду рад выслушать от Вас ваши предложения в сообщениях и ссылки на ваших работы с фотографиями.

Общая площадь дома 100 кв.метров.

Этаж 1.

Важно - нужны люди, понимающие и имеющие опыт работы в каркасных домах.

Задачи:

1 - Электрика:

Развести электрику по дому, щитовую, автоматы, дифы; Hager / Eaton;

2 - Сантехника:

Мокрые точки (ванная, душ, умывальник, унитаз, стиралка, посудомойка и раковина на кухне); Трубы шитый полителен, хорошие фитинги, защита от протекания воды за стенку;

Канализация Валрум или Остендорф; Фановая канализация;

Теплый пол около 60 квадратов;

Ящик с коллектором под теплый пол и готовую полностью схему по теплому полу под будующий электрокотел;

3 - Стяжка:

чистовая пола под чистовую отделку (100 квадратов)

4 - Зашить гипсом нужные стены. Выставить углы ровные гипсом.

5 - Заложить закладные в каркасе под все указанные мною места (бойлеры, шкафчики, и все что будет висеть на стенах)

6 - Буду рад выслушать приятные идеи по дизайну гостиной-кухне.

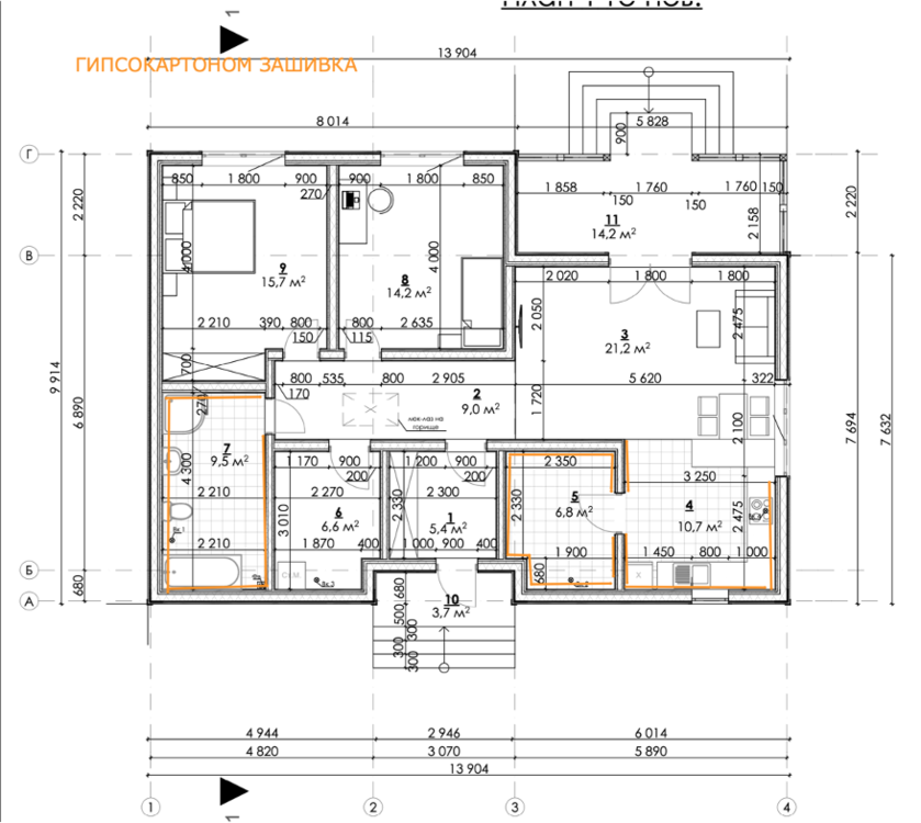
Прикладываю документации для понимания объема и планировки, и размера дома.

Оплата – поэтапная. Сантехника, Стяжка, Свет, Гипс. 4 этапа.

Работа по смете (работа+материал) + договор.

image.thumb.png.3558e60764766ab50726e9d83c778301.png

 

image.thumb.png.be74e8570ab2e75cddc035787f4b5b53.png

 

 

image.thumb.png.b1347c77fc31b6e03401ab70dc8295b4.png

Посилання на коментар
Поділитися на інших сайтах

Створіть акаунт або увійдіть у нього для коментування

Ви маєте бути користувачем, щоб залишити коментар

Створити акаунт

Зареєструйтеся для отримання акаунта. Це просто!

Зареєструвати акаунт

Увійти

Вже зареєстровані? Увійдіть тут.

Увійти зараз
×
×
  • Створити...