Перейти до публікації
Пошук в
  • Додатково...
Шукати результати, які містять...
Шукати результати в...

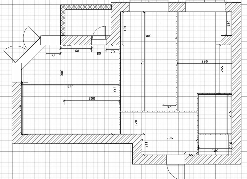
Планування кухня-студия и 2 спальні

makita

Рекомендовані повідомлення

Допоможіть будь-ласка с плануванням. 72 кв.м, двоє дорослих і дитина 8 років. Потрібні місця для зберігання речей( гардероб чі схованка)

 

333.jpg

Змінено користувачем makita
Посилання на коментар
Поділитися на інших сайтах

Створіть акаунт або увійдіть у нього для коментування

Ви маєте бути користувачем, щоб залишити коментар

Створити акаунт

Зареєструйтеся для отримання акаунта. Це просто!

Зареєструвати акаунт

Увійти

Вже зареєстровані? Увійдіть тут.

Увійти зараз
×
×
  • Створити...