terola Опубліковано: 30 листопада 2009 Автор Поділитись Опубліковано: 30 листопада 2009 aqualand я Вас с автором темы перепутала :D Торможу :D то уже я, автор LaRsoN, откройте тайну, а сколько Винницкие архитекторы коштують (конкретно ваш творец)? Посилання на коментар Поділитися на інших сайтах More sharing options...
LaRsoN Опубліковано: 1 грудня 2009 Поділитись Опубліковано: 1 грудня 2009 terola будете проезжать мимо- заезжайте:wink: 1 Посилання на коментар Поділитися на інших сайтах More sharing options...
Tugarin Опубліковано: 3 грудня 2009 Поділитись Опубліковано: 3 грудня 2009 В 180 м2 не вписался, но попыток не оставляю , а вот в 195,68 м2 получилось: Посилання на коментар Поділитися на інших сайтах More sharing options...
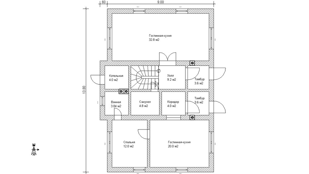
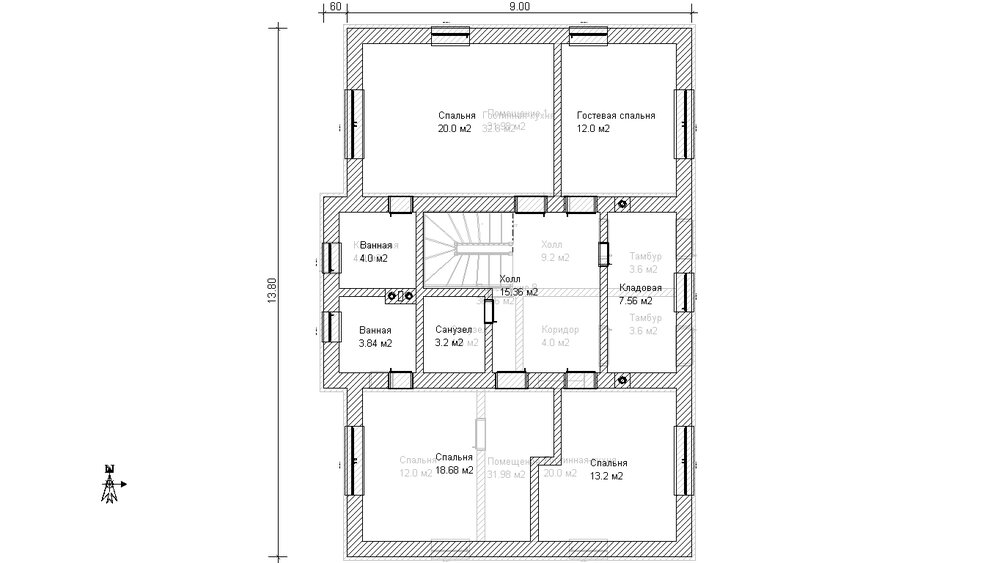
terola Опубліковано: 14 грудня 2009 Автор Поділитись Опубліковано: 14 грудня 2009 Господа, подскажите, что будет дешевле в строительстве и удобнее в эксплуатации (вопрос удобства более значим)? Сделать топочную, метров 10, и, за компанию, метров 20 кладовую в подвале под частью дома или увеличить площадь дома примерно с 175 до 190 кв.м. Посилання на коментар Поділитися на інших сайтах More sharing options...
Werewolf Опубліковано: 14 грудня 2009 Поділитись Опубліковано: 14 грудня 2009 Господа, подскажите, что будет дешевле в строительстве и удобнее в эксплуатации (вопрос удобства более значим)? Сделать топочную, метров 10, и, за компанию, метров 20 кладовую в подвале под частью дома или увеличить площадь дома примерно с 175 до 190 кв.м. Согласно пож.нормам, "топочное помещение оборудуется отдельным выходом...". А из подвала только в "Хромую лошадь" (извините за цинизм). Посилання на коментар Поділитися на інших сайтах More sharing options...
terola Опубліковано: 14 грудня 2009 Автор Поділитись Опубліковано: 14 грудня 2009 Согласно пож.нормам, "топочное помещение оборудуется отдельным выходом...". Так будет отдельный выход - по лесенке на улицу и окошко туда же будет. Я же не враг самой себе. Странное замечание, на вскидку, процентов 20 домов имеют топочную в цоколе. Посилання на коментар Поділитися на інших сайтах More sharing options...
Werewolf Опубліковано: 14 грудня 2009 Поділитись Опубліковано: 14 грудня 2009 Так будет отдельный выход - по лесенке на улицу и окошко туда же будет. Я же не враг самой себе. Странное замечание, на вскидку, процентов 20 домов имеют топочную в цоколе. А я поняла, что в подвале, как вы писали. Просто столько ужасов на лекциях и семинарах начитали про оседание продуктов згорания... Посилання на коментар Поділитися на інших сайтах More sharing options...
Zhenis Опубліковано: 16 грудня 2009 Поділитись Опубліковано: 16 грудня 2009 (ссылка устарела) немецкие дома на две семьи Посилання на коментар Поділитися на інших сайтах More sharing options...
Zhenis Опубліковано: 16 грудня 2009 Поділитись Опубліковано: 16 грудня 2009 www.fingerhaus.de/de/haeuser/einfamilienhaeuser/premiere/premiere-670 ровно 180 метров.И переделывать не надо. Посилання на коментар Поділитися на інших сайтах More sharing options...
Polimer Опубліковано: 16 грудня 2009 Поділитись Опубліковано: 16 грудня 2009 www.fingerhaus.de/de/haeuser/einfamilienhaeuser/premiere/premiere-670 ровно 180 метров.И переделывать не надо. У вас копия с поста № 12, но там все умнее продумано. Например как вы себе представляете ванная на 2 жтаже над гостинной? Ну и еще нюансы. Вобщем - тот мне больше нравиться. Посилання на коментар Поділитися на інших сайтах More sharing options...
Evgeny42 Опубліковано: 16 квітня 2012 Поділитись Опубліковано: 16 квітня 2012 Времянку то построили ???? али как????:fool:,наивняк.... Посилання на коментар Поділитися на інших сайтах More sharing options...
Рекомендовані повідомлення
Створіть акаунт або увійдіть у нього для коментування
Ви маєте бути користувачем, щоб залишити коментар
Створити акаунт
Зареєструйтеся для отримання акаунта. Це просто!
Зареєструвати акаунтУвійти
Вже зареєстровані? Увійдіть тут.
Увійти зараз