xtrail Опубліковано: 30 листопада 2009 Поділитись Опубліковано: 30 листопада 2009 пришло время делать септик, в доме будет жить 4 человека, расстояние от дома до септика метров 15, интересует вариант "ДЕШЕВЫЙ И ПРАКТИЧНЫЙ" , думаю что надо сделать 2ух камерный септик, ( вопросы: 1. какой объем ямы должен быть? высота ширина (чистая) 2. и с какого материала дешевле (бетонные круги как в колодце или выложить кирпичную кладку) Посилання на коментар Поділитися на інших сайтах More sharing options...
lavina Опубліковано: 1 грудня 2009 Поділитись Опубліковано: 1 грудня 2009 КОЛЬЦА 2 -Х МЕТРОВЫЕ ПЕРВЫЙ КОЛОДЕЦ ПОЛНОСТЬЮ ГЕРМЕТИЧНЫЙ И ПЕРЕЛИВ ВО ВТОРОЙ ТОТ ДРЕНАЖНЫЙ ЕСТЬ КОМУ СДЕЛАТЬ Посилання на коментар Поділитися на інших сайтах More sharing options...
isr Опубліковано: 1 грудня 2009 Поділитись Опубліковано: 1 грудня 2009 У меня двух камерный (1.5+1.5м3) обошлось около 3200-3500грн. 1.Земелные работы 700грн(две ямы 1.4*1.4*1.5+траншей 8м*0.4*08). 2.Цемент,щебен,песок 1500грн.(3 куба бетона) 3.Лист плоского шифера 50грн (сосед продал). 4.Квадрат 40*40 труба 12м (остатки)+ трубы слива 2м, тройник,8м асбестовый трубы, арматура (остатки) -? 5.Работа 900грн. Получилось две камеры по 1.5 куба и дренаж 8м асбестовый трубы. Оба камеры накрыли с плоским шифером., уложив их на квадратные трубы .Дешевле врядли получится. Посилання на коментар Поділитися на інших сайтах More sharing options...
Oleg Опубліковано: 1 грудня 2009 Поділитись Опубліковано: 1 грудня 2009 У меня двух камерный (1.5+1.5м3) обошлось около 3200-3500грн. 1.Земелные работы 700грн(две ямы 1.4*1.4*1.5+траншей 8м*0.4*08). 2.Цемент,щебен,песок 1500грн.(3 куба бетона) 3.Лист плоского шифера 50грн (сосед продал). 4.Квадрат 40*40 труба 12м (остатки)+ трубы слива 2м, тройник,8м асбестовый трубы, арматура (остатки) -? 5.Работа 900грн. Получилось две камеры по 1.5 куба и дренаж 8м асбестовый трубы. Оба камеры накрыли с плоским шифером., уложив их на квадратные трубы .Дешевле врядли получится. Трубы на шифер, это вместо крышек? Посилання на коментар Поділитися на інших сайтах More sharing options...
isr Опубліковано: 1 грудня 2009 Поділитись Опубліковано: 1 грудня 2009 Трубы на шифер, это вместо крышек? Шифер на трубы. Промежуток между трубами 20см. Трубы для жесткости и на шифере делал 20на30см люк которое накрывается куском (30на 40см) шифера. Посилання на коментар Поділитися на інших сайтах More sharing options...
grishenko Опубліковано: 1 грудня 2009 Поділитись Опубліковано: 1 грудня 2009 У меня двух камерный (1.5+1.5м3) обошлось около 3200-3500грн. 1.Земелные работы 700грн(две ямы 1.4*1.4*1.5+траншей 8м*0.4*08). 2.Цемент,щебен,песок 1500грн.(3 куба бетона) 3.Лист плоского шифера 50грн (сосед продал). 4.Квадрат 40*40 труба 12м (остатки)+ трубы слива 2м, тройник,8м асбестовый трубы, арматура (остатки) -? 5.Работа 900грн. Получилось две камеры по 1.5 куба и дренаж 8м асбестовый трубы. Оба камеры накрыли с плоским шифером., уложив их на квадратные трубы .Дешевле врядли получится. Размеры 1.4х1.4х1.5 -1,5-это глубина ? Какова тогда у вас глубина залегания канализ трубы ? Посилання на коментар Поділитися на інших сайтах More sharing options...
isr Опубліковано: 1 грудня 2009 Поділитись Опубліковано: 1 грудня 2009 Размеры 1.4х1.4х1.5 -1,5-это глубина ? Какова тогда у вас глубина залегания канализ трубы ? Да это глубина.У меня грунтовые воды 1.5 м . А трубы лежат на глубине от 20 до 40см ( утеплены ) Посилання на коментар Поділитися на інших сайтах More sharing options...
grishenko Опубліковано: 1 грудня 2009 Поділитись Опубліковано: 1 грудня 2009 xtrail Я думаю по поводу кострукций на форуме найдете не ленитесь ! По поводу стоимости я посчитал что для меня дешевле вылить ! Сделал такой-наш в одной из веток Посилання на коментар Поділитися на інших сайтах More sharing options...
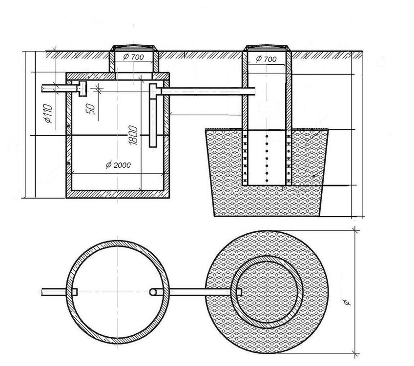
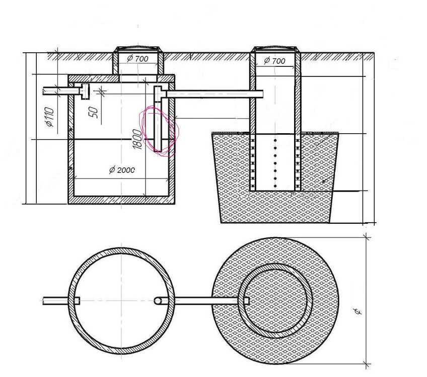
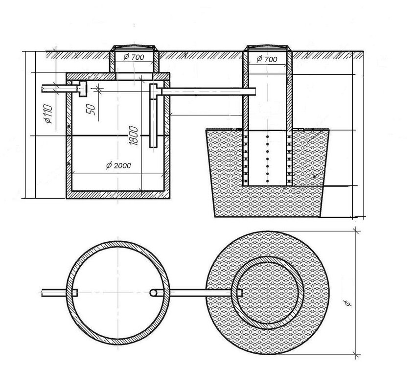
yurok Опубліковано: 2 грудня 2009 Поділитись Опубліковано: 2 грудня 2009 Я вот такую конструкцию себе сделал, уже полгода работает - полет нормальный)) Посилання на коментар Поділитися на інших сайтах More sharing options...
buch_alter Опубліковано: 2 грудня 2009 Поділитись Опубліковано: 2 грудня 2009 Я вот такую конструкцию себе сделал, уже полгода работает - полет нормальный)) "Кiльце дренажне"- это обычное бетон.кольцо, только дырок насверлили? Если да, то какой диаметр и количество? Посилання на коментар Поділитися на інших сайтах More sharing options...
yurok Опубліковано: 3 грудня 2009 Поділитись Опубліковано: 3 грудня 2009 "Кiльце дренажне"- это обычное бетон.кольцо, только дырок насверлили? Если да, то какой диаметр и количество? Совершенно верно. Сверлил сверлом какое было, помоему 12мм в хаотичном порядке... Главное что вода еще не скоро до этих отверстий дойдет, все уходит в дренаж (щебень). А для себя чуть адаптировал систему - вместо 1,5м кольца поставил 2м и септик вышел больше)), а второй ряд колец поставил обычные колодезные и щебня побольше кубов 5)) Посилання на коментар Поділитися на інших сайтах More sharing options...
xtrail Опубліковано: 3 грудня 2009 Автор Поділитись Опубліковано: 3 грудня 2009 та у меня тоже грунтовые воды очень близко, и еще много кирпича старого красного, может подскажите схемку, как это все слепить вместе, чтоб не рассыпалось, а то я так понимаю что из кирпичей делать не желательно или нормально??? Посилання на коментар Поділитися на інших сайтах More sharing options...
xtrail Опубліковано: 3 грудня 2009 Автор Поділитись Опубліковано: 3 грудня 2009 Совершенно верно. Сверлил сверлом какое было, помоему 12мм в хаотичном порядке... Главное что вода еще не скоро до этих отверстий дойдет, все уходит в дренаж (щебень). А для себя чуть адаптировал систему - вместо 1,5м кольца поставил 2м и септик вышел больше)), а второй ряд колец поставил обычные колодезные и щебня побольше кубов 5)) а что за белая тряпка под щебнем и по бокам? Посилання на коментар Поділитися на інших сайтах More sharing options...
trog Опубліковано: 3 грудня 2009 Поділитись Опубліковано: 3 грудня 2009 Главное что вода еще не скоро до этих отверстий дойдет, все уходит в дренаж (щебень) у нас практически та же самая конструкция как по вашему чертежу. Нижнее кольцо дренажного колодца до половины в дырках диаметр по-моему 18мм. За 3 года дырки похоже заилились, вода сбрасывается плохо Посилання на коментар Поділитися на інших сайтах More sharing options...
trog Опубліковано: 3 грудня 2009 Поділитись Опубліковано: 3 грудня 2009 а что за белая тряпка под щебнем и по бокам? это геотекстиль похоже. чтобы щебень не расплывался. Посилання на коментар Поділитися на інших сайтах More sharing options...
yurok Опубліковано: 3 грудня 2009 Поділитись Опубліковано: 3 грудня 2009 у нас практически та же самая конструкция как по вашему чертежу. Нижнее кольцо дренажного колодца до половины в дырках диаметр по-моему 18мм. За 3 года дырки похоже заилились, вода сбрасывается плохо Вот чтоб такого не было, надо и использовать геотекстиль термоскрепленный (задерживает частицы грунта, а в ответ пропускает воду), на фото белая тряпка )) Посилання на коментар Поділитися на інших сайтах More sharing options...
trog Опубліковано: 3 грудня 2009 Поділитись Опубліковано: 3 грудня 2009 Вот чтоб такого не было, надо и использовать геотекстиль термоскрепленный возможно вы правы, но мне таки кажется что заиливание вышло из-за частиц жира в серой воде. боюсь что в моем случае уже геотекстиль на имеющееся колечко не навернуть проще будет еще один уже третий колодец создать по правилам. Посилання на коментар Поділитися на інших сайтах More sharing options...
yurok Опубліковано: 3 грудня 2009 Поділитись Опубліковано: 3 грудня 2009 возможно вы правы, но мне таки кажется что заиливание вышло из-за частиц жира в серой воде. боюсь что в моем случае уже геотекстиль на имеющееся колечко не навернуть проще будет еще один уже третий колодец создать по правилам. Ваш вариант возможен, если у вас нет такого патрубка как на рисунке, тогда жирная пленочка попадает во второй ряд колец и там оседает на стенках забивая отверстия. А по технологии она должна остаться в септике, так как легче воды, а все остальное в осадок на дно.. Посилання на коментар Поділитися на інших сайтах More sharing options...
solival Опубліковано: 31 березня 2010 Поділитись Опубліковано: 31 березня 2010 Да это глубина.У меня грунтовые воды 1.5 м . А трубы лежат на глубине от 20 до 40см ( утеплены ) Расскажите пожалуйста поподробнее. У меня похожая ситуация. Вчера смотрел в колодец - 1,5 м до зеркала. Я так понимаю у вас два куба по 1,5 м3 это септик, а асбестовая труба 8м это фильтрационные поля? То есть труба, а под ней дырки? Просто во всех схемах с полями ставят три трубы по 16-20 метров с расстоянием 1,5 и все это зарывают в песок. Получается общая длина 48-60 метров. Аргументируют - что меньшая длина быстро заилиться. Сколько у вас работает данная конструкция (по времени)? Как пережила зиму? Ведь в -20 даже утепленная труба не спасет на глубине 40 см... Посилання на коментар Поділитися на інших сайтах More sharing options...
bio7 Опубліковано: 31 березня 2010 Поділитись Опубліковано: 31 березня 2010 Просто во всех схемах с полями ставят три трубы по 16-20 метров с расстоянием 1,5 и все это зарывают в песок. Получается общая длина 48-60 метров. Аргументируют - что меньшая длина быстро заилиться. Да не смешите людей. Всё ж зависит от грунта. Если грунт песок, то можно сделать по 10п.м. Т.е. в общем 30п.м. и всё будет превосходно работать. Конечно лучше ставить систему с аэрацией. С такой системой дренаж вечный. www.bio7.com.ua Посилання на коментар Поділитися на інших сайтах More sharing options...
UDO Опубліковано: 7 квітня 2010 Поділитись Опубліковано: 7 квітня 2010 Господа Форумчане, изучив теоретически-методическую часть по обустройству септиков на участке хотел бы просить совета у тех, кто НА ПРАКТИКЕ им пользуется.... У меня задача состоит в том, чтобы соорудить септик (всё из жб колец) с дренажным колодцем на расстоянии 20 метров от дома, при этом - канализационная труба выходит с дома на глубине 75 см и, и (по науке каждый метр 0.02 см уклон) будет идти прямиком 20 метров, надо приплюсовать ещё 40 см., то есть буду иметь на входе в септик глубину минимум 1.15 метра. - Труба будет оранжевая канализационная (наружняя) 110 мм ; - в доме будет проживать постоянно 4 человека, то есть надо объём 2.5-2.6 м.куб; - грунтовые воды находяться 7-8 м. от поверхности, песок начинается с 1.5 метра! - А вопросы следующие: 1. Наскольно небезопасно на практике может отобразится то, что труба будет идти без смотровых колодцев (не особо хочется делать, так как этот участок проходит по фасадной части) от дома до септика на РАССТОЯНИИ 20 метров- Можно ли так делать?!? 2. если у меня вход трубы в септик будет на глубине 1.2 метра (1.3 кольца по высоте) какие лучше кольца использовать и сколько для септика (4 -5 метровых, или 3 полтораметровые) и дренаж колодца для полноценного и рационального использования?! 3. в доме есть фановая труба (выведена в отдельный вентканал дымохода) и для неё необходимо делать в септике (дренаж. колодце), тоже вытяжку - насколько он нужен, можно его вообще не делать ( из- за естетических и ароматных соображений - септик и дренаж будут находиться напротив фасада дома! ЗАРАНЕЕ БОЛЬШОЕ СПАСИБО за ответы и критику!!! Желаю ВСЕМ УдаЧИ!!! Посилання на коментар Поділитися на інших сайтах More sharing options...
technik Опубліковано: 8 квітня 2010 Поділитись Опубліковано: 8 квітня 2010 СНиПы они хоть и старые, но в них собран опыт эксплуатации канализации от древнеримских времен, и они требуют установку смотрового колодца перед септиком. Вентиляционная труба обязательна, именно для удаления запахов. Мне кажется полутораметровые кольца лучше, меньше скорость протока- лучше осаждение взвесей. 2 Посилання на коментар Поділитися на інших сайтах More sharing options...
yurok Опубліковано: 8 квітня 2010 Поділитись Опубліковано: 8 квітня 2010 Отчет после зимы)) Сделал себе септик и дренаж из ж/б колес - обошелся примерно 6000грн (материалы и работа). Запуск был осуществлен в мае 2009г. Практически прошел год и что я хочу подчеркнуть. Не стоит использовать БИОПРЕПАРАТЫ - выкачка денег, эффекта я не заметил. По началу был неприятный запах((, не знал что делать, а оказалось просто надо загерметезировать крышку на бетонном кольце и все пропало)). Весной боялся что мой дренаж переполниться от воды из-за количества снега, оказалось зря волновался, до сих пор в дренажном кольце верхний слой щебня сухой и воды даже не видно)) Доволен этой конструкцией (дешево и сердито), рекомендую всем у кого грунт нормальный)) Посилання на коментар Поділитися на інших сайтах More sharing options...
bio7 Опубліковано: 8 квітня 2010 Поділитись Опубліковано: 8 квітня 2010 Отчет после зимы)) Сделал себе септик и дренаж из ж/б колес - обошелся примерно 6000грн (материалы и работа). Запуск был осуществлен в мае 2009г. Практически прошел год и что я хочу подчеркнуть. Не стоит использовать БИОПРЕПАРАТЫ - выкачка денег, эффекта я не заметил. По началу был неприятный запах((, не знал что делать, а оказалось просто надо загерметезировать крышку на бетонном кольце и все пропало)). Весной боялся что мой дренаж переполниться от воды из-за количества снега, оказалось зря волновался, до сих пор в дренажном кольце верхний слой щебня сухой и воды даже не видно)) Доволен этой конструкцией (дешево и сердито), рекомендую всем у кого грунт нормальный)) Ну это Вы зря так. Люди используют биопрепараты и отзывы только положительные. Используют локальные очистные сооружения и также очень довольны. Первый год и выгребная яма нормально работает. Интересно, что будет дальше. Пишите нам. Посилання на коментар Поділитися на інших сайтах More sharing options...
Рекомендовані повідомлення
Створіть акаунт або увійдіть у нього для коментування
Ви маєте бути користувачем, щоб залишити коментар
Створити акаунт
Зареєструйтеся для отримання акаунта. Це просто!
Зареєструвати акаунтУвійти
Вже зареєстровані? Увійдіть тут.
Увійти зараз