akhavr Опубліковано: 10 грудня 2009 Поділитись Опубліковано: 10 грудня 2009 На реалізацію свої первісних планів, хочу підняти обговорення планування. Повторю вхідні дані: Ділянка 30м на 60 м, вузькою стороною орієнтована майже точно на північ. На ній ростуть дерева, які небажано прибирати, тому площа під, власне, будинок - обмежена. В будинку буду постійно жити я з жінкою, дитина (зараз мала) + майбутнє поповнення. В якості архітектора обрав Олега. Нижче - перший варіанти планування і "посадка" будинку на ділянку. Посилання на коментар Поділитися на інших сайтах More sharing options...
akhavr Опубліковано: 10 грудня 2009 Автор Поділитись Опубліковано: 10 грудня 2009 Зауваження, що одразу з'явились до цього плану. 1й поверх * недостатня площа підсобних приміщень - де ховати мотлох? одразу планувати сарай поряд чи робити цокольний поверх? * де прати та сушити речі? в топочній за наявності ТТ котла це неприпустмо * чому б кухню не перенести на північ? там і так буде завжди тепло * з 1-го поверху не видно дорогу * розкладка перекриття - між холлом (4) та загальною кімнатою (1) балка? * аналогічно - на що спиратиметься капітальна стіна на другому поверсі, що стоїть по лінії 3 між лініями Б і В? * чому б не зробити вихід в зимовий сад з загальної кімнати (1) ? цей вихід треба робити з подвійними дверима * Чи буде вікно на сходах на другому поверсі? Інакше сходи та хол будуть темними. 2й поверх * Хазяйська спальня * на півночі * темна кімната * нема можливості поставити камін * мало місця, жінка хоче свій закуток з трюмо чи чимось схожим * Нема гардеробної на 2-му поверху - де тримати одяг? Посилання на коментар Поділитися на інших сайтах More sharing options...
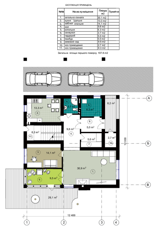
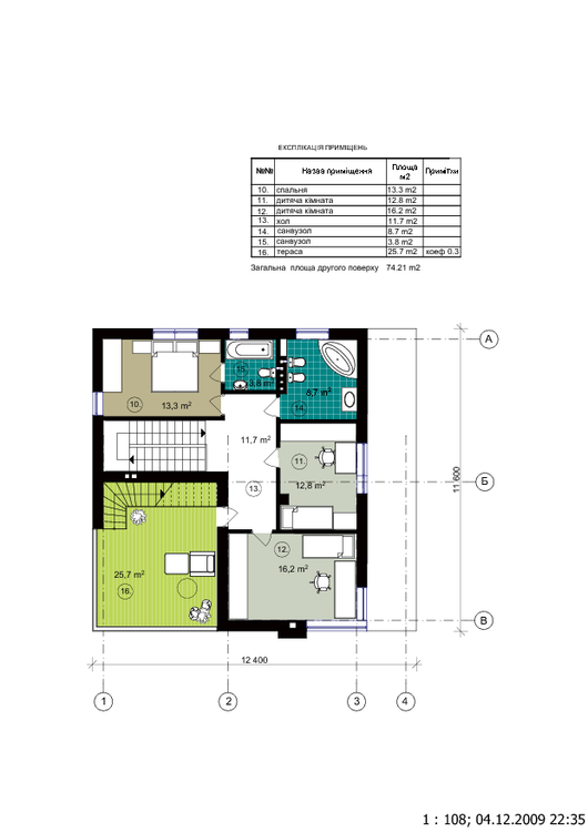
akhavr Опубліковано: 10 грудня 2009 Автор Поділитись Опубліковано: 10 грудня 2009 Як результат, з'явилось таке планування приміщеннь. Що скаже клуб? Посилання на коментар Поділитися на інших сайтах More sharing options...
Zhenis Опубліковано: 11 грудня 2009 Поділитись Опубліковано: 11 грудня 2009 Рисунки не видны толком,а в остальном без перевода ничего не понял:oops Посилання на коментар Поділитися на інших сайтах More sharing options...
akhavr Опубліковано: 13 грудня 2009 Автор Поділитись Опубліковано: 13 грудня 2009 Рисунки не видны толком,а в остальном без перевода ничего не понял:oops Вибачайте, що погано видно в цих малюнках: перша ітерація: - перший поверх - другий поверх - ділянка друга ітерація: - перший поверх - другий поверх І до чого Ваші планування? Посилання на коментар Поділитися на інших сайтах More sharing options...
kxigiki_pasha Опубліковано: 13 грудня 2009 Поділитись Опубліковано: 13 грудня 2009 А я б на вашому місці проект першого поверху не змінював. А проект другого поверху так би залишив як ви показали у свому варіанті Посилання на коментар Поділитися на інших сайтах More sharing options...
aveoalex Опубліковано: 26 лютого 2010 Поділитись Опубліковано: 26 лютого 2010 Во втором варианте. можно задать следующие вопросы: 1.Непонятки с лестницей и дополнительным входом с улицы(уже третий), как попадаем на 2-ой этаж. Если можно 3д модель. 2. Вентканалов возле камина сколько. Или второй вентканал из спальни? Тогда на перовм этаже он долже сбоку располагаться а не по центру. 3. Несущих стен явно многовато. 4. Санузлы находятся по разную сторону от вентиляционного стояка. Может имеет смысл поменять топочную и санузел на первом этаже. А выход из топочной сделать наружу. Тогда в санузле можно сушить белье. Такие раскладывающиеся металлические сушки. Тем более в украинском снипе по моему нет требования что бы дверь обязательно из топочной открывалась наружу. Или размер топочной не позволяет? Если сделать два вентканала на котел то помоему ограничения на размер помещения очень небольшие. Это лучше уточнить у архитектора. 5. Два вентканала на кухне если плита с другой стороны, то може их убрать, а вентиляцию сделать сквозь наружную стену? Или переставить плиту? 6. Как глобальное предложение сделать тамбув выше 10-го хозпомещения. А номера 4,8,7 объединить. Левый нижний угол помещения 7 сделать колонной. И тогда на первом этаже можно играть в футбол 60м2. Если лестница останется как на первом варианте, то кухню можно увеличить за счет того что часть помещения вдвинуть под лестницу подымающуюся наверх, и под ней же сделать входную в дверь в кухню Посилання на коментар Поділитися на інших сайтах More sharing options...
Рекомендовані повідомлення
Створіть акаунт або увійдіть у нього для коментування
Ви маєте бути користувачем, щоб залишити коментар
Створити акаунт
Зареєструйтеся для отримання акаунта. Це просто!
Зареєструвати акаунтУвійти
Вже зареєстровані? Увійдіть тут.
Увійти зараз