ajeksa Опубліковано: 21 грудня 2009 Поділитись Опубліковано: 21 грудня 2009 Добрый день, Прошу Всех обсудить данный проект. Интересны все замечания, пожелания, критика, и .т.д. Описание: Дом для постоянного проживания 2-х семей, с возможным посещением гостей. Проживание от 6-10 человек, постоянно. Стены несущие в 2 кирпича, перекрытие пустотные ж.б. плиты. Окна металлопластиковые + деревянные. Внешняя отделка Набрызг шубы+отделка камнем центральной части и углов. Фундамент отделка натуральным камнем. Крыша черепичная. Посилання на коментар Поділитися на інших сайтах More sharing options...
ajeksa Опубліковано: 22 грудня 2009 Автор Поділитись Опубліковано: 22 грудня 2009 Всем не нравится? Посилання на коментар Поділитися на інших сайтах More sharing options...
Amplifier Опубліковано: 22 грудня 2009 Поділитись Опубліковано: 22 грудня 2009 (змінено) Всем не нравится? Ну, раз все молчат... Мне не нравится. Располагать гараж в доме, не самая удачная затея - вонь от машины найдет свой путь в дом. Сам дом в виде буквы П, даже не знаю, что и сказать.. это, наверно, из разряда строительных казусов. Извините, не заметил, что дом на две семьи, отчасти это оправдывает такое решение, но только отчасти. Змінено 22 грудня 2009 користувачем Amplifier Дополнение. Посилання на коментар Поділитися на інших сайтах More sharing options...
ajeksa Опубліковано: 23 грудня 2009 Автор Поділитись Опубліковано: 23 грудня 2009 Ну, раз все молчат... Мне не нравится. Располагать гараж в доме, не самая удачная затея - вонь от машины найдет свой путь в дом. Сам дом в виде буквы П, даже не знаю, что и сказать.. это, наверно, из разряда строительных казусов. Извините, не заметил, что дом на две семьи, отчасти это оправдывает такое решение, но только отчасти. 1) Гараж в доме, так как планируется использование более 2-х машин. Для выхлопных газов использовали гофро-шланги, накидываешь после заезда в гараж, снимешь при выезде + вентиляция... 2) Дом в виде буквы П - наша мечта, возможно не всем понравится. Во первых дом на 2-3 семьи, во вторых выигрыш в освещенности дома. В центральной части зимний сад, в перспективе застекленный. Выход внутренних окон планируется в зимний сад. Думаем над крышей... возможно она поменяется. Посилання на коментар Поділитися на інших сайтах More sharing options...
Amplifier Опубліковано: 23 грудня 2009 Поділитись Опубліковано: 23 грудня 2009 1) Гараж в доме, так как планируется использование более 2-х машин. Для выхлопных газов использовали гофро-шланги, накидываешь после заезда в гараж, снимешь при выезде + вентиляция... 2) Дом в виде буквы П - наша мечта, возможно не всем понравится. Во первых дом на 2-3 семьи, во вторых выигрыш в освещенности дома. В центральной части зимний сад, в перспективе застекленный. Выход внутренних окон планируется в зимний сад. Думаем над крышей... возможно она поменяется. Ну, если застеклите под зимний сад, тогда вопрос снимается, так как вы исключите очень приличную площадь из теплопотерь. А что касается гаража - никакие шланги вас не спасут, теже шланги сами по себе будут источником вони, я уверен, Вы еще вспомните этот разговор-))) с запахами из гаража, конечно, можно бороться, но полной победы над ними достичь не удастся - проверено многими... 1 Посилання на коментар Поділитися на інших сайтах More sharing options...
ajeksa Опубліковано: 23 грудня 2009 Автор Поділитись Опубліковано: 23 грудня 2009 Ну, если застеклите под зимний сад, тогда вопрос снимается, так как вы исключите очень приличную площадь из теплопотерь. А что касается гаража - никакие шланги вас не спасут, теже шланги сами по себе будут источником вони, я уверен, Вы еще вспомните этот разговор-))) с запахами из гаража, конечно, можно бороться, но полной победы над ними достичь не удастся - проверено многими... По поводу запахов, проход через: Систему вентиляции; Каналы прохода электро и малоточных сетей; Канализационные каналы; Двери и лестницы; или через микропоры в бетоне? Посилання на коментар Поділитися на інших сайтах More sharing options...
Amplifier Опубліковано: 23 грудня 2009 Поділитись Опубліковано: 23 грудня 2009 Да, Вы перечислили возможные пути проникновения, как показывает практика, достичь абсолютной герметичности этих конструкций невозможно, но это не всё... Лето, жара, тяги практически нет, запах из гаража обволакивает дом, окна открыты... реальная ситуация? Источник вони находится в доме, и Вы уже думаете, как с ним бороться... проще этот источник вынести за пределы дома, только и всего. Я еще могу понять, когда гараж размещают под домом при острой нехватке земли, но тут, как я понимаю, с этим проблем нет? Посилання на коментар Поділитися на інших сайтах More sharing options...
gala-la Опубліковано: 20 квітня 2011 Поділитись Опубліковано: 20 квітня 2011 запах из гаража обволакивает дом, окна открыты... У нас гараж в доме. Я в этом доме живу 4 года ,муж - 10 .Гараж не воняет. Запаха гаража, машины, бензина в доме нет. Посилання на коментар Поділитися на інших сайтах More sharing options...
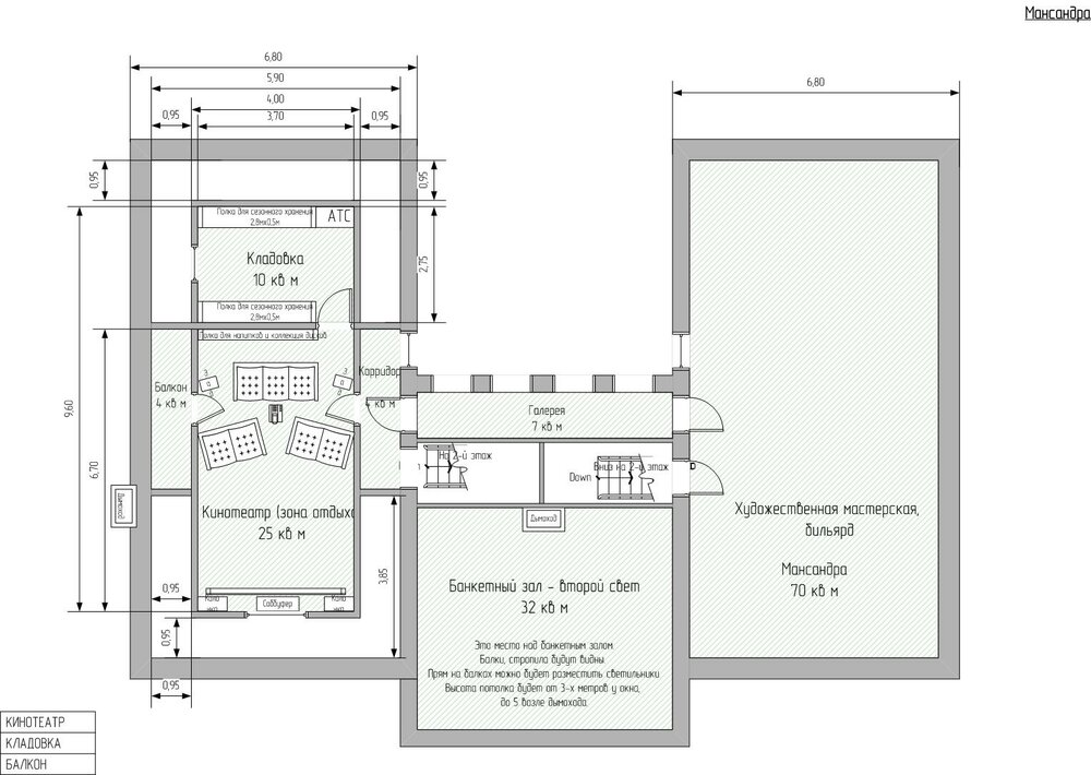
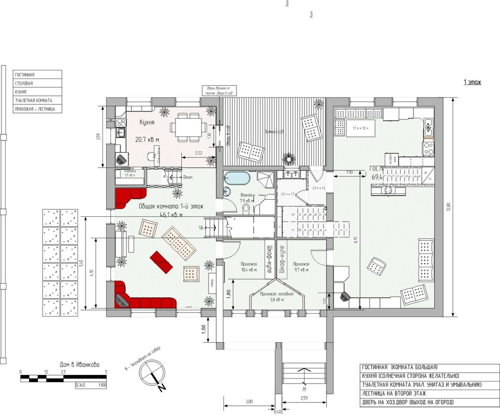
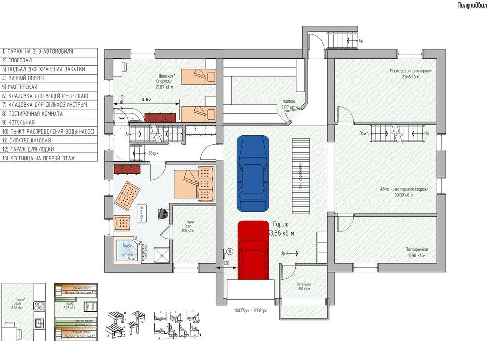
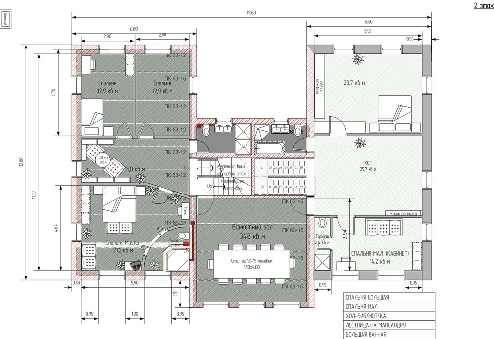
Architetta Опубліковано: 26 квітня 2011 Поділитись Опубліковано: 26 квітня 2011 Добрый день, Прошу Всех обсудить данный проект. Интересны все замечания, пожелания, критика, и .т.д. Описание: Дом для постоянного проживания 2-х семей, с возможным посещением гостей. Проживание от 6-10 человек, постоянно. Стены несущие в 2 кирпича, перекрытие пустотные ж.б. плиты. Окна металлопластиковые + деревянные. Внешняя отделка Набрызг шубы+отделка камнем центральной части и углов. Фундамент отделка натуральным камнем. Крыша черепичная. При поверхностном просмотре данного проекта бросились в глаза некоторые недоработки... 1) Тощина наружной (в Вашем случае ещё и несущей) кирпичной стены 500 мм - маленькая. Расчитывать толщину лучше по нормативным документам (например, просмотрите СНиП II-3-79). Могу сразу сказать, что смело можно внести вот такую корректировку: 380мм(кирпич)+120мм(минвата)+120мм(кирпич). 2) На первой этаже межквартирная перегородка - опять-таки тонкая... Межквартирная перегородка (раз уж речь идёт о проживании двух семей) должна быть с воздушной прослойкой. Допустим, 100+50+100, или же 200мм без прослойки. 3) Немного не понятно почему лестница ни по одной длинной стороне не имеет несущей стены, хотябы каких-то колонн в углах. Если брать стандартное решение, то лестницу лучше "заключать" с двух сторон с несущие стены. 4) Большая ванная на первом этаже (если нет в этом уровне спальни и нет наличия человека, не имеющего возможности перемещаться) - не оправдана... Просторную ванную лучше было бы разместить на втором этаже. А на первом вполне хватит небольшого гостевого санузла (унитаз, умывальник, душ). 5) Не нравится раздвижная дверь в зимний сад, которая задвигается в несущую стену... В это случае, проём Вы можете смело считать не 1,3 м, как обозначено на чертеже, а 2,6м (т.к. 1,3 состоит из двух полотен по 650мм и эти полотна должны прятаться в стену) А проём 2,6 при такой толщине несущей стены (без специальных укрепляющий мероприятий) становится опасным. 6) Здесь же (на первом этаже), шкаф-купе в прихожей неудачно расположен. Тут два варианта - либо не делать эту замысловатую форму тамбура или же переносить шкаф-купе на параллельную стену (если смотреть на левую квартиру, по лучше шкаф разместить вдоль стены с камином). В правой квартире - соответственно - зеркально. 7) кухня есть только в левом крыле? 8 ) почему в котельной наружная стена такая тонкая? Это больше на перегородочку похоже... 9) гараж должен отделяться от жилых помещений тамбур-шлюзом (с постоянным подпором воздуха) 10) на втором этаже в правой квартире - санузел очень крошечный. Не вижу смысла делать санузел при кабинете. Лучше его немного расширить и сделать к нему доступ с коридора. Так будет логичнее, так как этот санузел, в этом случае, сможет "обслуживать" банкетный зал и тот же кабинет. 11) здесь же (2-й эт. правая сторона) немного неудобное расположение санприборов во втором санузле. 12) на первом этаже (правая сторона) санузел без унитаза и душа?.. 13) в банкетном зале (3-й этаж) написано "второй свет" - для того, чтобы это пространство так назвать - необходимы окна в этой стене (на этом уровне - 3-й эт.) или же окно в крыше, тогда да, это второй свет (когда лучи попадают не напрямую в помещение, а через "второе" помещение) 14) какой смысл изолировать левое крыло от правого в уровнях подвала, первого и второго этажей, если на третьем оба крыла благополучно сливаются в единое? 15) Что огорожено вокруг кинотеатра? 16) В художественной мастерской всего одно окошечко на такую площадь... 17) На третьем этаже на лестницу можно было бы "пустить" как раз этот самый - второй свет через галерею. Сделав в стене между галереей и лестницей окна. 18 )дверь в коридоре (3-й этаж левое крыло) при открывании блокирует коридор. Ширину коридора лучше не делать меньше 1100мм (на плане не указано, это я на всякий случай) 19) при входе в художественную мастерскую отверстие под лестницу?.. Внесу корректировку в условные обозначения (так как смотрю, что на плане пытались как-то внести в ясность что куда ведёт, но немного неудачно. Значит так: направление движения по лестнице на плане (стрелочка) всегда показывает движение вверх. И необязательно писать Up или Down. Стрелка показывает где верх ;) Это общепринятое обозначение. Вобщем, где-то так... Если всмотреться, можно ещё что-то подкорректировать. Но, думаю, и так есть над чем поразмыслить Может, конечно, проект уже и реализован. Так как датировано первое сообщение 2009 годом )) Но, думаю, другим начинающим свой путь в строительстве и проектировании своего дома - это сообщение, чем-то да и поможет )) Посилання на коментар Поділитися на інших сайтах More sharing options...
вторик Опубліковано: 27 квітня 2011 Поділитись Опубліковано: 27 квітня 2011 слежу за стройкой Посилання на коментар Поділитися на інших сайтах More sharing options...
Рекомендовані повідомлення
Створіть акаунт або увійдіть у нього для коментування
Ви маєте бути користувачем, щоб залишити коментар
Створити акаунт
Зареєструйтеся для отримання акаунта. Це просто!
Зареєструвати акаунтУвійти
Вже зареєстровані? Увійдіть тут.
Увійти зараз