Перейти до публікації
Пошук в
  • Додатково...
Шукати результати, які містять...
Шукати результати в...

Проект реконструкции части дома

art-ds

Рекомендовані повідомлення

Добрый день уважаемый форум! Это мое первое сообщение в форуме (хотя уже многое из него почерпнул), так что если что не так напишу или прикреплю, не пинайте ногами, я научусь. :)

У меня следующая ситуация. Так получилось что летом прошлого года обменял однокомнатную квартиру на часть дома. Дом находится в долевой собственности. Наша с женой доля - 1/2. Площадь участка 16 соток, соответственно наша половина. Земля не приватизирована. На участке стоит дом 1964 года постройки, из красного кирпича (см рисунок). Наружные стены дома выложены в 1.5 кирпича, внутренние перегородки в 1 кирпич. В дом заведен газ, вода. Сливная яма осталась у соседа. Он себе провел уже отдельно воду и газ.Фундамент по паспорту бутовый, глубина точно не знаю, но когда сосед заводил себе воду, то глубина фундамента сантиметров 50-60, и какой-то он "рыхлый" что-ли, т.е. то-ли шлак с бутом, не знаю как в те времена строились.... Сам дом нормальный, не ветхий, стены без видимых трещин, потолки 3 метра. Есть правда одна трещинка под окном комнаты№1, она говорят появилась когда окно пластиковое вставляли, снутри стена в этом месте целая. Дополнительно сфотографирую и выложу в выходные.

к моей части дома пристроена кухня тоже по паспорту в 1964 году, она в кирпич, высота потолка 2,4 метра, и похоже на отдельном фундаменте, т.к. между домом и кухней в верхней части есть трещина шириной 3-5 мм.

На моей части земли расположена летняя кухня и погреб.

Теперь о том что-бы я хотел в идеале.... Хочется сделать пристройку к торцу на всю ширину дома и кухни с разборкой старой пристройки (кухни). Т.е. получится Г-образная пристройка. И возвести над всей моей частью дома мансардный этаж. Часть летней кухни тоже снести т.к. она из 2-х частей состоит. Пристройку планирую строить по технологии термодом.

То что дешевле строить новый дом это я уже понял, и даже немного посчитал.... Но все-таки пока вариант пристройки.

Всвязи с этим есть ряд вопросов:

 

1. Что нужно сделать до стройки? Приватизировать землю (документы уже готовятся)? Выделить мою часть в натуре или оставаться в долевом владении?

2. Если выйти из долевой собственности, могу ли я делать пристройку по границе с соседом или должен отступать на 3 метра?

3. Может что-то посоветуете с планировкой? Много уже всего перерисовал но этот вариант пока более предпочтителен.

4. Какой формы нужен фундамент? П-образной или О-образной? То что его нельзя связывать со старым-это я уже понял, но как тогда сделать общий 2-й этаж и крышу?

 

Вопросов еще много, но буду выкладывать все по порядку.....

За ранее спасибо за ответы и понимание....

 

 

Да, чуть не забыл, у меня в семье 4 человека, я, жена и двое детей и в этом доме мы не живем, т.е. на время стройки есть где жить.

 

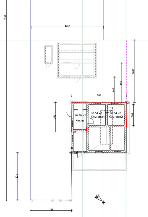
На рисунках план участка с размерами. Зеленой текстурой выделена моя часть. На плане дома красным цветом выделена моя часть дома.

591580152_1.thumb.jpg.e68134882cfb2250982b5fa0aeca279c.jpg

2104060200__3_1.thumb.jpg.cba7a14f561a4b27798137ceb225a521.jpg

418692473__3_2.jpg.25c4f11fd7ff52f1d5b03843a600d8b0.jpg

228516175__1.thumb.jpg.b5a71bc0dda31ea7ff21723be267dcc4.jpg

96374011__2.jpg.2f4be8d724be84da1af6f38d3b934a0a.jpg

1458838142___1.jpg.4acd4d6b20ee8982838e4f0131d4f0cd.jpg

207026903___2.thumb.jpg.5fb21fc78309e0015176d827f6cd278c.jpg

Посилання на коментар
Поділитися на інших сайтах

По конструкционным вопросам вам бы связаться С Пряхой Александром (www.stroimdom.com.ua/forum/showthread.php?t=3684) это его стройка дельные мысли и советы дает.А по вопросам пристраивания к соседям и подъему выше его здания есть тоже пример стройки KORNI его ветка www.stroimdom.com.ua/forum/showthread.php?p=224056#post224056 может чтото и подчерпнете нужное.Удачи во всех начинаниях
Посилання на коментар
Поділитися на інших сайтах

Посоветую, быть осторожным с Г образным фундаментом, он может трещать... Также существенно влияет новый фундамент на старый. Начинаються деформации в старом в месте стыков с новым. В этом вопросе лючше сделать маленький проект у инженера-конструктора. Хотябы фундамент...
Посилання на коментар
Поділитися на інших сайтах

Спасибо за советы, хотелось бы еще мнения от практиков, тех кто строил именно жилые пристройки.

Выкладываю фото стороны дома к которой планирую пристраиваться. На фото видны две трещины, под одним окном и над вторым. Трещины не сквозные, и старые хозяйва говорили что возникли при установке окон. О чем могут говорить данные трещины? О повреждении фундамента или все-таки возможно что при установке окон?

Еще подскажите пожалуйста насколько реально устройство на месте окон проемов и какой максимальной ширины? Скажем проем в 2.5 метра возможно сделать (ширина комнаты 2,95)?

578595053_1.thumb.JPG.fc1d14ad9cefbfd1b081071659ca7b49.JPG

1947087235_2.thumb.JPG.f3145c485c24803b5b82d6d9ab37f62b.JPG

1563297641_1.thumb.JPG.19bbcbbecda138174175ca9b82fca21e.JPG

926893699_1_1.thumb.JPG.ed49f96728ef80967ced011208a7b40d.JPG

995356924_2.thumb.JPG.3086418150eff560fe0e9879521a70b1.JPG

2075781506_2_1.thumb.JPG.3af48f486fc8b0947b43fd37543be26d.JPG

Посилання на коментар
Поділитися на інших сайтах

По вашим фото, однозначно трудно сказать. Но похоже что это грунты

валят фундамент. Есть-ли отмостка? Какой ширины?

Проемы можно сделать любого размера, главное с умом подойти к вопросу.

С фотографируйте стену целиком и что крышу было видно.

Посилання на коментар
Поділитися на інших сайтах

Я считаю, что трещат из-за просадки грунтов. Причина повреждена отмостка, замачивание грунтов (вода идет под отмостку). Другого быть не должно, пристройки обычно всегда трещат, изза некольцевого фундамента, может быть не глубоко заложен, точка промерзания была ниже заложения фундамента...
Посилання на коментар
Поділитися на інших сайтах

  • 2 роки потому...

Два года прошло после первого моего сообщения. Достройку дома так и не начал, занимались облагораживание участка, вспомогательных построек и т.д. Пришло время заняться домом. Желания и возможности немного изменились.

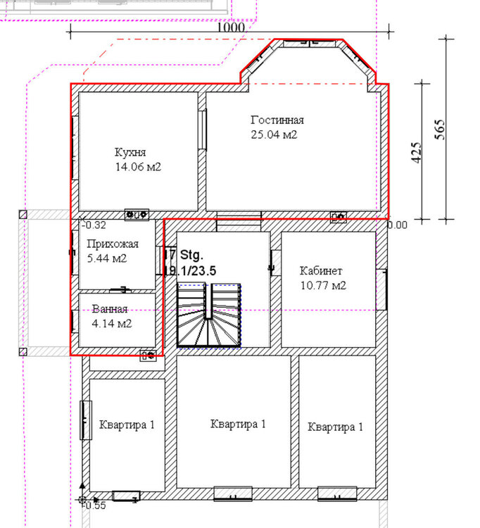
Вот на таком проекте остановился на данный момент. Прошу оценить и дать замечания и советы по поводу такой реализации достройки.

Строить по прежнему собираюсь своими силами из термоблока.

Вопросов много, но пока хотелось бы услышать замечания в общем.....

Планировка второго этажа предварительная, скорее всего там будет 2 спальни и гардеробная, или ванная....

Очень интересуют мнения людей которые уже пристраивались и делали надстройки....

sshot-1_.thumb.jpg.5d53a0983993a5f7bb0003902683bc46.jpg

sshot-6.jpg.ea4e901d4cb8fef97b60decb5123e3b9.jpg

sshot-2.jpg.94333ad906712c49c281c254d7dfc1e6.jpg

sshot-3.jpg.4ff10cc54f1f7ddbe5c062c7aa8f118d.jpg

sshot-11.thumb.jpg.e7e2cf866e77a86ef9c39587c07b5bc5.jpg

sshot-12.jpg.48bc62a0b0fda43bb818c4120fdce29e.jpg

sshot-13.thumb.jpg.5a5ba0712313103f3c8271a8d06cc106.jpg

Посилання на коментар
Поділитися на інших сайтах

Створіть акаунт або увійдіть у нього для коментування

Ви маєте бути користувачем, щоб залишити коментар

Створити акаунт

Зареєструйтеся для отримання акаунта. Це просто!

Зареєструвати акаунт

Увійти

Вже зареєстровані? Увійдіть тут.

Увійти зараз
×
×
  • Створити...