R-Aleksandr Опубліковано: 8 лютого 2010 Поділитись Опубліковано: 8 лютого 2010 Уважаемые господа. Я выкладываю сюда проекты с завидным упорством не потому, что я люблю, когда бьют по морде, не потому, что я люблю критику, а потому, что я хочу в шквале ваших эмоций, которые мне не нужны, уловить разумные замечания. Мне не нужно ваше "нравится", "не нравится", мне нужны ваши советы. Заранее признателен за науку.Стелс4 в объеме.part1.rarСтелс4 в объеме.part2.rar Посилання на коментар Поділитися на інших сайтах More sharing options...
as1976as Опубліковано: 8 лютого 2010 Поділитись Опубліковано: 8 лютого 2010 мне понравилось что вы с таким рвением и упорством не останавливаясь прорабатываете все новые и новые варианты. по последним эскизам (только учтите сразу мнение не профи, а человека который сейчас в стадии проектирования со специалистом. Визуально --сложно но это не значит что не красиво у каждого человека свое видение своего дома.Меня немного смутили балконы по своей функциональности как говорят спецы они используются и работают -либо на больших участках,либо при красивых видах открывающихся с них.Отсутствие тамбура на первом этаже мое имхо это минус.Может использовать зону крыльца под тамбур -то-есть провести остекление-его. Санузел 1-го этажа вы можете внести в зону топочной по стирочной-освободив на этот объем зону кухни столовой.По второму этажу вопросы только балконы.Все остальное вроде органично смотрится.Вы упорный человек у Вас все получиться 1 Посилання на коментар Поділитися на інших сайтах More sharing options...
vorona Опубліковано: 8 лютого 2010 Поділитись Опубліковано: 8 лютого 2010 Как вам этот проект? Очень похож по форме. Не он ли вас вдохновил? Посилання на коментар Поділитися на інших сайтах More sharing options...
R-Aleksandr Опубліковано: 8 лютого 2010 Автор Поділитись Опубліковано: 8 лютого 2010 Как вам этот проект? Очень похож по форме. Не он ли вас вдохновил? И он тоже, но больше вот этот: www.buddom.com.ua/?m=177&o=792 Посмотрите где вход в указанном вами проете - он совсем меня не устраивал Посилання на коментар Поділитися на інших сайтах More sharing options...
vorona Опубліковано: 8 лютого 2010 Поділитись Опубліковано: 8 лютого 2010 По-моему у вас будут большие трудности с расстановкой мебели в студии. Попробуйте нарисовать всю мебель, включая технику. Санузел лучше отгородить в котельной, зачем она такая большая? Он не кстати как-то отнимает такой кусок в кухне - гостиной. А в общем уже намного лучше. Посилання на коментар Поділитися на інших сайтах More sharing options...
R-Aleksandr Опубліковано: 8 лютого 2010 Автор Поділитись Опубліковано: 8 лютого 2010 По-моему у вас будут большие трудности с расстановкой мебели в студии. На картинках не рисовал еще, займусь, но имея опыт расстановки мебели в своей квартире, думаю, проблем не будет. Санузел лучше отгородить в котельной, зачем она такая большая? Он не кстати как-то отнимает такой кусок в кухне - гостиной. Санузел там сделан преднамерянно, он отделяет зону кухни. Посилання на коментар Поділитися на інших сайтах More sharing options...
vorona Опубліковано: 8 лютого 2010 Поділитись Опубліковано: 8 лютого 2010 Вы бы все размеры отметили и высоту 1-го этажа. Дверной проем в топочною и санузел над ней слишком узкий. По перекрытиям хорошо бы специалиста мнение услышать. Лестничный проем - просчитайте лучше. Не сможет там человек взрослый пройти не согнувшись. Посилання на коментар Поділитися на інших сайтах More sharing options...
R-Aleksandr Опубліковано: 8 лютого 2010 Автор Поділитись Опубліковано: 8 лютого 2010 Вы бы все размеры отметили и высоту 1-го этажа. Лестничный проем уже не пляшет, головой биться будете. Дверной проем в топочною и санузел над ней слишком узкий. По перекрытиям хорошо бы специалиста мнение услышать. Высота 3 метра, а вы наблюдательный, там над лестницей действительно ошибка, стену убрал. Плиты все разложены на ура, двери в топочную и санузел по 0.8 метра, думаю, достаточно Посилання на коментар Поділитися на інших сайтах More sharing options...
vorona Опубліковано: 8 лютого 2010 Поділитись Опубліковано: 8 лютого 2010 Зону кухни можно и стеночкой отгородить, а не санузлом :D Посилання на коментар Поділитися на інших сайтах More sharing options...
R-Aleksandr Опубліковано: 8 лютого 2010 Автор Поділитись Опубліковано: 8 лютого 2010 Ну мне пока так больше нравится, иначе, внутри топочной постирочной нужно еще дверь в санузел ставить... это не гуд Посилання на коментар Поділитися на інших сайтах More sharing options...
zalstas Опубліковано: 8 лютого 2010 Поділитись Опубліковано: 8 лютого 2010 Все лучше и лучше, но соглашусь с вороной , сан узел надо куда-то пристроить в другое место и топочная большая на топочною надо 7.5 м3 минимум на проекте где-то 46 м3 и лестница несильно нравится можно попробовать лестницу разместить где гостевая там получится и санузел вентканал разместить в наружной стене минус лишняя труба . Посилання на коментар Поділитися на інших сайтах More sharing options...
vorona Опубліковано: 8 лютого 2010 Поділитись Опубліковано: 8 лютого 2010 А почему дверь не поставить из санузла в топочную? То-есть сначала заходим в санузел, потом из него в топочную. Так часто делают. Посилання на коментар Поділитися на інших сайтах More sharing options...
R-Aleksandr Опубліковано: 8 лютого 2010 Автор Поділитись Опубліковано: 8 лютого 2010 Все лучше и лучше, но соглашусь с вороной , сан узел надо куда-то пристроить в другое место и топочная большая на топочною надо 7.5 м3 минимум на проекте где-то 46 м3 и лестница несильно нравится можно попробовать лестницу разместить где гостевая там получится и санузел вентканал разместить в наружной стене минус лишняя труба . А планчик сможете подкорректировать? не могу понять пока. Отправляю .acp Посилання на коментар Поділитися на інших сайтах More sharing options...
R-Aleksandr Опубліковано: 8 лютого 2010 Автор Поділитись Опубліковано: 8 лютого 2010 То-есть сначала заходим в санузел, потом из него в топочную. Так часто делают. Не встречал ;(( Посилання на коментар Поділитися на інших сайтах More sharing options...
R-Aleksandr Опубліковано: 8 лютого 2010 Автор Поділитись Опубліковано: 8 лютого 2010 где гостевая там получится и санузел вентканал разместить в наружной стене минус лишняя труба . Это ж лишний стояк, а так у меня все в кучке...) Посилання на коментар Поділитися на інших сайтах More sharing options...
Alex777-kh Опубліковано: 8 лютого 2010 Поділитись Опубліковано: 8 лютого 2010 Уважаемые господа. Я выкладываю сюда проекты с завидным упорством не потому, что я люблю, когда бьют по морде, не потому, что я люблю критику, а потому, что я хочу в шквале ваших эмоций, которые мне не нужны, уловить разумные замечания. Мне не нужно ваше "нравится", "не нравится", мне нужны ваши советы. Заранее признателен за науку. Этот вариант интересней. Посмотрите на том врианте, что Вам нравится, на окна. И в своем тоже проработайте окна. Посилання на коментар Поділитися на інших сайтах More sharing options...
Stroim DOM Опубліковано: 8 лютого 2010 Поділитись Опубліковано: 8 лютого 2010 Как-то в середине дома гальюн, не культурно Если хотите отгородить кухню от гостиной, сделайте барную стойку очень удобно и функционально. Посилання на коментар Поділитися на інших сайтах More sharing options...
R-Aleksandr Опубліковано: 8 лютого 2010 Автор Поділитись Опубліковано: 8 лютого 2010 Как-то в середине дома гальюн, не культурно Если хотите отгородить кухню от гостиной, сделайте барную стойку очень удобно и функционально. Под влиянием многочисленных советов, касающихся "туалета типа гальюн" слегка переделал план первого этажа. Критикуйте. Посилання на коментар Поділитися на інших сайтах More sharing options...
R-Aleksandr Опубліковано: 8 лютого 2010 Автор Поділитись Опубліковано: 8 лютого 2010 Посмотрите на том врианте, что Вам нравится, на окна. И в своем тоже проработайте окна. Если можно, поподробнее. Что конкретно изменить? Посилання на коментар Поділитися на інших сайтах More sharing options...
vorona Опубліковано: 9 лютого 2010 Поділитись Опубліковано: 9 лютого 2010 А лестница все равно не пляшет. Стандартная высота ступени - 16-18 см. Считаем высоту подъема: 16шт.*0,18м=2,88м. А вы говорите 3 м высота этажа, а если еще и толщину перекрытия добавить - будет никак не 2,88м Посилання на коментар Поділитися на інших сайтах More sharing options...
R-Aleksandr Опубліковано: 9 лютого 2010 Автор Поділитись Опубліковано: 9 лютого 2010 По вопросу лестницы Посилання на коментар Поділитися на інших сайтах More sharing options...
Stroim DOM Опубліковано: 9 лютого 2010 Поділитись Опубліковано: 9 лютого 2010 Под влиянием многочисленных советов, касающихся "туалета типа гальюн" слегка переделал план первого этажа. Критикуйте. Совсем другое дело! Посилання на коментар Поділитися на інших сайтах More sharing options...
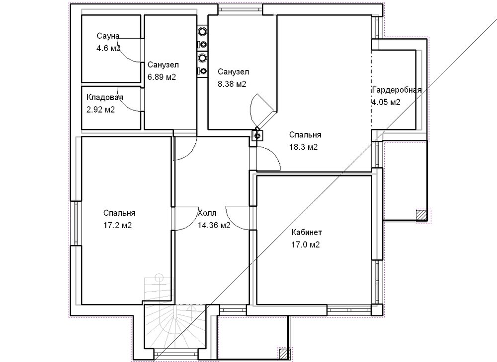
FFFuntik Опубліковано: 9 лютого 2010 Поділитись Опубліковано: 9 лютого 2010 А) 1 этаж - сан узел совмещен. Думаю не идеальное решение в своем доме на первом этаже совмещать ванную, постирочную, туалет. (из разряда "бельевая веревка над дизайнерской ванной). Возможно там не предусматривается душевая, но тогда гость из "гостевой комнаты" будет просится помыться в хозяйскую ванную второго этажа. По-моему не идеально. Б) Ванная второго этажа. Вход только из хозяйской спальной, общий туалет, ванная (снова совмещены) и не имеют окна. Попробуйте разместить в оставшемся пространстве эти сантехнические радости. Если чистить зубы возле унитаза не проблема – вопрос снят. Не лучше ли отказаться от кладовой и установить душ или туалет. В данном проекте общего сан узла второго этажа ванну разместить тяжело, если от нее отказаться и установить просто душ, то маленькие дети не поймут почему нельзя дома поплескаться с пеной и уточками. В) Перекрытие балкончиков – если будет одна плита – проблема с холодом и влагой (если круто не гидроизолировать), которые будет тянуть из уличной части перекрытия. Если выполнить 2 плитами – есть ли размеры таких элементов – подумайте над этим вопросом. Г) Такой проект ориентирован на видовую часть участка, но дверь из кухни-столовой выходит у Вас в «закрома», под трассу №2 - нет выхода, хотя навес над ним уже образован балконом кабинета. Решение оправдано только эстетически, не несет практической нагрузки. Д) Попасть в туалет 1 этажа из кухни - возможно только преодолев 25 метров через гостиную. Сообщите эту новость жене – думаю не обрадуется. Е) Решение совмещения кухни – столовой и гостиной применяется в случае ограниченного пространства гостиной и для минимизации коридоров. Поскольку в данном проекте проблем с этим нет – думаю минусы от шума чайников, бленкеров, магнитолы на кухне, запахов готовящейся еды перекроют плюсы от объединения пространства. ИМХО Да и коридор данным мы не уменьшаем, оставляя его в 16 метров при 10 метровой спальне 1 этажа. Рекомендую предварительно побывать в доме с объединенными помещениями в момент приготовления еды на кухне и просмотра телевизора в гостиной. По-моему есть над чем подумать еще в проекте. 1 Посилання на коментар Поділитися на інших сайтах More sharing options...
zalstas Опубліковано: 9 лютого 2010 Поділитись Опубліковано: 9 лютого 2010 Все лучше и лучше, но соглашусь с вороной , сан узел надо куда-то пристроить в другое место и топочная большая на топочною надо 7.5 м3 минимум на проекте где-то 46 м3 и лестница несильно нравится можно попробовать лестницу разместить где гостевая там получится и санузел вентканал разместить в наружной стене минус лишняя труба . Труба получаеться в тему, симетрично скатам. План варианта Посилання на коментар Поділитися на інших сайтах More sharing options...
R-Aleksandr Опубліковано: 9 лютого 2010 Автор Поділитись Опубліковано: 9 лютого 2010 План варианта [ATTACH]40746[/ATTACH] Думаю, но пока не нравится наличие второго стояка. Я все распланировал без него. Посилання на коментар Поділитися на інших сайтах More sharing options...
Рекомендовані повідомлення
Створіть акаунт або увійдіть у нього для коментування
Ви маєте бути користувачем, щоб залишити коментар
Створити акаунт
Зареєструйтеся для отримання акаунта. Це просто!
Зареєструвати акаунтУвійти
Вже зареєстровані? Увійдіть тут.
Увійти зараз