Перейти до публікації
Пошук в
  • Додатково...
Шукати результати, які містять...
Шукати результати в...

Моя "крепость" из поротерма по проекту "Натали"

Alexland

Рекомендовані повідомлення

Всем форумчанам, привет! Являюсь активным читателем форума около полугода. Начал строиться нестандартно. Во время пика продаж земли (2006 - 2007 годы) мои 30 соток размером 30 на 100 метров торцом к дороге очень трудно продавались. Разделить его вдоль не получалось.... по-этому на семейном совете мы посоветовались.... и я решил:lol:, быть строительству. За ранее оказанную услугу в области права (бездвоздмезднуююю:D) человек похлопотал за нас в проектном институте, в результате чего нами был приобретен за символическую плату вот такой вот проект www.buddom.com.ua/?m=177&o=731. Да типовой, да, возможно - простенький, валом аналогичных домов в Борничах и Гнедыне, но для семьи из тогда четырех человек вполне приемлемый. (повторяю - цена - символическая:Yahoo!:).

Жена даже не представляла, КАК ЭТО БУДЕТ ПРИСХОДИТЬ?????:unknown:, да и я тоже, (знал бы может и не начинал). Но что ни делается - к лучшему. Первый год моя дражайшая половина практически не интересовалась процессом (Бог благословил нас третим ребенком).

Вот исходный, так сказать, девственный вид участка:

14052006(002).thumb.jpg.6fd066b77cb2f856286858241a7c6cfe.jpg

14052006(005).thumb.jpg.f5ecbe5fa5e4bb942abd7387881c694a.jpg

14052006(007).thumb.jpg.efaf0355161c3350172f40445124b180.jpg

  • Лайк 1
Посилання на коментар
Поділитися на інших сайтах

Вот так мои старшие "архитекторы Мундисабели" производили привязку проекта к местности:

 

Работы начались в мае 2007 года и предусматривали откопку котлована, отливку монолитной пятки (грунты - плотный песок, ранее являвшийся старым руслом Днепра (ну оччччень старым руслом:D ). Уровень стояния грунтовых вод - 1,5 - 1,7 метра.

Первая бригада была найдена через знакомых. Работали люди качественно, быстро, но на ранних этапах начались разговоры о повышении расценок на работы (до этого они несколько сезонов работали в Подмосковье и очень себя ценили за это). Первым делом, из моего маатериала они сделали себе (в последствии, конечно же мне) за полтора дня такую-вот бытовочку и принялись за вынос осей и выравнивание котлована (за 1100 грн и 5 часов он ранее был выкопан Беларусиком).

IMG_0668.JPG.cee38a89f96469b233c8bf3d7fbcf733.JPG

IMG_0733.JPG.e82343042bbb2fc045f8f4e98afb3df5.JPG

IMG_0738.JPG.d236043affee580d4df6edcf7f29406f.JPG

Посилання на коментар
Поділитися на інших сайтах

После застывания бетона (конструкционный, используемый для строительства верхних этажей монолитных домов, якобы (точно не помню, блокнот с записями и платежками вместе с сумкой сперли из машины прямо под домом) марки 400-й). Была жара, строители поливали его водичкой для крепости (не этой:beer:, :D). Съездили домой, а недельки через три произвели двойную наплавляемую гидроизоляцию гидроизолом, после чего начали монтировать опалубку на первый пояс монолитных стен цоколя.

IMG_0779.thumb.JPG.ad2160f2a8ee970b03810514d8b068ac.JPG

IMG_0780.thumb.JPG.658a57e6c862b59b8852cff008a16feb.JPG

IMG_0781.thumb.JPG.3925067817d05cef77f0bf787eb7784b.JPG

IMG_0783.thumb.JPG.8351fbb97ac739e9301ce70e8bbf17be.JPG

Посилання на коментар
Поділитися на інших сайтах

Сразу оговорюсь. Аппетит приходит во время еды. К исходным проектным параметрам дома я добавил в ширину 1,2 метра в жилой части, и 1,2 метра в гараже (подумаешь, на несколько стропильных пролетов больше8)), отказался от тамбурной двери из гаража в дом (имхо: не сторонник легких решений:D).

При расчетах в пользу фундаментных блоков или армированного бетона остановился на последнем в силу следующих причин:

2007 год - бум строительства;

предварительно никаких стройматериалов не закупал;

заезд к участку индивидуальный, а блоков при моем размере (высота цоколя - 2,65м, периметр жилой части 36 метров * на 4-5 рядов, плюс гараж минимум 3 ряда по 15 метров) необходимо много. Завозить длинномером в несколько ходок (3-4 миниму) и кран, или самосвалом (максимум 10 шт в борт), плюс кран должен быть на месте (тоже учитывлся вопрос цены за подъем либо по времени);

блочный фундамент все равно звканчивается армопоясом, да и крепость не та;

самое главное - цена на блоки 40-ку нереальная и их нигде нет (мож конечно заказать, но будут тепленькие, свеженькие, при сбросе с самосвала - хрупенькие:D), а покупать в разброс по объявлениям - в доставке нереально дорого (погрузка-доставка-выгрузка).

 

Итог - беру бетон, тем более с учетом его стоимости (в сумме на фундамент, цоколь и веранду ушло около 96 кубов), большая его часть мне обошлась с доставкой в среднем по 400 - 450грн. куб марки 400 (могу ошбаться на туда-сюда на 30-50 грн. на кубе).

Получилось вот такое строение, которое поначалу сосед называл бассейном, а потом спаренным пулеметным расчетом:D. Панели я брал заранее на Дарницком ЗЖБК, ложил со щелями 10-12 см под армирование железобетоном (вязался армокаркас по периметру и между панелями и в один заход заливался бетоном)

IMG_0956.thumb.JPG.d73d0981c5379b799dc7f97a4568b1d6.JPG

IMG_0958.thumb.JPG.1bde5f719f5c58d7b9d2b1f1c9250259.JPG

IMG_0969.thumb.JPG.d1fbc72688881d02807c929b1f2cbbda.JPG

IMG_1028.thumb.JPG.9778963aa4bdf5c1e8d3395f75500eab.JPG

IMG_1030.thumb.JPG.8a385032919557426bb158ec24d97a22.JPG

IMG_1031.thumb.JPG.671b5ee99dd78282e34ec5eaeb8dd310.JPG

IMG_1051.thumb.JPG.428e8899c611d476284e6cbcbc781250.JPG

IMG_1058.thumb.JPG.3a3f7a67e0d37011ce6fa0388942228d.JPG

Посилання на коментар
Поділитися на інших сайтах

Можно было-бы остановиться (план в принципе был выполнен), но появилось немного денюжков :D, решил отстроить первый этаж, перегородки в цоколе кинуть... Вот и поэтажечка нашлась

IMG_0033.thumb.JPG.f87eb3bb91e08c60dc157216f3ef0522.JPG

IMG_0038.thumb.JPG.135dad5c79f42c3d70b6bba8ded235b4.JPG

IMG_0039.thumb.JPG.3828b43cb2b45a2b9c6b4beb98d1838f.JPG

IMG_0040.thumb.JPG.2040fd7dfa334acda4325d813faa9544.JPG

IMG_1762.thumb.jpg.c1c8ccd5c2c69b2189a01b7c51e6bc1e.jpg

506678822_315.thumb.jpg.f16abce448e549ace819202627acb208.jpg

2141527837_323.thumb.jpg.9e87e0a41a2c492778a8a699dc61d6d5.jpg

Посилання на коментар
Поділитися на інших сайтах

Принимаю любую аргументированную критику ибо знаю%), что к сожалению критиковать есть что.

Фото обязуюсь потихоньку выкладывать.

Посилання на коментар
Поділитися на інших сайтах

По-моему, мы с Вами соседи по участку :) Только если не ошибаюсь, то домик уже почти построен... Или я что-то путаю?....
Посилання на коментар
Поділитися на інших сайтах

По-моему, мы с Вами соседи по участку :) Только если не ошибаюсь, то домик уже почти построен... Или я что-то путаю?....

 

Эт я фото только сейчас начал выкладывать, а строю с 2007 года. Уже есть и крыша над головой:D, и окна, и веранда пристроенная, и озерцо свежевыкопанное:lol:.

А соседи мы с какой стороны? Через дорогу, или через участок?:friends:

Посилання на коментар
Поділитися на інших сайтах

Принимаю любую аргументированную критику ибо знаю%), что к сожалению критиковать есть что.

Фото обязуюсь потихоньку выкладывать.

 

канализация цоколя не продумана, или не видна. сойдет за критику?

Посилання на коментар
Поділитися на інших сайтах

Да, точно соседи! Вот если стоять лицом к входу Вашего дома, то наш участок будет слева. Правда, давно там не была и озерца не видела :rolleyes: Ничего, весной посмотрю ;)
Посилання на коментар
Поділитися на інших сайтах

Принимаю любую аргументированную критику ибо знаю%), что к сожалению критиковать есть что.

Фото обязуюсь потихоньку выкладывать.

Что можете сказать хорошего/плохого о поротерме как о стеновом материале? Планирую строиться весной: сначала думал стены из газобетона выгнать, но потом как-то утомили меня эти армирования каждого четвертого ряда, хрупкость, да и усадку он дает. Теперь хочу строить из кератерма, это украинский аналог поротерма.

Посилання на коментар
Поділитися на інших сайтах

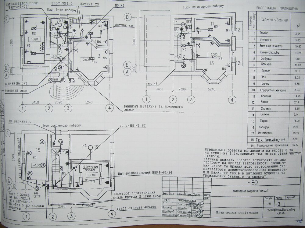
канализация цоколя не продумана, или не видна. сойдет за критику?

 

В приложенной схеме выделены уже имеющиеся места выхода канализации:

в верхней правой части - проэктный

в нижней части - хозяйский:D

Еще не определился с типом септика, а это влияет и на его месторасположение.

Документ Microsoft Word.doc

Посилання на коментар
Поділитися на інших сайтах

Да, точно соседи! Вот если стоять лицом к входу Вашего дома, то наш участок будет слева. Правда, давно там не была и озерца не видела :rolleyes: Ничего, весной посмотрю ;)

 

Ваш участок вдоль дороги, или большой квадратный слева от дома и граничащий с моим? А впрочем, весной увидимся (я ж у себя прошлой весной такой землерой устроил - сад разбивал, так шо буду контролировать процесс роста:D).

Посилання на коментар
Поділитися на інших сайтах

Здраствуйте.А есть еще фотографии, сам хочу строиться по этому проэкту, поэтому очень интересно.

 

Продолжаю....

IMG_1707.thumb.JPG.dfbe6f0e1c4e7cce5ec8bcd3be92fedc.JPG

IMG_1708.thumb.JPG.34c67e2f10408ba12e1528e9a41391d6.JPG

IMG_1709.thumb.JPG.544ff0701b82d691bd390abe9cd97497.JPG

IMG_1710.thumb.JPG.1da60de28649bc7eb1f0fda6b6ea9de4.JPG

IMG_1713.thumb.JPG.d2152e9b85b9d103794e3c02121d16f6.JPG

IMG_1701.thumb.JPG.75ce0b739accdb4219d619207cc5cf89.JPG

IMG_1703.thumb.JPG.5f5a8f33980ff2349edfe0e79b88f344.JPG

IMG_1704.thumb.JPG.a3e43ca2a19658798d4cca98461c2ea3.JPG

  • Лайк 1
Посилання на коментар
Поділитися на інших сайтах

Увеличив ширину жилой части дома с целью увеличения площади кухни, санузла и каминной (гостевой) комнаты, я столкнулся :fool:(уххх, знаю форумчан, абсолютно правильно строго придерживающихся проекта) с следующей проблемой. Прямые углы санузла и комнаты (посмотрите на фото и представите себе:D) оставили мне для прохода всего около 30-40 см ширины. И тутка я вспомнил о фен-шуй:lol::lol::lol:. Проекция стен рисовалась по полу..... (повторяю, безвыходка:fool::fool::lol:), но в итоге сами строители просто муркали от результатов своего ваяния. В одном из полукружий предусмотрено место под камин.

 

На последней фотке внизу кладки оставлено место в кирпич для подвода воздуха из улицы к камину

IMG_1534.thumb.JPG.ad1148896c5090bde425d1b0b6a40e96.JPG

IMG_1535.thumb.JPG.2efeb2f17a10f32d2d144065aa0e4657.JPG

IMG_1538.thumb.JPG.b68c960d48bb1fab8608346dd0d924d1.JPG

IMG_1542.thumb.JPG.47ae663b25c2e95c4bf38244ca4b31d5.JPG

IMG_1560.thumb.JPG.588ddd3c61fd48be714b0d17f8f0031e.JPG

  • Лайк 5
Посилання на коментар
Поділитися на інших сайтах

Что можете сказать хорошего/плохого о поротерме как о стеновом материале?

Теперь хочу строить из кератерма, это украинский аналог поротерма.

 

На момент проплаты поротерма его цена была выше цены на кирпич где-то на 50-60% (без работы). В 2008 году мой сосед (замечательный человек, который все замечает:D) подсчитал, что цена куба поротерма в сравнении с ценою куба пакетированого аэрока (в Эпицентре) выше всего на 20-30 грн.

Дом у меня уже под крышей (утепленной), с окнами и фсеее, т.е. отопления пока нет. Утепление и облицовка кирпичем планируются возможно :unknown:в этом году. Так вот, тактильно (на уровне "холодно, не холодно" в доме на 3-5 градусов теплее). А в прошлом году зимой из-за тепла внутри дома на внутренней поверхности окон был иней.

Сам живу в новой утепленной панельке (бетонная стена до 20 см толщиной, 10 см мин ваты Роквул, навесной фасад Сканрок). Батареи включены в лучшем случае на половину, а вообще, на ощупь - холодные, в квартире ходим в футболках. Так это бетон!!!!!! Я планирую утепление Белтепом 10 см (минвата Сябров на немецкой линии) плюс клинкер в полкирпича. Т.е. весь дом по периметру планируется изолировать от всех мостиков холода(окна не в счет:D) Думаю, шубу одевать не придеццца:D.

В отделке материал не привередлив (болгарка с алмазным кругом, спец. пила, доборные элементы(я не покупал по вышеизложенной причине). По поротерму кстати есть отдельная ветка где-то среди материалов.

Посилання на коментар
Поділитися на інших сайтах

А если придерживаться четко проекта, то из чего надо строить

 

Проэкт расчитан на кирпич, цоколь из ФБС, крыша - металлочерепица, но по такой цене, какую я указывал в ссылке выше, я думаю вам сделают проект под интересующий вас материал.

 

Мой материал вы видите, крыша - коричневый меланж полимер-песчаная черепица.

Посилання на коментар
Поділитися на інших сайтах

А если придерживаться четко проекта, то из чего надо строить

 

Проэкт расчитан на кирпич, цоколь из ФБС, крыша - металлочерепица, но по такой цене, какую я указывал в ссылке выше, я думаю вам сделают проект под интересующий вас материал.

 

Мой материал вы видите, крыша - коричневый меланж полимер-песчаная черепица.

2117132387_1.thumb.jpg.5ffa7b4191aeaa89314129497a785c9f.jpg

1499981675_2.thumb.jpg.1cb50820e6dc55a0ee89d46a055401bb.jpg

1639335986_3.thumb.jpg.958f02ef1061ba5696c7cb909ec3634f.jpg

Посилання на коментар
Поділитися на інших сайтах

Правда, давно там не была и озерца не видела :rolleyes: Ничего, весной посмотрю ;)

 

Да мне не жалко и сейчас показать:D:D:D

1.thumb.jpg.c7dd0c842d5e5735d07227f3f777f2d7.jpg

2.thumb.jpg.9bc1e201785578cd4693640d0729121e.jpg

3.thumb.jpg.3e00c95b41edaaca0572e79d1cd50b5a.jpg

4.thumb.jpg.f2961152c9fd85205a54721f7d35540c.jpg

Посилання на коментар
Поділитися на інших сайтах

Спасибо. Можно фотографии фасадов. Балконы уже сделали

 

Здесь я у соседки;);):D прокоментировал свое ИМХО: относительно балконов :

Доплнительно: как вы считаете, у вас будет желание посетить балкон, выходящий на улицу? Смысл пятиминутного "блаженства" лишние пару тысяч $. Про балкон "в сад" вообще не говорю.

 

По-соседски. У меня в проекте были предусмотрены 2 балкона на втором этаже фронтонной стены. Отказался по следующим причинам:

шикарный мостик холода, требующий соответствующего утепления, качественной гидроизоляции;

непрактичный зимой по причине снега, воды и ты.ды. (имхо;

В Вашем проэкте возможно его остекление, отопление (типа зимний сад). По деньгам не намного дороже, но функционально это уже не балкон а зона релаксации

Единственное но - в такую зону необходим свободный доступ из коридора, а не через комнату (я так думаю)

__________________

Лучше быть, чем казаться!

 

вот в этой веточке www.stroimdom.com.ua/forum/showthread.php?t=23554

 

Свои балконы суммарной площадью где-то 4-5 м. кв. я заменил верандой под 40 м.кв. (чуть :lol::lol::lol::lol:дороже, но практично и функционально)

530210439_.thumb.jpg.6cee0873e0e6afef1712d70c5039fcf7.jpg

264914941_.JPG.9ac9107e44bfb6541ff415960fead02b.JPG

1507261245_1.thumb.jpg.020366d8196c2e37fc1a687c16ca6dfe.jpg

667779620_2.thumb.jpg.be6322c0122f5bc0365db16d62a3d66b.jpg

  • Лайк 1
Посилання на коментар
Поділитися на інших сайтах

Створіть акаунт або увійдіть у нього для коментування

Ви маєте бути користувачем, щоб залишити коментар

Створити акаунт

Зареєструйтеся для отримання акаунта. Це просто!

Зареєструвати акаунт

Увійти

Вже зареєстровані? Увійдіть тут.

Увійти зараз
×
×
  • Створити...