Tugarin Опубліковано: 16 березня 2010 Поділитись Опубліковано: 16 березня 2010 Здравствуйте. Понравилось практически все, единственное что сделал бы окно в санузле второго этажа, вот тогда картина маслом. Что понравилось при первом взгляде, так это конструктивная простота дома, но при этом и приятная архитектура, из непонятого мною какая именно будет лестница с учетом выхода в гараж. Еще б желательно заранее предусмотреть перед входом в гараж из дома место для шкафа с верхней одеждой и обуви, чтоб не переть в обуви и одетым (зимой и в плохую погоду) либо через дом в прихожую или через улицу, в последнем случае надобность в двери сомнительна (разве что твердотопливник будет в гараже резервный). Желаю Вам принять без мучений окончательный вариант, который будет радывать Вас долгие годы и желаю видеть Вашу ветку в разделе "как мы строимся" . 1 Посилання на коментар Поділитися на інших сайтах More sharing options...
as1976as Опубліковано: 16 березня 2010 Автор Поділитись Опубліковано: 16 березня 2010 Здравствуйте. Понравилось практически все, единственное что сделал бы окно в санузле второго этажа, вот тогда картина маслом. Что понравилось при первом взгляде, так это конструктивная простота дома, но при этом и приятная архитектура, из непонятого мною какая именно будет лестница с учетом выхода в гараж. Еще б желательно заранее предусмотреть перед входом в гараж из дома место для шкафа с верхней одеждой и обуви, чтоб не переть в обуви и одетым (зимой и в плохую погоду) либо через дом в прихожую или через улицу, в последнем случае надобность в двери сомнительна (разве что твердотопливник будет в гараже резервный). Желаю Вам принять без мучений окончательный вариант, который будет радывать Вас долгие годы и желаю видеть Вашу ветку в разделе "как мы строимся" . Ну наконец-то дождался прародителя идеи.Спасибо ему за внимание и понимание. Отвечу по порядку санузел 2-этаж там мало места всего1.8м ширина, и на фасаде 3-е окно в одном ряду не сильно бы смотрелось как на мой взгляд.Площадка лестницы находится над дверью из гаража,позже выложу картинку.Шкаф для одежды и обуви возможен как раз под лестницей ,как идти из холла в гараж с левой стороны,за эту идею спасибо не продумал сразу этот вариант. Спасибо за пожелания и предложения по улучшению проекта.Будем постараться. Посилання на коментар Поділитися на інших сайтах More sharing options...
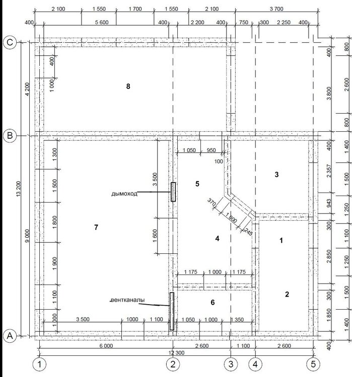
as1976as Опубліковано: 21 березня 2010 Автор Поділитись Опубліковано: 21 березня 2010 Уважаемые форумчане .Посоветуйте как быть.Смущает вопрос вентилирования дома.Склоняюсь к естественному и принудительному в виде вытяжки и вентиляторов в санузлах.На первом этаже в ванной комнате будут проходить вентканалы в стене с выходом на кровле. 1.Санузел1-го,2-го этажа и ванная 2-го этажа ставим на вентканал вентиляторы. 2.Кухня-1-канал вентиляции+ 1-канал вытяжка. 3.Двери в ванные и санузлы выполняем либо с подрезом не доходящие до пола,либо с вентиляционными решетками. 4.В гостиной будет камин с закрытой топкой,двери в гостиную из холла отсутствуют. Смущает вентиляция комнат, а в частности :кабинет 1-й этаж,все 3-спальни 2-го этажа. Вопросы: Хватит ли описанной выше системы для полноценного проветривания дома? Достаточно ли будет устраивать проветривание в доме в течении 10-15 мин,каждый день по 2 раза утром и вечером при помощи оконного проветривания ? Может быть есть решения позволяющие достичь при помощи естественной вентиляции комфортных условий для проживания,не прилагая особых затрат в виде рекуператоров? Заранее всем огромное спасибо за участие и возможно развенчивание опасений. Посилання на коментар Поділитися на інших сайтах More sharing options...
milta2003 Опубліковано: 22 березня 2010 Поділитись Опубліковано: 22 березня 2010 ...Смущает вопрос вентилирования дома...QUOTE] Я правильно понял - вход в дом из гаража без тамбура? И сразу лестница на второй этаж? Если лестница будет открытая весь запах железного коня, будет подниматься в детские комнаты.... Уточните, пожалуйста, где конкретно будет размещён стояк каминного дымохода 1 Посилання на коментар Поділитися на інших сайтах More sharing options...
as1976as Опубліковано: 22 березня 2010 Автор Поділитись Опубліковано: 22 березня 2010 Я правильно понял - вход в дом из гаража без тамбура? И сразу лестница на второй этаж? Если лестница будет открытая весь запах железного коня, будет подниматься в детские комнаты.... Уточните, пожалуйста, где конкретно будет размещён стояк каминного дымохода Примерно так будут размещены вент.каналы и дымоход. Из гаража будет две двери первая металл,вторая деревянная.Между ними воздушный зазор примерно 40см.По размеру стены. Посилання на коментар Поділитися на інших сайтах More sharing options...
вторик Опубліковано: 26 березня 2010 Поділитись Опубліковано: 26 березня 2010 по вентиляции вы правильно заморачиваетесь. современные стройматериалы позволяют сделать герметичный дом на подобии подводной лодки. что не хорошо в плане комфорта и даже безопасности для здоровья. воздухообмен в помещении необходим. для вентиляции неплоха (ссылка устарела) хотя с ней много мороки и сложно реализуется. существуют еще приточно вытяжные устройства с рекуперацией или без, и с приходом китайского производителя, они стали доступнее. но шумные и требуют места как для агрегатов так и для воздуховодов. (ссылка устарела) соят под 500 евров. я же всетаки рекомендую устанавливать окна (металопласт) (ссылка устарела), что вместе с естественной вентиляцией через прощитаную вентиляцию санузлов дает приемлемый результат. (ссылка устарела) 1 Посилання на коментар Поділитися на інших сайтах More sharing options...
OLEG-UA Опубліковано: 20 квітня 2010 Поділитись Опубліковано: 20 квітня 2010 Я бы гараж "поровнял" бы по лицевой стороне. Т.к. с 1/3 крыши снег будет падать прямо перед выездом из гаража. Посилання на коментар Поділитися на інших сайтах More sharing options...
ДОКС Опубліковано: 20 квітня 2010 Поділитись Опубліковано: 20 квітня 2010 Я бы гараж "поровнял" бы по лицевой стороне. Т.к. с 1/3 крыши снег будет падать прямо перед выездом из гаража. Задача стояла выровнять "заднюю" часть дома с гаражом, для того что бы сделать перепад двора... Со снегом, - думаю Алексей справится, тем более у него сегодня дочь родилась!!! Мои поздравления!!! 1 Посилання на коментар Поділитися на інших сайтах More sharing options...
as1976as Опубліковано: 21 квітня 2010 Автор Поділитись Опубліковано: 21 квітня 2010 спасибо за поздравления Посилання на коментар Поділитися на інших сайтах More sharing options...
ДенисДнепр Опубліковано: 15 липня 2010 Поділитись Опубліковано: 15 липня 2010 Могу предложить гипсовую штукатурку. Насчет внутренних перестенков есть очень интересное предложение! 1 Посилання на коментар Поділитися на інших сайтах More sharing options...
ddrevniy Опубліковано: 14 червня 2012 Поділитись Опубліковано: 14 червня 2012 Привет. Проект интересный. Строишь уже ? Как выглядит на момент ? Посилання на коментар Поділитися на інших сайтах More sharing options...
as1976as Опубліковано: 14 червня 2012 Автор Поділитись Опубліковано: 14 червня 2012 Привет. Проект интересный. Строишь уже ? Как выглядит на момент ? Да уже выгнал коробку и гараж ,и накрыл крышей.оставил отстаивать ся на этот год.Может по осени что-то и буду делать ,а пока все фин потоки направлены в другом направлении. Посилання на коментар Поділитися на інших сайтах More sharing options...
Рекомендовані повідомлення
Створіть акаунт або увійдіть у нього для коментування
Ви маєте бути користувачем, щоб залишити коментар
Створити акаунт
Зареєструйтеся для отримання акаунта. Це просто!
Зареєструвати акаунтУвійти
Вже зареєстровані? Увійдіть тут.
Увійти зараз