Перейти до публікації
Пошук в
  • Додатково...
Шукати результати, які містять...
Шукати результати в...

Перестроить дачу...

.Alex.

Рекомендовані повідомлення

Всем привет! Сначала немного предыстории: весной наш дачный массив газифицировали, и учитывая, что от него до центра Хмельницкого 7-8км, т.е ~15мин. езды, народ начал массово "перестраиваться"...

Полазил я тут по Вашему форуму и решил тоже выложить на всеобщее обозрение свои, так сказать, планы...

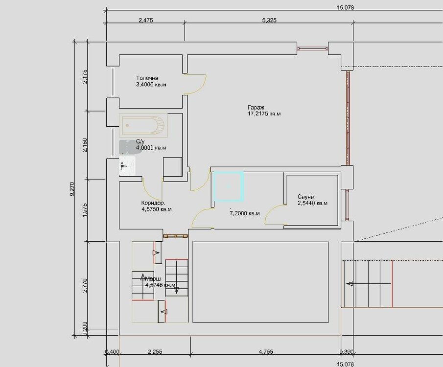
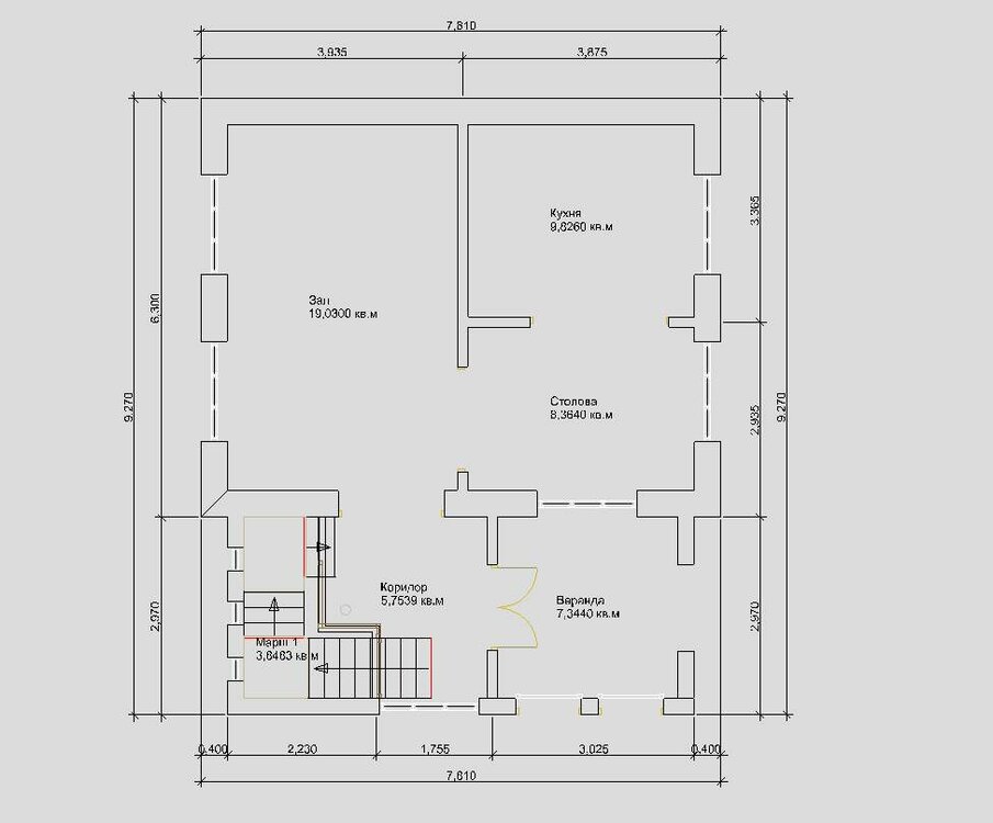
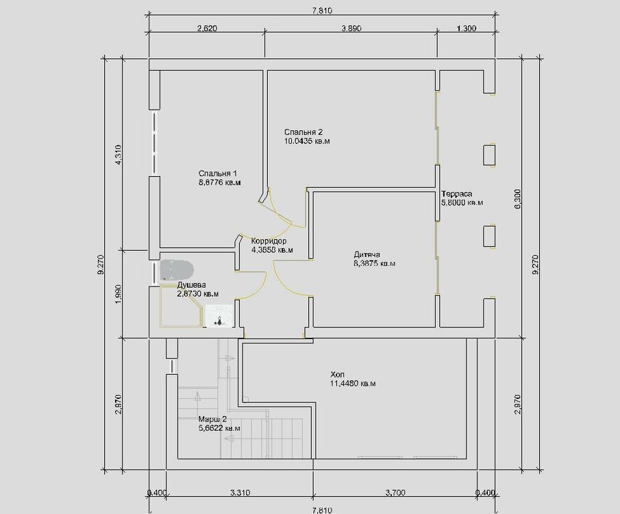
Но сначала о том что мы имеем, т.е. об "исходниках": Имеется кирпичная дача 6х8 + капитальная веранда, итого выходит 9х8, цоколь и два этажа. Как для дачи, то она на 90% готова: первый этаж-две комнаты и кухня, второй-две мансарды или точнее лоджии и одна большая комната, летний вариант, т.е. крыша не утеплена, в цоколе-гараж.

Теперь что хочется получить(в картинках):

ae_2_704.thumb.jpg.738eddda2c387d3f2920159b0b4f6edf.jpg

ae_1_165.thumb.jpg.074f8debb362f22d1b26d1a5d51b9ad3.jpg

ae__514.thumb.jpg.9575ecc3b51b2a9f8335219a94b7fead.jpg

Посилання на коментар
Поділитися на інших сайтах

... и наконец экстерьер(:(чёто не получается вставить картинку посреди текста :( )

Теперь, что для этого планируется сделать: Второй этаж: Одна мансарда убирается и делается три спальни(пусть небольшие, но именно три) и душевая., над верандой с помощью люкарны подымается потолок, и получается хол. Первый этаж: Практически ничего не перепланируется, единственное, что делается арочный проем между кухней и столовой, а дверь из зала в кухню(там сейчас спальня) убирается. Между залом и столовой тоже планируется сделать широкую арку, чтобы с помощь двери "наглухо" не разъеденять зал и столовую(полностью совмещать тоже не хочется). К сожалению санузел на первом этаже разместить негде, поэтому его планируется "опустить" в цоколь, но для этого еще надо вкопаться в веранде, чтобы получить вход в подвал не выходя на улицу(местные спецы смотрели и сказали что это возможно, т.к. цоколь из блоков и под одним из них можно прорезать проем).

Теперь о цоколе: гараж остается, с/у, ну и топочная(кубатуры хватает), сауна - это так как вариант, просто место остается...

Ну вот, вроде в общих чертах все...

Заранее всем благодарен за отзывы, жду советов и предложений...

P.S. Если будут другие варианты перепланировки, то можно "двигать" все, кроме капитальных стен... :-D

P.P.S. Чуть не забыл: снаружы дом будет утепляться пенопластом, а вот на счет отделки еще не решил! Тоже надеюсь на Ваши советы...

ae__153.thumb.jpg.4fcc54fbb157dbe5f02c210d3bd46861.jpg

ae__993.thumb.jpg.828d017f29f4f73295595418ced393eb.jpg

Посилання на коментар
Поділитися на інших сайтах

Створіть акаунт або увійдіть у нього для коментування

Ви маєте бути користувачем, щоб залишити коментар

Створити акаунт

Зареєструйтеся для отримання акаунта. Це просто!

Зареєструвати акаунт

Увійти

Вже зареєстровані? Увійдіть тут.

Увійти зараз
×
×
  • Створити...