calipso Опубліковано: 27 березня 2010 Поділитись Опубліковано: 27 березня 2010 Всем привет! Преамбула. Имеется старый частный дом. Участок 10 сот. Все коммуникации. Васильков Киевской области. Принято решение о постройке на этом-же участке нового дома. Старый дом остается, пока, до успешного переезда в новый. Потом под-снос. Геометрия свободного участка такова, что в распоряжении плащадка 30 на 14. Вход и заезд авто на участок с севера. Вход и заезд как-раз на свободной площади. Амбула. 1. Только одноэтажный. Почему так? Долго рассказывать, мало слушать, но одноэтажный. 2. Семья 4 человека - жена, две дочери 4 и 10 лет, и я. Необходимо три спальни. 3.Гараж в доме. Сейчас практически не ставлю машину в гараж, но помещение под мастерскую, сарайчик и т.д. необходимо. 4. Стены - газобетон 30 см плюс утеплитель. 5. Перекрытие - деревянные. Другого думаю и не надо. 6. Крыша - металочерепица. Чердак, в перспективе хочу переделать под мансарду на 2-3 комнаты и с/у. Родителей к себе забирать буду. В холле потом лестницу на второй этаж смонтирую. Почему в перспективе и потом - потому шо бюджет . сразу все не потяну. После изучения готовых проектов. нашел наиболее подходящий - на muratordom.com.ua Запах весны М70 в зеркальном отображении. В Арконе немножко передал под себя - расширил и крышу иначе планирую. Посилання на коментар Поділитися на інших сайтах More sharing options...
Sergeba Опубліковано: 29 березня 2010 Поділитись Опубліковано: 29 березня 2010 Проект интересный. Есть много плюсов: 1.Большая гостинная. 2.Большой холл. 3. Гараж. На этом плюсы заканчиваются... Сам сейчас пытаюсь нарисовать аналогичный дом. Первые попытки тоже были с гаражом, но сейчас отказался, думаю будет отдельным зданием. Отговорили т.к. дополнительный шум, запах и т.д. Минусы: 1.Котельная, кухня и санузел должны быть сгруппированы рядом для простоты разведения труб с водой (потери тепла на длинных участках труб обеспечены). 2.Совмещённый санузел. Жил когда-то в однушке... Доставала очередь в санузел и неприятные запахи, когда хочешь помыться. 3.Длинный, тёмный коридор 9метров. У меня тоже получается около 6 метров коридор, так меня все раскритиковали в пух и прах... 4. Маленькие детские. У меня один ребёнок и под детскую, отвели комнату 16кв.м т.к. ребёнок практически всё время проводит в своей комнате (играет, готовит уроки, приглашает друзей). Посилання на коментар Поділитися на інших сайтах More sharing options...
alexmetall Опубліковано: 30 березня 2010 Поділитись Опубліковано: 30 березня 2010 Еще один минус - динный узкий коридор, который "кушает" много полезной площади. Санузел - согласен, надо разносить. Сделайте небольшой "гостевой" санузел в тамбуре. Посилання на коментар Поділитися на інших сайтах More sharing options...
vickov Опубліковано: 30 березня 2010 Поділитись Опубліковано: 30 березня 2010 Коридор длиной 9 метров - это жесть. Уж лучше с гостинной объединить и в углу гостинной выделить место для небольшого холла, из которого будет вход в спальни. Посилання на коментар Поділитися на інших сайтах More sharing options...
Darkdwarf Опубліковано: 30 березня 2010 Поділитись Опубліковано: 30 березня 2010 (змінено) Как вариант - выкинуть из дома гараж и тогда решится вопрос длинного коридора и можно будет более удобно расположитьь комнаты - не в рядок.. типа так. Змінено 30 березня 2010 користувачем Darkdwarf Посилання на коментар Поділитися на інших сайтах More sharing options...
Sergeba Опубліковано: 31 березня 2010 Поділитись Опубліковано: 31 березня 2010 Этот вариант не проходит по нескольким причинам: 1. Где санузел? Или опять на улицу? 2.Топочная отделена от кухни. Если водяное оборудование будет в топочной как трубы тянуть? 3. Представьте картину: У Вас гости задержались допоздна, а детям спать надо, а за дверью песни поют... Нет, гостинную надо отделять... Посилання на коментар Поділитися на інших сайтах More sharing options...
Darkdwarf Опубліковано: 1 квітня 2010 Поділитись Опубліковано: 1 квітня 2010 Этот вариант не проходит по нескольким причинам: 1. Где санузел? Или опять на улицу? 2.Топочная отделена от кухни. Если водяное оборудование будет в топочной как трубы тянуть? 3. Представьте картину: У Вас гости задержались допоздна, а детям спать надо, а за дверью песни поют... Нет, гостинную надо отделять... ыть.. а с С/у реально профтыкал))))) Хозяива, сорри)))) трубы тянуть - не проблема - в стяжке закладки делаете и все... или через потолок... чтобы детям было пофиг на певцов, надо делать стены с нормальной звукоизоляцией, а не как обычно - 10 см профиль в лучшем случае и 1 слой ГКЛ на шурупах... это вообще то был просто набросок в пейнте... туалет хозяева сами дорисуют)))) Посилання на коментар Поділитися на інших сайтах More sharing options...
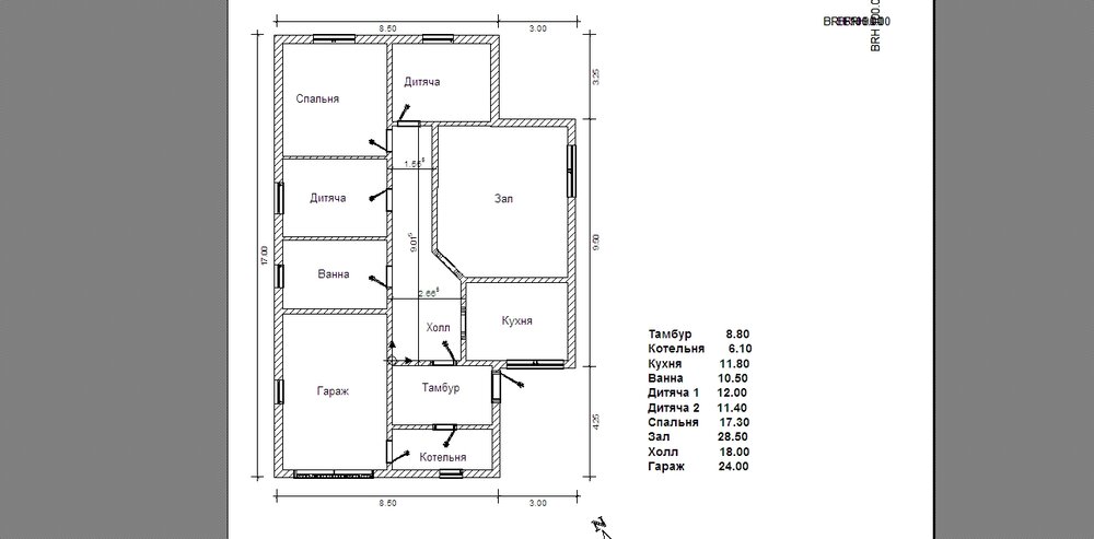
Ася Опубліковано: 4 квітня 2010 Поділитись Опубліковано: 4 квітня 2010 А если так? Старалась размеры не изменять. Посилання на коментар Поділитися на інших сайтах More sharing options...
Sergeba Опубліковано: 5 квітня 2010 Поділитись Опубліковано: 5 квітня 2010 А если так? Старалась размеры не изменять. Вот! Уже намного лучше! Что ещё порекомендую: 1. Максимально увеличьте спальни за счёт "хозяйского холла" т.е. сдвиньте внутренние стены или перекомпануйте их в сторону увеличения. 2. Сделайте туалет от ванны отдельно - в хозяйском холле места хватит. Посилання на коментар Поділитися на інших сайтах More sharing options...
vickov Опубліковано: 5 квітня 2010 Поділитись Опубліковано: 5 квітня 2010 А если так? Старалась размеры не изменять. А какая цель у громадного хозяйского холла? Может, лучше сделать небольшой холл, а за счет него увеличить площади спален? Еще не нравится прихожая и тамбур. Маловато места. Посилання на коментар Поділитися на інших сайтах More sharing options...
Ася Опубліковано: 5 квітня 2010 Поділитись Опубліковано: 5 квітня 2010 Вот! Уже намного лучше! Что ещё порекомендую: 1. Максимально увеличьте спальни за счёт "хозяйского холла" т.е. сдвиньте внутренние стены или перекомпануйте их в сторону увеличения. 2. Сделайте туалет от ванны отдельно - в хозяйском холле места хватит. А какая цель у громадного хозяйского холла? Может, лучше сделать небольшой холл, а за счет него увеличить площади спален? Еще не нравится прихожая и тамбур. Маловато места. Я просто попыталась уйти от длинного темного коридора, не сильно нарушая при этом размеры основных помещений, заданные топикстартером. А увеличивать или нет спальни, разделять или нет санузел - решать хозяину дома. Я бы лично для себя чуть увеличила блок "с/у-прихожая-тамбур" за счет зала. А "громадный хозяйский холл" может быть: - удобным приватным местом общего сбора семьи (без гостей), - отдельной игровой для детей, если гости пришли с детьми (разделение по интересам) ... Посилання на коментар Поділитися на інших сайтах More sharing options...
Гість IgorElectro Опубліковано: 7 квітня 2010 Поділитись Опубліковано: 7 квітня 2010 помогите понять где несущие стены????? они вообще есть? Посилання на коментар Поділитися на інших сайтах More sharing options...
Рекомендовані повідомлення
Створіть акаунт або увійдіть у нього для коментування
Ви маєте бути користувачем, щоб залишити коментар
Створити акаунт
Зареєструйтеся для отримання акаунта. Це просто!
Зареєструвати акаунтУвійти
Вже зареєстровані? Увійдіть тут.
Увійти зараз