AlexRU Опубліковано: 5 листопада 2007 Поділитись Опубліковано: 5 листопада 2007 Планирую рыть и соответственно заливать фундамент под птичник (планирую завести перепелок ). Сам птичник будет из газобетона. Там где нужно заливать фундамент, чернозем на глубину 1м. Посчитал количество бетона и впечатлился . Под птичник, как то хотелось бы сэкономить. Подскажите, как? Может песка подсыпать, а уже потом бетон заливать? Посилання на коментар Поділитися на інших сайтах More sharing options...
K2 Опубліковано: 5 листопада 2007 Поділитись Опубліковано: 5 листопада 2007 ищите поиском, обсуждалось. Посилання на коментар Поділитися на інших сайтах More sharing options...
AНДРЮША Опубліковано: 5 листопада 2007 Поділитись Опубліковано: 5 листопада 2007 Посмотрите в сторону мелкозагубленного фундамента, думается под одноэтажное здание из газобетона вполне. Посилання на коментар Поділитися на інших сайтах More sharing options...
AlexRU Опубліковано: 5 листопада 2007 Автор Поділитись Опубліковано: 5 листопада 2007 Буду проходить чернозем до глины (1м), а там уже может подсыплю песка и уже затем залью бетон. Особо сэкономить наверно не получиться... Посилання на коментар Поділитися на інших сайтах More sharing options...
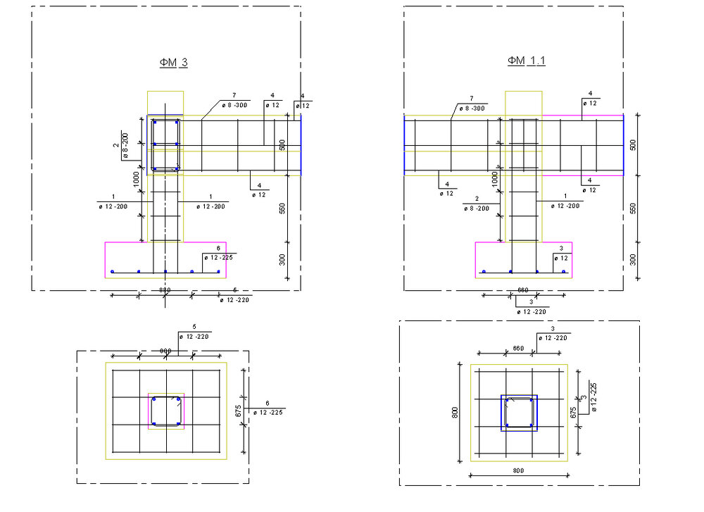
Alexander Pryakha Опубліковано: 5 листопада 2007 Поділитись Опубліковано: 5 листопада 2007 Планирую рыть и соответственно заливать фундамент под птичник (планирую завести перепелок ). Сам птичник будет из газобетона. Там где нужно заливать фундамент, чернозем на глубину 1м. Посчитал количество бетона и впечатлился . Под птичник, как то хотелось бы сэкономить. Подскажите, как? Может песка подсыпать, а уже потом бетон заливать? Оптимально - выполнить столбчатые фундаменты Дойти в любом случае до коренного грунта. Сверху выполнить ж/б балку. А вообще если хотите, чтобы недвижимость и земля ваших соседей подешевела, заведите - гусей или корову. У меня соседка корову заводить собралась, так я уже незнаю что и делать. Наверно будем исключать ее из коператива. Вообще по ДБН - пастбища для птицы - не менее 12м от жилых зданий. Фундамент на картинке Посилання на коментар Поділитися на інших сайтах More sharing options...
AlexRU Опубліковано: 5 листопада 2007 Автор Поділитись Опубліковано: 5 листопада 2007 ДБН мы уважаем...12 метров выдержаны с головой . Да к тому же это же перепеелки . Они только в помещении и находятся. Ничем не болеют (и птичьим гриппом так же) чистые и не требуют особого ухода... Столбчатый фундамент это интересно. Не думал о нем. В качестве столбиков в земле, что используют: бетон, ж/бетон или может можно забетонированные металлические трубы? Посилання на коментар Поділитися на інших сайтах More sharing options...
Alexander Pryakha Опубліковано: 5 листопада 2007 Поділитись Опубліковано: 5 листопада 2007 ДБН мы уважаем...12 метров выдержаны с головой . Да к тому же это же перепеелки . Они только в помещении и находятся. Ничем не болеют (и птичьим гриппом так же) чистые и не требуют особого ухода... Столбчатый фундамент это интересно. Не думал о нем. В качестве столбиков в земле, что используют: бетон, ж/бетон или может можно забетонированные металлические трубы? Армируют подошву, подколонник, верхнюю балку. Что-то типа этого, только арматуру можно поставить поменьше. Посилання на коментар Поділитися на інших сайтах More sharing options...
AlexRU Опубліковано: 5 листопада 2007 Автор Поділитись Опубліковано: 5 листопада 2007 Спасибо, но мне кажется, что обычный фундамент будет попроще. Посилання на коментар Поділитися на інших сайтах More sharing options...
Рекомендовані повідомлення
Створіть акаунт або увійдіть у нього для коментування
Ви маєте бути користувачем, щоб залишити коментар
Створити акаунт
Зареєструйтеся для отримання акаунта. Це просто!
Зареєструвати акаунтУвійти
Вже зареєстровані? Увійдіть тут.
Увійти зараз