Знахарь Опубліковано: 12 квітня 2010 Поділитись Опубліковано: 12 квітня 2010 Если Вы строитесь не на пустыре, а в населенном пункте, то выражу мнение Ваших соседей: кинотеатр надо размещать в глубоком подполье (этаж -1 или -2) с серьезной системой звукоизоляции. Правила хорошего звука требуют раскочегаривать акустику до очень неприятных соседям децибел. Никакие (даже вакуумные стеклопакеты) не уберегут Вас от наживания врагов в лице соседей. 1 Посилання на коментар Поділитися на інших сайтах More sharing options...
ssovych Опубліковано: 13 квітня 2010 Автор Поділитись Опубліковано: 13 квітня 2010 Перелопатив кучу информации и отзывов владельцев домов, уже все больше склоняюсь к варианту с цоколем. Там будут все подсобные помещения, гараж, ну и кинотеатр. К тому же это позволит немного уменьшить пятно застройки и оставить больше свободной площади участка. (участок 6 соток) Посилання на коментар Поділитися на інших сайтах More sharing options...
lavilong Опубліковано: 13 квітня 2010 Поділитись Опубліковано: 13 квітня 2010 у меня кинотеатр в цоколе.. но если такового не имеется, я бы сделал на втором.. он менее используем.. а делать отдельную комнату на первом для кинотеатра не вижу смысла.. в любом случае нужна звукоизоляция... Посилання на коментар Поділитися на інших сайтах More sharing options...
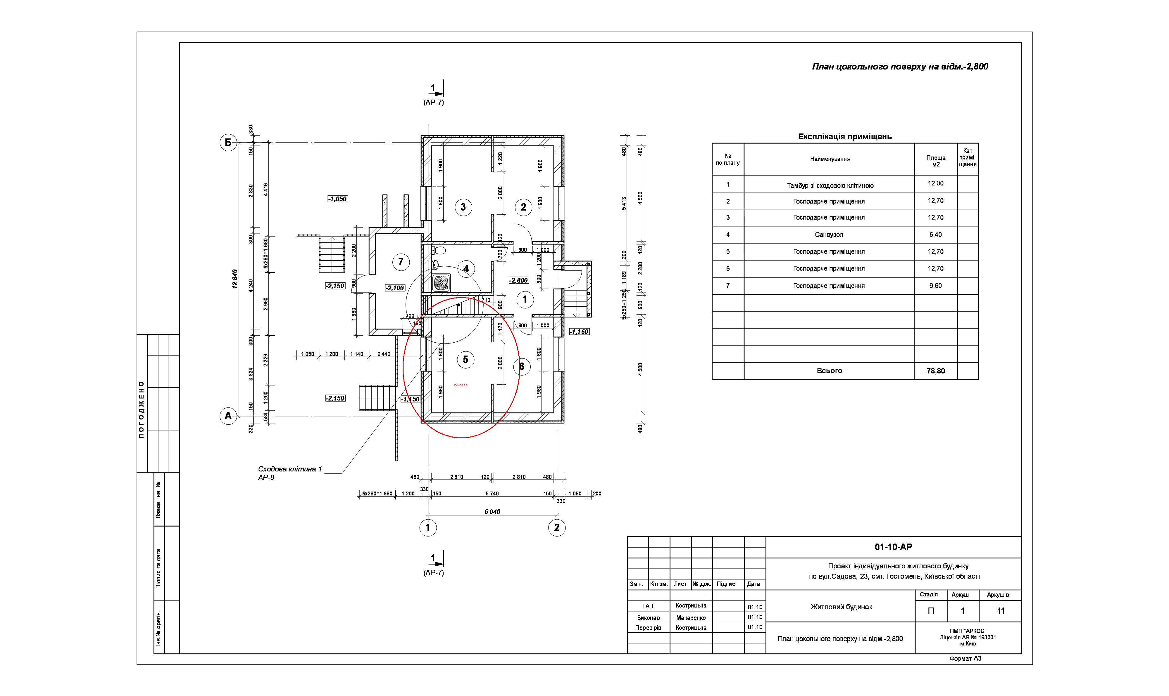
lavilong Опубліковано: 13 квітня 2010 Поділитись Опубліковано: 13 квітня 2010 вот такой у меня дом, а кинотеатр обозначен красным Посилання на коментар Поділитися на інших сайтах More sharing options...
Darkdwarf Опубліковано: 14 квітня 2010 Поділитись Опубліковано: 14 квітня 2010 хы, моему другу кинули сметы на несколько вариантов кинотеатров... от 45 тыщ баксов до 5 тыщ баксов... блин, жду выходные - интересно посмотреть предложенные комплектующие)))))) - это тока аккустика и оборудование - без обесшумки и т.п. Посилання на коментар Поділитися на інших сайтах More sharing options...
Рекомендовані повідомлення
Створіть акаунт або увійдіть у нього для коментування
Ви маєте бути користувачем, щоб залишити коментар
Створити акаунт
Зареєструйтеся для отримання акаунта. Це просто!
Зареєструвати акаунтУвійти
Вже зареєстровані? Увійдіть тут.
Увійти зараз