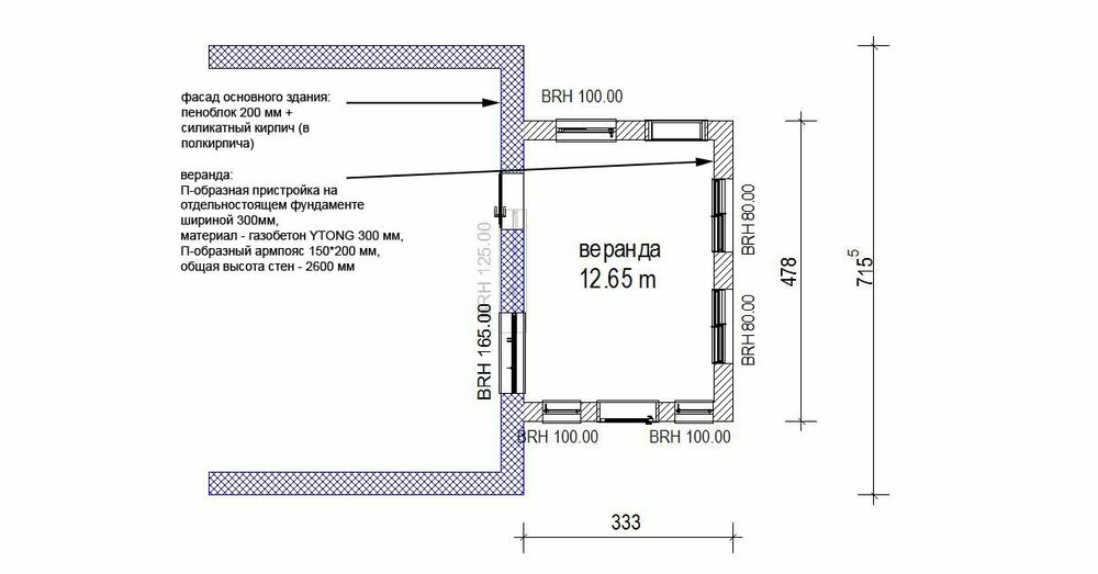
abc.reader Опубліковано: 12 квітня 2010 Поділитись Опубліковано: 12 квітня 2010 приветствую уважаемых форумчан! читаю форум давно и с удовольствием, и вот - "припекло", решил посоветоваться с коллективным разумом, чтобы не было мучительно больно (ну, или чтоб было, как получится). сам я не инженер, не строитель, но какой-то опыт семейного самостроя есть. но тут столкнулся с проблемой, требующей квалифицированной оценки и совета. надеюсь на вашу помощь. итак, исходные данные: имеем дом, коттеджного типа. дом стоит на песчаном грунте (вода близко, весной - 1,8 м), фундамент - ну 30-40 см от силы (если я правильно запомнил когда реконструировали), стены - пенобетон 200 мм, обложены силикатным кирпичом "вполкирпича", промежуток заполнен перлитом. к южному фасаду дома пристроена П-образная пристройка (форма и размеры на схеме и фото). фундамент шириной 300 мм глубиной 900 мм примыкает к фундаменту дома, но по-моему жёстко не связан (может, парой прутков арматуры, а может и совсем никак). стены сложены из газобетона YTONG шириной 300 мм, перемычки над окнами/дверьми - швеллер 140 мм. стены никак не привязаны к обкладке дома, на стыке - эппс 20мм. сделан П-образный же армопояс шириной 150мм, высотой 200 мм, замоноличены шпильки 12мм. далее хочу сделать крышу, с возможностью лет через 10 её снять (поднять), и достроить 2-й этаж (типа остеклённой терассы/балкона). вопросы: 1. волнует П-образность конструкции. задним числом понимаю, что спокойнее и правильнее было бы пролить фундамент и под домом, и сделать нормальные 4 стены, пусть внутреннюю тоньше, но залить потом цельный армопояс. теперь уже наверное поздно - на полу залита черновая стяжка. думаю теперь как добавить жёсткости в конструкцию - может, закрепить на шпильках в основании буквы П железную прямоугольную трубу? или поставить подпорку, и долить армопояс?? насколько вообще ситуация "черевата", и как её можно поправить? 2. оптимальная конструкция крыши и перекрытия. хочется чтобы свесы крыши с боковин пристройки были большие (1м в проэкции) - как бы крыльцо над обеими дверями. балки потолка и перекрытие потенциального 2-го этажа хочу "развязать". мои мысли: проще всего односкатка, думаю градусов 20 будет, покрою битумкой. но: для опоры ферм вдоль дома нужно делать брус/ферму? в стену дома опирать наверное будет неправильно - полкирпича всё-таки. какую нужно? как изготовить? может, в данном случае будет лучше двускатка? треугольные фермы стропильной системы встанут на сущесвующий армопояс (мауэрлат), как и балки перекрытия / потолочные балки. в общем, помогите неучу, люди добрые! Посилання на коментар Поділитися на інших сайтах More sharing options...
abc.reader Опубліковано: 13 квітня 2010 Автор Поділитись Опубліковано: 13 квітня 2010 30 просмотров - неужели никто не может высказать своё мнение? или есть какие-то неписанные правила форума, которые я по незнанию не учёл? люди, ау, отзовитесь! Посилання на коментар Поділитися на інших сайтах More sharing options...
Васян Опубліковано: 13 квітня 2010 Поділитись Опубліковано: 13 квітня 2010 :D думаю вопрос не интересен. Если делаете на десять лет. Лучше сделать односкатку и выпустить брус с его помощью и сделаете навесы по 1м. на стену на анкера прикрепить брус и на него покидать стропилку и горизонтали для потолка анологично, утепление по потолку. Посилання на коментар Поділитися на інших сайтах More sharing options...
abc.reader Опубліковано: 13 квітня 2010 Автор Поділитись Опубліковано: 13 квітня 2010 уря! спасибо, что зашли. :D думаю вопрос не интересен. эх... а как бы выглядел "интересный" вопрос? Если делаете на десять лет. делаю с возможностью переделать через десять лет. т.е. может возникнет необходимость в этих 10 кв. м. дополнительной площади, оправдывающая дополнительную возню. а может и нет... и тогда крыша будет стоять до победного. т.е. сейчас, например, делать перекрытие для второго этажа нет смысла - будет просто чердак, утепление между "потолочных" балок. но при переделке придётся добавлять отдельные балки для пола, поэтому сейчас хочется сделать основу, которая сможет выдержать и эти балки, и пол, и что там ещё будет. Лучше сделать односкатку и выпустить брус с его помощью и сделаете навесы по 1м. на стену на анкера прикрепить брус и на него покидать стропилку тут понятно и горизонтали для потолка анологично, утепление по потолку. а вот тут не совсем. хочется чтоб брус этот впоследствии выдержали и пол второго этажа, а заанкерённый в полкирпича основного дома - как бы стена не треснула. поэтому не лучше ли брус на армопояс под стеной дома? каким сечением? 200*100 (два 100*100 один на другом, например, или 4 по 50*100 плашмя, или 4 25*200 на ребро?)? Посилання на коментар Поділитися на інших сайтах More sharing options...
VillaDeLux (ex Акро) Опубліковано: 13 квітня 2010 Поділитись Опубліковано: 13 квітня 2010 abc.reader, ваш пост читать не интересно уже после 5-6 строчки. вы пытаестесь все аргументы, контраргументы, домыслы и ответы на свой же вопрос изложить в одном посте, как будто вам никто не даст ответить. начните с малого. Поставьте конкретный вопрос: а можно ли вот эту палку (фиговину, деревяху, хр....ень) вот сюда ставить? Тогда и пойдёт беседа. Посилання на коментар Поділитися на інших сайтах More sharing options...
abc.reader Опубліковано: 13 квітня 2010 Автор Поділитись Опубліковано: 13 квітня 2010 abc.reader, ваш пост читать не интересно уже после 5-6 строчки. да что же это... вроде как не конкурс интересных псто, а уже вторая жалоба... Поставьте конкретный вопрос ну, мне не трудно :D начнём по порядку: 1. П-образность конструкции: насколько вообще ситуация "черевата", и как её можно поправить? Посилання на коментар Поділитися на інших сайтах More sharing options...
Владимир Х. Опубліковано: 26 квітня 2010 Поділитись Опубліковано: 26 квітня 2010 да что же это... вроде как не конкурс 1. П-образность конструкции: насколько вообще ситуация "черевата", и как её можно поправить? При соединяюсь к вопросу, мне тоже это интересно, на будущее хочу пристраивать к дому пристройку (простите за тавтологию) Посилання на коментар Поділитися на інших сайтах More sharing options...
abc.reader Опубліковано: 26 квітня 2010 Автор Поділитись Опубліковано: 26 квітня 2010 2 Владимир Х. если только собираетесь, то делайте так, чтоб подобные вопросы не возникли - т.е. фундамент и стены по всему периметру, по стенам - замкнутый армопояс. "внутреннюю" стену можно сделать на 20-25% тоньше наружных. а то я вроде как и экономить не собирался, а головоломку получил... 1 Посилання на коментар Поділитися на інших сайтах More sharing options...
Владимир Х. Опубліковано: 27 квітня 2010 Поділитись Опубліковано: 27 квітня 2010 2 Владимир Х. если только собираетесь, то делайте так, чтоб подобные вопросы не возникли - т.е. фундамент и стены по всему периметру, по стенам - замкнутый армопояс. "внутреннюю" стену можно сделать на 20-25% тоньше наружных. а то я вроде как и экономить не собирался, а головоломку получил... А как связывать эти два строения: дом и пристройку? Прутики в фундамент - это не работает, все равно при осадке трещину даст. И как связывать стены? Ведь если связать сразу, при кладке пристнойки (к примеру той же арматурой или резьбовыми спицами), то при осадке пристройки может потянуть и стену основного дома? Спасибо! Посилання на коментар Поділитися на інших сайтах More sharing options...
abc.reader Опубліковано: 27 квітня 2010 Автор Поділитись Опубліковано: 27 квітня 2010 А как связывать эти два строения: дом и пристройку? я свои никак не связывал. между стеной дома и торцом пристройки - деформационный шов (20-ка эппс, потом задую пеной и заштукатурю). вариант "связанного" строения только один - заблаговременно выпустить арматуру из основного фундамента, и полноценно связать с арматурой фундамента пристройки. тогда по идее будет работать как одна конструкция. нужно ли это - зависит от общей картины конкретного дома - грунты, размеры, предполагаемые нагрузки. а абстрактно рассуждать - смысл небольшой. Посилання на коментар Поділитися на інших сайтах More sharing options...
abc.reader Опубліковано: 12 травня 2010 Автор Поділитись Опубліковано: 12 травня 2010 аналогичная тема Посилання на коментар Поділитися на інших сайтах More sharing options...
Рекомендовані повідомлення
Створіть акаунт або увійдіть у нього для коментування
Ви маєте бути користувачем, щоб залишити коментар
Створити акаунт
Зареєструйтеся для отримання акаунта. Це просто!
Зареєструвати акаунтУвійти
Вже зареєстровані? Увійдіть тут.
Увійти зараз