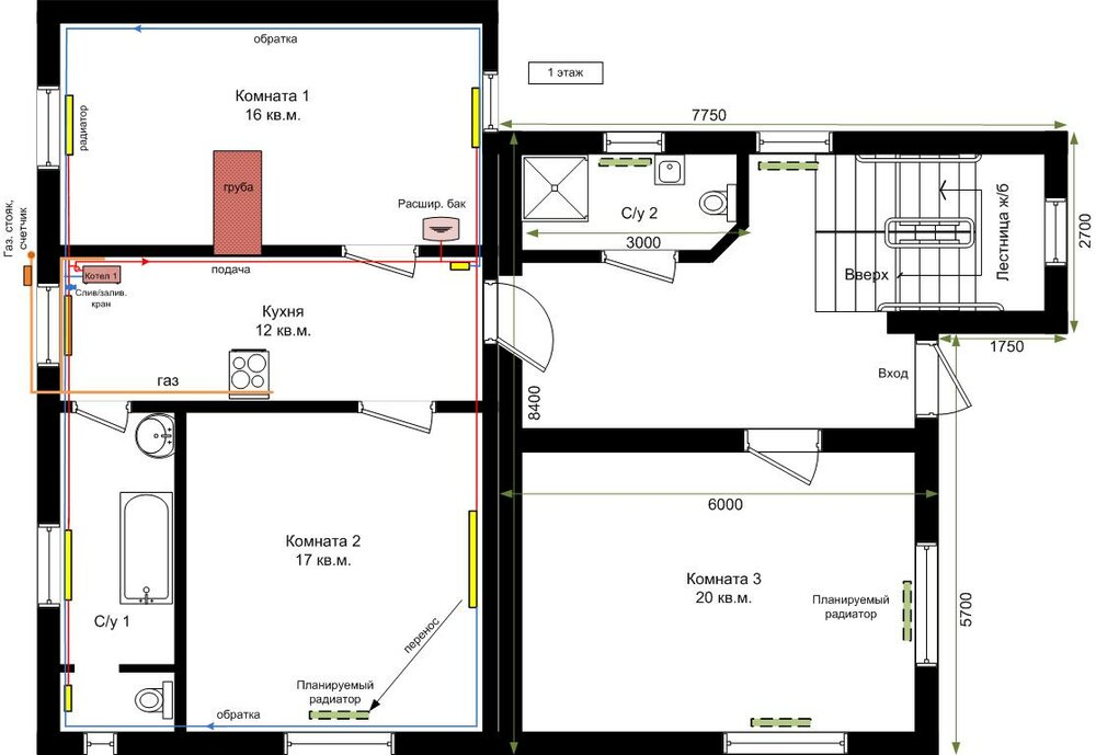
vv$ Опубліковано: 7 травня 2010 Поділитись Опубліковано: 7 травня 2010 Здравствуйте, уважаемые форумчане! К старому домику пристроена новая половина (пока без отделки и пола.) В старом действует гравитационка с насосом. Котел - "Коростень-10". Прошу Вашего совета по проектированию системы отопления и возможно монтаже. Предполагаю, что возможны три варианта: 1. Расширить старое отопление. 2. Смонтировать отдельное в пристройке (две независимые). 3. Убрать старое и сделать новое общее. Но гравитационка спасает при отключении электричества. Хотелось бы определиться с разводкой труб до заливки пола. С ув., Владимир. Посилання на коментар Поділитися на інших сайтах More sharing options...
ts3 Опубліковано: 7 травня 2010 Поділитись Опубліковано: 7 травня 2010 Вы все правильно говорите и сами отвечаете на свой вопрос =) Какая помощь-то нужна? Если есть деньги и желание - можно сделать новую систему отопления на весь дом Если часто отключают электричество зимой и блоки резервного питания для циркуляционного насоса и автоматики нового котла доставлять не хочется - расширять.. Как по мне, два котла на дом в 150 кв.м - многовато будет Посилання на коментар Поділитися на інших сайтах More sharing options...
vv$ Опубліковано: 7 травня 2010 Автор Поділитись Опубліковано: 7 травня 2010 Вы все правильно говорите и сами отвечаете на свой вопрос =) Какая помощь-то нужна? Хотелось бы выбрать наиболее правильный и качественный вариант. Ну и прикинуть ориентир по деньгам. Посилання на коментар Поділитися на інших сайтах More sharing options...
vv$ Опубліковано: 7 травня 2010 Автор Поділитись Опубліковано: 7 травня 2010 Ничего не имею против резервного питания, хотя это несколько увеличит расходы. Посилання на коментар Поділитися на інших сайтах More sharing options...
STANISLAV Опубліковано: 17 травня 2010 Поділитись Опубліковано: 17 травня 2010 Вариант 1 дешевый; установка нового котла и своей системы на пристройку с возможность дальнейшего подключения старой части дома - от 3500$- 5000$; Вариант 2; новая система на весь дом - 10000$ - 15000$ Будет желание сделать расчеты и монтаж звоните конт. тел. 067 723 66 02, 331-53-90 e-mail; s-komfort@ukr.net Станислав Посилання на коментар Поділитися на інших сайтах More sharing options...
Рекомендовані повідомлення
Створіть акаунт або увійдіть у нього для коментування
Ви маєте бути користувачем, щоб залишити коментар
Створити акаунт
Зареєструйтеся для отримання акаунта. Це просто!
Зареєструвати акаунтУвійти
Вже зареєстровані? Увійдіть тут.
Увійти зараз