lavilong Опубліковано: 7 травня 2010 Поділитись Опубліковано: 7 травня 2010 коробка уже построена, а я все еще в процессе получения разрешения на строительство. Такой вопрос: от ула моего дома до угла соседского (они расположены по диагонали) - 6,9 метра. До границы участка 1,4 метра. Укладываюсь в нормы?. Вроде как до межы должно быть не менее метра, а до строений соседских не менее шести... Так ли это? Посилання на коментар Поділитися на інших сайтах More sharing options...
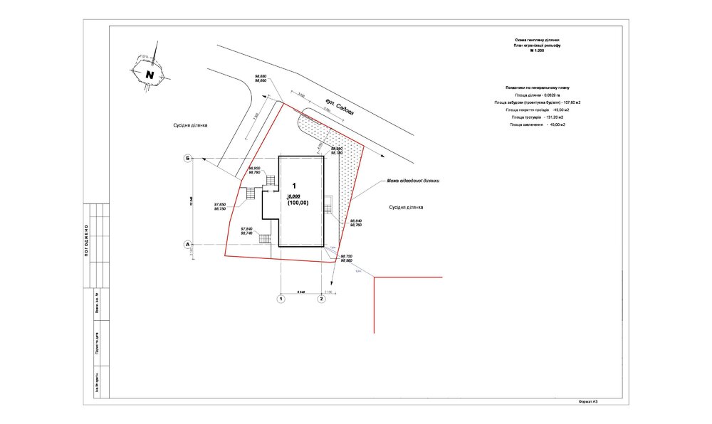
lavilong Опубліковано: 7 травня 2010 Автор Поділитись Опубліковано: 7 травня 2010 вот типа такой расклад Посилання на коментар Поділитися на інших сайтах More sharing options...
arhivator Опубліковано: 7 травня 2010 Поділитись Опубліковано: 7 травня 2010 коробка уже построена, а я все еще в процессе получения разрешения на строительство. Такой вопрос: от ула моего дома до угла соседского (они расположены по диагонали) - 6,9 метра. До границы участка 1,4 метра. Укладываюсь в нормы?. Вроде как до межы должно быть не менее метра, а до строений соседских не менее шести... Так ли это? Надеюсь это поможетdbn_79-92.zip 2 Посилання на коментар Поділитися на інших сайтах More sharing options...
lavilong Опубліковано: 7 травня 2010 Автор Поділитись Опубліковано: 7 травня 2010 Помогло.. степень огнестойкости у меня третья.. стало быть соседский дом тоже.. итого 8 метров.. у меня 7 еле еле выходит.. Стало быть будут морочить голову? У когото опыт подобного оформления есть? Из плюсов что я имею, это 1) план старого дома (снесен).. новый дом строился по границам старого (в проблемном месте) 2) концы в пожарке, только киевской.. что-то из перечисленного может повлиять при инспекции и в какой степени? Посилання на коментар Поділитися на інших сайтах More sharing options...
PAV Опубліковано: 7 травня 2010 Поділитись Опубліковано: 7 травня 2010 Помогло.. степень огнестойкости у меня третья.. стало быть соседский дом тоже.. итого 8 метров.. у меня 7 еле еле выходит.. Стало быть будут морочить голову? У когото опыт подобного оформления есть? Из плюсов что я имею, это 1) план старого дома (снесен).. новый дом строился по границам старого (в проблемном месте) 2) концы в пожарке, только киевской.. что-то из перечисленного может повлиять при инспекции и в какой степени? ДБН 79-92 не действующий. В Вашем случае обратите внимание на примечание 3 и 7 таблицы 1 Приложения 3.1 ДБН 360-92 - возможна перестройка жилых домов при условии сохранения существующих расстояний между строениями и согласования перестройки, расстояния между стенами зданий без оконных проемов допускается уменьшать на 20%. 1 Посилання на коментар Поділитися на інших сайтах More sharing options...
киевлянка Опубліковано: 10 травня 2010 Поділитись Опубліковано: 10 травня 2010 ДБН 79-92 не действующий. В Вашем случае обратите внимание на примечание 3 и 7 таблицы 1 Приложения 3.1 ДБН 360-92 - возможна перестройка жилых домов при условии сохранения существующих расстояний между строениями и согласования перестройки, расстояния между стенами зданий без оконных проемов допускается уменьшать на 20%[/b][/b]. если я правильно поняла, в случае, если на примыкающей к соседскому дому стене (скажем, северной) нет окон, то достаточно расстояния 6,4м (8м-1.6)? При этом не имеет значения, что у соседа окна выходят на наш дом (на южн.стор.)?? Посилання на коментар Поділитися на інших сайтах More sharing options...
PAV Опубліковано: 11 травня 2010 Поділитись Опубліковано: 11 травня 2010 если я правильно поняла, в случае, если на примыкающей к соседскому дому стене (скажем, северной) нет окон, то достаточно расстояния 6,4м (8м-1.6)? При этом не имеет значения, что у соседа окна выходят на наш дом (на южн.стор.)?? В ДБН написано во множественном числе: расстояния между стенами зданий без оконных проемов допускается уменьшать на 20%, т.е. если стены, расположенные друг против друга, глухие. 1 Посилання на коментар Поділитися на інших сайтах More sharing options...
lavilong Опубліковано: 11 травня 2010 Автор Поділитись Опубліковано: 11 травня 2010 В ДБН написано во множественном числе: расстояния между стенами зданий без оконных проемов допускается уменьшать на 20%, т.е. если стены, расположенные друг против друга, глухие. У меня вообще дома стоят по диагонали.. от соседского УГЛА до моего УГЛА - 6,9 метра.. или это не имеет значения? Посилання на коментар Поділитися на інших сайтах More sharing options...
PAV Опубліковано: 11 травня 2010 Поділитись Опубліковано: 11 травня 2010 У меня вообще дома стоят по диагонали.. от соседского УГЛА до моего УГЛА - 6,9 метра.. или это не имеет значения? Расстояние по ДБН считается от выступающих частей стен домов. При Вашей застройке - от угла до угла. Расстояние в 6,9м вполне согласуется. При нормальном подходе может считаться расстояние от окна до окна. При плохом - могут требовать как у Yorick, центрального водоснабжения всего населенного пункта с гидрантами. 1 Посилання на коментар Поділитися на інших сайтах More sharing options...
Петрович0101 Опубліковано: 18 травня 2010 Поділитись Опубліковано: 18 травня 2010 Спасибо за сообщение. Посилання на коментар Поділитися на інших сайтах More sharing options...
Рекомендовані повідомлення
Створіть акаунт або увійдіть у нього для коментування
Ви маєте бути користувачем, щоб залишити коментар
Створити акаунт
Зареєструйтеся для отримання акаунта. Це просто!
Зареєструвати акаунтУвійти
Вже зареєстровані? Увійдіть тут.
Увійти зараз