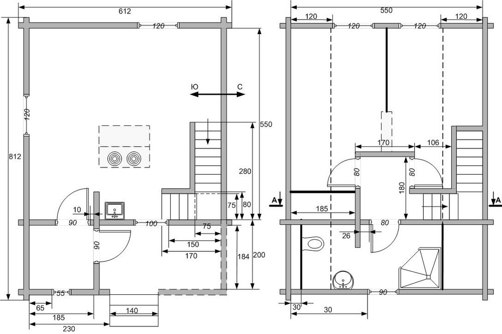
kdf Опубліковано: 21 листопада 2007 Поділитись Опубліковано: 21 листопада 2007 Коллеги, раскритикуйте проект дома! Это мой первый опыт, так что любые замечания будут полезны. Кто решит, что это не проект, а эскиз проекта -- ногами, как говорится, не это самое. В двух словах: дом делается из деревянного бруса 18 на 16, карпатская смерека. Второй этаж делается из бруса 18 на 14. Длина бревна не может превышать 7,2 метра. Северная стена глухая. Перед домом веранда. Дом будет использоваться как дача, лет через 10 -- как гостевой дом в большой усадьбе. То, что на плане толстой черной линией -- это доска. Иначе брус. Посилання на коментар Поділитися на інших сайтах More sharing options...
XamGelo Опубліковано: 21 листопада 2007 Поділитись Опубліковано: 21 листопада 2007 Как-то лестница не очень удачно А что если уменьшить крыльцо и лестницу черз тамбур частично пустиить ? Посилання на коментар Поділитися на інших сайтах More sharing options...
kdf Опубліковано: 21 листопада 2007 Автор Поділитись Опубліковано: 21 листопада 2007 А как через тамбур? Крыльцо -- это веранду в смысле? К лестнице пожелания такие, чтобы было удобно, для этого ступеньки невысокие и площадка посредине. Посилання на коментар Поділитися на інших сайтах More sharing options...
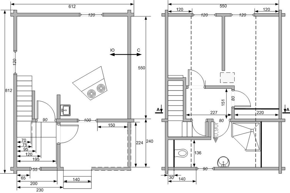
XamGelo Опубліковано: 21 листопада 2007 Поділитись Опубліковано: 21 листопада 2007 Ага, просто не понял сразу что веранда, думал крыльцо Лестница начинается в комнате, площадка в тамбуре, и дальше на 2 этаж. Кухонная зона - в правый нижний угол, санузел делаем поменьше Под лестницей - место для верхней одежды. А вообще у меня где-то был проектик под такие размеры - найду, выложу Посилання на коментар Поділитися на інших сайтах More sharing options...
kdf Опубліковано: 21 листопада 2007 Автор Поділитись Опубліковано: 21 листопада 2007 Ага, это интересно. Сейчас порисую, посмотрю. Вообще так как есть -- это вроде теплоизоляция получше. А так как вы говорите -- то место в комнате и вверху экономится. Попробую сейчас. Посилання на коментар Поділитися на інших сайтах More sharing options...
XamGelo Опубліковано: 21 листопада 2007 Поділитись Опубліковано: 21 листопада 2007 Где лучше-то ? На лестнице ? А зачем ???? Посилання на коментар Поділитися на інших сайтах More sharing options...
kdf Опубліковано: 21 листопада 2007 Автор Поділитись Опубліковано: 21 листопада 2007 Ну в моем варианте тепло из дома никуда не уходит, а улицу от теплой зоны отделяет предбанник. В вашем варианте стену между домом и предбанником прорезает лестница. Т.е. смысл предбанника как буфера несколько утрачивается, или нет? Посилання на коментар Поділитися на інших сайтах More sharing options...
XamGelo Опубліковано: 21 листопада 2007 Поділитись Опубліковано: 21 листопада 2007 Ну не особо, тем более что лестницу можно от тамбура и изолировать Посилання на коментар Поділитися на інших сайтах More sharing options...
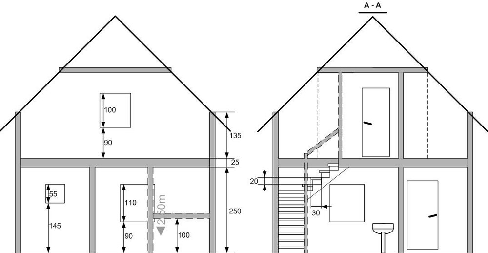
kdf Опубліковано: 22 листопада 2007 Автор Поділитись Опубліковано: 22 листопада 2007 Вообще, это интересный вариант, я порисую его еще. А вы не в курсе, вот мой прораб настойчиво рекомендует делать стены без стыков. Т.е. если стена длиной 8.12, то ее надо или укорачивать (до 7.2), или делать стык в месте соединения комнаты и тамбура. На существующих проектах, что я видел, бревна всегда не длиннее 4-5 метров. Если стены длиннее, то делаются стыки. Прораб (мужик из карпат, строящий эти дома всю жизнь) уговаривает меня уменьшить длину до 7-ми метров, и перепланировать дом. Мол, "прочнее будет". С этой идеей, что вы подкинули, на 7-ми метрах тоже вполне нормально может получиться. Сижу в раздумьях -- то ли стык, то ли стена короче. Посилання на коментар Поділитися на інших сайтах More sharing options...
XamGelo Опубліковано: 22 листопада 2007 Поділитись Опубліковано: 22 листопада 2007 Неее :-D Я в деревчнных домах не разбираюсь. Может прораб и прав Хотя строят же в россии или финляндии очень большие дома... Посилання на коментар Поділитися на інших сайтах More sharing options...
kdf Опубліковано: 22 листопада 2007 Автор Поділитись Опубліковано: 22 листопада 2007 Ясно, спасибо за ответы! Коллеги, не подскажете, что-таки предпочесть: стык в стене, или меньшую площадь? Посилання на коментар Поділитися на інших сайтах More sharing options...
kdf Опубліковано: 28 листопада 2007 Автор Поділитись Опубліковано: 28 листопада 2007 Попытался реализовать как советовал XamGelo. ВОт что вышло. Как-то мне второй этаж не сильно нравится. Как думаете, какой из вариантов удачнее, первый или второй? Посилання на коментар Поділитися на інших сайтах More sharing options...
Рекомендовані повідомлення
Створіть акаунт або увійдіть у нього для коментування
Ви маєте бути користувачем, щоб залишити коментар
Створити акаунт
Зареєструйтеся для отримання акаунта. Це просто!
Зареєструвати акаунтУвійти
Вже зареєстровані? Увійдіть тут.
Увійти зараз