Andrew44 Опубліковано: 13 листопада 2011 Поділитись Опубліковано: 13 листопада 2011 Стены будут из ячеистого бетона толщиной 500мм. Для Воронежа более чем достаточно. По проекту керамический кирпич 250мм + ППС 200мм + мокрый фасад. Забыл спросить - а почему отказались от ППС? И чем планируете отделывать фасад? Посилання на коментар Поділитися на інших сайтах More sharing options...
masl Опубліковано: 15 листопада 2011 Поділитись Опубліковано: 15 листопада 2011 (змінено) ППС в фасаде стрёмно после "Хромой лошади". Мокрый фасад качествено сделать очень дорого. Стены будут штукатуриться и краситься. Несколько фотографий о строительстве фундамента: picasaweb.google.com/111652233443350110387/152011?authuser=0&authkey=Gv1sRgCJ29n--c3IOWJQ&feat=directlink Змінено 15 листопада 2011 користувачем masl 1 Посилання на коментар Поділитися на інших сайтах More sharing options...
haiku Опубліковано: 15 листопада 2011 Поділитись Опубліковано: 15 листопада 2011 ППС в фасаде стрёмно после "Хромой лошади". Мокрый фасад качествено сделать очень дорого. Стены будут штукатуриться и краситься. ааа, держите меня все...как работает грязный пиар отделка фасада (т.е. снаружи), в маловысотных строениях - не несет особых угроз;) в Лошади была солома и феерверк - внутри помещения Посилання на коментар Поділитися на інших сайтах More sharing options...
Andrew44 Опубліковано: 16 листопада 2011 Поділитись Опубліковано: 16 листопада 2011 ППС в фасаде стрёмно после "Хромой лошади". Мокрый фасад качествено сделать очень дорого. Стены будут штукатуриться и краситься. Несколько фотографий о строительстве фундамента: picasaweb.google.com/111652233443350110387/152011?authuser=0&authkey=Gv1sRgCJ29n--c3IOWJQ&feat=directlink Спасибо за фотки! Процесс пошел.... Посилання на коментар Поділитися на інших сайтах More sharing options...
Andrew44 Опубліковано: 6 грудня 2011 Поділитись Опубліковано: 6 грудня 2011 Могу выслать Вам план дома в этом проекте в формате PDF со всеми размерами от поляков. Там вродебы всё пропорционально и помещается. Я б не отказался ;) Можно и мне? Посилання на коментар Поділитися на інших сайтах More sharing options...
Вилла Опубліковано: 9 грудня 2011 Поділитись Опубліковано: 9 грудня 2011 ППС в фасаде стрёмно после "Хромой лошади". Мокрый фасад качествено сделать очень дорого. Стены будут штукатуриться и краситься. Несколько фотографий о строительстве фундамента: picasaweb.google.com/111652233443350110387/152011?authuser=0&authkey=Gv1sRgCJ29n--c3IOWJQ&feat=directlink Фотографии очень классные, а где строитесь? Посилання на коментар Поділитися на інших сайтах More sharing options...
izergin Опубліковано: 15 лютого 2012 Поділитись Опубліковано: 15 лютого 2012 Ув. Михаил. Мы тоже строим по этому проекту. И тоже сейчас закончили фундамент. Посилання на коментар Поділитися на інших сайтах More sharing options...
Andrew44 Опубліковано: 16 лютого 2012 Поділитись Опубліковано: 16 лютого 2012 Александру мои поздравления с началом стройки! Хорошо жить в Одессе! А у меня вчера было -35 и снег до пояса. Ждем лета... Посилання на коментар Поділитися на інших сайтах More sharing options...
masl Опубліковано: 16 лютого 2012 Поділитись Опубліковано: 16 лютого 2012 Ув. Михаил. Мы тоже строим по этому проекту. И тоже сейчас закончили фундамент. [ATTACH]164853[/ATTACH][ATTACH]164850[/ATTACH][ATTACH]164847[/ATTACH] Поздравляю с началом стойки. Это у вас уровень -27см? Зачем дополнительные выпуски арматуры? Как будете делать гидроизоляцию? Будете ли утеплять цоколь? Как будете делать "пол по грунту"? Какой материал стен будет? Посилання на коментар Поділитися на інших сайтах More sharing options...
izergin Опубліковано: 17 лютого 2012 Поділитись Опубліковано: 17 лютого 2012 Поздравляю с началом стойки. Это у вас уровень -27см? Зачем дополнительные выпуски арматуры? Как будете делать гидроизоляцию? Будете ли утеплять цоколь? Как будете делать "пол по грунту"? Какой материал стен будет? Здравствуйте Михаил. (что значит уровень 27см?) Я сам не строитель и по мере строительства изучаю все тонкости. Фундамент лил сам. Участок имеет перепад почти в 2 м. Дом будет каркасного типа - арматура выпущенна для колонн каркаса и для связки плиты пола. Стены будут из газоблоков с наружным утеплением. Гидроизоляцию буду устанавливать с наружной стороны фундамента (пока еще думаю какая). Посилання на коментар Поділитися на інших сайтах More sharing options...
masl Опубліковано: 20 лютого 2012 Поділитись Опубліковано: 20 лютого 2012 -27 см - это отметка ниже отметки чистого пола на 27 см. На этой отметке делается отсечная гидроизоляция. Выше идут стены. Для вашего климата может быть не актуально, но фундамент по проекту утеплен и снаружи и изнутри. Посилання на коментар Поділитися на інших сайтах More sharing options...
костя777 Опубліковано: 21 лютого 2012 Поділитись Опубліковано: 21 лютого 2012 Дброго времени суток! Могу выслать Вам план дома в этом проекте в формате PDF со всеми размерами от поляков. Там вродебы всё пропорционально и помещается. А мне могли бы сбросить? Zizibra-ladyka@mail.ru Заранее благодарен! Посилання на коментар Поділитися на інших сайтах More sharing options...
Pride Опубліковано: 21 лютого 2012 Поділитись Опубліковано: 21 лютого 2012 Дброго времени суток! Могу выслать Вам план дома в этом проекте в формате PDF со всеми размерами от поляков. Там вродебы всё пропорционально и помещается. А мне могли бы сбросить? Zizibra-ladyka@mail.ru Заранее благодарен! Отправил. Там также программа расчета количества блоков Porotherm и плюс про блоки вообще полезная информация. Успехов! 1 Посилання на коментар Поділитися на інших сайтах More sharing options...
Pride Опубліковано: 21 лютого 2012 Поділитись Опубліковано: 21 лютого 2012 Я б не отказался ;) Можно и мне? Можно. Адрес, "на деревню, дедушке"? Посилання на коментар Поділитися на інших сайтах More sharing options...
Pride Опубліковано: 21 лютого 2012 Поділитись Опубліковано: 21 лютого 2012 Добрый человек, вышлите пожалуйста и мне на chipsa123@i.ua :D Выслал. Ловите. Посилання на коментар Поділитися на інших сайтах More sharing options...
rgoroshko Опубліковано: 21 лютого 2012 Поділитись Опубліковано: 21 лютого 2012 Собираюсь построить дом по этому проекту. К оригиналу добавил подвал под гаражем, и т.к. лестницу хочу сделать внутри, пришлось увеличить площадь гаража до 6*7, соответственно площадь топочной также была увеличена. Также поменял 25-й блок на 38-й, все остальное - оригинал. Хотя опыт и имеется, сам стройкой заниматься не могу, т.к. времени ну совсем нет, а если бы и было то заработаю больше чем могу сэкономить влезая в это. Сейчас весь в мыле от переговоров с застройщиками. Решил все разбить по этапам, при этом по фундаменту получил предложения от 240 до 290 тыс. грн. (4 предложения). Фундамент, коробка, кровля (натуральная черепица) - 950-1050 тыс. грн. 2/3 в среднем материалы, остальное работа. Кто то считал стоимость такого дома? Что является для него нормальной ценой? Если с материалами все просто, взял проект, позвонил по 3-5 компаниям и уже знаешь сколько стоит арматура, бетон, керамические блоки, цемент ... То с работами все хуже, разброс по ценам поражает Посилання на коментар Поділитися на інших сайтах More sharing options...
Vadoss1979 Опубліковано: 27 лютого 2012 Поділитись Опубліковано: 27 лютого 2012 rgoroshko, Здравствуйте. Мне в этом проекте тоже очень не хватает подвала. Вы планировали подвал сами или с TMB? Не могли бы поделиться своими планами/чертежами? И еще если получится просчитать примерную стоимость дома, тоже очень буду благодарен если поделитесь информацией. P.S. А где по проекту проходит газовая труба из котельной в кухню и можно ли ее будет как-то спрятать? Посилання на коментар Поділитися на інших сайтах More sharing options...
doc07 Опубліковано: 28 лютого 2012 Поділитись Опубліковано: 28 лютого 2012 Подскажите кто как переделывал фундамент при смене керамоблоков с 25-го на 38-й. Посилання на коментар Поділитися на інших сайтах More sharing options...
Provodnik Опубліковано: 29 лютого 2012 Поділитись Опубліковано: 29 лютого 2012 Абсолютно согласен-замуровать вход в гараж с дома и с гостиной в сад.На первом этаже возле входа просится нормальный гардероб для всей верхней одежды и обуви+немного кухню можно увеличить.На счет 2 этажа-все от того сколько надо спален! Посилання на коментар Поділитися на інших сайтах More sharing options...
Гість kolovrat13 Опубліковано: 27 квітня 2012 Поділитись Опубліковано: 27 квітня 2012 Могу выслать Вам план дома в этом проекте в формате PDF со всеми размерами от поляков. Там вродебы всё пропорционально и помещается. Если еще есть возможность вышлите пожалуйста мне тоже данный проект. Буду очень благодарен. jirovdv@mail.ru Посилання на коментар Поділитися на інших сайтах More sharing options...
doc07 Опубліковано: 27 квітня 2012 Поділитись Опубліковано: 27 квітня 2012 "Сообщение от Pride Могу выслать Вам план дома в этом проекте в формате PDF со всеми размерами от поляков. Там вродебы всё пропорционально и помещается." Мне тоже вышлите если не затруднит profy78@mail.ru Посилання на коментар Поділитися на інших сайтах More sharing options...
Pride Опубліковано: 27 квітня 2012 Поділитись Опубліковано: 27 квітня 2012 Для всех любителей шары. Я высылаю не проект (РП), а план дома по этому проекту. Между прочим, скачанный мною, с оригинального польского сайта - авторов проекта Aplauz. Но я вышлю, а вы смотрите. Посилання на коментар Поділитися на інших сайтах More sharing options...
doc07 Опубліковано: 28 квітня 2012 Поділитись Опубліковано: 28 квітня 2012 А можно ссылку (можно в личку) на польский сайт, где этот проект находится. Посилання на коментар Поділитися на інших сайтах More sharing options...
Pride Опубліковано: 28 квітня 2012 Поділитись Опубліковано: 28 квітня 2012 Можно. И лучше здесь выложу. А то уже малость надоело за полтора года высылать. Ловите ссылку. 1 Посилання на коментар Поділитися на інших сайтах More sharing options...
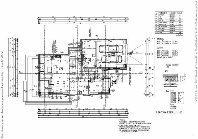
Ouzo Опубліковано: 4 червня 2012 Поділитись Опубліковано: 4 червня 2012 Тоже строю дом по этому проекту. Нашел чертежи 1:100 может кому интересно будет для будущего строительства. Проект не весь, но планы 2-х этажей и пару разрезов с размерами есть. Формат ПДФ. Пока могу только выслать, постараюсь найти ссылку откуда брал. Посилання на коментар Поділитися на інших сайтах More sharing options...
Рекомендовані повідомлення
Створіть акаунт або увійдіть у нього для коментування
Ви маєте бути користувачем, щоб залишити коментар
Створити акаунт
Зареєструйтеся для отримання акаунта. Це просто!
Зареєструвати акаунтУвійти
Вже зареєстровані? Увійдіть тут.
Увійти зараз