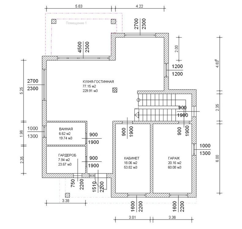
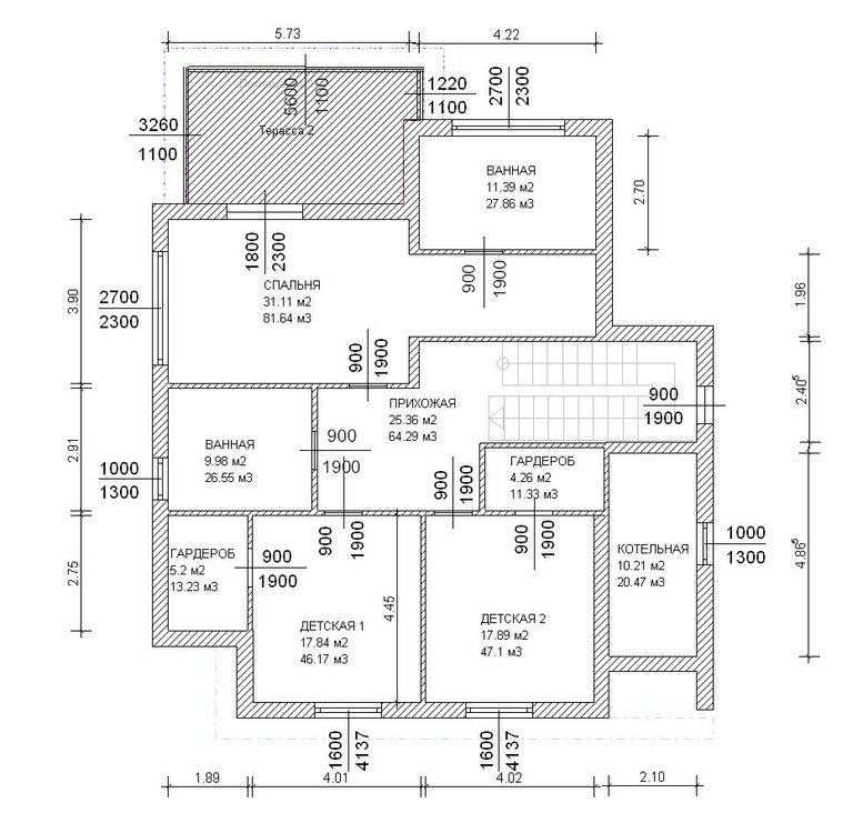
Spider_B Опубліковано: 16 липня 2010 Поділитись Опубліковано: 16 липня 2010 Уважаемые специалисты! Обращаюсь с просьбой помочь со схемой отопления и выбором типа котла и его мощности. На данном этапе строительства заводим газ в дом, и газовики требуют тех. характеристики котла. А просчетом отопления есть проблемы. В доме очень большой процент остекления. На первом этаже, в гостинной, вообще 2 стены практически сплошное окно и для отопления мы хотим сделать теплый пол (на всю площадь кухни-гостинной). На втором этаже, в детских окна под потолок (4 метра с лишним....). Внешняя сторона дома утеплена стиродуром, стены кирпичные (380 мм), перекрытия ж/б плиты. В общем нужна консультация специалистов. Планы и фото фасадов прилагаются. Заранее благодарю за участие. Посилання на коментар Поділитися на інших сайтах More sharing options...
murava Опубліковано: 16 липня 2010 Поділитись Опубліковано: 16 липня 2010 30-40 kW в котел. Лучше чугунный напольник. При большом кол-ве полов рассмотреть конденсационник (по бюджету). Бойлер 200-300л. Посилання на коментар Поділитися на інших сайтах More sharing options...
Korni Опубліковано: 16 липня 2010 Поділитись Опубліковано: 16 липня 2010 .....В общем нужна консультация .... Может быть, отдать на просчёт проектантам ваш дом? Это услуга без оплатна и предоставляется фирмами, торгующими оборудованием. Сформировать ТЗ и выдать его в несколько компаний - по результату будете иметь теплорасчёт и ориентировочную спецификацию. .... Лучше чугунный напольник. При большом кол-ве полов рассмотреть конденсационник (по бюджету). Бойлер 200-300л. 4000 евро в пакетнике Будеруса - G234 Котёл под 300кг Посилання на коментар Поділитися на інших сайтах More sharing options...
zuev Опубліковано: 16 липня 2010 Поділитись Опубліковано: 16 липня 2010 Пакетное предложение Buderus Logapak GB112 с навесным конденсационным котлом LogamaxPlus GB112-43 кВт, бойлером 200л, автоматикой Logamatic4121 - 3865 евро без НДС, то же самое, но с бойлером 300л - 3995 евро без НДС. У чугунного напольника больше расход газа и ниже КПД. Посилання на коментар Поділитися на інших сайтах More sharing options...
murava Опубліковано: 16 липня 2010 Поділитись Опубліковано: 16 липня 2010 4000 евро в пакетнике Будеруса .... Имхо, крутовато. Какой-то чугун попроще и внешний бойлер без особого напряга можно собрать существенно дешевле. Посилання на коментар Поділитися на інших сайтах More sharing options...
Korni Опубліковано: 16 липня 2010 Поділитись Опубліковано: 16 липня 2010 Имхо, крутовато. ..... Андрей, спрашивай! Тебе подберём попроще! :D p.s. а добавить туда фирменные смесительные модули и гидроколлектор впридачу ;) Посилання на коментар Поділитися на інших сайтах More sharing options...
murava Опубліковано: 16 липня 2010 Поділитись Опубліковано: 16 липня 2010 Ежели позволяют религия и деньги - запросто. Посилання на коментар Поділитися на інших сайтах More sharing options...
878 Опубліковано: 16 липня 2010 Поділитись Опубліковано: 16 липня 2010 Имхо, крутовато. Какой-то чугун попроще и внешний бойлер без особого напряга можно собрать существенно дешевле. Люди вы всех сразу досмерти запугиваете, весь дом можно легко с работой и котлом, водой, канализацией из ТеСе до 8000 баксов сделать. Посилання на коментар Поділитися на інших сайтах More sharing options...
zuev Опубліковано: 16 липня 2010 Поділитись Опубліковано: 16 липня 2010 Люди вы всех сразу досмерти запугиваете, весь дом можно легко с работой и котлом, водой, канализацией из ТеСе до 8000 баксов сделать. ...и вместо котла поставить унитаз от ТеСе, принцип работы схож: белый цвет, сбоку бак, вода по кругу циркулирует Посилання на коментар Поділитися на інших сайтах More sharing options...
romi9999 Опубліковано: 16 липня 2010 Поділитись Опубліковано: 16 липня 2010 Дом на 300 кв., при соблюдении требований ДБН по теплосопротивлению ограждающих конструкций, не должен потреблять больше 15 кВт на отопление. Можно отталкиваться от потребностей по ГВС. 1 Посилання на коментар Поділитися на інших сайтах More sharing options...
878 Опубліковано: 16 липня 2010 Поділитись Опубліковано: 16 липня 2010 мне плевать кто что говорит, таких домов мы, сделали много, так что, если человек пожелает, сделаем и унитаз поставим от ТеСе и вокруг него МДХ-а намотаем дабы ср..ть было приятней.8-) если интересует смету можно подготовить. И гарантию подписать, и страховочку выдать. Посилання на коментар Поділитися на інших сайтах More sharing options...
zuev Опубліковано: 16 липня 2010 Поділитись Опубліковано: 16 липня 2010 мне плевать кто что говорит, таких домов мы, сделали много, так что, если человек пожелает, сделаем и унитаз поставим от ТеСе и вокруг него МДХ-а намотаем дабы ср..ть было приятней.8-) если интересует смету можно подготовить. И гарантию подписать, и страховочку выдать. ...а на мансарде поставить пулемет, чтоб унитаз не воровали... Причем здесь каналья, тема изначально была по котлам? Или кто чем богат, как говорится? Посилання на коментар Поділитися на інших сайтах More sharing options...
878 Опубліковано: 16 липня 2010 Поділитись Опубліковано: 16 липня 2010 котел я предложу из серии виссмана 30 конденсатника или подешевле китурами 35 и котлы хорошие и человек будет доволен. Кстати входит в стоимость. Посилання на коментар Поділитися на інших сайтах More sharing options...
zuev Опубліковано: 16 липня 2010 Поділитись Опубліковано: 16 липня 2010 Если жаба давит, так и скажи что не умееш и не можешь, и надо печалится вся жизнь впереди, а ты зуев погоди.!!!!:D А котел я предложу из серии виссмана 30 конденсатника или подешевле китурами 35 и котлы хорошие и человек будет доволен. учись каналья Студент, что ли? Лет 18-20? Посилання на коментар Поділитися на інших сайтах More sharing options...
878 Опубліковано: 16 липня 2010 Поділитись Опубліковано: 16 липня 2010 Студент, что ли? Лет 18-20? Извини не правильно прочитал про каналью. поздно откоректировал. Спасибо за комплимент. Посилання на коментар Поділитися на інших сайтах More sharing options...
878 Опубліковано: 16 липня 2010 Поділитись Опубліковано: 16 липня 2010 про малолетку. не повериш тоже самое подумал.;) Посилання на коментар Поділитися на інших сайтах More sharing options...
murava Опубліковано: 16 липня 2010 Поділитись Опубліковано: 16 липня 2010 ....весь дом можно легко с работой и котлом, водой, канализацией из ТеСе до 8000 баксов сделать. Чепуху городите, причем почти явную.... Либо урежете функционал до безпардонной куцости, либо обеспечите себя работой каждую пятилетку на переделках ... либо будет благотворительность. 1 Посилання на коментар Поділитися на інших сайтах More sharing options...
878 Опубліковано: 16 липня 2010 Поділитись Опубліковано: 16 липня 2010 Мне приятно, но не один дом делали, и не одну многоэтажечку, за свои слова отвечаю, не люблю тратить деньги, на дорогие бренды, и за 10лет работы, убедился, что люди тоже. Посилання на коментар Поділитися на інших сайтах More sharing options...
murava Опубліковано: 16 липня 2010 Поділитись Опубліковано: 16 липня 2010 Если хотите доказать обратное - выложите здесь свою смету с ценами как именно Вы сделаете все вышеуказанное за 65 К грн. Я даже Вам упрощу задачу и сформулирую ТЗ: 300 квадратов, два этажа, 20 радиаторов нижних (да хоть и боковых классом не ниже чехов 60х90 + 60х100 вразнобой), 120 метров полов (80+40: поэтажно), головки на радиаторы, разводка без излишеств, три сушки. Рециркуляция, ГВС бочка 200л, котел даже не коденсационник - пусть будет любой нормальный чугуний в напольнике.... Труба, разумеется, ТЕСЕ. Вся. Если влезаете в сумму - добавьте регулятор на холл первого этажа и эквитермическое регулирование котельной группы. Не забудьте про каналию в ТЕСЕ, атоматику воды хотя бы с бочкой литров 200 ГА.... Выкладывайте смету. Топикстартер прочтет однозначно - и у Вас появится шанс сделать еще один достойный объект за 10 лет достойной работы на этом непростом поприще. Посилання на коментар Поділитися на інших сайтах More sharing options...
Korni Опубліковано: 16 липня 2010 Поділитись Опубліковано: 16 липня 2010 .....выложите здесь свою смету ..... "Мешки ворочать?" эт вряд ли. Посилання на коментар Поділитися на інших сайтах More sharing options...
murava Опубліковано: 16 липня 2010 Поділитись Опубліковано: 16 липня 2010 "Мешки ворочать?" эт вряд ли. Да ладно.... "Что написано пером - не вырубить топором" . Человек 10 лет же работает, пусть научит меня, нуба неразумного, уму - разуму. Учиться - оно всегда полезно. Посилання на коментар Поділитися на інших сайтах More sharing options...
Сергей 31 Опубліковано: 16 липня 2010 Поділитись Опубліковано: 16 липня 2010 - выложите здесь свою смету С погрешностью 10% = 110 тыс грн. Посилання на коментар Поділитися на інших сайтах More sharing options...
murava Опубліковано: 16 липня 2010 Поділитись Опубліковано: 16 липня 2010 Неет, я хочу видеть в строке "итого" этого функционала 8000 долляров США.... Посилання на коментар Поділитися на інших сайтах More sharing options...
Сергей 31 Опубліковано: 16 липня 2010 Поділитись Опубліковано: 16 липня 2010 Неет, я хочу видеть в строке "итого" этого функционала 8000 долляров США.... Шас, легко. Стоимость работ. ИТОГО: 8000 у.е. Посилання на коментар Поділитися на інших сайтах More sharing options...
murava Опубліковано: 16 липня 2010 Поділитись Опубліковано: 16 липня 2010 Так и знал что мои сметы станут образцом для подражания Посилання на коментар Поділитися на інших сайтах More sharing options...
Рекомендовані повідомлення
Створіть акаунт або увійдіть у нього для коментування
Ви маєте бути користувачем, щоб залишити коментар
Створити акаунт
Зареєструйтеся для отримання акаунта. Це просто!
Зареєструвати акаунтУвійти
Вже зареєстровані? Увійдіть тут.
Увійти зараз