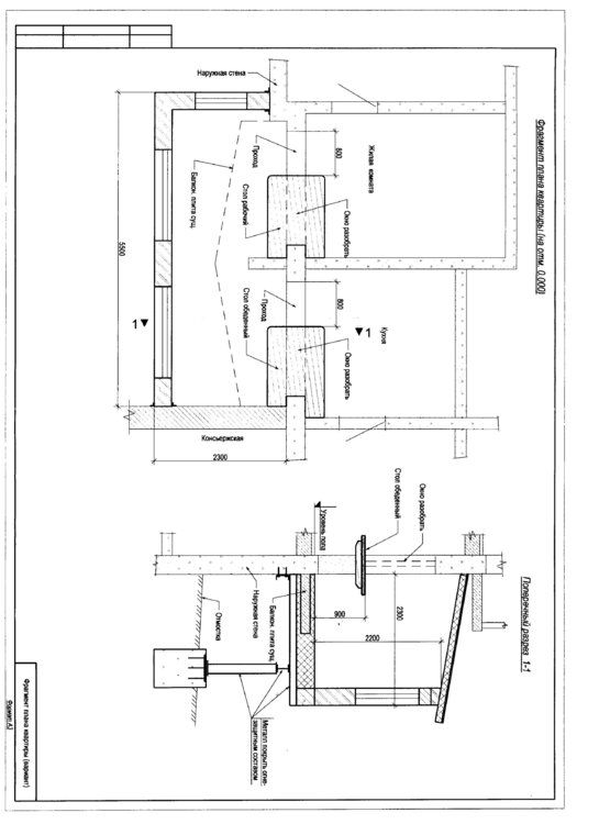
danilasss Опубліковано: 7 жовтня 2010 Поділитись Опубліковано: 7 жовтня 2010 Добрый день, Дамы и господа. Планируется перепланировка в квартире 16-тиэтажного дома с удлинением кухни путем выноса балкона (1-ый этаж, голосеевский р-н). Интересует вопрос - что нужно с юридической точки зрения для начала строительных работ? Нулевой цикл уже готов. Может кто-нибудь с подобным сталкивался - просветите. ПС схэма в приложении. Посилання на коментар Поділитися на інших сайтах More sharing options...
Vinka Опубліковано: 7 жовтня 2010 Поділитись Опубліковано: 7 жовтня 2010 Мы когда узнали, чего стоит построить пристройку законно, поняли, что это нереально и построили самостроем. Штраф - 51 грн. Но мы продавать квартиру никогда не будем, поэтому нам БТИ не страшно. А, вообще, по нормам, насколько я помню, шире чем 1,5 метра пристройка в принципе не может быть, так что если нормальное что-то пристраивать, то по-любому самостроем прийдется. Посилання на коментар Поділитися на інших сайтах More sharing options...
danilasss Опубліковано: 8 жовтня 2010 Автор Поділитись Опубліковано: 8 жовтня 2010 Мы когда узнали, чего стоит построить пристройку законно, поняли, что это нереально и построили самостроем. Штраф - 51 грн. Но мы продавать квартиру никогда не будем, поэтому нам БТИ не страшно. А, вообще, по нормам, насколько я помню, шире чем 1,5 метра пристройка в принципе не может быть, так что если нормальное что-то пристраивать, то по-любому самостроем прийдется. а там и не шире, там вынос составляет 1,1м. Да и пристройкой тоже трудно назвать. Это увеличение кухни. Без фундамента (на колоннах). Самостроем к сожалению низзя, ибо нужен будет новый техпаспорт (будет менятся система отопления). А сикока Вам озвучили денег это стоит? Посилання на коментар Поділитися на інших сайтах More sharing options...
Vinka Опубліковано: 8 жовтня 2010 Поділитись Опубліковано: 8 жовтня 2010 У нас ширина 3 м. По деньгам не помню, это было 4 года назад. А систему отопления мы тоже меняли, в Жэке договорились, их же спец и переносил батарею. 1 Посилання на коментар Поділитися на інших сайтах More sharing options...
danilasss Опубліковано: 8 жовтня 2010 Автор Поділитись Опубліковано: 8 жовтня 2010 Перенос батареи - это в моем слючае "как 2 пальца об забор", дом кооперативный и собств сантехник за 300 грн хоть на потолок прилепит. А закавыка именно в необходимости согласованного проекта перепланировки. Отопление будет ваще автономным. Посилання на коментар Поділитися на інших сайтах More sharing options...
Рекомендовані повідомлення
Створіть акаунт або увійдіть у нього для коментування
Ви маєте бути користувачем, щоб залишити коментар
Створити акаунт
Зареєструйтеся для отримання акаунта. Це просто!
Зареєструвати акаунтУвійти
Вже зареєстровані? Увійдіть тут.
Увійти зараз