Перейти до публікації
Пошук в
  • Додатково...
Шукати результати, які містять...
Шукати результати в...

Дом с видом на устье Самары

goshavt

Рекомендовані повідомлення

Две стены уже залито

211120121753.thumb.jpg.7e010fe26feb7f39aedb8a45551b52bf.jpg 211120121754.thumb.jpg.ff4f4d4846aa3d895a4d93f8aebdac43.jpg 211120121755.thumb.jpg.c29c546c9f15ae29b61c5736b82c77f7.jpg 211120121756.thumb.jpg.06035ef77f72bb9ca57dc17e18efd444.jpg

и хлопцы уже заливают третью стену.

IMG_3802.thumb.JPG.e0eb178079754dbe256a5a7520b0716b.JPG IMG_3803.thumb.JPG.b619491cc779a1949577d0a212f47e49.JPG IMG_3804.thumb.JPG.0f50501581e4a8aa1deb01f0a055f127.JPG IMG_3805.thumb.JPG.e96d8d9c87bc442508200848a9ceba6a.JPG

А МАЭСТРО контролирует процес

IMG_3806.thumb.JPG.02ac5d73b5c4361d1b8957230c4430e2.JPG

и уже заказал кирпич для внутренних несущих стен и перестенков.

IMG_3807.thumb.JPG.5b9af2eeadedce60b688e01b179618c3.JPG IMG_3808.thumb.JPG.3eeea272e10b2f5ed9df3ef164e43c8e.JPG

Посилання на коментар
Поділитися на інших сайтах

Слава богу погода удалась и есть возможность продолжать работы.

Хлопцы вяжут арматуру на последнюю стену

1633761895_0420.thumb.jpg.d3f14d857f2ccc7a136672534b076d32.jpg 1040390217_0421.thumb.jpg.c82360ef0fa0e9075f383c46f0f170a3.jpg 183853845_0422.thumb.jpg.274c38cdf4e0f76f33230bc89a3ec93d.jpg 2037125172_0423.thumb.jpg.1437c902c4d2aa263ff1bd051c9415c6.jpg 395302815_0424.thumb.jpg.9d71c2c7e3fc7097fd90abf0ef0fcf14.jpg 2069791011_0425.thumb.jpg.80eba710656cf0a3626885e956ef1792.jpg

Посилання на коментар
Поділитися на інших сайтах

Монтаж закончен и заливаем четвертую стену

241120121757.thumb.jpg.39a756ee5d5a82434c8b5bb6de04f514.jpg 241120121758.thumb.jpg.33e30a9633d8e00a0e24c0ea7e42a556.jpg 241120121759.thumb.jpg.35d1aa6b44b90d714247eb2a49cca193.jpg 241120121762.thumb.jpg.cab4bc9748868bf82752cec6ae2aa1b0.jpg 241120121763.thumb.jpg.1d0e518a6e358fc219bcffe517ba53a3.jpg 241120121764.thumb.jpg.430b5c66997c95cd328a3fcac6c9b037.jpg

МАЭСТРО как всегда лично контролирует процесс

644292360_0426.thumb.jpg.8dc30e9c895b88d08c3c5935452e657f.jpg 1897892123_0427.thumb.jpg.40e709e2ffaffaf435352a2dfa5249bf.jpg 1811886944_0428.thumb.jpg.ee15e564bd329e0b466b7a465b4aa37b.jpg 560654448_0429.thumb.jpg.96a21ad519da51cd9296d9f0795c4327.jpg 241120121760.thumb.jpg.1c372438eb4107c19fb5eb3770418ba5.jpg 241120121761.thumb.jpg.a58044ea3b0e1ca5fb220ca670205f06.jpg

Посилання на коментар
Поділитися на інших сайтах

Погода продолжает баловать.

Сняли опалубку с четвертой стены и каменщики начали класть внутренние стены:

IMG_3809.thumb.JPG.7ac4f32072763e036fdb29acd8fc1e18.JPG IMG_3810.thumb.JPG.526d94f66b2654b8c2369bd59e0508a4.JPG IMG_3811.thumb.JPG.e46858bff9ef3f8e671128e8a7b5165a.JPG IMG_3812.thumb.JPG.e393b952b6b4512809c3bc450fb201d6.JPG IMG_3813.thumb.JPG.0caebf210cf82e3e96c3b081b3cbda77.JPG IMG_3814.thumb.JPG.ec23e5348c0d184ec5afcab65b5b8484.JPG IMG_3815.thumb.JPG.92e36b7550174b84c3ddad5949bd6f51.JPG IMG_3816.thumb.JPG.e125c2a703cfed6bd924f4c8f17085d1.JPG IMG_3817.thumb.JPG.8cafb9e9ea3f9b510dd1afe0b8e40b6c.JPG IMG_3818.thumb.JPG.3d693347ade533796c380fdcafc4eab9.JPG IMG_3819.thumb.JPG.7d6a8c1d30ade8522c1f8c122dbcb3e1.JPG

Посилання на коментар
Поділитися на інших сайтах

Темнеет быстро и когда приезжаем на стройку уже почти ничего не пофотографируешь, но все же пару кадров удалось сделать - внутренние несущие стены готовы и бетонщики уже смонтировали опалубку для армопояса

1001269368_0430.thumb.jpg.5d577805c1a7e4b228ada8f56c53428a.jpg 396714553_0431.thumb.jpg.662a44c12e6f7c7f9b55f04b2974be68.jpg

 

Пытался на форуме найти решение, как в моем случае правильно сделать облицовку кирпичем, на что его опирать, но ответа так и не получил, пришлось принимать решение самостоятельно - армопояс расширил с 400 мм до 550 мм, сделав таким образом бортик 170 мм для утеплителя и облицовочного кирпича.

 

К сожалению, больше фото в 2012 году мы не делали - все было как-то галопом и фотографировать было некогда.

Как удавался хороший день, так работы и продолжались.

Бетонщики докрутили арматуру на армопояс, залили бетоном, а когда он выстоялся МАЭСТРО привез плиты и сам смонтировал их. Ночью прошел дождь и когда машины приехали оказалось, что заехать к нам по нашему подъему они не могут - нужно объезжать, тут ещё соседи прибежали, что мол мы им дорогу разбиваем. Крановщик вообще наотрез отказался заезжать, типа я там застряну, хотя он был уже на участке и знал наши условия, но все же сказал что заедет, а когда приехал, то не успев вылезти из машины начал причитать, что он тут все знает и он тут не заедет. Вобщем после получаса препирательств крановщик был послан подальше, и в течении получаса был найден другой кран, который приехал через пару часов и все сделал. Вот только, как я писал выше, машины с плитами наделали таких канав на дороге, что пришлось завозить машину шлаку чтобы их засыпать. В том месте копалась канава под водопровод, ну и под весом машин суглинок хорошо утрамбовался.

 

29 декабря в подвале была установлена металлическая дверь, а на окнах сварены решетки. Проем над эркером, топочной и над лестницей заложили и забили деревянными щитами и оставили зимовать до весны.

Змінено користувачем goshavt
  • Лайк 1
Посилання на коментар
Поділитися на інших сайтах

Вернемся немного назад, так как фото за декабрь таки нашлось - видно вчера у меня уже глаза закрывались и не увидел эту папочку.

Каменщики кладут перестенки, а бетонщики уже вяжут арматуру и ставят опалубку для армопояса:

011220121769.thumb.jpg.d0919b191728b0f0f4772d57cfa52f46.jpg 011220121770.thumb.jpg.2fc546fa63e19bd6aa3fcb9e8e893609.jpg

Посилання на коментар
Поділитися на інших сайтах

Залили армопояс и колоны, слава богу морозов не было, и никаких добавок в бетон добавлять не пришлось, хотя МАЭСТРО говорил, что на заводе откуда везут бетон, там все же в зиму что-то добавляют:

443588285_0435.thumb.jpg.9fe90fddc46ff358d76616a9625a7adc.jpg 755435999_0436.thumb.jpg.943b8b69d62c1ebd4d598b6e04527ea1.jpg 1399396907_0437.thumb.jpg.45c1a01c327460ed0270f3195f5572d2.jpg

Посилання на коментар
Поділитися на інших сайтах

И с первым снегом!!!

Только смонтировали плиты, как на следующий день ударил мороз и выпал снег, но мы к концу света готовы - бункер есть:

151220121773.thumb.jpg.437650108e02eba0f00538e3e67d3391.jpg 151220121774.thumb.jpg.629ba568fe26ae6141562eb798df6c58.jpg 151220121775.thumb.jpg.58a395be66d570b1e70439d220f64bd8.jpg 151220121776.thumb.jpg.d7adcd0e7fb759ce2cda3f58ce059381.jpg 151220121777.thumb.jpg.602c8b06e3293eeb19294b1629fd5b8e.jpg 151220121778.thumb.jpg.26351382bf5a427517c090fcd87d24d4.jpg 151220121779.thumb.jpg.14807f5b67e15a84238dcc661d781560.jpg 151220121780.thumb.jpg.70d15d25f0629c6a94856bbb835d0923.jpg 151220121781.thumb.jpg.a6a73fa33c2c972edbaf4776177a0562.jpg 151220121782.thumb.jpg.917b15863231f999044852fd7c8761d1.jpg 151220121783.thumb.jpg.b0c96726167522f06ad4c5d97a7e103f.jpg 151220121784.thumb.jpg.cd4f087829e8cbbb4450510d5523cbba.jpg 151220121785.thumb.jpg.f052731a90fc8d935ef1cc9d69193200.jpg 151220121786.thumb.jpg.f7666d65aad381689c4ff5e9dd19d1c6.jpg 151220121787.thumb.jpg.648d599acdfad8186148b68139c70543.jpg

 

Просматривая фото увидел, что дверь в подвале уже стоит. Значит 29 декабря мы варили только решетки и закрывали не залитые проемы.

Хотелось бы закончить, но решили не испытывать судьбу и отложить до весны.

 

Сезон 2012 закончен.

  • Лайк 2
Посилання на коментар
Поділитися на інших сайтах

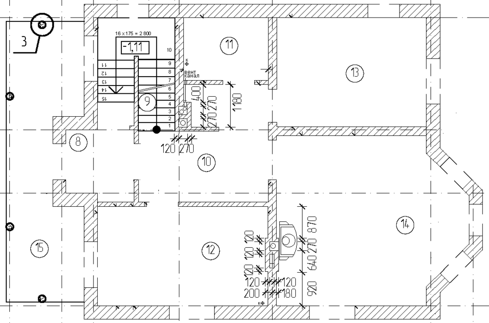
Пока на стройке затишье, решили просмотреть чертежи и ещё раз подумать все ли нас устраивает. Нарисовал проект в Арконе, покрутили его и так и этак. Где-то подвинули перестенок, где-то передвинули или изменили дверь. На мансардном этаже поправили высоту окон, чтобы была такая же как и на первом. По ходу дела обратились к Паше крышнику (на форуме ТТ), чтобы просчитать проект крыши.

 

Много времени потратили на решение вопроса, где и как будут проходить вентканалы и дымоходы:

 

По одной стороне дома должен быть дымоход и вентканал из топочной в цокольном этаже, а выше к ним должны добавится вентканалы из санузов первого и мансардного этажей.

 

Тут особых проблем не было, кроме того что не заложили в стене и армпоясе цоколе проем под дымоход и вентканал, в результате получалось, что они идут рядом с кирпичной стенкой в 250 мм, и вокруг них еще перестенок в полкирпича, зашивающий эти каналы.

 

По другой стороне дома должен быть дымоход от камина, вентканалы из цоколя, кухни и ещё одного санузла на мансардном этаже.

 

А здесь застряли: камин планируется возле внутренней несущей стены толщиной 250 мм, и как в ней оставить канал для гильзы дымохода камина толщиной 200 мм и как в этой же стене разместить венканалы?

Как это все хозяйство должно пройти через лежащий на этой стене армопояс? Задавал вопрос на форуме, но к сожалению, ответов было мало, да и полученные ответы меня не устроили. Перечитал кучу информации по дымоходам и венканалам.

 

И в конце пришел к следующему решению:

 

Первый этаж

795451439___3.thumb.png.7889945f94345ec093846f70bc91d4d9.png

Мансардный этаж

664193812___4.png.16ff13d469be6e0d517dc61c3a7e7577.png

 

Участок стены где проходит дымоход камина и вентканалы сделать толщиной 380 мм.

Канал для гильзы дымохода камина оставить открытым с одной стороны и после монтажа гильзы зашить текстолитовой плитой и хорошо изолировать. В пространство вокруг гильзы вывести венканалы из цоколя.

Каналы из кухни сделать размером 140х130 и 140х270 внутри участка стены в 380 мм.

Посилання на коментар
Поділитися на інших сайтах

Приехав по весне на стройку обнаружили в цоколе бассейн. Это вообщем и ожидалось, но все же неприятно. Пришлось дважды черпать вводу и вытаскивать наверх:

070420131815.thumb.jpg.a687d23b9c7a61cdaaac0a907901f61a.jpg 070420131816.thumb.jpg.b78abbe23c9b68a77c6e6658731eda0d.jpg

 

Обнаружился неприятный дефект - треснул угол плиты,

вид сбоку

070420131817.thumb.jpg.8c34d9073588e110845a84bae8243375.jpg 070420131818.thumb.jpg.a3bc3c7ea6a8b89683304964b7bacf1c.jpg 070420131819.thumb.jpg.30aed36692b3b76320c11b756091df72.jpg

и вид с торца

070420131820.thumb.jpg.e1d39e59dfb076c767a552b74758995b.jpg

К сожалению, как было после монтажа я не видел, то ли при монтаже треснуло, то ли при доставке, а может и зимой вода попала и морозом порвало...

 

Зато рябинка наша перезимовала без проблем

070420131827.thumb.jpg.8167b17e4a718193756bc5fe72e04697.jpg

 

Чтобы больше не черпать решили все же накрыть пленкой

IMG_3893.thumb.JPG.2fa19db01f647482f7f5e50f983e8478.JPG

Хотя как показал опыт - зря, сейчас после дождей в цоколе опять стоит вода - наверное пока крышу не поставим, избавится от воды все равно не получится.

 

И несколько фоток цоколя

IMG_3894.thumb.JPG.a5cf82f7fa6041b7748a41f22dc88aca.JPG IMG_3895.thumb.JPG.a5dcfeab81fd0262170a79e16180245b.JPG IMG_3896.thumb.JPG.e59ab36c18df9e15245471cb11dfbda2.JPG IMG_3901.thumb.JPG.0a4d5718ee00497df5f2621c2af82351.JPG

 

Рябинка уже распустилась

IMG_3897.thumb.JPG.449416284cf37166dd504e98ab27ccb8.JPG

Посилання на коментар
Поділитися на інших сайтах

Жена же кинулась во всю огородничать - наделала грядок и насадила всякой всячины:

IMG_3889.thumb.JPG.d691e2ff92f19843b87932e7b0791719.JPG IMG_3890.thumb.JPG.4679f0f278d709c78a5d4ee9f1586675.JPG IMG_3891.thumb.JPG.6871f28ca51a66999f7c39c4a5b72d8e.JPG IMG_3892.thumb.JPG.a607459bce760f566c34f1fae88db052.JPG IMG_3898.thumb.JPG.c7d6725f2c8c4dff4541e77a5995f41d.JPG IMG_3899.thumb.JPG.f27e9347f6ef1e99b009e6cf2bda76b8.JPG IMG_3900.thumb.JPG.301c93459004a58a9052205500019698.JPG

 

Чтобы сэкономить немного денег, гидроизоляцию и обратную засыпку решили делать сами. Закупили в ТЕХНОНИКОЛИ битумный праймер, мастику и экструдированный пенополистирол 50 мм. Все привезли без проблем, но одна пачка была разорвана и листы покоцаны. Также было повреждено насколько листов в других пачках. Грузчики работают очень не акуратно, видно просто покидали пачки в машину и бог с ними... Правда, после некоторой дискусии с местным представителем, сошлись на том, что мы не будем предъявлять претензий, а доставка будет за их счет.

IMG_3902.thumb.JPG.08c3e5ffcf689ced91493ea3c0ba778f.JPG IMG_3903.thumb.JPG.3bf58bc28774a94df354ed38e1b721c3.JPG IMG_3904.thumb.JPG.122449f1ce97028a635d20be09235979.JPG IMG_3905.thumb.JPG.5fc459979da47cec4cb42313606f0a58.JPG IMG_3906.thumb.JPG.4d3b98cc7fe9487ba0a11bb70b6fa5a7.JPG IMG_3907.thumb.JPG.17f25f9357019909a40a7409c810537b.JPG

Посилання на коментар
Поділитися на інших сайтах

Кто шашлыки жарит, а мы делаем гидроизоляцию

040520131842.thumb.jpg.a6918d76672d0388655ac068cc6b5320.jpg

 

Во время разгрузки машины от ТЕХНОНИКОЛИ я умудрился оступится и свалится в котлован, слава богу цел, но подвернул ногу в стопе и в колене. Как показал осмотр у доктора - потянул связки. В результате пару дней пришлось посидеть дома, с замотанной эластичным бинтом ногой - доктор предлагал гипс положить, чтобы ногу зафиксировать, но я отказался. В это время жена с друзьями заканчивала первый слой гидроизоляции. Отсидев дома пару дней не выдержал и прискакал на стройку, пока работать не мог просто фоткал, а потом и сам полез мазать

 

Намазали все праймером и нанесли первый слой мастики

IMG_3911.thumb.JPG.fbd1e6dcaa758ec24cbd9828f7d361c7.JPG IMG_3912.thumb.JPG.13b39285ac90f7ce2cf07a1848d5de19.JPG IMG_3913.thumb.JPG.3979acf3b853603bc71738c3d87bcba6.JPG IMG_3914.thumb.JPG.69c65df19c95305232c1af5534d90a3f.JPG

 

Из полученного опыта, сделал вывод, что праймерить нужно щеткой и хорошо промазывать каждую дырочку в бетоне, иначе потом мастика вытекает из этих дыр давая доступ воде. Мастику можно наносить и валиком, но щеткой все же лучше получается промазывать да и слой получается толще.

Посилання на коментар
Поділитися на інших сайтах

Вернулись наши бетонщики и начали готовить опалубку и вязать арматуру для монолитных участков перекрытий.

100520131849.thumb.jpg.50258b367270c7d6584e489f0f78ed03.jpg

Также из подвала мы решили сделать бетонную лестницу.

100520131852.thumb.jpg.f72304bbeed25a5c9cfe0255e8fd9cf7.jpg100520131853.thumb.jpg.6a3a224acbcd682a064108fd456f339d.jpg

 

Изначально, крыльцо планировалось сделать из швеллера, на который на нижнюю полочку положить профлист и залить бетоном, но МАЭСТРО убедил меня, что лучше просто залить по ровной опалубке. Им что делать горизонтальную опалубку, что использовать профлист, без разницы, деньги за работу те же, а так ещё нужно покупать профлист да и низ будет неровный. От профлиста отказались, а швеллер остался так как был закуплен ещё зимой, и решили его смонтировать, но поскольку ночью никто на стройке не дежирил, придя однажды утром мы обнаружили, что швеллер исчез - я думал он уже приварен, а как оказалось хлопцы его только прихватили сваркой до окончательного монтажа.

Швеллер конечно жалко, но может оно и к лучшему, не будет заботы красить его каждый год. МАЭСТРО сказал они сделают просто опалубку вокруг крыльца и зальют.

Но с тех пор мы ночуем на стройке, можно сказать уже живем в нашем строительном домике.

Сделал несколько фото, как дымит наша ТЭС на город, просто жуть как люди этим дышат

100520131848.thumb.jpg.6b181ff040553096c44ec59e9f66f73e.jpg100520131850.thumb.jpg.3c4965e34635e293984fc840c416616b.jpg100520131851.thumb.jpg.a40e69b9c1f4cd928868abed3988b99d.jpg

Посилання на коментар
Поділитися на інших сайтах

Праздники закончились, а наша стройка продолжается.

 

Клеить пенополистирол на битумную мастику не рекомендуют, так как мастика на основе уайт-спирта, что может пагубно скзаться на пенополистироле, но как сказал представитель ТЕХНОНИКОЛИ, адекватного решения по приклейке пенополистирола на битумную мастику на основе органических растворителей нет.

Пораскинув мозгами решили, что даже если растворитель как-то разъест пенополистирол, то вряд ли все 50 мм, так что решили клеить прям на второй слой мастики

110520131854.thumb.jpg.09c1472c893c1bf209fab8481d253f16.jpg110520131855.thumb.jpg.acd8180596c5bacab314edf8db51a148.jpg110520131861.thumb.jpg.5964f41d4dae594e48adca9fdf70d1f7.jpg

 

В армопоясе болгаркой вырезал проемы под дымоход и вентканал из топочной

110520131856.thumb.jpg.a63f18976d595c2acd0b95113c8d2969.jpg

 

И бетонщики продолжают работать

110520131857.thumb.jpg.86fbf30bfc671024963f0a2a72cafa4a.jpg110520131858.thumb.jpg.f6ded8bd9f19e7f366342f03667a4a77.jpg110520131859.thumb.jpg.222990e878e3b20af99a6b9206a576d3.jpg110520131860.thumb.jpg.06c9d7a7287378f3af9bf1538a185e15.jpg110520131862.thumb.jpg.a01004bdfd00c7c0d34e4ee59a6b9794.jpg110520131864.thumb.jpg.cb21074c0e16311c14903c08743042f5.jpg

 

А наша рябинка вот вот зацветет

110520131863.thumb.jpg.ffcc00d04b85b6b14cfb542d76cc685b.jpg

Посилання на коментар
Поділитися на інших сайтах

Сделал утром несколько фоток утреннего неба

120520131865.thumb.jpg.d7b2162af03fb7d9e4574841168f1220.jpg120520131866.thumb.jpg.3939603498a0242ed17eca143ff6127b.jpg

На грядках у жены уже и лучок, и редиска и даже помидорчики зеленеют

120520131867.thumb.jpg.98fa44811a45fe4be88b6a0fdebefe97.jpg

  • Лайк 1
Посилання на коментар
Поділитися на інших сайтах

С трех сторон обмазаны и наклеены три ряда пенополистирола - верх тяжело доставать и упирать не во что - решили сначала низ сделать, а потом верх и сразу ещё утеплить 100 мм пенопластом, который будем крепить дюбелями прямо к стене.

IMG_3915.thumb.JPG.d69e64d451a48eb8e94ad5d1699bf1b8.JPG

Под крыльцом стоит опалубка и пока пришлось отложить там работы до тех пор пока, хлопцы не снимут опалубку.

  • Лайк 1
Посилання на коментар
Поділитися на інших сайтах

В Эпицентре купили тачку и рулон пленки, чтобы прикрыть пенополистирол, написано он не любит ультрафиолета, да и как дополнительный слой гидроизоляции не помешает.

 

Когда сложили все на тачку получился танк

140520131871.thumb.jpg.e1812519aaac6cef7f2b963d2ebe55a3.jpg

  • Лайк 1
Посилання на коментар
Поділитися на інших сайтах

Вчера вечером до темноты и сегодня утром натянули пленку на пенополистирол. Сначала думали в один слой, но когда развернули оказалось что в пленке в нескольких местах дыры, заводской брак.

Пришлось вешать в два слоя, чтобы их как-то перекрыть.

150520131872.thumb.jpg.9ddb64f6a6eb426224bc0b9fb30ed810.jpg

На солнышке пленка нагрелась и вздулась парусом

IMG_3918.thumb.JPG.7fe75aeecfa7e2b9e7f16410693a27c8.JPG IMG_3919.thumb.JPG.e650e5e7f7b19f99793ae886d3702045.JPG

Сегодня будут заливать монолитные участки, и хлопцы заканчивают монтаж опалубки и арматуры, а МАЭСТО все проверяет

IMG_3916.thumb.JPG.aadb1b3066553673700b8cd648ee2399.JPGIMG_3917.thumb.JPG.366c2c2c472e8355a688c2dc7af22f06.JPG

Армировка лестницы

IMG_3920.thumb.JPG.07905dcc48847dc8419ea4bd884899cd.JPGIMG_3921.thumb.JPG.4fd6965cce391d6aead4a59bf529ee2f.JPGIMG_3922.thumb.JPG.f85a6dc4fac88e86f35153835b1a0dbd.JPG

Армировка монолитного участка вокруг дымохода

IMG_3923.thumb.JPG.b4773b51287f274803b58c39f6d0a470.JPG

Армировка перекрытия эркера

IMG_3924.thumb.JPG.30d9d9870728c7b1a696d130387fa7ae.JPG

Армировка крыльца

IMG_3925.thumb.JPG.2a3097503be18fbb125d034c46053b1b.JPGIMG_3926.thumb.JPG.b5b1b9447786973ddf1553a8cce5d2ac.JPGIMG_3927.thumb.JPG.b33c31c534737a6f0be39537a5901616.JPG

Треснутую плиту МАЭСТРО предложил дополнительно проармировать и забетонировать. Для этого сделали штробу

IMG_3930.thumb.JPG.d4edd984615badf2cc049b232b72871c.JPG

Посилання на коментар
Поділитися на інших сайтах

Приехал бетон и началась заливка

IMG_3931.thumb.JPG.424b305e6ccb52d42bd2ca0b8c337f12.JPG IMG_3932.thumb.JPG.5c039c45434f67c5f71858f224bddb3a.JPG IMG_3933.thumb.JPG.199eaa22e99e3a3777c184f8e06766e8.JPG

Цоколь высокий и бетоновоз едва достает до верха крыльца и эркера, и с боку подъехать никак - носить только вручную.

Слава богу бетон жидкий и лестницу получилось заливать через крыльцо

IMG_3934.thumb.JPG.506acaec9a70b170e9ed3b2f45c7bb10.JPG IMG_3935.thumb.JPG.e370ce9a5bb42afe5ef55eefbc401c7f.JPG IMG_3936.thumb.JPG.31db6e0949c41384b7eb589e04b3de3e.JPG IMG_3937.thumb.JPG.4d7b5b0596f3a91b0ea2f7e00e009ef4.JPGIMG_3938.thumb.JPG.3bfb2b8e4b9f6fea9294e39894c3d293.JPG

 

И бетонируют треснувшую плиту

IMG_3939.thumb.JPG.f7ff62d073e53333e44ecae5f9809310.JPG IMG_3940.thumb.JPG.3d9dc05cc3f19295df2faf2b67a33798.JPG

МАЭСТРО не стесняется взять мастерок в руки и лично закончить эту работу

IMG_3941.thumb.JPG.2802005b4e68150e060c4a0a119b4592.JPG IMG_3942.thumb.JPG.13f9788795c09a9f9f07f3212e7ccb53.JPG

Посилання на коментар
Поділитися на інших сайтах

Дальше заливают лестницу

IMG_3943.thumb.JPG.482c5700475bca71cf20eeb5a1627dc6.JPGIMG_3944.thumb.JPG.3ef944f800efdce8f0621bef05a7a515.JPGIMG_3945.thumb.JPG.369aad7b9c8a72b9d50646b9857092bb.JPGIMG_3952.thumb.JPG.d70f243f228479e331edf4752ccfd2a2.JPG

и эркер

IMG_3946.thumb.JPG.f44b359b849eb43dbde47e5cfdb8ec4e.JPGIMG_3947.thumb.JPG.c4fd09d9df508b46d280e321fe704784.JPGIMG_3948.thumb.JPG.564d13da8796be7ca12e195f462f20c1.JPG

А дальше вручную участок над топочной

IMG_3949.thumb.JPG.30521ee69e94f7adeac50eb06083572e.JPGIMG_3951.thumb.JPG.fcc40b905c6f522dc73335eca9f92e60.JPG

Коля с вдохновением делает ступеньки

IMG_3950.thumb.JPG.6980dcfdd300898feeafa462511135f2.JPGIMG_3953.thumb.JPG.118ed0ba59da3eeaf6c8b376ed8324e3.JPGIMG_3954.thumb.JPG.30ccf4c8d45426a8dba689cf8e22d584.JPGIMG_3955.thumb.JPG.b28759c7f2d256721c2a26b0f67dd2f9.JPGIMG_3956.thumb.JPG.e7169c3d0ad047a74c425d25bcd1be54.JPG

Посилання на коментар
Поділитися на інших сайтах

Створіть акаунт або увійдіть у нього для коментування

Ви маєте бути користувачем, щоб залишити коментар

Створити акаунт

Зареєструйтеся для отримання акаунта. Це просто!

Зареєструвати акаунт

Увійти

Вже зареєстровані? Увійдіть тут.

Увійти зараз
×
×
  • Створити...