Перейти до публікації
Пошук в
  • Додатково...
Шукати результати, які містять...
Шукати результати в...

проект достройки

serdme

Рекомендовані повідомлення

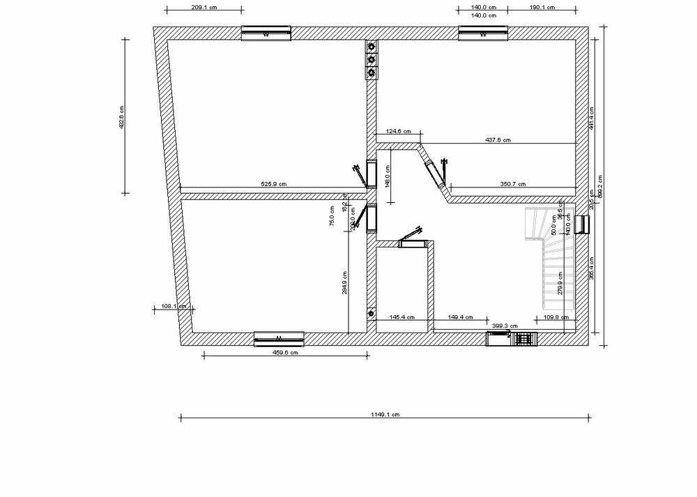
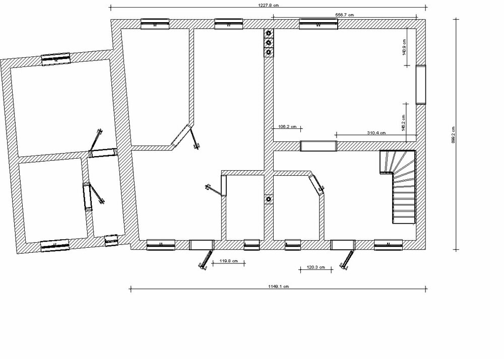
Уважаемые товарищи!

Прошу обратить внимание на то, что у меня получилось нарисовать в Арконе. Планируем делать достройку, форма - неправильная трапеция без никаких выкрутасов, бюджет - минимальный. Достройка на 2 входа, остатки старого + часть 1-го этажа - одна кввартира; вторая часть 1-го этажа+2-й этаж полностью - Вторая кв

1fl.thumb.jpg.abdf3bd0eff049ec4186b1e693e6beee.jpg

2fl.thumb.jpg.d9944064290e24b52360fab5102f8879.jpg

01.thumb.jpg.2ece20b574b30b553eb3b1bb5d4258aa.jpg

02.thumb.jpg.d1a13afc9efc29cd0a09424cd454bf72.jpg

04.thumb.jpg.2fec7e07b49b4d75fde6b7ab4b4067a0.jpg

Посилання на коментар
Поділитися на інших сайтах

Для наглядности показываю что и как внутри (нарисовано еще не все)

 

Жду Ваших комментариев.

05.thumb.jpg.3abb188d66ba5ca7f045105f11a75715.jpg

06.thumb.jpg.299e3c467d7d10b2abf7af1f262ec65f.jpg

07.thumb.jpg.0e8aa86159064bfb2744f7642f34b7cf.jpg

Посилання на коментар
Поділитися на інших сайтах

Створіть акаунт або увійдіть у нього для коментування

Ви маєте бути користувачем, щоб залишити коментар

Створити акаунт

Зареєструйтеся для отримання акаунта. Це просто!

Зареєструвати акаунт

Увійти

Вже зареєстровані? Увійдіть тут.

Увійти зараз
×
×
  • Створити...