Перейти до публікації
Пошук в
  • Додатково...
Шукати результати, які містять...
Шукати результати в...

Помогите спланировать ванную.

solotin

Рекомендовані повідомлення

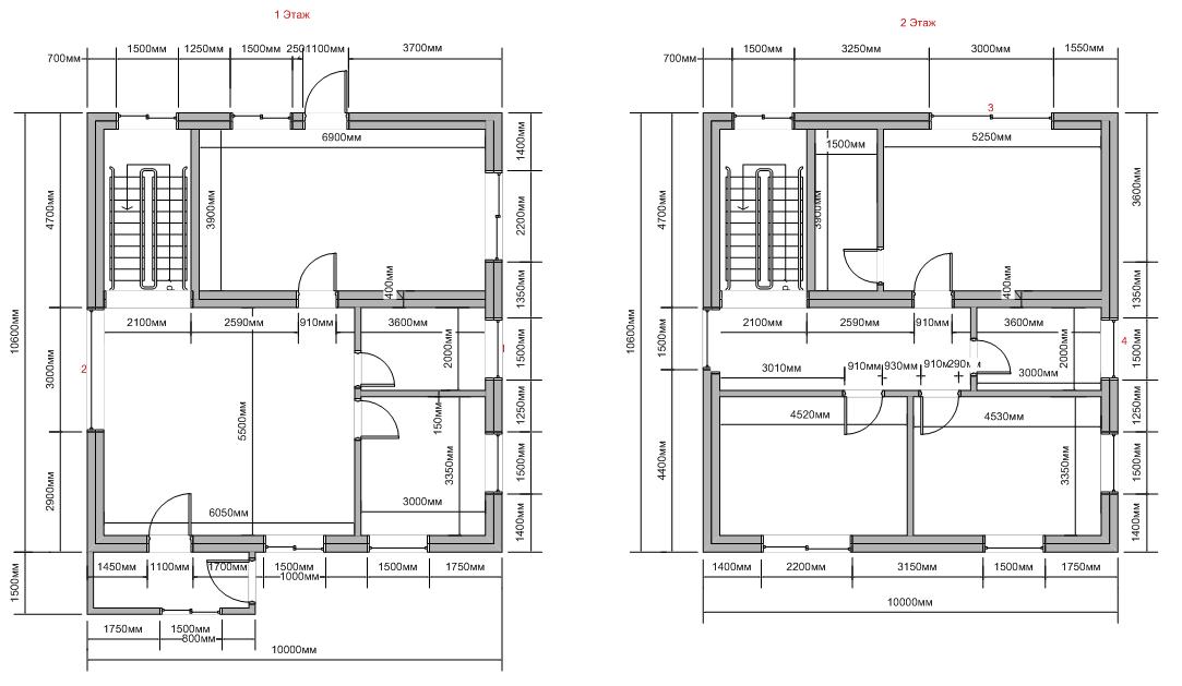
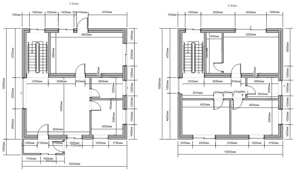
Помогите. Как разместить стиралку, ванную, раковину, унитаз и пологенцесушитель в ванной на 1 этаже. Ванная 2*3м. Ванная на плане прилягает к правой внешней стенке. Канал с комуникациями (отопление канализация водопровод)в центральноц несущей стенке, в правом верхнем углу.

290166280_21_12_10_.thumb.JPG.e54b6db8a2461d823c73a90ac7025f79.JPG

Посилання на коментар
Поділитися на інших сайтах

  • 3 тижні потому...
По дизайну ванной комнаты почитайте на студия "Дизайн и Архитектура". Здесь даны хорошие советы по оформлению ванны.
Посилання на коментар
Поділитися на інших сайтах

Створіть акаунт або увійдіть у нього для коментування

Ви маєте бути користувачем, щоб залишити коментар

Створити акаунт

Зареєструйтеся для отримання акаунта. Це просто!

Зареєструвати акаунт

Увійти

Вже зареєстровані? Увійдіть тут.

Увійти зараз
×
×
  • Створити...