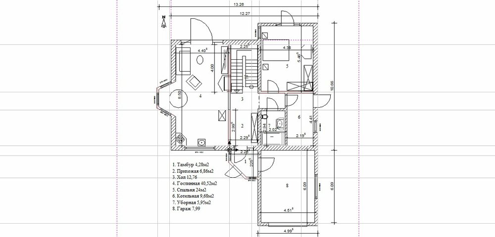
swizard Опубліковано: 7 січня 2011 Поділитись Опубліковано: 7 січня 2011 Доброе время суток, уважаемая публика! Хотелось бы обсудить с вами эскизы проекта дома для семьи из 4х человек чтобы было с чем идти к архитектору да и самому понимать чего всё-таки хочется. Основной задачей было рационально разместить жилые помещения для нахождения на первом этаже, второй этаж сделать больше спальной зоной для детей. Имея опыт проживания в 3х-комнатной квартире понятно стало что основное время родители проводят в гостинной. Бегать постоянно к гардеробу на втором этаже тоже не очень хочется, поэтому родительскую спальню с гардеробом решено сделать на первом этаже - всё таки дом больше для себя, чем для детей. Холодный гараж со входом из тамбура. Котельная с отдельным входом. Выход из гостинной и родительской спальни на терассу. Второй этаж - 3 спальни (одна гостевая) и кабинет, а так же ванная комната и прачечная. Хотелось бы получить конструктивную критику, а так же предложения с примерами если такое возможно. Спасибо Посилання на коментар Поділитися на інших сайтах More sharing options...
oskargonzalez Опубліковано: 7 січня 2011 Поділитись Опубліковано: 7 січня 2011 Я бы сделал на 1 этаже раздельный с/у, а то Вам надоест бегать на второй или ждать возле уборной своей очереди. Посилання на коментар Поділитися на інших сайтах More sharing options...
Ольга В Опубліковано: 7 січня 2011 Поділитись Опубліковано: 7 січня 2011 Фасады - некрасивые(ИМХО). Посилання на коментар Поділитися на інших сайтах More sharing options...
swizard Опубліковано: 8 січня 2011 Автор Поділитись Опубліковано: 8 січня 2011 Фасады - некрасивые(ИМХО). Это только эскизы, они мне и сами не нравятся, но так как я не дизайнер - лучше нарисовать не умею. Посилання на коментар Поділитися на інших сайтах More sharing options...
Max_designer Опубліковано: 8 січня 2011 Поділитись Опубліковано: 8 січня 2011 Я уже отвечал развернуто и с конструктивом, но из-за матюков модераторы ответ потерли. Попробую хладнокровно. Отнеситесь ответственно к своему жилью. Этот проект выбросте и нарисуйте все с "0". Прорисуйте все, всключая _всю_ мебель, с открываниеми дверец. Двери нарисуйте, окна тоже с учетом открываний. Не может помещаться обеденный стол на 4 человека в эркере размером с туалет в хрущовке. Посилання на коментар Поділитися на інших сайтах More sharing options...
Ольга В Опубліковано: 8 січня 2011 Поділитись Опубліковано: 8 січня 2011 Это только эскизы, они мне и сами не нравятся, но так как я не дизайнер - лучше нарисовать не умею. Ну если сами не умеете то: 1-наймите спеца 2-найдите готовый проект Посилання на коментар Поділитися на інших сайтах More sharing options...
swizard Опубліковано: 8 січня 2011 Автор Поділитись Опубліковано: 8 січня 2011 Я уже отвечал развернуто и с конструктивом, но из-за матюков модераторы ответ потерли. Попробую хладнокровно. Отнеситесь ответственно к своему жилью. Этот проект выбросте и нарисуйте все с "0". Прорисуйте все, всключая _всю_ мебель, с открываниеми дверец. Двери нарисуйте, окна тоже с учетом открываний. Не может помещаться обеденный стол на 4 человека в эркере размером с туалет в хрущовке. Ох уж эти модераторы, я ведь специально выложил сюда проект чтобы матюки услышать. По поводу эркера согласен, двери тоже не везде правильно открываются. А что ещё? Труда нарисовать с нуля не составит, но нужно знать что рисовать. Посилання на коментар Поділитися на інших сайтах More sharing options...
swizard Опубліковано: 8 січня 2011 Автор Поділитись Опубліковано: 8 січня 2011 Ну если сами не умеете то: 1-наймите спеца 2-найдите готовый проект Спасибо, но ничего полезного от вас не услышал. В первом сообщении написано что это эскизы с которыми потом собираюсь идти к архитектору. Красивые или некрасивые - это дело вкуса, а цель ветки - это обсуждение рационального использования помещений и планировки. Посилання на коментар Поділитися на інших сайтах More sharing options...
Max_designer Опубліковано: 8 січня 2011 Поділитись Опубліковано: 8 січня 2011 Ох уж эти модераторы, я ведь специально выложил сюда проект чтобы матюки услышать. По поводу эркера согласен, двери тоже не везде правильно открываются. А что ещё? Труда нарисовать с нуля не составит, но нужно знать что рисовать. Рисуйте _ПЛАН_. не надо заморачиваться фасадами. Это потом. Когда вы начнете рисовать детально, у вас появятся много новых вопросов. И вот после нескольких циклов такой "перегонки" выложите снова на обсуждение. Посилання на коментар Поділитися на інших сайтах More sharing options...
Рекомендовані повідомлення
Створіть акаунт або увійдіть у нього для коментування
Ви маєте бути користувачем, щоб залишити коментар
Створити акаунт
Зареєструйтеся для отримання акаунта. Це просто!
Зареєструвати акаунтУвійти
Вже зареєстровані? Увійдіть тут.
Увійти зараз