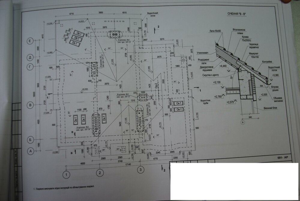
tema17 Опубліковано: 16 лютого 2011 Поділитись Опубліковано: 16 лютого 2011 Извините за офф-топ...наболело Если бы Я всех супер-архитекторов с которыми работал помещал в "ЧС", там бы ветка лопнула Единственный нормальный архитектор который мне встретился за 5 лет в Киеве, Мартынюк... П.С. сижу сейчас считаю проект Дымари в яндовах, нарушение вентиляции и снеговые карманы, плоскость по Е-1 вообще боком-раком наклонена, справа узел левый вообще - написано Черепиця Керамічна нарисована композитка, сечение дерева не совпадает со спецификацией............короче бред!!! И так каждый второй проект! mey, к Вам претензий не имею...Ваше дело как работать рисовать и пр. Посилання на коментар Поділитися на інших сайтах More sharing options...
mey Опубліковано: 16 лютого 2011 Поділитись Опубліковано: 16 лютого 2011 Не проще взять сразу 250 стропилу? В первый раз вижу такое конструкционное решение, а видел я их много... tema17 стропила уже стоит и она 200мм, вот приходится ставить паралельно рейку что-бы приподнять пленку,, или вы что-то другое посоветуете?? А о супер мембране я уже говорил выше,, На чертеже который вы выложили кровля выглядит точно также как и у меня и теже конструктивные решения, только стропила 250 и 50мм утеплителя я спрятал в плоскости нижней обрешетки,, еще раз скажу инженер конструктор на кровле должен выполнить расчет сечения стропилы, и если нужно расчет на деревяный настил,, все остальное делает архитектор, или спец организация которая будет монтировать кровлю,, Уж не знаю что и думать.. В подписи у вас :АРХИТЕКТОР,, А советы даете - конструкторские.. Я архитектор,, и не дал ни одно конструкторского решения,, конструктор - КР Нету в природе такого раздела как "КР" если конструктор выдаст чертежи то ето будет раздел «КД» стадия «Р» mey ... Не проще взять сразу 250 стропилу? В первый раз вижу такое конструкционное решение, а видел я их много... Если человек работает по книге, то ничего удивительного в таких рекомендациях нЭту. еще раз напишу для тех кто не в курсе у автора темы стропила 200мм и рисовать 250 глупо,, потому как там УЖЕ 200мм и больше не выростет,, Посилання на коментар Поділитися на інших сайтах More sharing options...
mey Опубліковано: 16 лютого 2011 Поділитись Опубліковано: 16 лютого 2011 Дымари в яндовах, нарушение вентиляции и снеговые карманы, плоскость по Е-1 вообще боком-раком наклонена, справа узел левый вообще - написано Черепиця Керамічна нарисована композитка, сечение дерева не совпадает со спецификацией............короче бред!!! И так каждый второй проект! сочуствую,, я так НЕ делаю,)) потому как строители потом досмерти затр...ют вопросами,, Посилання на коментар Поділитися на інших сайтах More sharing options...
tema17 Опубліковано: 16 лютого 2011 Поділитись Опубліковано: 16 лютого 2011 tema17 стропила уже стоит и она 200мм, вот приходится ставить паралельно рейку что-бы приподнять пленку,, или вы что-то другое посоветуете?? Для того, чтобы поставить ТС эту рейку дополнительно, придется снимать металлочерепицу, обрешетку, контррейку, ГБ, заменять планки на фронтонах, переделывать примыкания и пр.(после этого кое что и выкинуть придется). Проще намного открутить снизу гипс, каркас, утеплитель и туже рейку добавить. А если уже и снимать все сверху то лучше покласть СДМ, без реек... Посилання на коментар Поділитися на інших сайтах More sharing options...
mey Опубліковано: 16 лютого 2011 Поділитись Опубліковано: 16 лютого 2011 а снимать придется всеравно потому как там все мокрое и гниет, и обработать там все нужно в любом случае,, если бы там все было благополучното можно было тогда утеплитель снижу повесить и все,, и еще неизвесна конструкция под металочерепицей переделывать примыкания и пр они тоже не правильно сделаны там нет вентиляции потому их тоже нужно будет переделывать не согласен с применением СДМ потому как у ТС на кровле уже есть пленки и их нужно использовать а не выбросить и купить самую дорогую,, Посилання на коментар Поділитися на інших сайтах More sharing options...
tema17 Опубліковано: 16 лютого 2011 Поділитись Опубліковано: 16 лютого 2011 (змінено) mey, сразу видно ,что Вы никогда не работали или не наблюдали процесс на кровле...какое отношение примыкание к вентиляции имеет После того как снимется ГБ, он уже только в мусор пойдет ибо он был прижат контррейкой и пробит гвоздями. А правильно под металлочерепицей или нет можно увидеть и из помещения, достаточно чуть отогнуть ГБ. Я не спорю, возможно и придется делать полный демонтаж черепицы, все зависит от общей картины, но это уже крайние меры. Разница по деньгам между ГБ и "дорогой" СДМ на м.кв. 4-5 гривен. Змінено 16 лютого 2011 користувачем tema17 Посилання на коментар Поділитися на інших сайтах More sharing options...
mey Опубліковано: 16 лютого 2011 Поділитись Опубліковано: 16 лютого 2011 не думаю что вся пленка пойдет в мусор, и что 500грн не деньги,, хотя пусть "заказчик" выбирает что дешевле супер мембрана или 50*50 брусок набить,, mey, сразу видно ,что Вы никогда не работали или не наблюдали процесс на кровле...какое отношение примыкание к вентиляции имеет ну ты и придумал,,не надо меня судить,, причем не зная,, примыкания будут поменяны потому как скорей всего толщина кровли станет больше,, ну и вентиляция,,, Посилання на коментар Поділитися на інших сайтах More sharing options...
tema17 Опубліковано: 16 лютого 2011 Поділитись Опубліковано: 16 лютого 2011 Кажется Я на ТЫ не переходил! Остальное без комментариев. Тут спецов много, сами рассудят who из who... Посилання на коментар Поділитися на інших сайтах More sharing options...
*Alexey* Опубліковано: 16 лютого 2011 Поділитись Опубліковано: 16 лютого 2011 mey, сразу видно ,что Вы никогда не работали или не наблюдали процесс на кровле... После того как снимется ГБ, он уже только в мусор пойдет ибо он был прижат контррейкой и пробит гвоздями... Артем прав. Исходя из тех же технологий кровельные пленки - одноразовые. Как и МЧ и Битумка. Кроме того, считаю, что Вами (не вздумайте мне тыкать) предложенный вариант дает конкретное удорожание, т.к. Во первых: демонтировать утеплитель все равно прийдется. И ПБ ест-но тоже. А к кровле собственно на предмет течи вопросов не возникало. От сюда Вывод: проблема КОНКРЕТНО в пироге утеплителя. Во вторых: Если снять покрытие+обрешетку (мин 40% в отход)+ контру (до 80% отходов) +утеплитель (по любому частично на замену)+ПБ + собрать обратно, ТС уже пофигу будет на гидроизоляцию, т.к. на фоне вышеизложенного это КОПЕЙКИне думаю что вся пленка пойдет в мусор, и что 500грн не деньги,, хотя пусть "заказчик" выбирает что дешевле супер мембрана или 50*50 брусок набить,, Вы отдаете себе отчет в Вашем совете??? Простите, но это больше смахивает на некий юношеский максимализм..... примыкания будут поменяны потому как скорей всего толщина кровли станет больше,, ну и вентиляция,,, Ну и плюс примыкание по новой!! Так чей Вариант экономичней?? Посилання на коментар Поділитися на інших сайтах More sharing options...
Игорь Карлсон Опубліковано: 16 лютого 2011 Поділитись Опубліковано: 16 лютого 2011 Дабы предвосхитить споры форумчан по поводу ситуации у топикстартера, хочу подробнее рассказать о "пироге" на его крыше. МЧ- орешетка (доска 25-30)-контррейка-ГБ 110-опять орешетка!!!??? (шаг не увидел Т.К вскрыл небольшую площадь да и не особо обратил внимание)-утеплитель 200 мм-паробарьер 110 - утеплитель 50 мм-гипсокартон. Протечки исключены МЧ ТК нет даже дымохода, нет примыканий и ендов. ГБ немного побит саморезами. Утепление - из 5 баллов - на троечку. Особенно в районе фронтонов и мауэрлата. Свесы заглушены вагонкой, фасадный утеплитель не дотянут до уровня мауэрлата. Конечно, самый лучший вариант - снять МЧ, демонтировать все чудо до стропил, снять утеплитель. Уложить правильный утеплитель, а не перегородочный, СДМ, контррейку, орешетку, МЧ. Но т.к. 1 пароизоляция сделана некорректно + гипсокартон уже мокрый. 2 стоимость работ по кровле дороже, чем переутеплиться изнутри. Принято решение переутеплить все изнутри. обеспечить зазор 5 см между ГБ и минватой, пустить воздух с карнизов , доклеить пенопласт по стене. P.S. Дерево более-менее нормально сохранилось, мокрое только в местах примыканий паробарьера. Но не критично. Только пару месяцев назад оштукатурили стены. 2 Посилання на коментар Поділитися на інших сайтах More sharing options...
mey Опубліковано: 16 лютого 2011 Поділитись Опубліковано: 16 лютого 2011 *Alexey* до того как вЫ нас в этот раз посетили (надеюсь без чертежей марки КР), мы говорили о том что если там под металочерепицей не правильная конструкция и нет возможности для создания вентиляции то по моему мнению прийдется переделать всю кровлю,,, вот-вот и тут появляетесь вЫ чего-то там считаете в процентах, жирниньким выделяете,, вы перед своим следующим появлением почитайте ВСЕ,, (посты 48,55) а по поводу одноразовых пленок и дерева которое на 80% испаряется после демонтажа,, ну что могу сказать -Если захотеть то все получится а если нет,, то нет,, Дабы предвосхитить споры форумчан по поводу ситуации у топикстартера, хочу подробнее рассказать о "пироге" на его крыше. ну нарешти,, спасибо,, и слава богу что все обошлось без демонтажа металочерепицы,, P.S. по поводу Ты,, Вы ,, В сети, это у меня не произвольно я могу их чередовать не замечая етого,, кого обидел - извеняюсь,, Посилання на коментар Поділитися на інших сайтах More sharing options...
Рекомендовані повідомлення
Створіть акаунт або увійдіть у нього для коментування
Ви маєте бути користувачем, щоб залишити коментар
Створити акаунт
Зареєструйтеся для отримання акаунта. Це просто!
Зареєструвати акаунтУвійти
Вже зареєстровані? Увійдіть тут.
Увійти зараз